Besoin d'aide pour aménager salon salle à manger
il y a 11 ans
Réponse sélectionnée
Trier par:Plus anciennes
Commentaires (25)
- il y a 10 ans
Discussions associées
Besoin d'aide pour aménager un salon-cuisine-salle à manger
Commentaires (28)oui c'est déjà mieux si vous pouvez changer la fenêtre à petits carreaux par une baie tout simple et plus grande et oui allez-y si c'est faisable casser les murs et faites une cuisine salle de repas intégrée. faite un sol en parquet ou en grès imitation parquet déjà cela apportera de la luminosité peignez tous les murs en blanc et celui du canapé d'une couleur éventuellement faire un meuble TV original et rajoutez un beau tapis assez grand shaggy uni ou à motifs légers deux fauteuils... Voir plusBesoin d'aide pour aménager un salon-cuisine-salle à manger
Commentaires (10)bonjour,voila une maison avec plein de recoins d'après votre plan,en particulier dans ce séjour.C'est un peu sombre à cause des petits carreaux des porte fenêtres,et du bois marron.Avec des porte fenêtres blanches ça changerait beaucoup, cette grosse cheminée mange l'espace et la lumière,et le sol n'arrange rien. Il faut tenir compte de vos habitudes de vie: -où mangez vous? -avez vous des enfants jeunes ? -Passez vous beaucoup de temps en cuisine? Avez vous un autre chauffage que cette cheminée? (les poêles c'est à la mode mais au quotidien,entre payer le bois,le nettoyage,la difficulté à régler le température...) -Recevez vous beaucoup? quelles couleurs aimez vous? quel style? Quelle est la largeur du couloir après l'entrée de 1m80? 1-si cette largeur est suffisante,et que l'ipn ne gène pas,vous pourriez supprimer les décrochements de 72 et 88cm pour avoir une pièce plus facile à aménager et faire le coin repas du sejour plus près de la cuisine. Voulez vous changer le sol du séjour? Bien sur,une verrière comme conseille SO DKO ,apportera plus de lumière,et modernisera,j'y ajouterais côté entrée un meuble bas de faible profondeur,ou des cubes a tiroirs,sous cette verrière. et côté séjour, porte coulissante verrière pour ne pas être trop isolé en cuisine. Qu'y a-t-il à côté de la cheminée ,des pavés de verre ou un miroir? 2-Vous pouvez aussi supprimer ce couloir entrée pour faire une grande pièce cuisine ouverte,en gardant un sas d'entrée avec un placard cloison pour masquer l'entrée pour le froid et l'intimité. C'est très bien les canapés noirs,on se dit que ça se mariera avec tout,mais ça fait masse,et triste.Mais ça peut s'arranger avec des coussins plaid et tapis... C'est presque obligé après de faire un sol parquet pvc ou bois,pour contraster avec ce noir cuir brillant. il faut choisir sol,et murs en 1er. Regardez les émissions de tv, houzz,et sur le net,voyez ce qui vous parle.Vous finrez par avoir le declic. Votre cuisine est comment? une photo?... Voir plusBesoin d'aide pour aménagement salon / salle à manger
Commentaires (7)Nous avons en effet ouvert les 2 murs de l'entrée et fait une cuisine semi ouverte avec une verrière Nous avons donc fait faire une table de ferme sur mesure de 2m50 de long sur 90cm de large pour remplacer celle là (elle arrive ce soir ! ;)) Nous garderons simplement les chaises. Le vaisselier en 2 parties qu'on voit en arrière plan a été repeint et sera positionné à la place du meuble marron au fond à droite. Un autre radiateur en fonte sera installé sous la fenêtre du mur jaune. Nous avons pour le moment positionné le canapé et fauteuil comme ça mais c'est là que nous nous posons beaucoup de questions. Faut il mettre le canapé sur le mur du fond (celui sur la photo) visible depuis l'entrée ou bien sur le mur en bois de coffrage et donc mettre un meuble tv sur ce mur mouluré ? Nous étions parti sur la 2nde version pour avoir un salon plus cocooning dans le renfoncement mais toutes les personnes qui sont venues chez nous nous on conseillé de faire le contraire pour plusieurs raisons : 1. Il est plus jolie d’apercevoir un canapé en rentrant chez soit qu'un meuble TV 2. Le canapé cache moins les moulures que nous avons faites qu'un meuble TV avec rangement au dessus 3. Obligation de faire un meuble sur mesure pour s'adapter au décroché du mur réalisé pour supprimer l'humidité. 4. Vue plus sympa depuis le canapé installé contre le mur mouluré car permet de voir tout le salon et même la cuisine donc plus conviviale quand on a des invités. 5. TV plus protégée du soleil sur le mur en bois que sur le mur mouluré donc moins de faux jour. 6. Moins de vis à vis avec les voisins dans cette configuration. Bref beaucoup d'arguments qui se valent. J'avoue qu'on y avait jamais pensé. Comme quoi quand on a une idée dans le crane on ne va pas chercher plus loin. (ça sert finalement de prendre du temps à faire ses travaux soit même. On a le temps d'avoir les avis des autres et de changer nos plans). Cette configuration me gêne juste car le salon sera coupé par le passage lié à la petite porte qui donne sur notre 2nde place de parking derrière la maison (on y va pas tous les jours, certes). Si nous partons sur cette configuration, quel style de meuble voyez vous donc sur le mur en bois qui permettrait de ne pas trop le cacher svp ? Merci pour votre aide et désolée pour le roman ! ;)... Voir plusBesoin d'aide pour aménagement salon salle à manger et cuisine
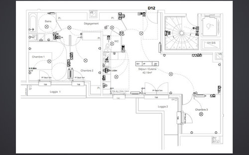
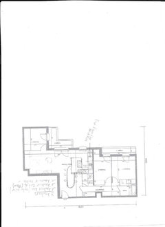
Commentaires (4)Bonjour, merci beaucoup pour vos conseils précieux. De notre coté nous allons modifier le plan, apparemment ce n'est pas une bonne idée de disposer les toilettes aussi proches de la salle à vivre. Nous revenons donc vers vous avec notre nouveau plan modifié, merci encore pour vos proposition et de votre réactivité. Bien cordialement... Voir plus- il y a 10 ansDernière modification :il y a 10 ansNelly Barro a remercié Cartouge Création
- il y a 10 ans
- il y a 10 ansDernière modification :il y a 10 ans
- il y a 10 ans
- il y a 10 ans
- il y a 10 ans
- il y a 10 ans
- il y a 10 ans
- il y a 10 ans
- il y a 9 ansDernière modification :il y a 9 ans

Sponsorisé
Rechargez la page pour ne plus voir cette annonce spécifique














Florence Merieau