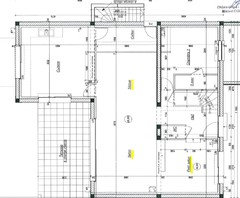
Bonjour, j'aimerais avoir des idées, conseils, photos d'amenagement pour mon sejour,salon et petit salon. Nous sommes (pour l'instant) 3 à y vivre au quotidien, j'ai un petit de 3ans et par moment 5. Nous recevons souvent et aimerions avoir une deco chaleureuse moderne et pas trop chargée. Il nous faut quand même un grand canapé parce qu'à 3 c'est déja la compliqué avec le canapé d'angle qu'on a. Nous n'avons pas encore acheté les meubles donc tout reste à faire. Tous les mûrs sont blancs et au sol du granit avec des éclats dorés. Merci d'avance.
princesseryaneAuteur d'origine
Discussions associées
Besoin d'aide pour le choix des peintures de la pièce à vivre
Q
besoin d'aide pour agencer pièce à vivre avec cuisine ouverte
Q
Besoin d'aide pour l'agencement pièce à vivre 18m2 Salon /Coin repas
Q
Besoin d'aide et de conseil pour l'aménagement d'une pièce à vivre
Q