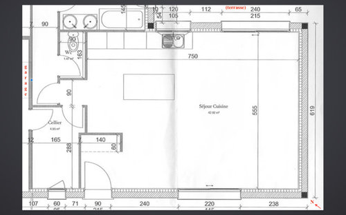
Besoin d'aide aménagement séjour cuisine
il y a 9 ans
Réponse sélectionnée
Trier par:Plus anciennes
Commentaires (56)
- il y a 9 ans
- il y a 9 ans
Discussions associées
Besoin d'aide pour aménagement séjour cuisine
Commentaires (8)Effectivement, on a pas idée de mettre une porte-fenêtre à cet endroit. Si vous voulez vraiment une cloison, je pense que le plus simple reste encore de changer la porte fenêtre pour une simple verrière -donc une sorte de porte fenêtre mais qui ne s'ouvre pas. Vu qu'il y a une grande baie vitrée bien placée, ça ne condamne en rien l'accès à la terrasse ni ne sacrifie la ventilation, la lumière ou l'espace. Pour la cuisine, malheureusement un plan en U limite les possibilités ici pour placer évier et plaques. A la rigueur, pourquoi ne pas inverser la position de l'évier et le mettre côté fenêtre en lui ajoutant des rangements en hauteur pour aller avec le reste de la configuration en hauteur. Quant aux plaques, les mettre à la place de l'évier dans la modélisation et créer un plan de travail en décalé : partie haute plaques avec un retour pour éviter les projections, partie basse à une hauteur de table standard pour recevoir. Je ne retrouve plus la photo d'une cuisine qui utilisait ce procédé pour éviter justement les désagréments de la préparation quand la table est à côté. Ou alors, il faut arrêter les fritures ;)... Voir plusBesoin d'aide pour aménager le séjour
Commentaires (35)lol j'attends depuis 3 mois des chaises en peau de vache zébré... Voir plusBesoin d'aide pour aménager mon coin séjour/cusine
Commentaires (5)La cuisine est-elle déjà installée et les deux fenêtres sont-elles des portes-fenêtres? Si c'est oui pour les deux questions, on pourrait imaginer un canapé entre les deux portes-fenêtres et la télé sur le mur de droite. (Il y a des bidules aujourd'hui pour faire fonctionner une télé loin de la prise initialement prévue.) Ce qui vous laissera la place pour une petite table à manger ronde sur la gauche, entre la chaudière et la porte-fenêtre simple. Alternativement une table rabattable qui forme une console quand elle n'est pas utilisée.... Voir plusbesoin d'aide pour amenager mon séjour/salle a manger / cuisine
Commentaires (4)Bonjour, Alors, voici ma proposition d'implantation. J'ai mis un ilot ... pour votre cousine :) mais je crains que ça mange un peu la lumière de la fenêtre. Il faut environ 90 cm entre la cuisine et l'ilot, donc c'est difficile de le mettre ailleurs. J'ai positionné un canapé méridienne mais vous pouvez prendre aussi un grand canapé. La cheminée vous pouvez la positionner le long du mur entre le canapé et le meuble TV par exemple. Une pièce en longueur permet vraiment d'avoir un coin pour les repas et un coin pour le salon. Bonne soirée à vous,... Voir plus- il y a 9 ans
- il y a 9 ans
- il y a 9 ans
- il y a 9 ans
- il y a 9 ans
- il y a 9 ans
- il y a 9 ans
- il y a 9 ans
- il y a 9 ans
- il y a 9 ans
- il y a 9 ans
- il y a 9 ans
- il y a 9 ans
- il y a 9 ansDernière modification :il y a 9 ans
- il y a 9 ans
- il y a 9 ans
- il y a 9 ans
- il y a 9 ans
- il y a 9 ans
- il y a 9 ans
- il y a 9 ans
- il y a 9 ans
- il y a 9 ans
- il y a 9 ans
- il y a 9 ans
- il y a 9 ans
- il y a 9 ans
- il y a 9 ans
- il y a 9 ans
- il y a 9 ans
- il y a 9 ans
- il y a 9 ans
- il y a 9 ans
- il y a 9 ans
- il y a 9 ans
- il y a 9 ans
- il y a 9 ans
- il y a 9 ans
- il y a 9 ans
- il y a 9 ans
- il y a 9 ans
- il y a 9 ans
- il y a 9 ans
- il y a 9 ans
- il y a 9 ans
- il y a 9 ans
- il y a 9 ans

Sponsorisé
Rechargez la page pour ne plus voir cette annonce spécifique














Florence Merieau