Bonjour,
Avec ma femme, nous venons d'acquérir notre première maison. Nous allons tout refaire car l'état actuel de la maison ne nous convient pas.
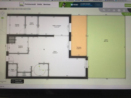
L'un des premiers soucis que nous rencontrons, c'est la suppression du mur porteur qui sépare la salle a manger du salon (~210cm). Pour cela, nous allons faire intervenir un artisan agrée pour le remplacer par une poutre IPN.
Maintenant, nous avons en projet de déplacer la cuisine actuelle vers la salle a manger afin d'ouvrir la grande pièce. Un première artisan est déjà venu visite la maison pour nous faire faire un devis et nous a dit que le déplacement de la cuisine allait être problématique a cause de la pente pour l'évacuation des eaux. Sinon, il faudrait faire installer une pompe de relevage mais c'est coûteux.
Est-il vraiment impossible de déplacer la cuisine sans faire installer une pompe ? Est ce que le tuyau serait trop haut si on fait partir le tuyau de la cuisine actuel vers le fond du garage et ensuite le faire longer le mur du cellier pour enfin terminer dans la salle a manger ?
Si vous avez d'autres suggestions de réaménagement, nous serions très heureux de lire vos propositions. Les travaux débuterons normalement mi septembre. Nous avons encore le temps de trouver la solution idéale.
Vous trouverez ci-joint le plan du rez-de-chaussee,
Merci d'avance,
Archipure
Discussions associées
Déplacement WC et Cuisine
Q
Couleur des murs et du plafond de la cuisine.
Q
Conseils pour réaménagement rez de chaussée/déplacement cuisine
Q
Comment aménager ma cuisine et apporter de la lumière.
Q