Besoin d'aide pour l'aménagement d'une pièce à vivre
il y a 9 ans
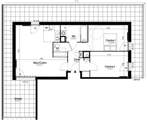
Réponse sélectionnée
Trier par:Plus anciennes
Commentaires (9)
- il y a 9 ans
- il y a 9 ans
Discussions associées
Besoin d'aide pour délimiter l'entrée de la pièce pièce à vivre
Commentaires (12)si vous pouvez mettre une verrière face à la porte. Prenez le temps de nous faire un plan même à main levée avec les dimensions. Tel que je vois votre idée d'implantation de banquette vous allez créer un coin salon vraiment cloisonné et petit... alors si de plus nous "fermons" l'entrée avec un meuble cela n'ira pas...je suppose que vous comptez utiliser le reste de l'espace pour une table de salle à manger? Par ailleurs le pan de mur entre la petite fenêtre et la baie vitrée donnant sur balcon ne semble pas du tout faire 2 m de long donc si vous positionnez là une banquette de cette taille son dossier va forcément dépasser sur la fenêtre !... Voir plusBesoin d'aide pour l'aménagement d'une petite pièce à vivre !
Commentaires (52)la taille... ça dépend... celles que j'ai vues vite fait font 80 à 90cm de long, 50cm de large... il faut fouiller sur les sites de fournitures déco (maisons du monde, ikéa, habitat, AMPM, la redoute... Alinéa, etc) ça c'est pour les choses abordables, après il y a surement plus beau, plus grand, avec plateau rabattable je suppose! généralement les "ilôts" sont plus grands. dessertes: https://www.delamaison.fr/table-desserte-bois-roulettes-avec-rangements-tiroirs-ilda-p-195671.html?3=6&gclid=CN6Uv9qGu9ECFe0A0wod98gMyg&utm_campaign=104652081381&utm_medium=cpc&position=1o3&gclsrc=aw.ds&utm_source=google&network=g http://www.ikea.com/fr/fr/catalog/products/00323024/ www.ikea.com/fr/fr/catalog/products/00058487/ https://www.habitat.fr/p/massello-ilot-de-cuisine-naturel et ça:et là sur houzz: https://www.houzz.fr/produits/dessertes-et-ilots-de-cuisine-prbr0-br~t_10978... Voir plusBesoin d'aide pour l'aménagement d'un balcon
Commentaires (3)Votre locataire vas être très contente je pense. Elle va gagné de la place si elle peux ajouté des étagères ou placards au dessus du plan. Peut-être auriez-vous même de la place pour mettre une table côté droite. Cela pourrais être un plateaux avec charnière fixé au mur qu'elle peux déployé. Cdt Katrin... Voir plusConseil pour l'aménagement d'une pièce à vivre en angle aigu de 24m2
Commentaires (5)Bonjour. Un possible. La bande jaune représente le passage nécessaire pour travailler à la cuisine. Les pointillés bleus marquent une distance de 3m des murs (distance confortable pour regarder une télé "normale". Les rectangles gris contre les murs figurent une composition de type BESTA, modulable à adapter à vos besoins. Exemples La table ronde avec un diamètre de 100 cm permet 5 convives à l'aise et jusqu'à 6 correctement (à rallonges si vous recevez en nombre) Avec 395 cm la cuisine permet un peu plus de 6 modules standard ce qui est en général suffisant (LL en salle d'eau) mais dépend de vos besoins (LV 45 ou 60 cm ? Autres désirs ? ) Bonne réflexion.... Voir plus- il y a 9 ansDernière modification :il y a 9 ans
- il y a 9 ans
- il y a 9 ans
- il y a 9 ans
- il y a 9 ans

Sponsorisé
Rechargez la page pour ne plus voir cette annonce spécifique







Coralie G