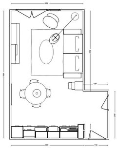
Besoin d'aide aménagement cuisine/salon 22m2
il y a 9 ans
Réponse sélectionnée
Trier par:Plus anciennes
Commentaires (17)
- il y a 9 ans
Discussions associées
Besoin d'aide pour aménager cuisine et salon
Commentaires (23)Merci beaucoup Coralie pour toutes ces idées. J'apprécie beaucoup l'inversion de l'évier et de la plaque. Merci également de vos conseils pour le canapé. je n'avais pas pensé au type qu'il faut retenir car je n'ai pas l'habitude d'utiliser des canapés lits. Bien cordialement, Élise... Voir plusBesoin d'aide aménagement salon/cuisine 33m2
Commentaires (27)Bonjour Marie, concernant votre demande d'aide au sujet du placement de vos meubles, je peux vous conseiller de disposer une table à manger à côté de votre cuisine, soit à hauteur qui puisse vous servir également de plan de travail, soit plus bas et peut-être extensible qui puisse accueillir de grands repas. Et à côté vous pouvez profiter d'un large salon pour profiter des soirées avec vos amis. Je vous joins votre plan annoté. Qu'en pensez-vous?... Voir plusBesoin d'aide pour aménagement cuisine/salon VEFA
Commentaires (18)En effet vous avez raison, le tracé n'est pas le même que pour les cloisons ! Merci beaucoup Lynn pour ces deux propositions (la version "élongée" m'aurait arrangée !) très intéressantes, vous avez même pris la peine de me donner plein de bonnes idées pour les autres pièces ! L'espace salon du 1er est en effet mieux mais je trouvais assez intéressant le fait de faire un petit angle comme sur le 2e car cela pourrait me permettre d'avoir plus d'espace de travail et de rangements mais j'ai du mal à visualiser l'armoire/cellier et le frigo à ces espaces précis ? (au niveau des branchements du frigo par ex ? ou pour accéder à l'armoire dans le coin ?) En tous cas un énorme merci !... Voir plusBesoin d’aide pour aménagement salon avec cuisine ouverte
Commentaires (8)Bonjour @julie Maretraite , après discussion avec ma compagne elle ne veut absolument pas placer la lave linge dans le placar à l’entré. elle veut garder cet espace pour pouvoir ranger aspirateur, seau, balai, chaussures , etc...et je comprends en effet c’est aussi important. par contre ça réduit beaucoup l’espace disponible dans la cuisine car il faudra y caser LL, LV, Four, évier et ça ne laisse pratiquement plus de place pour le rangement (juste un meuble 40 x 40 cm ). il faudra opter pour l’option en L? J’avoue que c’est un casse-tête :( j‘invite aussi à nouveau @Charline Barre dans la discussion... Voir plus- il y a 9 ans
- il y a 9 ans
- il y a 9 ans
- il y a 9 ans
- il y a 9 ans
- il y a 9 ans
- il y a 9 ans
- il y a 9 ans
- il y a 9 ans
- il y a 9 ans
- il y a 9 ans

Sponsorisé
Rechargez la page pour ne plus voir cette annonce spécifique











SO DKO