VEFA; Amenagement salon avec cuisine ouverte
il y a 7 ans
Réponse sélectionnée
Trier par:Plus anciennes
Commentaires (19)
- il y a 7 ans
Discussions associées
Idées Amenagement Salon Cuisine ouverte 23 m2
Commentaires (21)Après, il s'agit d'une simple base de discussion. Dans la pratique, vos besoins ne sont absolument pas définis. Il faut déjà que l'ouverture de droite ne soit qu'une fenêtre et pas une porte fenêtre et qu'un canapé (d'angle ou pas) ait sa place en dessous. On ne sait rien de vos besoins en termes d'équipements de la cuisine, et on n'a aucune idée de la taille et de la position de la chaudière (et donc des équipements qui peuvent l'accompagner) Un canapé doit se situer à environ 3 m d'une télé "standard". Je ne trouve pas beaucoup d'endroits où ça reste possible sans encombrer la circulation. "J'aimerai une table de salon. Et une table rectangulaire." Certes. Mais sans pousser les murs, au prix de quoi ? Une cuisine réduite ? Un mini canapé ? On n'en sait vraiment pas assez, ni sur vos besoins absolus, ni sur vos simple désirs aliénables.... Voir plusChoix peintures et crédence cuisine ouverte sur salon (VEFA)
Commentaires (34)Bonjour, j'ai vu avec le peintre du promoteur, c'est apparemment le scotch que j'ai utilisé qui a trop adhéré sur la peinture et fait les cloques... (pourtant scotch loin d'être du premier prix...) Il est venu tout reprendre. Nouvelles questions (les joies des livraisons Vefa ^^) - en faisant le.ménage pour emmenager, je me suis rendue compte que deux carreaux du dressing étaient differents du reste de la pièce. J.ai choisi un carrelage pour les chambres et un pour la sdb, ils ont mis deux carreaux du carrelage de la sdb dans le dressing, et une fois le.menage fait, ça saute aux yeux... - les attentes electriques au plafond ne correspondent pas aux plans electriques vus avec le promoteur lors des TMA. Ils ont gardé les attentes electriques de l.ancien pour le salon séjour et bien pris en compte mes modifications pour les chambres. Du coup, mes attentes sont complètement décalées par rapport aux éléments de la pièce (une entre le.salon et la table à manger, l'autre entre la cuisine et la table) Je me vois mal.mettre deux suspensions déportées... Une pourquoi pas mais pas deux. Je vais les signaler en réserves supplementaires. Mais je vois mal le promoteur accepter de faire des modifs si couteuses... Je vous ferai des photos demain matin de la pièce à vivre et de la sdb pour discuter de la decoration de la pièce... Voir plusAménagement cuisine ouverte salon VEFA 30m2
Commentaires (2)Bonjours à tous! Étant jeune propriétaire d’une petite maison en VEFA, je me permets de vous solliciter pour avoir vos avis et conseils. (Première expérience :D) Je cherche une solution pour délimiter les espaces de la pièce de vie sans trop sacrifier le volume et la luminosité. Dans l’idéal j’imagine un coin salon avec canapé (2/3pers) et table basse, ainsi qu'un petit coin repas avec table ou bar (4 pers). Enfin je suis preneur de tous les conseils déco. Merci d'avances pour vos retours. Cordialement,... Voir plusIdée aménagement cuisine ouverte sur salon - VEFA 23m²
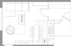
Commentaires (3)Bonjour, Voici trois solutions d'aménagement pour le salon et des proposition pour les chambres. - - - Concernant les radiateurs, effectivement, des radiateurs verticaux pourraient laisser plus de possibilité d'aménagement dans le salon. Après reste a voir les dimensions de chacun des deux modèles horizontaux et verticaux, car il existe une multitude de format. Mais dans tous les cas, il faudrait surtout déplacer le radiateur positionné sur le mur de droite et le placer sur le mur de façade, derrière la porte double. Il faudrait également déplacer le radiateur de la chambre 2 le long de la cloison, et venir le positionner derrière la porte. Cela laissera plus de possibilité d'aménagement. - - - Ensuite, pour l'aménagement du séjour, il y a la possibilité de créer un long module servant de comptoir / ilot / bar, pour délimiter la cuisine du salon. Ce module comprendrait des rangements bas de 40cm de profondeur sur la moitié de sa longueur. Dans la cuisine, il serait judicieux de mettre une colonne haute pour le réfrigérateur et le congélateur. - - - La troisième proposition pour le salon permet de créer une circulation direct entre l'entrée, la zone nuit et la terrasse. Elle permet également d'avoir un long meuble de rangement, pouvant accueillir la tv et servir de banquette lors des soirées. - - - Dans les chambres, attention aux circulations autour des lits. Il faut au moins 40cm de passage entre un lit et un mur, et 70cm avec une armoire. Du coup, en fonction de caméras il faudrait peut-être décaler certaines prises. Dans la chambre 1, vous avez la possibilité de recentrer légèrement le lit tout en gardant une circulation confortable au niveau de la baie vitrée. Le radiateur pourrait lui aussi être déplacé, sur le mur de façade, pour pouvoir placer une petite commode ou un bureau, ou encore un fauteuil dans l'angle de la pièce. J'espère que ces propositions pourront vous aider à faire des choix et définir vos besoins avec votre promoteur. Si vous avez besoin d'informations plus détaillées, ou de concrétiser certains éléments de conception, nous pourrions travailler ensembles sur ce projet. Je vous souhaite une bonne journée.... Voir plus- il y a 7 ans
- il y a 7 ans
- il y a 7 ans
- il y a 7 ans
- il y a 7 ans
- il y a 7 ans
- il y a 7 ans
- il y a 7 ans
- il y a 7 ans
- il y a 7 ans
- il y a 7 ans
- il y a 7 ans
- il y a 7 ans
- il y a 7 ans
- il y a 7 ans
- il y a 7 ans
- il y a 7 ans

Sponsorisé
Rechargez la page pour ne plus voir cette annonce spécifique


















I F Rénovation