Amenagement cuisine /salon
il y a 6 ans
Dernière modification : il y a 6 ans
Réponse sélectionnée
Trier par:Plus anciennes
Commentaires (8)
- il y a 6 ans
Discussions associées
amenagement cuisine et salon
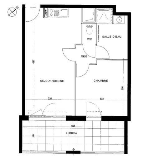
Commentaires (5)bjr merci d avoir pris le temps de repondre. Le mur porteur se trouve au niveau du sac jaune en premier plan de la photo ainsi que tous les autres murs et également un petit morceau proche de l.aquarium. la porte du fond correspond au wc. l.emplacement de la cuisine peut être repensée ayant toujours à l.esprit voin cuisine et coin repas. aujourd'hui pas de delimitation et c est compliqué. la piece fait 3x3 environ... Voir plusBesoin d aide amenagement cuisine ouverte/salon de 25 m2
Commentaires (40)Bonjour. L'évier contre la plaque de cuisson est (une fois de plus) la proposition du promoteur que je n'ai jamais reprise dans mes suggestions. Elle apparait en transparence dans certaines suggestions d'espace global, jamais dans mes propositions de cuisine. Je me bats systématiquement contre depuis que j'interviens sur ce forum. . Pour Nei Mel Vous devez, soit déplacer l'évier (avec les tuyaux, mais la gaine technique est là pour ça), soit déplacer la plaque de cuisson (ligne 32 Ampères dédicacée à déplacer) mais en aucun cas avoir moins de 60 cm de distance entre les deux. Surtout avec des enfants.... Voir plusAménager une cuisine ouverte/salon de 26 m2
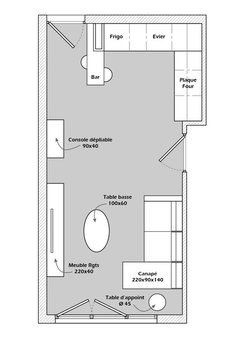
Commentaires (9)Bonjour Laeti, Je n’ai pas trouvé de photos qui montrent tout à fait l’idée dont je vous parle. Cependant, les deux photos suivantes sont assez facilement transposables pour notre cas. Pour la première photo avec les modules ouverts/fermés : dans la cuisine : Les modules fermés dissimuleraient du rangement ou de l’électroménager encastrable // Les modules ouverts pourraient être une place de choix pour créer un espace petit-déjeuner avec les robots : machine à café, bouilloire,... ce qui libérerait de la place sur le plan de travail dans la partie salon : Les modules fermés pourraient également cacher la télévision // Les modules ouverts pourraient accueillir les objets déco, une jolie lampe et quelques livres Pour la deuxième photo avec les meubles gris : l’adaptation est encore plus facilement imaginable ; il suffirait de reprendre le modèle avec une hauteur de 90cm pour le module bas afin de créer le plan de travail. Après vous pourrez soit faire un décroché pour finir sur une hauteur plus basse dans le salon soit choisir de conserver la hauteur. Si vous conservez la même hauteur, il faudra par exemple créer un cadre un peu plus bas pour la télé (cf photo 3). Au plaisir, Marie... Voir plusAmenagement cuisine/SAM/Salon
Commentaires (7)Bonjour Magali, La première question : à qui est destiné cette chambre supplémentaire ? Quelle était votre feeling en 1er abord ? D'expérience, je préfère "isoler" la cuisine du salon car la cuisine est un lieu d'activité, lave-vaisselle, frigo, (lave linge), robots (mixeur....) génèrent du bruit et de la saleté au sol (quand on cuisine) alors que le salon est un lieu dit calme, même s'il y a la TV ou la famille. Le coin dans le plan 2 est-il important ? La chambre dans le plan 2 semble éloignée d'un point d'eau (toilette, salle d'eau), car la porte ouvre sur le coin salon et il faut tourner... circulation moins aisée vue sur plan. Bref, vous avez compris sur plan, je conseillerai le 1er, mais ce n'est qu'un ressenti strict par rapport au plan et la circulation. Pour une autre disposition plan, je fais confiance à la communauté Houzz En espérant que vous choisirez ce qui vous convient... Voir plus- il y a 6 ans
- il y a 6 ans
- il y a 6 ans
- il y a 6 ans
- il y a 6 ans
- il y a 6 ans

Sponsorisé
Rechargez la page pour ne plus voir cette annonce spécifique






TOUCH' DECO