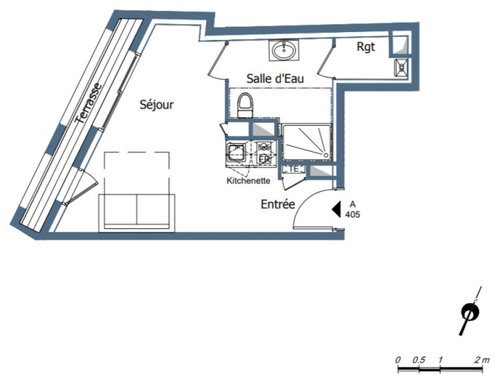
Aménagement d'un studio d'un 26m² en T1bis - Besoin d'aide
il y a 6 ans
Réponse sélectionnée
Trier par:Plus anciennes
Commentaires (30)
- il y a 6 ans
- il y a 6 ans
Discussions associées
Besoin d'aide pour l'aménagement d'un espace cuisine/cellier/SAM
Commentaires (30)Bonjour Florence, J'ai essayé de refaire le croquis après avoir été chez le cuisiniste. Bien évidemment nous avons retenue vos idées! Elles sont géniales. Celles-ci nous ont fait "penser" notre maison autrement: Plus AÉRÉE: l'ancien bar va être déplacé, pour permettre la mise en place de baies vitrées. Une fois ouvertes, l'angle sera dégagé au niveau du salon. Concernant le budget, nous allons mettre juste un poteau, nous ne pourrons pas faire un espace vide. Voici un peu le style mais avec un poteau dans l'angle du salon. Plus FONCTIONNELLE: le bar va être déplacé au niveau de l'ancienne baie vitrée de l'ancienne chambre. (Cf plan suivant, par contre, les dessins ont été fait à main levée donc pas du tout à l'échelle, j'espère donc que tout rentrera). Les cocktails préparés dans la cuisine seront de suite servis au bar, plus la peine de passer par la salle à manger pour aller les servir. Je pense que cela sera plus logique aussi de mettre le bar face à la piscine (qui va aussi être déplacée, elle sera un peu plus grande que sur le plan) et près de la cuisine d'été pour le barbecue (oups, faute d'orthographe sur le croquis) La terrasse va donc être modifiée mais cela été déjà prévue. Dans l'optique du studio indépendant, j'ai essayé de penser au dégagement et au accès privés/publics. Tout en agrandissant la chambre et rétrécissant la salle de bain. Du coup, j'ai pensé à une porte coulissante entre la salle de bain et la chambre. Est-ce fonctionnel dans cette configuration? J'ai l'impression de pendre beaucoup de place pour le couloir de menant aux WC!?? La buanderie je l'ai mise comme vous l'avez suggéré mais sans verrière , nous garderons le pan de mur pour la TV. Nous veillerons à mettre une ouverture ou des briques de verre. La bibliothèque sera un mixte entre bibliothèque et meubles de rangement vaisselle. Et je suis revenue sur le choix du congélo, étant donné, qu'on aura un frigo américain avec congélo plus le frigo actuel possédant aussi des tiroirs pour les congelés. Nous n'aurons plus besoin d'un autre.... Voir plusBesoin d'aide aménagement Studio 30 m² en T1
Commentaires (14)Bonjour, voici ma solution, comme vous avez indiqué que c'est possible, je deplacerai la porte d'entrée. Je créerai la chambre dans le prolongement de la salle de bain. Je condamnerai la porte actuelle de la salle de bain pour mettre des placard tout le long du mur. L'entrée de la salle de bain se ferait alors côté cuisine. Je précise que l'entrée de la chambre se ferait par une porte coulissante, pour gagner de la place. La chambre ferait alors 8m2. Ce qui laisse de la place pour mettre un canapé, une petite table pour manger et de quoi mettre des rangement type placard ou bibliothèque dans la continuité du couloir de l'entrée. Qu' en pensée vous? placard ou bibliothèque dans la continuité du couloir de l'entrée. Qu' en pensée vous?... Voir plusBesoin d'aide pour idées d'aménagement d'un salon/cuisine
Commentaires (6)Bonjour, Tout d'abord merci pour vos commentaires et d'avoir pris le temps de me répondre. Dans l'idée j'aimerais ne pas séparer la cuisine et le salon. Julie une cuisine sur cette longueur serait suffisante selon vous? cela laisserait il un peu de place pour cuisiner? sachant qu'il y a une chaudière à placer (j'ai omis de le dire). J'avais imaginer le coin repas plus proche de la cuisine mais ca risque de faire étriqué avec le coin salon.. Bri je pensais justement demander au constructeur de prévoir un retour de cloison d'environ 80 cm de large sur 60 de profond pour avoir un peu de rangement. Cela me conforte dans mon idée. Merci encore et n'hésitez pas .... Voir plusBesoin d'aide pour aménager mon séjour/cuisine ouverte 26m2
Commentaires (15)Bonsoir Michael et merci pour votre message. Malheureusement je ne pense pas que ça soit faisable car si je remplace le tableau par la TV, ça signifie que je serai à presque 6m de l'écran. Ou alors j'achète une TV de 200cm de diagonal....mais ça serait un peu disproportionné je pense ;-)... Voir plus- il y a 6 ans
- il y a 6 ans
- il y a 6 ans
- il y a 6 ans
- il y a 6 ans
- il y a 6 ans
- il y a 6 ans
- il y a 6 ans
- il y a 6 ans
- il y a 6 ans
- il y a 6 ans
- il y a 6 ans
- il y a 6 ans
- il y a 6 ans
- il y a 6 ans
- il y a 6 ans
- il y a 6 ans
- il y a 6 ans
- il y a 6 ans
- il y a 6 ans
- il y a 6 ans
- il y a 6 ans
- il y a 6 ans
- il y a 6 ans
- il y a 6 ans
- il y a 6 ans

Sponsorisé
Rechargez la page pour ne plus voir cette annonce spécifique
















julie Maretraite