Aménagement salle d'eau / salle de bain parentale
il y a 6 ans
Réponse sélectionnée
Trier par:Plus anciennes
Commentaires (14)
- il y a 6 ans
- il y a 6 ansDernière modification :il y a 6 ans
Discussions associées
Suite parentale: où placer salle d'eau et dressing?
Commentaires (9)bonjour je suis architecte d'intérieur, les volumes sont très intéressant, on peu apporter beaucoup de créativité pour cette suite. afin de répondre au plus juste à votre dilemme pouvez vous indiquer ou se situe l'évacuation principale ou existante car le plus difficile n'est pas d'amener l'eau mais de l'évacuer!! sur la photo 3 est-ce une alimentation d'eau ? dans l'attente de ces infos arthur bouin... Voir plusD'une salle de bain vétuste à une salle d'eau au goût du jour
Commentaires (18)Bonjour, Tous ces éléments viennent de chez Castorama. La vasque encastrable mesure 60cm sur 45 .Le meuble est un sous évier casserollier qui mesure 90 cm de large.Il est très pratique car on y range beaucoup de choses.Au bout d'un an d'utilisation nous n'avons aucun regret pour nos choix.... Voir plusIdée rénovation salle de bain en salle d'eau
Commentaires (25)vous ne nous embêtez pas ! ;-) si nous sommes inspirés on répond , rien ne nous y oblige, c'est par plaisir de discuter déco, bricolage, archi...etc Pour le changement de carrelage, j'aime beaucoup l'imitation bois, il y en a de très beaux... sinon pour les couleurs du reste, c'est vraiment vous qui décidez, quelles sont vos couleurs favorites? regardez les photos de houzz pour avoir des idées... quelles ambiances aimez vous? style "marin avec le bleu marine? calme avec les couleurs céladon? exotique et turquoise? bref, compliqué de décidez pour vous....... Voir plusCréation de 2 salles d'eau en remplacement d'une salle de bain
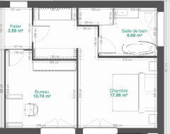
Commentaires (7)Bonjour, Je suis décoratrice d'intérieur et conseillère en immobilier, je peux donc affirmer qu'il est dans votre intérêt de créer une suite parentale si cela est possible bien entendu. Afin de valoriser votre bien, vous devez ouvrir une des 2 salles d'eau sur une des chambres, la plus grande si possible. Cela donnera de la valeur à votre bien et beaucoup plus de facilités à trouver des acheteurs dans le futur. Par contre attention vous n'avez qu'une seule fenêtre. A quelle hauteur ? Peut-on placer le lavabo, une douche ou une baignoire en dessous ? Etes-vous en appartement ou en maison ? Si vous êtes en maison, avez-vous la possibilité de créer une fenêtre ? Les murs de vos pièces sont-ils porteurs ? Nous manquons d'éléments pour créer le plan idéal. Cordialement. Séverine LAURENT-RICHARD... Voir plus- il y a 6 ans
- il y a 6 ansDernière modification :il y a 6 ans
- il y a 6 ans
- il y a 6 ans
- il y a 6 ans
- il y a 6 ansDernière modification :il y a 6 ans
- Sil Scrivo a remercié Atelier OCTA Architecture-Architecture intérieure
- il y a 6 ans

Sponsorisé
Rechargez la page pour ne plus voir cette annonce spécifique







Home by Yolaine