Bonjour à tous,
Je vous demande votre aide aujourd'hui car je ne sais pas comment agencer mon appartement et que je vois peu de conseils d'aménagement pour de la location. En effet, la problématique est différente puisque l'investissement ne sera pas le même que pour un propriétaire. Ceci dit, je suis prête à investir un peu pour me sentir bien chez moi.
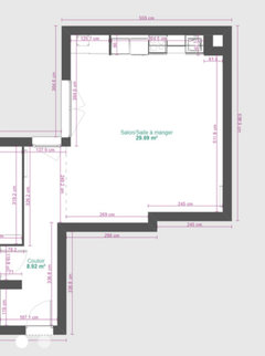
Je vous joins la vue 3D, le plan de mon appartement et la photo, avec la cuisine déjà en place (le lave linge n'a pas d'autre place possible mais le frigo lui n'est pas fixe), les radiateurs sont visibles également.
J'ai un canapé d'angle qui est imposant et prend beaucoup de place dans cet espace de 30m2, mais je dois le garder. Du coup, je ne vois pas bien comment agencer, soit j'ai trop d'espace vide, soit le passage est bloqué. Apres plusieurs essais, j'ai préféré faire appel à votre avis avisé car j'aime beaucoup les propositions faites sur les autres posts.
Mes besoins en bref :
- garder le canapé d'angle (réversible) 245 x 147
- avoir plus de rangements dans la cuisine, dont des tiroirs pour les couverts
- plus de plan de travail dans la cuisine
- avoir une table suffisamment grande pour recevoir
Je vous remercie d'avance pour les conseils que je pourrais recevoir
Yayou
Auriane HernandezAuteur d'origine
Елена Хорошая
Discussions associées
Besoin de conseil en aménagement (1 pièce à vivre)
Q
aménagement pièce à vivre 50m2 en I
Q
Aménagement pièces à vivre (salon & cuisine) de 30m2
Q
Aménagement pièce à vivre en L 50 m2
Q