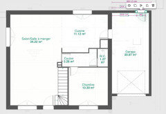
Idée aménagement séjour/cuisine en L -- 50m2 (future construction)
il y a 2 ans
Dernière modification : il y a 2 ans
Réponse sélectionnée
Trier par:Plus anciennes
Commentaires (17)
- il y a 2 ans
- il y a 2 ansDernière modification :il y a 2 ans
Discussions associées
Vos idées pour l'aménagement de notre séjour
Commentaires (16)Effectivement, je dispose d'un canapé de ce type en version 2 places (donc plus petit que celui de votre photo), un canapé d'angle 1 place et une chauffeuse 1 place, le tout en tissu gris foncé. Je ne sais malheureusement pas vous montrer de photo de cheminée car il s'agit en fait d'un "conduit" sous le plafonnage et non pas d'une cheminée ... Ce conduit est situé en face de la table ronde dessinée par Sthalea. De plus, je n'occuperai cette maison que dans 8 mois (elle est actuellement louée en vue de nous permettre de rassembler un minimum de liquidité pour effectuer quelques achats de meubles ainsi que les derniers travaux extérieurs ).J' essaye d'y voir plus clair pour m'orienter vers les bons fournisseurs (ex : achat d'une bibliothèque ou meuble sur mesure, etc.) Grand merci pour votre temps et votre soutien... Voir plusCuisine + séjour idées d'aménagement ?
Commentaires (3)Bonjour l'idée serait de mettre un îlot perpendiculaire au plan de cuisson en laissant l'espace pour accéder aux rangements qui seront situés sur la droite (je sais ce n'est pas l'idéal) et d'accoler la table comme sur la photo... Voir plusaménagement pièce à vivre 50m2 en I
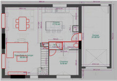
Commentaires (19)Ahhhhh....beben..... l'une des deux choses suivantes vient de se passer... soit vous avez gagné le lotto, soit vous avez ouvert la boite à Pandore... à vous de me le dire... Que'est ce que j'aurais fait????....YESSS!!! d'abord, attachez vos ceintures de sécurité... J'aurais fait comme j'ai fait pour nos clients les plus ouverts et qui nous ont accordés une confiance totale. Vous avez une maison neuve...j'aurais pris en compte les vues, les expos, les "zen views" les différences de niveau de sol, les différences de traitements de plafond, y compris les pentes et les éclairages..., j'aurais séparé les espaces avec ces changements et ces vues dirigées afin de bien les délimiter tout en les gardant ensemble... Quand on aurait entrée dans cet espace, je n'aurais pas laissé un grand espace neutre avec quelques couleurs...j'aurais évité les deux malheureuses portes qui débouchent face aux vitrages... j'aurais créé des véritables lieux de passage, mettant en valeur cet espace... j'aurais axé ces transitions, j'aurais créé les ouvertures en façade afin que les vues soient encadrées, les circulations soient maîtrisées et l'espace évolutif en terme d'ameublement.... dois-je continuer? Regardez ce projet en neuf, là ou les clients nous ont accordé cette confiance totale et un respect partagé... /construction-d-une-maison-individuelle et ceux-là en grande rénovation, pareil coté confiance...espaces plus petits, mais traités de la même façon, vues, circulation, hauteur de plafond, éclairage.... la-maison-du-bonheur transformation-d-un-hangar-hotel-en-maison villa-miniature Et une transformation d'un espace plus petit que le votre en VEFA, entièrement transformé par ces plafonds, ces éclairages et son mobilier sur mesure afin de le recouper visuellement en 3 espaces liés... amenagement-d-un-vefa-2-3-pieces ce n'est que quelques projets, vous avez aussi 2 avant/après de nos chantiers en cours, qui traitent les mêmes sujets... on ne fait QUE ça... MAIS...si votre permis n'est pas encore déposé, vous pouvez avoir tout ça...De toute façon, quand le plan marche et les espaces sont fluides, on ne se pose pas autant de questions... vous vous devez un peu plus de temps de reflexion. Vous avez forcement un architecte...laissez le (ou la) un peu plus de rennes il (elle) devrait vous aider à trouver les espaces exceptionnels... bon courage, Lynn... Voir plusBesoin d'aide pour aménagement pièce de vie de 50 m2
Commentaires (4)Bonjour Grain de Sel et merci pour vos remarques que je vais reprendre point par point : - tout le mobilier va être renouvelé. Je n'ai là que des meubles qui ont fait leur temps et qui me dépannent en attendant. Pour info, la table et les chaises en place sont les éléments de mon ancien salon de jardin. Je les ai mis là histoire de me faire une idée de la place occupée dans la pièce avec un bel espace repas. - je prends note concernant les poubelles. Je vais réfléchir pour trouver un autre emplacement, car elles sont vraiment très fonctionnelles. - la future table repas, qui aura des rallonges, sera probablement un peu plus petite, donc OK pour 4 chaises au quotidien. Ce sera moins chargé et les autres chaises pourront être stockées. - J'avais également pensé positionner le canapé face à la fenêtre, ce qui permettait notamment de délimiter le salon ainsi qu'un couloir d'accès à la partie nuit. A voir si je peux envisager la TV dans l'angle (pas sûr). - l'idée couleur soutenue sur les deux murs équipés de la cuisine fera partie de ma réflexion finale, lorsque les autres parties de la pièce seront arrêtées côté déco. Deux petites précisions pour la communauté : La pièce est orientée Nord, donc jamais de soleil. L'agencement actuel de cette pièce n'est absolument pas figé. Vous pouvez donc laisser libre court à vos idées. Encore merci à Grain de Sel d'avoir pris le temps de réfléchir et de me faire part de ses remarques.... Voir plus- il y a 2 ans
- il y a 2 ansDernière modification :il y a 2 ans
- il y a 2 ans
- il y a 2 ans
- il y a 2 ans
- il y a 2 ans
- il y a 2 ansSarah Melin a remercié Faustine SIMON / Faustine Décoration
- il y a 2 ansDernière modification :il y a 2 ans
- il y a 2 ans
- il y a 2 ans
- il y a 2 ans

Sponsorisé
Rechargez la page pour ne plus voir cette annonce spécifique











Faustine SIMON / Faustine Décoration