aménagement séjour cuisine 31m2
l'année dernière
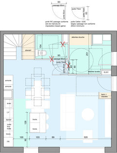
Réponse sélectionnée
Trier par:Plus anciennes
Commentaires (29)
- l'année dernière
- l'année dernière
Discussions associées
Besoin d'aide pour aménager un studio en T2 (31m2)
Commentaires (6)Bonjour Anouch, Je pense que vous pouvez faire un truc hyper chouette dans cet appart. Les lignes rouges sont mises afin d'étayer un design qui se base sur les murs en biais. Coté placard / cuisine, cette ligne pourrait être travaillée à la vertical ET par délimitation au sol / plafond. Un rangement haut en "pont" liera les deux lignes... je pense qu'il faut simplement retirer la porte et son dormant entre l'entrée et le séjour. bon courage, Lynn... Voir plusSalon/salle à manger/ cuisine ouverte 31 m2
Commentaires (6)Bonjour Chris Votre plan n'est pas passé complètement sur votre message ... du coup nous ne voyons pas les ouvertures coté chambre/salon. Effectivement 31 m² pour l'espace salon/salle à manger/cuisine, ce n'est pas très grand. Avez vous aussi les plans de l'étage pour que nous appréhendions la maison dans son ensemble? La chambre en bas avec salle d'eau, c'est votre demande ? Bonne journée, Catherine... Voir plusAménagement studio 31m2
Commentaires (10)Bonsoir. Toujours en termes d'organisation sans intention déco (et en plus inachevé Ikéa est planté !) Pour la salle d'eau : attention, vous pouvez renoncer aux normes PMR MAIS votre solution doit être réversible. Personnellement, j'adopte la solution de Coralie G Puisque vous tenez à votre lit, et bien qu'en général, je n'aime pas morceler les petite surface, je vous propose la solution suivante, avec ou sans séparations (cloison, claustra...) . Vous avez déjà un grand placard pour faire penderie, des meubles de 40 cm en encadrement du lit serviront pour le linge plié (je n'ai pas pu le terminer pour cause de plantage ikéa). Télé (tournable) au pied du lit. Petite table (extensible) dans le recoin de 170 cm Cuisine avec 2 ou 3 petit meubles de 40 cm face à l'espace principal selon vos besoin. . Bonne réflexion.... Voir plusAménager un séjour/cuisine de 31m2
Commentaires (2)Bonjour Yann, Je ne suis pas trop sur que vous allez pouvoir mettre un canapé d'angle. Et tout entre un peu par un chausse pied. Si vous ne voulez pas un ilot fixe avec 2 meubles à tiroirs complémentaires, vous pouvez juste mettre une table normale. J'ai déplacé le frigo de 2 meubles afin de vous permettre un peu de plan de travail. En beige sont les meubles possible de rangement ou des placards prévus. Dans l'entrée, mettez soit des meubles à chaussures, soit une petite commode, je propose un meuble un peu haut type "semainier" pour rallonger le mur de la chambre afin de ne pas coincer le canapé contre le vitrage... En face du canapé jusqu'au frigo, vous pouvez mettre un ensemble mural avec quelques rangements bas, une TV et des étagères ou/ou rangements hauts. La partie verte dans la cuisine est l'emprise du carrelage prévue. Les inconnus (prises, radiateurs, points lumineux, etc) peuvent rendre les solutions infaisables... bien que vous pouvez miroiter le plan d'aménagement du séjour avec le canapé à droite si vous n'ouvrez pas la porte de droite...si vous n'avez pas 2 fauteuils, mais un seul coté façade, vous pouvez sans doute avoir un petit canapé d'angle... bon courage, Lynn... Voir plus- l'année dernière
- l'année dernière
- l'année dernière
- l'année dernière
- l'année dernière
- l'année dernière
- l'année dernière
- l'année dernière
- l'année dernière
- l'année dernière
- l'année dernière
- l'année dernière
- l'année dernière
- l'année dernière
- l'année dernière
- l'année dernière
- l'année dernière
- l'année dernière
- l'année dernière
- l'année dernière
- l'année dernière
- l'année dernière
- l'année dernière
- l'année dernière
- l'année dernière
- l'année dernière

Sponsorisé
Rechargez la page pour ne plus voir cette annonce spécifique














I F Rénovation