Bonjour à toutes et tous,
Je viens de devenir propriétaire d'une maison datant d'avant 1950.
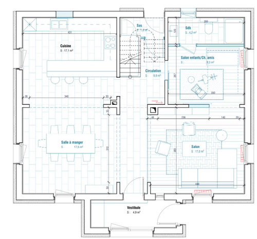
Le RDC est donc cloisonné, j'ai pour projet de faire tomber les murs (tout est déjà bouclé avec le maçon/ingénieur).
Le dilemme est le suivant le plan imaginé par l'archi ne nous convient pas car notre salle d'eau (WC/douche donne dirrectement sur le séjour. Nous essayons de trouver un moyen de faire autrement mais je n'ai pas d'idée. Je suis donc preneuse.
Je précise deux choses :
- Le bureau/salle de jeu ne se fera pas ca nous allons casser le mur entre le salon et cette pièce
- Il y a un sas au rdc avec une porte car la cave qui se trouve sous l'escalier de gauche est commune au deux autres logement du terrain.
La priorité est au minimum le toilette nous avons déjà une sdb a l'étage.
Vous trouverez le plan ci-dessous
Merci d'avance pour votre aide
Perrine
Atelier Sénic
Perrine SteinbergerAuteur d'origine
Discussions associées
Le dilemme d'un salon sans tête sans queue ! SOS
Q
dilemme déco salon et Sam
Q
Dilemme agencement salon/salle à manger
Q
dilemme deco salon
Q
Atelier Sénic
I F Rénovation
Pauline D.
julie Maretraite
I F Rénovation
Thomas Lanobel
Perrine SteinbergerAuteur d'origine
Atelier Sénic