Réaménagement T2 mal agencé en ... T1bis
il y a 9 mois
Réponse sélectionnée
Trier par:Plus anciennes
Commentaires (23)
- il y a 9 moisDernière modification :il y a 9 mois
- il y a 9 mois
Discussions associées
Rénovation T2 - 50 m2
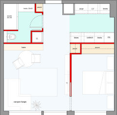
Commentaires (18)On ne sait jamais...mais voila...mes excuses déjà à votre archi... Votre salle d'eau et votre cuisine semble avoir les même dimensions (hors LL). Avez vous songé de mettre la cuisine dans la salle de bains en ouvrant un peu la cloison? Retournez le placard afin de "cacher"un peu cette cuisine, gardez un bout d’îlot pour la convivialité, et intégrer une belle salle de douche avec le wc? Votre salon devient nettement plus grande et polyvalente, avec un espace salon, un espace table et un espace ordi. En vert les pièces d'eau (cuisine à gauche et sdb à droite) et en marron les rangements d'entrée. Un canapé d'angle (mais qui assume la télé sous les fenêtres) une table basse, un fauteuil et une table avec un banc et 2-3 chaises. le plus un bureau avec étagères.... Voir plusRéaménagement T4 achat VEFA
Commentaires (6)Bonjour. : Faire une chambre parentale avec un coin d’eau (soit la chambre 2 soit la chambre 3). Il faudra supprimer un mur. La chambre 2 ne s'y prête pas (ni arrivées, ni évacuation d'eau) Deux chambres s'y prêtent, la 1 et la 3. Dans les 2 cas, il ne s'agit pas de "supprimer le mur" mais de déplacer une porte. Une remarque, la cuisine étant petite, le lave linge semble avoir sa place prévue dans la salle de douche, à droite du lavabo. Transformer cette pièce d'eau en chambre parentale, c'est renoncer à mettre le lave linge la nuit (sauf si votre modification des WC est conforme et acceptée) réduire la salle de bain au profit de la chambre 1 ou laisser la sdb en l’état et rajouter un wc Désolée, mais on "ne rajoute pas" un WC comme ça. Il doit impérativement être évacuable vers une gaine technique prévue à cet effet (eaux noires). Est-ce le cas de la gaine technique de cette salle de bain ? Quant à réduire cette pièce, la gaine technique faisant relief, il vous faudra changer l'emplacement de la tête de lit (éclairage) et donc faire déplacer le radiateur. Et ça devra être facilement réversible (simple cloison sans élément entre chambre et salle de bain) réduire le wc a l’entrée de fait à créer une buanderie Vous pouvez, en signant une décharge PMR, mais, la solution retenue doit être réversible (voir ci-dessous) modifier le sens de certaines portes. Tout n'est pas permis. Les pièces d'eau doivent s'ouvrir vers l'extérieur pour des raisons de sécurité. . Deux possibilité de suite parentale : Le commercial m’a dit que je devais signer une décharge pour les normes PMR. http://www.eti-construction.fr/accessibilite-des-logements-neufs-des-decharges-a-utiliser-raisonnablement/ https://www.philippe-petit-promoteur.com/quoi-de-neuf/92-simplification-de-la-reglementation-pmr.html... Voir plusTransformer T1bis en T2
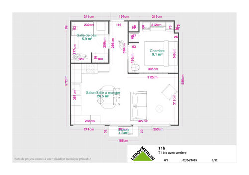
Commentaires (16)Ouf! Il me semblait bien que dans la façade rouge, il y a la fenêtre indiquée que j'ai "ajoutée" pour l'espace lit... Et pourquoi un T1bis et non pas un T2 "légalement"? Car certains régles exigent qu'une chambre fasse 2m20 minimum de large et 9m² minimum. Ca n'empeche pas la création de plus petite chambre, ni une décote au niveau d'une vente, car in finé, on achéte une superficie globale. Elodie Tls , bon courage, Lynn... Voir plusRéaménagement 70m2
Commentaires (36)Bonjour, Merci pour vos commentaires. J'aurais aimé des tiroirs partout mais il a fallu faire des arbitrages pour le budget ! Je reviens vers vous pour des questions sur le sol, peut-être certain(e)s d'entres vous ont des retours d'expérience. Je souhaitais à la base mettre du stratifié bois dans la partie séjour et du carrelage dans la partie cuisine. Seulement j'y vois deux bémols : - le carrelage, c'est froid l'hiver. - la différence de niveau/la présence d'une barre de seuil. Esthétiquement je préférais que la jonction des différents sols se fasse juste derrière le bar, soit au niveau des tabourets (comme sur les projections du cuisiniste). J'ai peur qu'à la manipulation des tabourets, on tape dans la barre de seuil et que cela soit pénible à l'usage. Je ne connais pas bien les différentes barre de seuils qui peuvent exister. Y'en a-t-il des très plates pour minimiser le risque de se cogner dedans ? Je voyais d'autres solutions : - décaler la jonction carrelage/stratifié au ras du meuble casserolier sur lequel est adossé le bar. La barre de seuil est décalée et les tabourets sont donc sur le stratifié. Mais je suis moins convaincue par l'esthétique. - partir sur du tout stratifié ! Ainsi l'inconvénient du carrelage froid est écarté et pas de problème de barre de seuil (le stratifié serait posé dans le sens de la largeur). Mais, je suis perdue sur la pose du stratifié sous les meubles de la cuisine ! En effet, les grandes enseignes (Saint Maclou, Leroy Merlin...) déconseillent de poser les meubles sur le stratifié (même pour les modèles adaptés pour la cuisine). Il y aurait des risques pour la dilatation. Il faudrait donc selon eux soit faire arrêter le strat devant les pieds des meubles de cuisine soit faire des trous au niveau de pied. Mon cuisiniste lui me dit qu'il n'y a pas de risque de poser le stratifié sous la cuisine et aussi que, en posant le stratifié après la cuisine, il y a des risques que le lave vaisselle soit bloqué si on devait le sortir. Bref, je suis perdue ! > carrelage + stratifié, avec barre de seuil à quel endroit et pour quel résultat ? > tout stratifié, posé avant ou après la cuisine ? Je précise qu'à présent, le sol dans tout l'appartement est un lino posé directement sur la dalle béton. Merci d'avance, Julie... Voir plus- il y a 9 mois
- il y a 9 mois
- il y a 9 mois
- il y a 9 mois
- il y a 9 mois
- il y a 9 moisDernière modification :il y a 9 mois
- il y a 9 mois
- il y a 9 mois
- il y a 9 mois
- il y a 9 mois
- il y a 9 mois
- il y a 9 mois
- il y a 9 mois
- il y a 9 mois
- il y a 9 moisDernière modification :il y a 9 mois
- il y a 9 mois
- il y a 9 mois
- il y a 9 mois

Sponsorisé
Rechargez la page pour ne plus voir cette annonce spécifique

















TOUCH' DECO