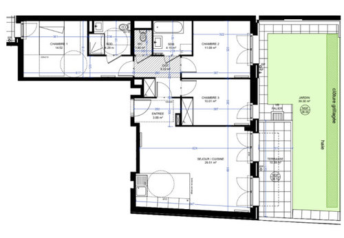
Optimisation T4 en VEFA
il y a 10 mois
Réponse sélectionnée
Trier par:Plus anciennes
Commentaires (8)
- il y a 10 mois
- il y a 10 moisDernière modification :il y a 10 mois
Discussions associées
Avis T4 en VEFA
Commentaires (27)On finit par se demander dans quelles conditions sont dessinés les plans des appartements en VEFA ou autre d'ailleurs.... j'imagine que ce sont aussi des architectes qui élaborent des plans à l'origine de ces projets? Soit ils débutent, soit ils n'ont pas le temps de trop y réfléchir, en tous les cas ils ont des contraintes particulières pour arriver à de telles choses aussi peu pratiques. C'est très bien que les appartements soient accessibles aux PMR mais les promoteurs doivent mettre aussi de côté leurs appétits financiers exagérés afin de proposer des lieux de vie dignes de ce nom. Je loue un appartement accessible aux PMR, mais l'aménagement de la cuisine est impossible, l'entrée est ridicule, la salle de bains une miniature, un escalier mal dessiné, mon compagnon qui fait 1,85m ne passe pas sous le tournant dans se cogner dans la dalle béton...etc! Et pas de douche au RDC, donc il est faussement adapté aux PMR!!!!! Conclusion: vive Lynn!... Voir plusVEFA Aménagement pièce à vivre T4 en duplex
Commentaires (8)Bonsoir, je reviens sur mon post suite à nos visites avec des cuisinistes et deux configurations reviennent pour l'implantation de la cuisine : soit comme ce que vous avez proposé Lynn, une implantation de la table en longueur, soit en refermant la cuisine en U. J'ai joint les deux schémas. A la place d'une table, nous pensons nous orienter vers un ilot extensible (ilot de longueur 196, extensible jusqu'à 262, incluant un meuble de rangement de 60). Les pointillés en rouge représentent l'extension possible. J'ai aussi dessiné l'espace pris par l'escalier par des lignes noires (car l'escalier de mon logiciel n'est pas adaptable comme je le souhaite). Nous avons du mal à nous positionner car dans le premier schéma, nous craignons que le passage vers le salon soit moins fluide, que la pièce paraisse moins épurée en arrivant et une certaine gêne en descendant des escaliers. Dans le second schéma, nous craignons une perte d'espace dans le U et une gêne lorsque l'ilot est déployé avec son extension par rapport à l’escalier. Difficile de se projeter sur plan de l'espace réel. Quel est votre avis entre les deux plans? Merci, Feïm... Voir plusAchat en VEFA - modifications T4 en T3?
Commentaires (1)Bonsoir, Je peux donner un avis rapide sur vos plans. Ceux du bas... Je conserverai la cuisine à sa place, car si vous la mettez dans la chambre, la récupération de l'ancienne cuisine comme chambre pour la revente (si vraiment 2m17) n'est pas vraiment gérable. Du coup, je mettrai la cuisine la plus facile à "modifier" sans trop de coûts afin de refermer l'ancienne chambre. Pour l'étage... Le seul plan qui semble correspond à vos désires, est la V2, mais pas très habitable. Vous créer beaucoup de couloirs et de passages super étriqués. Un essai pour l'étage? Mettez des portes coulissantes afin d'avoir un peu plus de place. bon courage, Lynn... Voir plusAménagement d'un T4 en VEFA - Lost in aménagement :-)
Commentaires (7)Bonjour djimbo ; Tout d’abord félicitation pour votre nouvelle acquisition ! Afin de vous aider dans votre démarche de réaménagement vous trouverez ci-après 2 propositions. Proposition 1 : Elle repend vos premières idées et nous avons pour ce faire : - supprimé la 3ème chambre dont vous n’aviez pas réellement besoin. - gardé l‘emplacement des 2 chambres et de la SDB - Déplacé la SDE invités à gauche de l‘entrée en créant sur la droite un espace placard qui peut devenir un espace bibliothèque - Le lave-linge a été mis dans la SDB avec une évacuation qui pourrait déboucher sur la gaine se trouvant dans la chambre 2 (si c’est possible) - Une double vasque a été prévue avec éventuellement une douche à l‘italienne (à vérifier si la profondeur sous revêtement le permet car il y a des normes_un détail vous est transmis aussi afin de mieux comprendre) ainsi qu’une baignoire - A noter que les 2 WC sont accolés au gaines existantes et que les mécanismes de chasse sont encastrés Détail douche à l'italienne Proposition 2 : Cette proposition chamboule toutes les dispositions du début en inversant la partie jour et la partie nuit, tout en articulant la cuisine et les SDB autour des gaines (il faut tout de même vérifier tout cela avec le promoteur et puis tout dépend aussi de l’état d‘avancement de votre projet) Cette proposition peut vous sembler irréalisable ou même ne répondant pas à vos attentes, mais je tenais tout de même à la soumettre car il faut parfois bouleverser certaines idées pour aboutir à des résultats inattendus. Si vous avez besoin n’hésitez surtout pas. En espérant avoir pu vous aider. Myriam... Voir plus- il y a 10 mois
- il y a 10 mois
- il y a 10 mois
- il y a 10 mois
- il y a 10 mois

Sponsorisé
Rechargez la page pour ne plus voir cette annonce spécifique




I F Rénovation