Conseils aménagement pièce de vie
Bonjour à tous,
Nous avons acheté une maison des années 1930 à rénover entièrement, en banlieue parisienne. L'aménagement des chambres est assez simple. En revanche, la partie pièce de vie est un vrai casse-tête et je viens solliciter votre aide pour nous aider à trouver la meilleure solution.
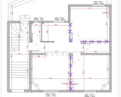
Comme vous le voyez sur le plan ci-dessous, le rez-de-chaussée est actuellement divisé en plusieurs petites pièces.

On ne touchera pas au hall d'entrée, avec les escaliers. En revanche, à droite, tout est possible avec des IPN. Nous aimerions ouvrir le plus possible, pour installer une cuisine, une table à manger et un salon. Dans l'idéal, nous aimerions que la cuisine puisse être fermée par une verrière.
Voici l'aménagement le plus probable pour le moment. Je ne suis pas très satisfait de la petite pièce appellée "SALON", qui servira de bibliothèque et de coin pour les enfants, mais pour l'instant impossible de trouver un meilleur aménagement. Si certains d'entre vous ont des suggestions, je serai ravi de les lire :).

Merci beaucoup pour votre aide !
Commentaires (36)
- il y a 3 mois
Bonjour,
Afin de pouvoir réfléchir au mieux à l'agencement de cette pièce de vie, pourriez-vous
préciser quelques points ?
. combien de personnes vivent dans la maison,
. le plan semble montrer un espace TV ?
. une table repas, (pour combien de convives),
. si certains meubles doivent être conservés (leurs dimensions),
. la présence éventuelle d'une ou plusieurs cheminées,
. ainsi que tout autre critère important (rangement, etc...),
Pourriez-vous également indiquer ce que représente l'élément signalé par une flèche rouge sur la copie de votre plan ?
Merci d'avance pour ces précisions.
Nico
Auteur d'origineil y a 3 moisDernière modification :il y a 3 moisBonjour Brigitte,
Merci beaucoup de vous être penchée sur le sujet !
Effectivement, quelques précisions s'imposent :
- Nous sommes 4, deux adultes et deux enfants.
- Nous souhaitons installer un poêle, mais pas d'espace TV. Il y aura probablement un projecteur et un écran accoché au plafond.
- Il faut effectivement une table repas pour 6 personnes.
- Pas de meuble à conserver
- Pas de critère de rangements, nous nous adapterons selon le plan choisi. L'élément au bout de la flèche rouge est un placard, comme les autres éléments marqués d'une croix en haut à gauche de la partie cuisine. Mais encore une fois, c'est une proposition mais pas une nécessité.
J'espère avoir répondu à toutes vos questions !Discussions associées
Conseils aménagement pièce de vie de 40 m²(cuisine, salon)
Q
Commentaires (0)Bonjour, Pouvez-vous m'aider à aménager la pièce de vie de notre future construction? Merci pour vos retours. Bien cordialement.... Voir plusBesoin de conseils aménagement pièce de vie
Q
Commentaires (2)Vos avis sur l'agencement du séjour ? Il devra contenir une canapé son meuble TV et un ensemble table et chaise de salle à manger + buffet ou rangements...... Voir plusHello, Besoin de conseil aménagement pièce de vie/cuisine ouverte
Q
Commentaires (0)Bonjour, je viens d'acheter dans le neuf et je souhaiterai avec vos conseils d'aménagement de l'espace de vie ! D'avance merci de votre aide !... Voir plusConseil aménagement pièce de vie de 24m2
Q
Commentaires (3)Bonjour Karine, Vous pourriez rallonger le mur du frigo pour avoir un mur assez long pour y adosser votre meuble TV ( plein ou claustra pour laisser passer la lumière de la cuisine). Comme ceci, vous pourriez installer le canapé en face, contre le mur, avec une table basse style gigogne ou ronde pour éviter les angles dans le passage ! Cela devrait vous laisser de la place pour ajouter un ilot coté cuisine, coller ou non au mur du fond (mais il y a le radiateur...) et ainsi mettre une petite table carré ou ronde pour le quotidien devant la porte fenêtre, à laquelle vous pourriez rajouter des rallonges pour recevoir vos invités. En bas du plan, devant le mur où vous avez dessiné le meuble télé, vous pourriez soit rajouté un fauteuil, ou un buffet bas ou des étagères. Bel aménagement Stéphanie... Voir plus- il y a 3 mois
Sommes-nous contraints pour l'emplacement du poêle, (par rapport à l'étage, conduit de cheminée existant) ?
Auriez-vous également des indications sur le style que vous souhaitez donner à la pièce, éventuellement avec des photos d'inspiration ?
Nico a remercié Brigitte Nico
Auteur d'origineil y a 3 moisDernière modification :il y a 3 moisDans l'idéal, le poêle doit se trouver dans un des coins situés en bas du séjour. Il y a un conduit de chaque côté. Mais il est possible de dévier le conduit donc ce n'est pas obligatoire.
Nous voudrions une pièce lumineuse, claire, avec des matériaux naturels (bois/pierre/briques...). Il y a déjà un parquet ancien au sol. Les meubles seront un mélange de meubles anciens et de mobilier moderne design.
NB : nous sommes obligés de conserver au moins un poteau à peu près au centre de la pièce (il figure sur notre plan) pour des soucis de portance.
Une photo ou deux d'inspiration si cela peut vous aider :

- il y a 3 mois
Bibliothèque et coin bureau?
Aucun rangement au rez de chaussée? (ou dans le hall peut être?) Les rangement c'est super important à penser avant: Par exemple un espace pour ranger l'aspirateur, balais et j'en passe..., des rangements pour les manteaux , chaussures , les cartables un petit meuble pour les clés , tout ce qu on ramène du dehors et qu'on a pas envie de monter dans les chambres en arrivant.
Pensez à l'inconvénient d'avoir la porte des WC qui donne sur le salon: bruits et gêne Donc peut être prolonger un peu le mur du salon comme il est à l'origine?
Cuisine ouverte = odeurs de cuisine dans toute la maison (réfléchir bien avant de casser des murs)
Vous avez l intention de supprimer les cheminées? Si c'est le cas je ne vous le conseille pas c'est le charme des vielles maisons
Nico a remercié Elisa COUSIN Nico
Auteur d'origineil y a 3 moisBonsoir Elisa,
Merci pour ces conseils qui sont précieux !
Pour l'instant, nous avons prévu des rangements dans l'entrée pour tout ce qui est manteaux et sacs. Balais et aspirateurs seront à la cave, sauf peut-être une partie dans un placard de la cuisine.
En ce qui concerne la cuisine, je suis d'accord avec vous. Ca fait du bruit aussi ! C'est pour ça que nous aimerions pouvoir la fermer avec une verrière quand nécessaire.
Pour les WC, nous avons identifié le problème. Effectivement, allonger un peu le mur existant permettrait de créer un petit "sas", c'est une bonne idée. Mais je me demande si cela ne "casse" pas un peu l'aspect "grande pièce de vie" ?
Enfin, pour les cheminées, elles ont malheureusement étaient retirées avant que nous achetions. Mais les conduits sont toujours là !Nico
Auteur d'origineil y a 3 moisIncroyable ! Merci beaucoup Brigitte pour ces visuels 3D. Je ne m'attendais pas du tout à ça, c'est super car l'on peut se projeter dans notre futur chez nous et valider nos idées. Qui étaient les bonnes j'ai l'impression, car personne ne voit d'autre façon d'aménager les lieux.
Mettre des verrières tout autour de la cuisine est une excellente idée pour donner une impression. Reste à le faire chiffrer pour voir si le coût n'est pas prohibitif.
Nous comptions aussi mettre le poele à cet emplacement et votre visuel valide notre idée. Peut-être mettrons-nous deux canapés face à face, plutôt qu'un meuble, mais c'est un détail.
Encore une fois, merci beaucoup pour ces idées et ces visuels !- il y a 3 mois
Bonjour,
Bonjour Nico,
Je suis ravie que ma proposition vous plaise, et vous avez raison : le rendu 3D aide vraiment à mieux se projeter dans l'espace.
J'aimerais aussi savoir ce que vous pensez de l'aménagement du petit salon de lecture et de l'îlot dans la cuisine ?
Pour les verrières, comme la maison est à rénover entièrement, l'entreprise qui interviendra pour vos travaux pourra certainement s'en charger (et vous pourrez peut-être même négocier cette prestation).
Les prévoir dès maintenant vous reviendra sûrement moins cher et plus simple que de les réaliser dans un second temps.
- il y a 3 mois
J'oubliais, faites aussi attention à la distance entre votre poêle et vos meubles. Pour éviter tout risque d'incendie, il convient de laisser un écart de plus d'un mètre entre votre équipement de chauffage et vos meubles. C'est pour cette raison que j'ai opté pour un canapé d'angle.
- il y a 3 mois
Pour vous aider dans votre décision concernant les verrières, trois visuels :
. un visuel sans verrière
. deux visuels avec verrières

Sans

Avec

Nico
Auteur d'origineil y a 3 moisL'aménagement du petit salon que vous proposez est très intéressant. Nous pensions aussi installer des bibliothèque, mais les meubles bas avec rangement sont une option, mais ils laissent moins de latitude que des meubles de rangement modulaires que nous pourrions plus tard retirer pour donner à la pièce un autre aspect.
L'ilôt de la cuisine est une bonne option, notamment pour que l'on puisse tout de même un peu s'asseoir dans la pièce. Il faudrait comparer avec la possibilité avec des meubles classiques qui font le tour de la pièce sous les verrières.
Merci pour les projections avec et sans verrière. C'est sur que, si cela est possible, c'est mieux avec !- il y a 3 mois
Je profite d'une insomnie :) pour vous proposer une autre possibilité, en bref avec quelques images :

Je grignote légèrement le placard, je déplace la porte pour isoler les toilettes.















- il y a 3 mois
Bonjour,
Après quelques heures de sommeil :D, je voulais vous présenter plus en détail ce nouvel agencement.Le décalage de la porte venant de l'entrée, isole désormais les toilettes, la suppression de la portion de cloison de gauche, permet d'ouvrir et d'agrandir la pièce de vie.
On obtient ainsi un véritable espace salle à manger, directement relié à la cuisine.
En réduisant légèrement le placard qui séparait la cuisine du salon, nous avons gagné en surface de plan de travail et en confort pour le coin snack.La partie verrière, un peu diminuée (moins €€€ peut-être), s'ouvre directement sur la salle à manger.
Le déplacement de la salle à manger libère un salon plus spacieux, où l'on peut installer deux canapés face à face, comme vous le souhaitiez.Le poêle trouve ainsi sa place au centre de la pièce, ce qui garantit une meilleure diffusion de la chaleur.
Le conduit sera posé en applique grâce à un kit ventouse (cf. photo).
Petite précision technique : le type de conduit en ventouse horizontale n'est compatible qu'avec un poêle à granulés de moins de 70 kW.
J'espère que c'était bien ce que vous envisagiez, car dans le cas contraire, cela pourrait remettre en question la nouvelle disposition.
L'agrandissement de la pièce permet également de créer un deuxième espace, dédié à la lecture et aux enfants, prévoir un tapis moelleux pour les moments de jeux.De grandes bibliothèques viendront s'y intégrer, posées sur un socle de rangements bas fermés, toujours très pratique.
Le vidéoprojecteur pourra y être installé, avec l'écran fixé au plafond et placé sur le mur opposé. (En espérant que le luminaire en suspension ne viendra pas gêner la projection !).
J'espère que cette nouvelle disposition vous apportera encore plus de satisfaction !

- il y a 3 moisDernière modification :il y a 3 mois
De grandes bibliothèques viendront s'y intégrer, posées sur un socle de rangements bas fermés, toujours très pratique.
Le vidéoprojecteur pourra y être installé, avec l'écran fixé au plafond et placé sur le mur opposé. (En espérant que le luminaire en suspension ne viendra pas gêner la projection !). Découvrez plus d'idées ici
L'idée des bibliothèques intégrées m'a beaucoup plu, cela crée immédiatement une atmosphère chaleureuse. Mais peut-être faudrait-il prévoir un éclairage intérieur pour plus de commodité ? - il y a 3 mois
@Marie Marchal,
Merci beaucoup pour votre remarque ! Vous avez tout à fait raison, l'éclairage intérieur apporte énormément à l'ambiance et à la mise en valeurs des objets exposés.
Sur ces visuels je me suis concentrée surtout sur la disposition et l'ambiance générale, mais bien sûr, un éclairage indirect intégré dans la bibliothèque est essentiel.
J'y accorde beaucoup d'importance, car il participe vraiment à créer une atmosphère chaleureuse :)
Nico
Auteur d'origineil y a 3 moisBonjour à tous,
Merci Brigitte pour toutes ces propositions nocturnes. C'est une proposition alternative intéressante, mais qui pose quelques problèmes : il n'est pas possible de déplacer la porte venant de l'entrée car le mur est extrêmement épais et ce serait de coûteux travaux pour un gain mineur. Dans l'idéal, nous aurions aimé pouvoir accéder aux toilettes depuis le hall d'entrée, mais le jeu (et le prix) n'en vaut pas la chandelle.
Par ailleurs, en ce qui concerne le poêle, cette façade de la maison donne directement sur la rue. Impossible donc d'y faire sortir un tuyau ! Il faut faire en sorte que le conduit du poêle passe par l'une des conduites qui existent déjà dans les coins inférieurs de la pièce.
En revanche, la possibilité d'ouvrir ce qui est appelé "salon" sur notre plan pour en faire une petite salle à manger nous a traversé l'esprit. Mais nous avions l'impression que cela nous empêcherait d'agrandir la table pour accueillir des repas avec 10 ou 12 personnes, à moins de vraiment bouleverser l'agencement du salon pour l'occasion.
@Marie Marchal, effectivement l'éclairage dans la bibliothèque me semble indispensable, qu'elle se trouve dans la pièce principale ou dans l'alcôve de lecture !- il y a 3 mois
Bonsoir Nico,
Merci beaucoup pour toutes ces précisions, je comprends mieux vos contraintes et vos attentes.Pour la porte, en effet, il n'est pas nécessaire de se lancer dans des travaux lourds et coûteux : je l'ai donc replacée comme à l'origine.
Concernant le poêle, je n'avais pas en tête que la façade donnait sur la rue. Je l'ai donc repositionné comme sur la première proposition. J'ai néanmoins conservé à sa gauche, le meuble que vous ne souhaitiez pas initialement, car je me disais qu'il pourrait être utile en fonction de bar pour vos réceptions (verres, bouteilles, etc...). Je n'ai pas vu d'autres aménagements pertinents pour ce mur, d'autres bibliothèques auraient alourdi l'ensemble.
Pour la salle à manger, je n'avais pas anticipé la possibilité de recevoir jusqu'à 12 convives, j'étais restée sur l'idée de 6 personnes. La table reste donc comme sur la premièreproposition : je l'ai agrandie à 2.20 x 1.00 m, ce qui permet d'installer 10 personnes, et jusqu'à 12 en se serrant un peu.
Dans le salon, j'ai placé deux canapés face à face. Sur le plan, ils mesurent 112 cm de profondeur, mais il sera sans doute préférable de choisir des modèles moins profonds pour conserver une distance idéale (environ 1.50 m) entre les deux.Cela assure à la fois le confort de la conversation et l'espace nécessaire pour les tables basses que j'ai choisies rondes, afin de garder de la fluidité.
J'ai également ajouté un banc en assise supplémentaire : il est moins imposant qu'un fauteuil, permet de s'asseoir dans les deux sens (notamment pour profiter du feu du poêle) et s'intègre discrètement à l'ensemble.
La bibliothèque a retrouvé sa place dans le salon de lecture, comme prévu initialement. Une chaise longue pourrait être envisagée à terme, lorsque l'espace de jeu des enfants pourra évoluer.Une question reste en suspens : le positionnement des canapés est-il confortable pour visionner un film sur l'écran fixé au plafond, ou cela pourrait-il poser un problème selon vous ?
Enfin, j'ai revu l'accès à la cuisine et modifié le sens et la profondeur du snack, pour qu'il s'oriente vers la pièce de vie, plus agréable pour les déjeuners.
J'espère que cette nouvelle version correspondra davantage à vos besoins, et je reste à l'écoute pour ajuster si nécessaire.








- il y a 3 mois
On peut également disposer les canapés de cette manière, si cela ne vous ennuie pas de tourner le dos au poêle !


Nico
Auteur d'origineil y a 3 moisBonjour Brigitte,
Merci beaucoup pour ces nouvelles projections. Je pense que nous allons effectivement nous projeter vers un aménagement de ce type ! On postera des nouvelles de l'avancement des travaux sur ce fil. Et peut-être auront nous encore besoin de quelques conseils.
Merci encore
- il y a 3 mois
Bonjour Nico,
Je suis ravie que ces projections vous aident à avancer dans votre réflexion. N’hésitez surtout pas à partager des nouvelles et des photos de l’évolution, ce serait très sympa de voir le projet prendre forme !
Et bien entendu, je reste disponible si vous avez besoin d’autres conseils en cours de route. ;)
Nico
Auteur d'origineil y a 2 moisBonjour !
Nous vous avions présenté notre projet d'aménagement pour notre pièce de vie dans une maison des années 30 il y a quelques semaines. Merci pour vos précieux conseils qui nous avaient tant aidés !
Malheureusement, nous venons d'apprendre une mauvaise nouvelle : il sera beaucoup compliqué et coûteux de casser l'un des murs porteurs prévus (voir plan ci-dessous). Nous devons donc repenser l'aménagement. Nous avons déjà imaginé des choses mais vous aviez été d'une telle aide la dernière fois que nous vous sollicitons de nouveau (pour ceux que cela amuse :)).
Pour rappel, dans cette grande pièce, vous voulons mettre une cuisine, une table pour manger et un salon. Ci-dessous, vous trouverez le plan des lieux avec les murs qui seront détruits (pour de bon cette fois)
Pour l'instant, vous avions pensé à l'aménagement ci-dessous. Qu'en dites-vous ? Avez-vous une meilleure idée de disposition ?
Merci pour votre aide !
- il y a 2 mois
Bonjour !
Merci pour les nouvelles, même si ce n’est pas forcément ce que vous espériez 😕 C’est chouette de voir que le projet avance quand même !
Dans la mesure ou le mur reste en place, le pilier entouré en rouge va donc être supprimé, et l’IPN serait prolongé jusqu’au mur (en vert) ?

Nico
Auteur d'origineil y a 2 moisOn ne sait pas encore ! Le bureau d’etudes passe la semaine prochaine pour etudier la question. Mais c’est une possibilité oui.
La grande question est aussi de savoir si la table peut tenir là où on lˋenvisage sans trop boucher l'entrée de la cuisine et du salon…
- il y a 2 mois
Bonjour !
Voici en images un nouvel agencement qui reprend vos idées, en tenant compte des dernières contraintes. (Je n'ai pas tenu compte du pilier, en espérant qu'il pourra bien être supprimé).
J’ai simplement déplacé un peu le canapé d’angle, car je le trouvais un peu “caché” dans le recoin.Pour donner plus de vie et de convivialité à l’ensemble, j’ai ajouté une grandebibliothèque derrière le canapé : cela permet de le ramener vers le centre de la pièce, de créer une ambiance plus chaleureuse, et en bonus, elle pourra aussi accueillir le vidéoprojecteur.
La table repas reste à l’endroit que je vous avais suggéré dans une version précédente, c’est toujours, selon moi, l’implantation la plus logique. Le seul point qui me gênait un peu, c’est la proximité avec les toilettes. Comme il n’est pas possible de les déplacer, je me dis qu’il serait intéressant de les isoler visuellement et un peu acoustiquement :soit en ajoutant un doublage léger,
soit avec des panneaux décoratifs acoustiques finition bois, plus fins qu’un doublage, mais qui peuvent donner un rendu sympa (à condition d’aimer le style bien sûr).
Pour la cuisine, ici deux options :
Dans la première, un petit retour près du four pour faciliter la sortie des plats chauds, surmonté d'une verrière qui apporte une touche décorative et délimite la cuisine avec élégance.
Dans la seconde, un îlot central (140x100) sans snack cette fois, pour garder une bonne circulation. Les éléments bas à droite sont remplacés par des colonnes peu profondes (40 cm), très pratiques pour ranger la vaisselle proche de la table.








Avec un îlot central




Pensez-vous que vous pourriez vousprojeter dans cette version ?Bon dimanche !
Nico
Auteur d'origineil y a 2 moisBonjour Brigitte !
Cela nous fait plaisir d'avoir un retour de votre part, vous avez déjà été d'une grande aide avec le premier projet.Merci pour ces nouvelles projections, qui utilisent finalement mieux l'espace que la première solution que nous envisagions.
Pour répondre à quelques unes de vos interrogations, le pilier que vous avez supprimé restera et nosu comblerons certainement le trou laissé par la porte existante. Le mur sera donc plus long que dans vos images 3D.
Nous avions collé le canapé contre le mur et envisagé une bibliothèque de l'autre côté parce que nous avons des enfants et que nous voulions leur laisser un espace pour jouer du côté de la bibliothèque.
En ce qui concerne la cuisine, le petit retour pour desservir le four nous semble être la meilleure idée pour conserver une bonne circulation dans la pièce, même avec quelques enfants dans les pattes !
Merci une nouvelle fois de nous aider à nous projeter alors que nous devons changer de projet en cours de route. Cela permet de voir concrètement un nouvel aménagement qui donne envie, alors que nous étions très déçus lorsque nous avons appris que nous ne pouvions pas casser ce mur porteur.
N'hésitez pas à nous poser d'autres questions si vous pensez que la longueur du mur (avec le pilier intégré) change la donne pour l'organisation.
A bientôt !- il y a 2 mois
Bonjour
Pourquoi pas laisser la bibliothèque comme le propose Brigitte derrière le canapé, mais le décaler encore plus du mur pour laisser place à un grand espace de jeu pour les enfants.
Cela aurait comme avantage de cacher (hors d’une vue directe) le bazar des jeux en cours.
Peut être prévoir sous la bibliothèque (sur toute la longueur du mur) des rangements plus profonds pour y glisser des caisses ou paniers pour les jouets.
Une hauteur de 40 cm serait idéale pour servir, au choix d’assise ou de surface de jeux à hauteur d’enfants.
Une hauteur de 40 centimètres pour former une assise sur toute la longueur - il y a 2 mois
Plutôt que combler le trou laissé par la porte, faites en une fenêtre en reprenant les motif des claustras de la cuisine pour donner une jolie perspective.
- il y a 2 mois
Ha ha ha, @Olivier Henniart, j’étais justement sur le point d’envoyer ces visuels ! On est sur la même longueur d’onde, les grands esprits se rencontrent, dit-on 😉
Bonsoir Nico, ce que vous aviez imaginé sur le papier pouvait effectivement être une piste intéressante. Mais une fois mis sur plan, on voit que ça ne colle pas tout à fait : les circulations deviennent un peu serrées et l’équilibre de l’espace s’en trouve un peu perturbé.
En revanche, faire un rappel de la verrière de la cuisine pour combler partiellement l’ouverture me semble être une excellente solution (idée que j’avais d’ailleurs commencé à modéliser, le temps que @Olivier la formule par écrit 😄).
Cela permet d’avancer encore un peu plus le canapé, de dégager de l’espace pour les enfants, et d’obtenir un vrai coin salon, bien orienté pour regarder un film, tout en conservant le poêle à sa place initiale.
Sur le premier visuel, j’ai représenté votre idée de départ, pour illustrer pourquoi elle me semble difficile à concevoir :- le canapé se retrouve mal orienté,
- le poêle est bien trop proche du mobilier (idéalement, on laisse au moins 1 mètre autour),
- et l’ensemble du salon paraît un peu “ramassé”, avec une circulation peu fluide et un espace mal équilibré.
Sur le second, la configuration que je recommande, plus fluide et équilibrée.

- il y a 2 mois
Sur un autre visuel, j’ai testé l’idée de fermer complètement le passage.
À mon sens, ce n’est pas la meilleure option : cela rallonge visuellement le mur et déséquilibre un peu la perception des volumes.
On a l’impression que la cuisine “gagne du terrain” sur la salle à manger, ce qui bouscule la lecture des espaces et réduit la sensation d’ouverture entre les deux zones.
Le rappel de verrière me semble donc le meilleur compromis : il marque la séparation tout en conservant une continuité visuelle et de la légèreté. Cela permet de structurer sans cloisonner, un bon équilibre entre esthétisme et fonctionnalité

Sur un dernier visuel, j’ai encore légèrement décalé le canapé afin de créer un bel espace entre celui-ci et la bibliothèque, dédié au coin jeux des enfants.
J’ai même ajouté quelques silhouettes d’enfants pour mieux visualiser les proportions et donner une idée concrète de l’espace disponible.
Voilà pour mes réflexions du soir… il est temps de fermer l’ordi et d’aller rêver déco 😉

Rechargez la page pour ne plus voir cette annonce spécifique





Brigitte