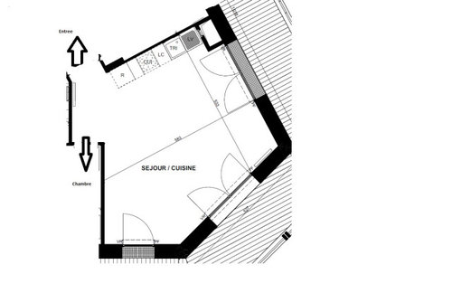
Aide/conseils aménagement séjour/cuisine atypique
le mois dernier
Dernière modification : le mois dernier
Réponse sélectionnée
Trier par:Plus anciennes
Commentaires (10)
- le mois dernier
Discussions associées
Aide aménagement petit séjour cuisine salon
Commentaires (85)Bonjour Sofia, Quelques meubles à chaussures Sheldon LaRedoute celui-ci est beau, mais un peu profond Herdasa LaRedoute et peut-être terre de nuit (se rapproche au Voxtorp) Et pour le banc...j'ai cherché le bronco, mais il semble épuisé (en plus de pas très confortable) celui-ci? banc vertico (existe en d'autres couleurs) Chaises j'aime bien les chaises, mais avez vous pensé aux pieds noirs avec assises "ocre" griffin Tapis, oui, au moins 160x230 Et pourquoi passer au wc (plus simple) voila un bleu nuit avec des détails dorés vous avez aussi un papier peint bleu avec des poissons dorés qui est très sympa poissons / vagues (sur un mur, peinture sur les autres / porte intérieur et plafond) bleu-colibri Suspension? Enola ce type de porte papier toilette permet aussi de poser le portable porte papier wc porte balais On a déjà posé la pare baignoire, la commande chez Lapeyre a pris 3 mois. Il y a la même chez Leroy Merlin Le papier peint est très sympa. Avec votre papier peint très graphique, peut-être une pare baignoire un peu moins détaillée? et avec un volet pivotant? Lift Leroy Merlin Je pense qu la dernière chose, est la table basse. Avec un canapé gris et un tapis beige/noir (?) un peu de bois? (surtout si vous avez des pieds de chaises noires) miliboo manguier ou celle-ci? made flippa ou bien celle-ci avec un plateau marbre noir ? (mais des pieds inox) tabae un peu de peinture derrière le canapé gris? bonne journée, Lynn... Voir plusAide pour aménager cuisine ouverte sur séjour de 25 m2
Commentaires (1)Bonjour. Une suggestion qui nécessite une cloison (éventuellement de type amovible) entre cuisine et entrée (en bleu clair) J'ai rajouté un frigo à vos demandes ! Avec de gauche à droite - un meuble cuisson (four + plaque) surmonté d'un meuble hotte - un meuble d'angle (haut et bas) - un meuble évier + meuble haut micro onde - un lave vaiselle petit format (50) + meuble haut rangement - une colonne froid Cette cuisne occupe 155 x 265 cloison comprise. Mais, 1 - elle manque de meuble à tiroirs et de plan de travail. J'ai donc prévu une extension côté fenêtre composée de 2 meubles à tiroirs de 40 X 40 reliés en pont par un plan de travail qui peut servir autant à la préparation, qu'à la prise d'un repas rapide. 2 - la cuisson un peu proche de l'évier ne permet pas de travailler à 2. Je préfèrerais inverser le lave vaisselle et l'évier, pour raison de sécurité. Je préfère un évier trop près de la colonne froid que tropprès de la cuisson. Et vous ? Une circulation de 80 cm est préservée partout (en jaune) A gauche de l'entrée, on peut caser porte manteaux et casiers à chaussures. Deux aspect possibles, uniquement organisationnel sans aucune idée déco (les meubles sont ceux disponibles dans le logiciel cuisine d'Ikéa)... Voir plusBesoin d'aide! pour aménagement cuisine ouvert sur séjour
Commentaires (1)Bonjour, j'ai besoin de vos conseil pour l'aménagement de ma cuisine et séjour de mon appartement nouvelle construction.Comment aménager la cuisine le salon et la table repas.Merci pour vos lumières :-)... Voir plusConseil aménagement cuisine séjour
Commentaires (5)Bonjour Danièle, Tout d'abord, il me semble que quelque chose ne tourne pas rond sur le plan. Quand j'entre les tailles de pièces, le résultat n'est pas exactement votre plan posté. Une des difficultés va être l'interphone. Souvent ils les placent près de la porte, ce qui retirer la possibilité de placard. Il y a un espace perdu assez grand à l'entrée de la salle de bains. Je propose de déposer les portes de placard et de créer quelques cloisons / porte complémentaire, ce qui vous permettra de ranger aussi: les chaussures, les balais, l'aspirateur, les ampoules / outils e peut-être un caddie de courses et une planche à repasser. Vous avez largement la pièce de mettre le lave-linge dans la salle de bains, avec un changement facile de branchement sous le lavabo. Par contre l'implantation du wc est un peu dommage. Votre îlot est réalisable. bon courage, Lynn... Voir plus- le mois dernier
- le mois dernierDernière modification :le mois dernier
- le mois dernierDernière modification :le mois dernier
- le mois dernierDernière modification :le mois dernier
- le mois dernier
- le mois dernier

Sponsorisé
Rechargez la page pour ne plus voir cette annonce spécifique





Brigitte