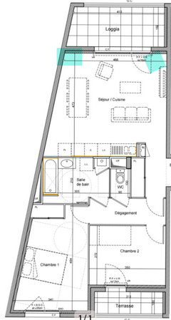
Bonjour Je cherche des idées pour amenager cette pièce de vie qui est peu profonde mais assez large Je précise que le mur pas droit ne facilite pas la tache ainsi que l'emplacement des radiateurs Au plaisir de recevoir vos propositions Merci
- sur le mur en biais une banquette avec votre table à manger et vos chaises qui suivent ce biais. La banquette peut être poursuivie à droite par des rangements si besoin.
- un buffet vaisselier (parallèle au mur de droite) qui marque la transition entre salle à manger et salon. Ca peut aussi être un meuble bas avec des éléments suspendus types étagères avec plantes...
- ce buffet permettra d'adosser de l'autre côté le canapé avec de part et d'autre un petit fauteuil (ou un seul en bas du plan avec en visu l'extérieur)
- la table basse dans la continuité en allant
- et enfin à droite le meuble TV
Cela structure l'espace sans le fermer et permet de reprendre ce mur en biais.
DinaAuteur d'origine
Notes de Styles Grenoble
Discussions associées
Aménagement pièce de vie carrée cuisine ouverte
Q
conseils pour aménagement de la pièce de vie avec cuisine ouverte
Q
Hello, Besoin de conseil aménagement pièce de vie/cuisine ouverte
Q
Aide aménagement pièce de vie avec cuisine ouverte
Q