Aménager sa cuisine
Entrées et couloirs
Aménagement : La cuisine dans le couloir d'entrée, bonne idée ?
Ces 10 appartements ont fait le choix d'une cuisine dans le couloir d'entrée. Décryptage plans Avant/Après à l'appui
Avec la flambée des prix de l’immobilier, l’optimisation des surfaces est plus que jamais d’actualité. Pour regagner des mètres carrés, il faut faire preuve de toujours plus d’astuces et, sur ce chapitre les professionnels de Houzz sont à l’avant-garde. Certains trucs sont bien connus comme ôter les cheminées ou déplacer la cuisine fermée dans le salon. Mais il en est un autre, en plein essor, qui repousse encore les limites de ce que l’on peut inventer en termes d’habitabilité. Nous parlons de placer la cuisine dans le couloir. Le couloir est par définition une circulation, donc une zone perdue en tant qu’espace habitable. C’est donc sur cette zone que les professionnels de l’aménagement planchent afin de lui redonner de la fonction. Et ça marche ! Comme vous pourrez l’estimer dans les exemples décryptés ci-dessous.
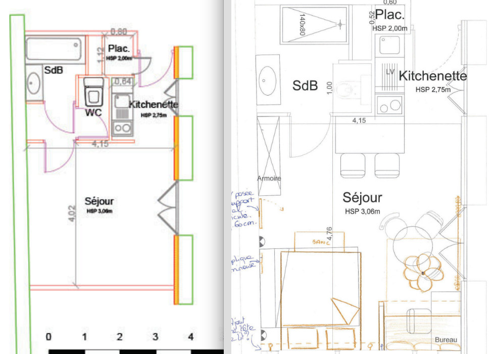
Plan avant travaux (en bas) et plan après travaux (en haut)
C’est typiquement le cas dans ce studio de 27 m² situé aux pieds des pistes, à Flaine en Haute-Savoie, dans un immeuble moderniste de 1971 conçu par Marcel Breuer. L’architecte d’intérieur Manon Papin qui l’a rénové récemment n’a pas changé la disposition de la cuisine dans le couloir d’entrée. Bien au contraire, elle l’a assumée et a travaillé à l’agrandir et l’embellir. Tant qu’à rentrer dans une cuisine couloir, autant qu’elle soit à la fois discrète et séduisante !
Trouvez un architecte d’intérieur près de chez vous sur Houzz
C’est typiquement le cas dans ce studio de 27 m² situé aux pieds des pistes, à Flaine en Haute-Savoie, dans un immeuble moderniste de 1971 conçu par Marcel Breuer. L’architecte d’intérieur Manon Papin qui l’a rénové récemment n’a pas changé la disposition de la cuisine dans le couloir d’entrée. Bien au contraire, elle l’a assumée et a travaillé à l’agrandir et l’embellir. Tant qu’à rentrer dans une cuisine couloir, autant qu’elle soit à la fois discrète et séduisante !
Trouvez un architecte d’intérieur près de chez vous sur Houzz
Un choix de raison dans les petites surfaces
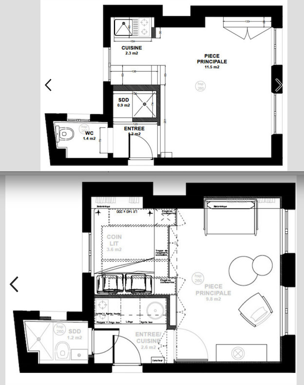
En plein centre de Lyon ce 26 m² dans un immeuble plus ancien, disposait de davantage de fenêtres qu’un studio cabine. Ce qui n’a pas empêché le précédent propriétaire de l’aménager avec une cuisine dans l’entrée afin de dégager davantage d’espace dans la pièce de vie.
Chargée de sa rénovation, la décoratrice Charlotte Hasbroucq de Chadows Design d’Intérieur, a misé sur des couleurs claires soulignées de noir pour rehausser son graphisme sans attenter à la luminosité des lieux. Comme dans l’exemple précédent, on constate que, la cuisine étant le premier élément que l’on voit en entrant, cet emplacement n’admet aucune concession sur le design.
En plein centre de Lyon ce 26 m² dans un immeuble plus ancien, disposait de davantage de fenêtres qu’un studio cabine. Ce qui n’a pas empêché le précédent propriétaire de l’aménager avec une cuisine dans l’entrée afin de dégager davantage d’espace dans la pièce de vie.
Chargée de sa rénovation, la décoratrice Charlotte Hasbroucq de Chadows Design d’Intérieur, a misé sur des couleurs claires soulignées de noir pour rehausser son graphisme sans attenter à la luminosité des lieux. Comme dans l’exemple précédent, on constate que, la cuisine étant le premier élément que l’on voit en entrant, cet emplacement n’admet aucune concession sur le design.
Plan avant travaux (à gauche) et plan après travaux (à droite)
Par ailleurs, la pro s’est attelée à résoudre une seconde problématique induite par ce plan, à savoir déterminer la localisation du coin déjeuner qui traditionnellement s’épanouit à proximité du linéaire de cuisine. Comme il n’existait pas, Charlotte Hasbroucq l’a judicieusement ajouté dans le prolongement de la cuisine, telle une transition vers le séjour. « Dans un petit appartement, il est indispensable d’attribuer une place à chacune des fonctions de vie. Nous avons conçu ce studio comme une suite d’hôtel et ce plan sert autant à manger qu’à travailler », explique-t-elle.
Par ailleurs, la pro s’est attelée à résoudre une seconde problématique induite par ce plan, à savoir déterminer la localisation du coin déjeuner qui traditionnellement s’épanouit à proximité du linéaire de cuisine. Comme il n’existait pas, Charlotte Hasbroucq l’a judicieusement ajouté dans le prolongement de la cuisine, telle une transition vers le séjour. « Dans un petit appartement, il est indispensable d’attribuer une place à chacune des fonctions de vie. Nous avons conçu ce studio comme une suite d’hôtel et ce plan sert autant à manger qu’à travailler », explique-t-elle.
Une cuisine traversée par une circulation d’entrée
Justement, voici une ancienne chambre d’un grand hôtel de la côte basque, réaménagée en appartement de vacances par l’architecte d’intérieur Joanna Pera Duvocelle pour une famille de trois personnes. Dans ce 38 m², exit la kitchenette fermée peu familiale. La salle de bains y a été déplacée tandis que l’entrée s’est vue augmentée de la fonction cuisine.
Justement, voici une ancienne chambre d’un grand hôtel de la côte basque, réaménagée en appartement de vacances par l’architecte d’intérieur Joanna Pera Duvocelle pour une famille de trois personnes. Dans ce 38 m², exit la kitchenette fermée peu familiale. La salle de bains y a été déplacée tandis que l’entrée s’est vue augmentée de la fonction cuisine.
Deux linéaires – l’un avec les fonctions cuisson et conservation et l’autre avec fonction lavage – se sont répartis de chaque côté de la circulation. Et une fois de plus ont été revêtus de beaux atours, en chêne teinté façon noyer et quartzite Atlantic Lava Stone. Bien vu les meubles cintrés au niveau des passages de portes, de sorte à fluidifier la circulation !
Plan avant travaux (en haut) et plan après travaux (en bas)
En déplaçant la cuisine dans la circulation d’entrée, la chambre parentale est venue occuper l’ancien emplacement de la salle de bains. Grâce à ce tour de passe-passe, le petit espace gagne une pièce en plus !
En déplaçant la cuisine dans la circulation d’entrée, la chambre parentale est venue occuper l’ancien emplacement de la salle de bains. Grâce à ce tour de passe-passe, le petit espace gagne une pièce en plus !
S’emparer de l’ancienne cuisine pour créer un coin nuit
Dénué de chambre à l’origine, ce studio parisien de 18 m² s’est servi de la même astuce d’aménagement. On entrait face à une douche ouverte. On pénètre désormais dans ce sas équipé d’une séduisante cuisine en bois de bouleau. L’ancienne cuisine s’est quant à elle muée en coin nuit !
Dénué de chambre à l’origine, ce studio parisien de 18 m² s’est servi de la même astuce d’aménagement. On entrait face à une douche ouverte. On pénètre désormais dans ce sas équipé d’une séduisante cuisine en bois de bouleau. L’ancienne cuisine s’est quant à elle muée en coin nuit !
Plan avant travaux (en haut) et plan après travaux (en bas)
Loger un programme complet (cuisine, chambre, séjour et salle d’eau) dans moins de 20 m² est toujours une gageure et réclame des choix engagés. L’architecte d’intérieur Laura Loustau a fait celui de mettre la cuisine à l’entrée et s’en explique : « L’idée est venue du propriétaire lui-même qui m’a défiée de mettre la salle d’eau entière dans les toilettes. Ayant libéré l’entrée de la douche, j’ai pensé à créer un sas grâce à la cuisine afin de protéger l’espace de vie du bruit du couloir. »
Plus de photos de mini cuisines sur Houzz
Loger un programme complet (cuisine, chambre, séjour et salle d’eau) dans moins de 20 m² est toujours une gageure et réclame des choix engagés. L’architecte d’intérieur Laura Loustau a fait celui de mettre la cuisine à l’entrée et s’en explique : « L’idée est venue du propriétaire lui-même qui m’a défiée de mettre la salle d’eau entière dans les toilettes. Ayant libéré l’entrée de la douche, j’ai pensé à créer un sas grâce à la cuisine afin de protéger l’espace de vie du bruit du couloir. »
Plus de photos de mini cuisines sur Houzz
Mais également dans les surfaces plus grandes…
Nous comprenons aisément que les petites surfaces doivent faire preuve d’inventivité pour caser au mieux toutes les fonctions nécessaires à la vie quotidienne. Mais le sujet se pimente lorsque ce phénomène touche des surfaces beaucoup plus grandes, voire des appartements familiaux. Dans ce type d’appartement, nous avions jusqu’alors parfois observé les couloirs d’entrée se doter d’une fonction supplémentaire telle une bibliothèque, un bureau ou même un placard buanderie. Voici désormais les couloirs ou dégagements d’entrée d’appartement familiaux transformés en cuisine !
Nous comprenons aisément que les petites surfaces doivent faire preuve d’inventivité pour caser au mieux toutes les fonctions nécessaires à la vie quotidienne. Mais le sujet se pimente lorsque ce phénomène touche des surfaces beaucoup plus grandes, voire des appartements familiaux. Dans ce type d’appartement, nous avions jusqu’alors parfois observé les couloirs d’entrée se doter d’une fonction supplémentaire telle une bibliothèque, un bureau ou même un placard buanderie. Voici désormais les couloirs ou dégagements d’entrée d’appartement familiaux transformés en cuisine !
Certains professionnels de l’aménagement manient l’art de l’esquive. À Trente, en Italie, dans cet appartement aménagé pour les vacances par le studio d’architecture Raro, la cuisine prend la forme d’une console d’entrée filante. La surprise est de taille lorsque s’ouvre le top de ce meuble sur mesure pour laisser apparaître les fonctions nécessaires à la cuisine, y compris la hotte intégrée.
« Un super choix » dans 74 m² pour une famille de quatre
La plupart du temps, la cuisine dans le couloir s’assume complètement, quand elle n’est pas carrément soulignée comme ici avec le bleu nuit qui la pare. Nous sommes au sixième étage d’un immeuble parisien, proche du boulevard Magenta, où Louis et Capucine, les fondateurs de la société Costaud Rénovation ont élu résidence après avoir racheté une enfilade de chambres de bonnes à réaménager.
La plupart du temps, la cuisine dans le couloir s’assume complètement, quand elle n’est pas carrément soulignée comme ici avec le bleu nuit qui la pare. Nous sommes au sixième étage d’un immeuble parisien, proche du boulevard Magenta, où Louis et Capucine, les fondateurs de la société Costaud Rénovation ont élu résidence après avoir racheté une enfilade de chambres de bonnes à réaménager.
Lors du réagencement de ce 74 m² sous les toits tout en longueur, le placement de leur cuisine a été le principal sujet. Un emplacement classique, tourné vers la salle à manger, avait été d’abord envisagé avant qu’ils ne la placent plutôt dans le couloir d’entrée.
Plan avant travaux (en haut) et plan après travaux (en bas)
« C’est un super choix que nous ne regrettons pas. Cette circulation de 80 cm de large était nécessaire. Si nous ne lui avions pas donné une fonction supplémentaire, nous aurions perdu 4 m². En prime, lorsque nous sommes côté salon, nous ne voyons pas la cuisine, ce qui est parfait pour recevoir », partage Louis Anglès d’Auriac le propriétaire.
« C’est un super choix que nous ne regrettons pas. Cette circulation de 80 cm de large était nécessaire. Si nous ne lui avions pas donné une fonction supplémentaire, nous aurions perdu 4 m². En prime, lorsque nous sommes côté salon, nous ne voyons pas la cuisine, ce qui est parfait pour recevoir », partage Louis Anglès d’Auriac le propriétaire.
Un ingrédient générateur de gain d’espace dans ce 79 m² pour une famille
Au cinquième étage d’un bel haussmannien du quartier Barbès à Paris XVIIIe, cette famille avec un enfant a acheté une surface de 79 m² dans son jus, avec cuisine fermée à l’un des bouts de l’appartement et deux chambres traversantes. Afin de pouvoir circuler vers les chambres, il est nécessaire de recréer une circulation mais alors, pourquoi ne pas y installer la cuisine afin d’optimiser le plan au maximum ?
Au cinquième étage d’un bel haussmannien du quartier Barbès à Paris XVIIIe, cette famille avec un enfant a acheté une surface de 79 m² dans son jus, avec cuisine fermée à l’un des bouts de l’appartement et deux chambres traversantes. Afin de pouvoir circuler vers les chambres, il est nécessaire de recréer une circulation mais alors, pourquoi ne pas y installer la cuisine afin d’optimiser le plan au maximum ?
Plan avant travaux (en haut) et plan après travaux (en bas)
Cette dernière n’en occupe pas moins le couloir de circulation qui longe le séjour salle à manger. Pour ne pas déparer, elle a revêtu d’élégantes façades en chêne et une crédence en zelliges rose nude. Le sol a été différencié de celui du séjour pour marquer les espaces. Les tomettes hexagonales provenant des Carrelages de Saint-Samson dans l’Oise ont également permis de réaliser une étanchéité au niveau du sol de la cuisine, ce qui n’aurait pas été possible avec le parquet d’origine.
Cette dernière n’en occupe pas moins le couloir de circulation qui longe le séjour salle à manger. Pour ne pas déparer, elle a revêtu d’élégantes façades en chêne et une crédence en zelliges rose nude. Le sol a été différencié de celui du séjour pour marquer les espaces. Les tomettes hexagonales provenant des Carrelages de Saint-Samson dans l’Oise ont également permis de réaliser une étanchéité au niveau du sol de la cuisine, ce qui n’aurait pas été possible avec le parquet d’origine.
Une cuisine familiale au cœur de ce 72 m² à Paris
Difficile de ne pas passer et repasser par cette cuisine qui occupe désormais le couloir de distribution de toutes les pièces de ce quatre pièces dans le quartier Cardinet à Paris XVIIe. L’Architecte d’intérieur Sarah Hunt-Knights, de SHK Architecture qui a rénové ce 72 m² pour une famille, avait la mission de dégager une 3eme chambre dans cet appartement qui n’en possédait que deux à l’origine.
Difficile de ne pas passer et repasser par cette cuisine qui occupe désormais le couloir de distribution de toutes les pièces de ce quatre pièces dans le quartier Cardinet à Paris XVIIe. L’Architecte d’intérieur Sarah Hunt-Knights, de SHK Architecture qui a rénové ce 72 m² pour une famille, avait la mission de dégager une 3eme chambre dans cet appartement qui n’en possédait que deux à l’origine.
Afin de « pousser les murs », celle-ci a décidé de mettre à profit le moindre espace vacant pour retrouver des mètres carrés habitables. Elle a donc installé une chambre supplémentaire dans l’ancienne cuisine fermée et a déplacé la cuisine dans la grande circulation au cœur de l’appartement.
Plan avant travaux (en haut) et plan après travaux (en bas)
Assumer cette place originale est passée par l’adoption d’un design haut de gamme pour la cuisine, parée de magnifiques façades en bois veiné et rehaussée par une crédence mentholée, façon zelliges. Ce qui était auparavant un simple couloir est désormais rempli de vie à l’heure des repas. En prime, installer comme ici des modules de cuisine en parallèle est toujours très efficace pour cuisiner car ce plan limite les déplacements inutiles.
16 règles d’or pour aménager une cuisine en longueur
Assumer cette place originale est passée par l’adoption d’un design haut de gamme pour la cuisine, parée de magnifiques façades en bois veiné et rehaussée par une crédence mentholée, façon zelliges. Ce qui était auparavant un simple couloir est désormais rempli de vie à l’heure des repas. En prime, installer comme ici des modules de cuisine en parallèle est toujours très efficace pour cuisiner car ce plan limite les déplacements inutiles.
16 règles d’or pour aménager une cuisine en longueur
L’arme ultime des grandes colocations
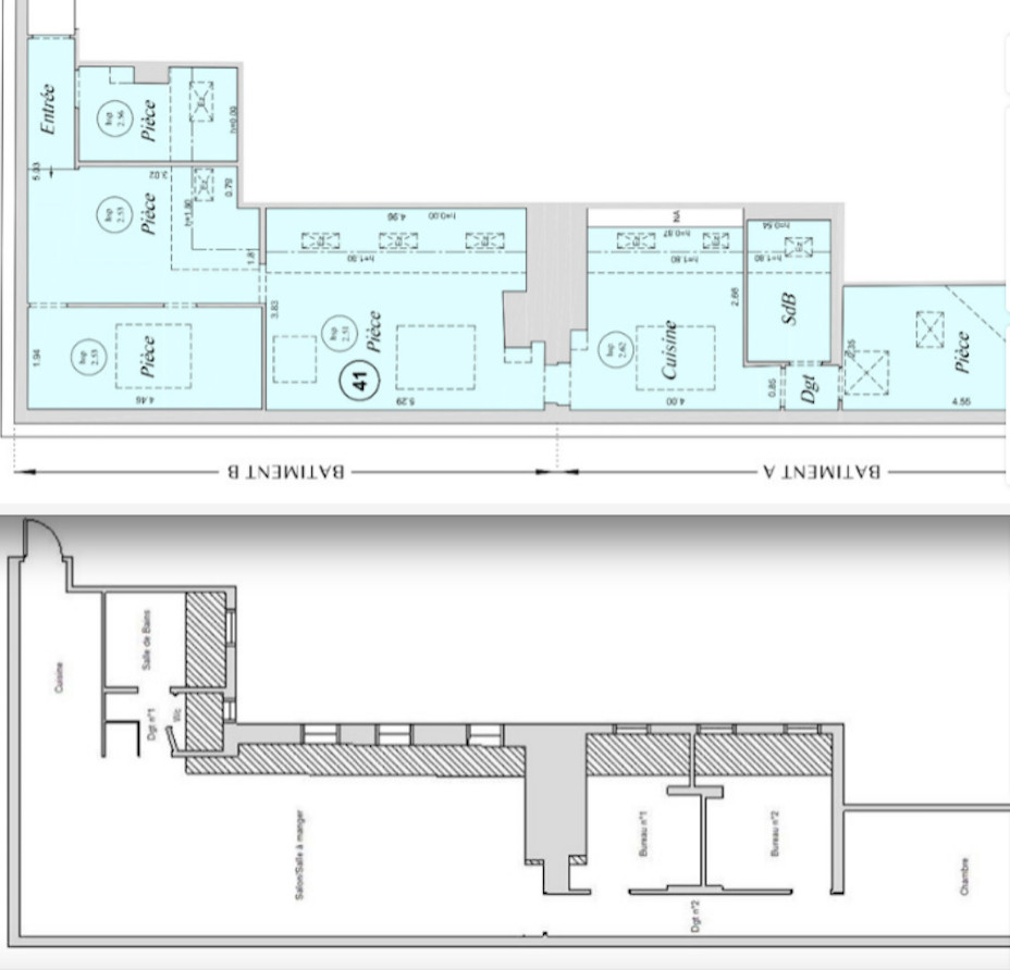
Outre les appartements familiaux qui cherchent à s’agrandir, les colocations sont également friandes d’optimisation maximale de l’espace car, sans un nombre de chambres minimum rapporté aux mètres carrés du lieu, la rentabilité du projet sombre. « Dans un projet de rentabilité locative, la situation du bien et la possibilité d’optimisation spatiale font qu’un projet passe ou pas », confirme Jean-Christophe Roche, le propriétaire de ce 78 m² qu’il a acheté à Grenoble dans l’optique d’en faire une colocation de qualité pour quatre.
Outre les appartements familiaux qui cherchent à s’agrandir, les colocations sont également friandes d’optimisation maximale de l’espace car, sans un nombre de chambres minimum rapporté aux mètres carrés du lieu, la rentabilité du projet sombre. « Dans un projet de rentabilité locative, la situation du bien et la possibilité d’optimisation spatiale font qu’un projet passe ou pas », confirme Jean-Christophe Roche, le propriétaire de ce 78 m² qu’il a acheté à Grenoble dans l’optique d’en faire une colocation de qualité pour quatre.
Plan avant travaux (en haut) et plan après travaux (en bas)
Impossible de garder la grande pièce de vie initiale afin de pouvoir dégager une quatrième chambre. Sophie Graves, l’architecte d’intérieur de l’agence HomebOxcreation en charge des plans, a agrandi l’ancienne cuisine avec la circulation d’entrée et réussi à les muer en une pièce de vie confortable avec cuisine, coin repas et zone conviviale. Quel meilleur emplacement dans une colocation qu’une cuisine/séjour traversante où chacun puisse aller et venir à sa guise ?
Impossible de garder la grande pièce de vie initiale afin de pouvoir dégager une quatrième chambre. Sophie Graves, l’architecte d’intérieur de l’agence HomebOxcreation en charge des plans, a agrandi l’ancienne cuisine avec la circulation d’entrée et réussi à les muer en une pièce de vie confortable avec cuisine, coin repas et zone conviviale. Quel meilleur emplacement dans une colocation qu’une cuisine/séjour traversante où chacun puisse aller et venir à sa guise ?
Bienvenue à la cuisine !
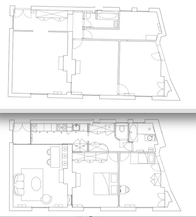
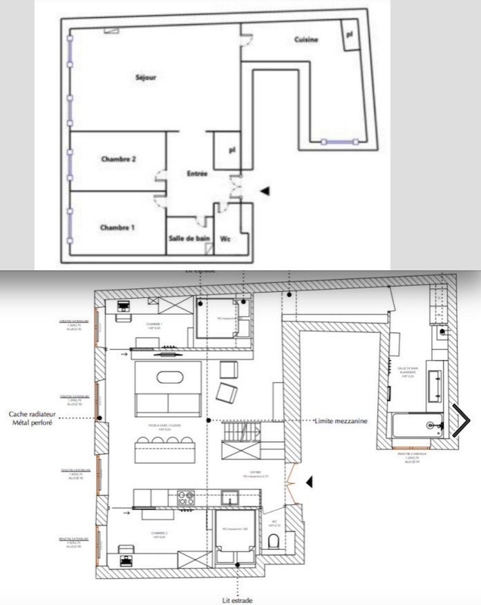
Même constat à Lyon pour ce propriétaire ayant acquis un canut de 69 m² au 1er étage d’un immeuble historique de Lyon dans le but de réaliser une colocation. La tâche était ardue car l’appartement comportait deux chambres alors qu’il en souhaitait quatre… En exploitant la double hauteur sous plafond des canuts, il est parvenu à ajouter deux chambres en mezzanine, portant la superficie totale à 85 m² Carrez au fil de gros travaux sous la houlette du maître d’œuvre Thomas Hoffmann de la société Ekrin Rénovation. Pour parfaire l’optimisation de la surface, l’architecte d’intérieur Marion Lanoë a transformé l’ancienne cuisine en grande salle de bains. Et qu’est devenue la cuisine ? Elle a regagné l’entrée de l’appartement où elle sert de circulation et de lieu d’échange convivial entre colocataires. Notez que cuisine et entrée, fortement sollicitées dans une colocation, se rejoignent sur la nécessité d’un sol costaud. Le carrelage de l’une sert l’autre !
Même constat à Lyon pour ce propriétaire ayant acquis un canut de 69 m² au 1er étage d’un immeuble historique de Lyon dans le but de réaliser une colocation. La tâche était ardue car l’appartement comportait deux chambres alors qu’il en souhaitait quatre… En exploitant la double hauteur sous plafond des canuts, il est parvenu à ajouter deux chambres en mezzanine, portant la superficie totale à 85 m² Carrez au fil de gros travaux sous la houlette du maître d’œuvre Thomas Hoffmann de la société Ekrin Rénovation. Pour parfaire l’optimisation de la surface, l’architecte d’intérieur Marion Lanoë a transformé l’ancienne cuisine en grande salle de bains. Et qu’est devenue la cuisine ? Elle a regagné l’entrée de l’appartement où elle sert de circulation et de lieu d’échange convivial entre colocataires. Notez que cuisine et entrée, fortement sollicitées dans une colocation, se rejoignent sur la nécessité d’un sol costaud. Le carrelage de l’une sert l’autre !
Plan avant travaux (en haut) et plan après travaux (en bas)
Conclusion, mettre la cuisine dans le couloir d’entrée est un parti pris assumé de gain d’espace qui permet d’exploiter une circulation en tant que pièce de vie. Cette configuration provoquera sans aucun doute, un effet surprise chez tous ceux que vous accueillerez. N’hésitez pas à partager ci-dessous vos réalisations et expériences d’utilisation de tels espaces.
ET VOUS ?
Que pensez-vous de la cuisine dans l’entrée ?
Conclusion, mettre la cuisine dans le couloir d’entrée est un parti pris assumé de gain d’espace qui permet d’exploiter une circulation en tant que pièce de vie. Cette configuration provoquera sans aucun doute, un effet surprise chez tous ceux que vous accueillerez. N’hésitez pas à partager ci-dessous vos réalisations et expériences d’utilisation de tels espaces.
ET VOUS ?
Que pensez-vous de la cuisine dans l’entrée ?






























Les grandes trouvailles en matière d’aménagement découlent toujours de fortes contraintes, en particulier de celle du défaut de mètres carrés. Dès les années 60-70, avec l’avènement des immeubles de vacances, en bord de mer ou à la montagne, qui promeuvent le « studio cabine », la cuisine est souvent reléguée dans le couloir d’entrée. En effet, ces studios exploitent tous le même plan en longueur, depuis le couloir de l’immeuble jusqu’à une baie vitrée qui est la seule source de lumière de l’appartement. Aussi, les pièces d’eau sont-elles placées logiquement au niveau de la partie la plus sombre.