Visites Privées
Projets nés sur Houzz
Avant/Après : À Lyon, mue moderniste pour 80 m2 années 1950
Un appartement suranné remis au goût du jour entre architecture moderniste et touches contemporaines
Un couple de quinquagénaires, dont les enfants ont quitté le foyer familial, se voit contraint de déménager de Biarritz à Lyon à la suite d’une mutation professionnelle. Séduits par le charme authentique des pentes de la Croix-Rousse, leur recherche de logement se révèle plus complexe que prévu. Ils finissent par jeter leur dévolu sur un appartement de 80 m² figé dans les années 1950. Après avoir découvert sur Houzz les réalisations de Régis Lannoy, ils décident de faire appel à cet architecte d’intérieur lyonnais dont la large connaissance du patrimoine architectural local et l’expertise dans les profondes restructurations les convainc de lui confier la transformation complète de leur nouveau lieu de vie.
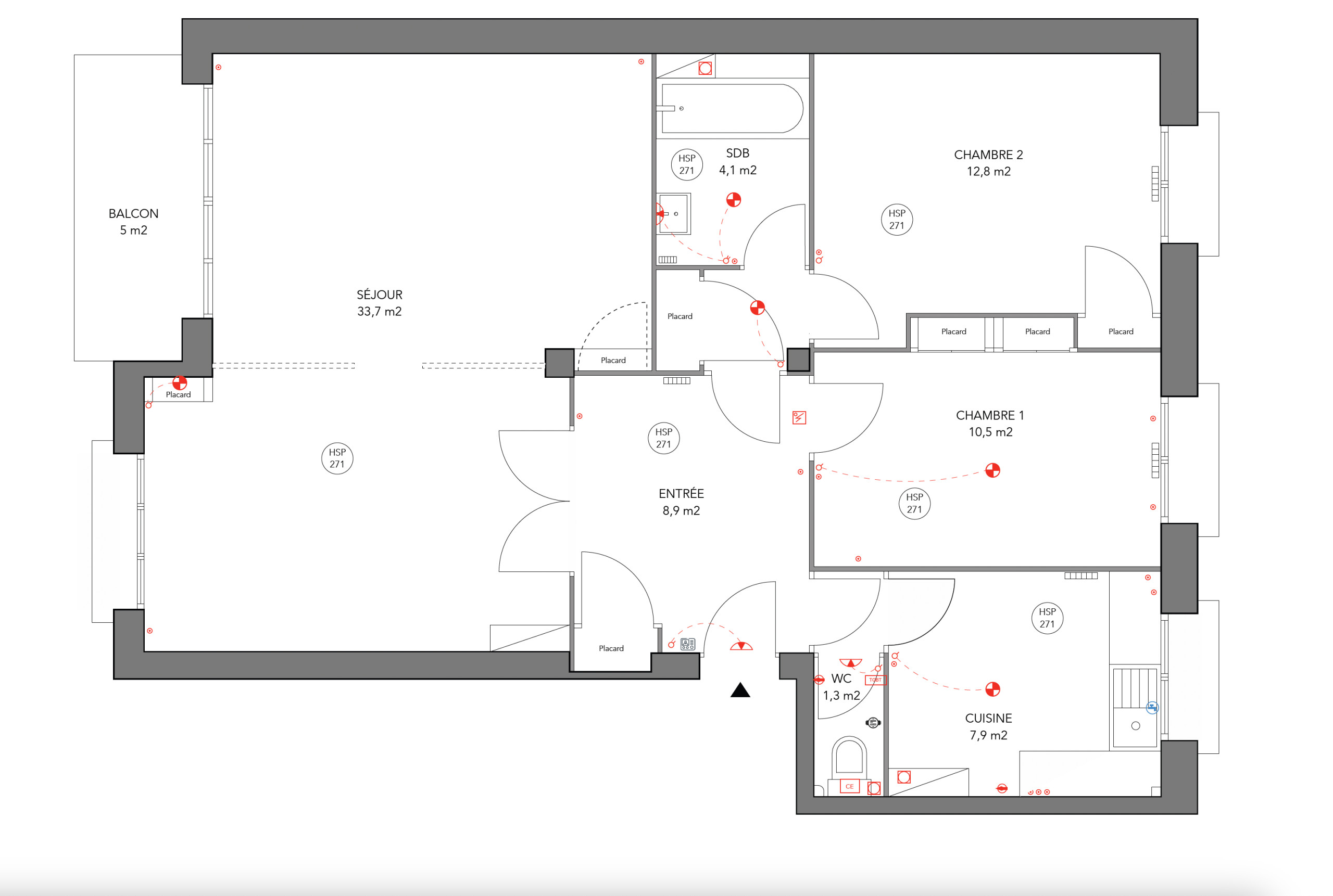
Avant. Sur le plateau de la Croix-Rousse, un quartier prisé du 4ᵉ arrondissement de Lyon, la copropriété des années 1950 accueillait au 2ᵉ étage sur rue cet appartement de deux chambres, quasi inchangé depuis sa construction. Il a plu aux acquéreurs pour sa situation centrale, sa belle superficie et sa vue totalement dégagée depuis la pièce de vie. Mais son état suranné nécessitait une rénovation intégrale.
« Comme tous les appartements de cette période, il était devenu inconfortable à vivre aujourd’hui car l’isolation faisait défaut, les fenêtres étaient en simple vitrage et la disposition était obsolète avec cloisonnement important… », explique l’architecte d’intérieur Régis Lannoy.
« Comme tous les appartements de cette période, il était devenu inconfortable à vivre aujourd’hui car l’isolation faisait défaut, les fenêtres étaient en simple vitrage et la disposition était obsolète avec cloisonnement important… », explique l’architecte d’intérieur Régis Lannoy.
Après. Les attentes de ce couple étaient simples et limpides. « Ils souhaitaient de nombreux rangements pour leurs livres et vêtements et une grande cuisine car ils cuisinent et reçoivent beaucoup », détaille le professionnel qui, par ailleurs, a eu une quasi-carte blanche décorative.
Trouvez un architecte d’intérieur près de chez vous sur Houzz
Trouvez un architecte d’intérieur près de chez vous sur Houzz
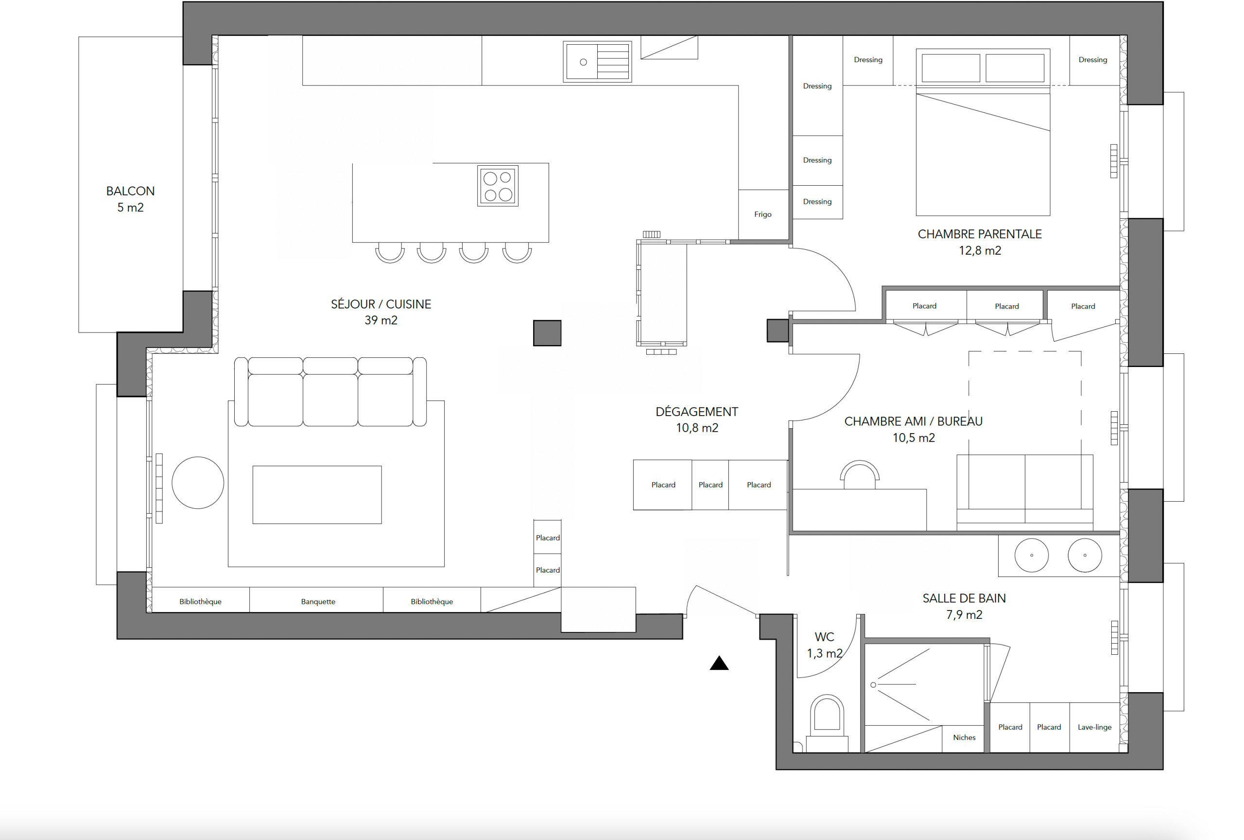
Après. Comme à son habitude, le professionnel a commencé par s’adonner à une grosse démolition avant de réorganiser l’espace de manière contemporaine, non sans avoir fait préalablement changer toutes les fenêtres et isolé chaque mur de façade pour améliorer le DPE en F au moment de l’achat.
S’appuyant sur le style années 1950 de l’immeuble, il a proposé de travailler dans une démarche moderniste, en priorisant la lumière naturelle comme élément structurant et en intégrant le mobilier tel un élément architectural, des valeurs chères à ce style.
S’appuyant sur le style années 1950 de l’immeuble, il a proposé de travailler dans une démarche moderniste, en priorisant la lumière naturelle comme élément structurant et en intégrant le mobilier tel un élément architectural, des valeurs chères à ce style.
Ainsi, dans l’entrée désormais décloisonnée, une banquette-vestiaire et une bibliothèque-secrétaire créent des filtres vers la pièce de vie, tout en augmentant les différentes fonctionnalités sans attenter à la luminosité. « Aujourd’hui, il n’y a plus de pièces noires dans cet appartement », apprécie le professionnel.
Plus d’idées pour aménager une entrée sur Houzz
Plus d’idées pour aménager une entrée sur Houzz
Après. Comme le couple n’appréciait pas du tout la petite cuisine d’origine, reléguée près des toilettes, l’architecte d’intérieur a réorganisé la pièce de vie afin d’inclure la grande cuisine fortement plébiscitée. « Nous avons annexé la salle de bains aveugle pour élargir la pièce de vie. La salle de bains a été transférée dans l’ancienne cuisine afin de respecter les contraintes d’évacuation », explique-t-il.
Sur la droite de la cuisine, un sas agrémenté d’une verrière en acier laqué protège l’accès à la zone nuit. Sa création a permis de lever plusieurs contraintes en un seul geste : « Nous voulions conserver le radiateur du système de chauffage central, laisser circuler la lumière et ajouter du rangement. Grâce à la verrière, le couple peut profiter de la jolie vue du séjour en sortant de sa chambre », explique Régis.
Le soubassement de la verrière est constitué par un meuble de rangement à chaussures surmonté d’un bac jardinière intégré, accueillant aujourd’hui une luxuriante Monstera. Les plantes sont en effet une autre des passions des maîtres d’ouvrage.
Le soubassement de la verrière est constitué par un meuble de rangement à chaussures surmonté d’un bac jardinière intégré, accueillant aujourd’hui une luxuriante Monstera. Les plantes sont en effet une autre des passions des maîtres d’ouvrage.
Deux autres principes chers au style architectural moderniste ont été observés par le professionnel : la fluidification de l’espace autour des usages et le choix d’un décor qui fait dialoguer matériaux bruts et plus raffinés. Avez-vous repéré dans le cliché précédent cette volonté de fidélité à l’histoire des lieux ? Les sols d’origine ont été conservés moyennant un ponçage du parquet et du travertin de l’entrée, un poteau structurel a été décapé et laissé brut et même les tuyaux de chauffage – dont la cambrure inédite a été découverte au moment de la démolition – ont été conservés apparents comme d’émouvantes traces de l’histoire du bien.
Vous êtes en quête d'un artisan pour votre projet en rénovation d'appartement ?
Nous vous aidons à trouver les meilleurs pros
Nous vous aidons à trouver les meilleurs pros
Avant. Les propriétaires s’étaient sommairement installés dans leur nouvel appartement, mais ont préféré vider les lieux en louant un autre appartement pendant les travaux. Ce que recommande chaudement le professionnel.
Comme ils sont souvent en télétravail, ils ont validé la création d’une chambre d’amis/bureau au niveau de la chambre 1 d’origine (voir plan avant travaux), dont nous n’avons malheureusement pas de visuels. Ils peuvent désormais télétravailler à deux dans l’appartement sans se déranger, l’un s’installant sur le secrétaire et l’autre dans la chambre d’amis.
Comme ils sont souvent en télétravail, ils ont validé la création d’une chambre d’amis/bureau au niveau de la chambre 1 d’origine (voir plan avant travaux), dont nous n’avons malheureusement pas de visuels. Ils peuvent désormais télétravailler à deux dans l’appartement sans se déranger, l’un s’installant sur le secrétaire et l’autre dans la chambre d’amis.
Après. Les habitants des lieux étant de bons cuisiniers et de grands amateurs de vin, la cuisine qui leur est dédiée occupe une place centrale dans la pièce de vie d’environ 40 m². Pour un confort d’utilisation maximum, elle ne comporte presque que des meubles bas, organisés en un linéaire en L complété par un imposant ilot dînatoire dont les côtés renferment du rangement et une bibliothèque.
L’îlot et les plans de travail de la cuisine ont entièrement été carrelés en faïence indienne de 10×10 centimètres sur du mobilier réalisé sur mesure avec des portes en contreplaqué de bouleau. « Le menuisier a réalisé la structure de la table en contreplaqué et médium, sur laquelle le carreleur a collé les carreaux de faïence », explique Régis. Si la finition en émail blanc est imbattable au niveau tarif (moins de 10 euros par mètre carré), en revanche, le professionnel n’a pas compté son temps pour réfléchir au calepinage idéal. « L’idée était d’employer un maximum de carreaux pleins. Comme ce sont des carreaux très fins, les coupes sont très difficiles, et impossibles à 45° », précise-t-il.
Outre cette finition de paillasse de chimie durable et hygiénique, de nombreuses bonnes idées ont été convoquées dans cette cuisine. Ainsi les façades sans poignées en contreplaqué de bouleau viennent contrebalancer la froideur industrielle du carreau. Un grand miroir installé en trois morceaux au-dessus de la crédence réchauffe également l’ambiance. « Rien de tel que la finition bronze pour rendre la lumière plus chaleureuse ! », estime Régis. Miroir qui a pour autres vertus d’agrandir visuellement les lieux et refléter le joli coin séjour.
Une suspension triple a été installée au-dessus de la table de repas. En l’absence de point électrique central, cette solution élégante a été imaginée par le professionnel : « nous avons créé un soffite périphérique intégrant le circuit électrique nécessaire. Les câbles d’alimentation apparents ont été volontairement mis en scène pour coller à notre esthétique industrielle contemporaine », explique-t-il.
Une suspension triple a été installée au-dessus de la table de repas. En l’absence de point électrique central, cette solution élégante a été imaginée par le professionnel : « nous avons créé un soffite périphérique intégrant le circuit électrique nécessaire. Les câbles d’alimentation apparents ont été volontairement mis en scène pour coller à notre esthétique industrielle contemporaine », explique-t-il.
Autre bonne idée, la création d’une jardinière intégrée sur la gauche du linéaire où s’épanouit aujourd’hui un splendide strelitzia. Mais la meilleure idée de toutes est sans doute le bac en Inox intégré à même l’îlot : « c’est pour tenir la bouteille de rosé au frais façon seau à glace », s’amuse Régis.
Après. L’annexion de la salle de bains a permis d’agrandir la cuisine. On distingue aujourd’hui cette extension grâce au béton ciré qui a été coulé au sol pour remplacer l’ancien carrelage. « Nous avons complètement assumé ces empiècements du sol comme des traits de l’histoire », explique l’architecte d’intérieur.
Au niveau électroménager, la cuisine est bien équipée avec une cave à vin, une table à induction de 90 centimètres de large munie d’une hotte de plan, un lave-vaisselle, un four et un micro-ondes caché dans un placard au-dessus de ce dernier. Le combiné réfrigérateur posable a été semi-encastré. « Il appartenait déjà aux propriétaires », justifie l’architecte d’intérieur.
Au niveau électroménager, la cuisine est bien équipée avec une cave à vin, une table à induction de 90 centimètres de large munie d’une hotte de plan, un lave-vaisselle, un four et un micro-ondes caché dans un placard au-dessus de ce dernier. Le combiné réfrigérateur posable a été semi-encastré. « Il appartenait déjà aux propriétaires », justifie l’architecte d’intérieur.
L’étagère à bocaux et la huche à pain n’ont pas été oubliées. « Lorsque l’on fait du sur-mesure, on peut accéder aux moindres demandes de nos clients et les personnaliser. Impossible de trouver la même cuisine ailleurs », rappelle Régis Lannoy.
Pour rester dans le style industriel de la paillasse, cet évier en Inox avec son robinet à roues était tout indiqué.
Après. À sa première visite, le professionnel a pris la mesure du nombre de cartons de livres posés au sol et savait qu’il faudrait prévoir une très grande bibliothèque, notamment pour contenir les volumes de BD dont sont passionnés les propriétaires. Pour faire coïncider ce besoin avec celui de recevoir des amis, il a intégré une banquette centrale d’appoint dans la composition où les cases ont été mesurées pour recevoir les livres et les sculptures familiales. « Cette astuce a le mérite d’alléger la composition et permet d’asseoir trois personnes en plus », indique-t-il.
En ce qui concerne la touche décorative finale, l’architecte d’intérieur a laissé la main aux propriétaires pour trouver le fond de scène de leurs rêves. Une fresque murale au motif de dunes sert de toile de fond à la bibliothèque, atténuant naturellement l’impact visuel des ouvrages tout en créant une atmosphère apaisante. « Je laisse toujours mes clients choisir leur décor, même si je les guide. Il me semble toujours primordial qu’ils se sentent alignés avec leur espace de vie, puisque ce sont eux qui vont y vivre », insiste-t-il.
Les propriétaires se sont également impliqués sur le choix de leur canapé, séduits par ses lignes organiques et sa couleur verte qui s’accorde avec leurs plantes. Cette pièce maîtresse illustre parfaitement le fil conducteur de la rénovation : un dialogue constant entre les lignes droites rigoureuses de l’époque moderniste, adoucies par des touches contemporaines plus douces et des touches colorées.
Les propriétaires se sont également impliqués sur le choix de leur canapé, séduits par ses lignes organiques et sa couleur verte qui s’accorde avec leurs plantes. Cette pièce maîtresse illustre parfaitement le fil conducteur de la rénovation : un dialogue constant entre les lignes droites rigoureuses de l’époque moderniste, adoucies par des touches contemporaines plus douces et des touches colorées.
Nous n’avons pas de visuel avant travaux de la chambre parentale mais celle-ci, à l’instar des autres pièces, manquait totalement d’aménagements. L’idée était de créer un mobilier tout intégré qui puisse accueillir un important stock de vêtements, chapeaux, chaussures, et bien sûr, encore des livres.
Deux des côtés de la chambre ont été truffés de rangements sur mesure toute hauteur, peints en un vert soutenu qui donne à cette chambre des airs d’un cocon des plus intimes. « Le lit-coffre sert à ranger les valises et autres choses volumineuses et nous avons même créé un coffre en tête de lit pour ranger la couette ou les couvertures en été », explique Régis Lannoy.
Deux des côtés de la chambre ont été truffés de rangements sur mesure toute hauteur, peints en un vert soutenu qui donne à cette chambre des airs d’un cocon des plus intimes. « Le lit-coffre sert à ranger les valises et autres choses volumineuses et nous avons même créé un coffre en tête de lit pour ranger la couette ou les couvertures en été », explique Régis Lannoy.
La tête de lit parée d’un panoramique végétal choisi par les propriétaires a été équipée de liseuses et d’une étagère dédiée aux lectures du soir.
En cours de travaux. Cette rénovation, comme bien d’autres, a eu son lot de stress car, dès la démolition de la cuisine, un gros problème a été dévoilé. « Lorsque nous avons déshabillé la colonne d’évacuation, nous avons constaté qu’elle était entièrement rouillée au point que nous pouvions la traverser du doigt. Dès lors, les éviers des quatre étages supérieurs se déversaient dans cette cuisine », raconte Régis qui a dû faire intervenir la copropriété pour changer la colonne en urgence. « La rénovation a commencé avec ce désordre inquiétant, mais finalement mes clients ont été rassurés qu’il se soit révélé à ce moment », partage-t-il.
Après. Adepte des décors harmonieux, qui se suivent au fil des pièces, l’architecte d’intérieur a orienté ses clients vers une finition en faïence 10×10 centimètres comme dans la cuisine. « Je déteste les clignotements de matière et de couleurs et ces décors trop à la mode qui passent en un clin d’oeil », affirme-t-il.
Les propriétaires ont choisi un meuble vasque en chêne avec des portes cannées. Celles-ci ont d’ailleurs induit les portes cannées de la bibliothèque du séjour afin de créer un rappel.
Le vert est devenu la couleur phare de la salle d’eau, un choix qui a permis de recréer une ambiance naturelle comme ils les aiment, s’harmonisant parfaitement avec leur yucca qui trône dans la pièce.
Le vert est devenu la couleur phare de la salle d’eau, un choix qui a permis de recréer une ambiance naturelle comme ils les aiment, s’harmonisant parfaitement avec leur yucca qui trône dans la pièce.
Cette salle de bains entièrement repensée a gagné une fenêtre. Une spacieuse douche avec niches de rangement remplace avantageusement l’ancienne baignoire tandis qu’un meuble sur mesure intègre à la fois des rangements et une colonne technique pour le lave-linge et le sèche-linge. Les toilettes sont pour leur part restées au même endroit, leur porte donnant désormais dans cette la salle de bains.
À l’issue de cette rénovation, Régis Lannoy partage l’enthousiasme des propriétaires face au résultat. « L’échange initial avec le client est primordial », souligne l’architecte d’intérieur. « C’est cette première étape qui permet de saisir leurs aspirations esthétiques et d’apporter une réponse sur mesure à leurs attentes ». Une philosophie qui se reflète parfaitement dans cette transformation réussie.
ET VOUS ?
Que pensez-vous de cette rénovation ?
ET VOUS ?
Que pensez-vous de cette rénovation ?

































Qui habite ici ? Un couple de quinquagénaires
Emplacement : quartier Croix-Rousse (Lyon 4)
Superficie : 80 m²
Dates des travaux : septembre 2023 à avril 2024
Architecte d’intérieur : Régis Lannoy
Entreprise : les travaux ont été réalisés par l’entreprise générale KOM9 Rénovation (hors mobilier sur mesure)
Budget travaux : 120 000 euros
Photos : Florian Peallat