Visites Privées
Avant/Après : À Lyon, une maison en pisé retrouve sa luminosité
La réfection des toilettes a engendré une rénovation presque intégrale de cette maison de 130 m², avec des surprises
Il y a quinze ans, à Bron, dans l’agglomération lyonnaise, ce couple de sexagénaires a posé ses valises dans une maison de 130 m². Ils y ont élevé leurs trois enfants. La coquette bâtisse des années 1900, entourée d’un jardin, avait été fraîchement rénovée avant leur achat. Depuis, ils se sont contentés de quelques coups de peinture au fil des ans. Aujourd’hui que leurs jeunes adultes ont quitté le nid et qu’ils disposent de plus de temps pour repenser leur intérieur, un détail les préoccupe toujours : l’emplacement peu conventionnel des toilettes, donnant directement sur le séjour. C’est en remarquant des travaux dans leur quartier qu’ils décident de frapper à cette porte pour obtenir les coordonnées de l’entrepreneur…
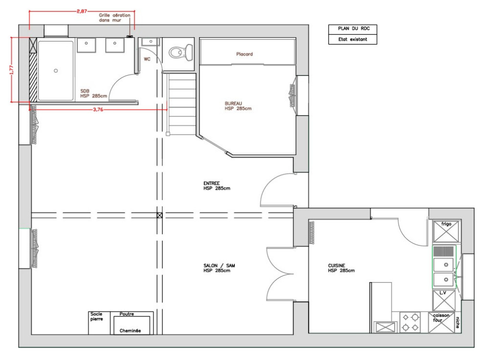
Plan du RDC avant travaux
Le hasard fait parfois bien les choses : c’est à la porte de l’architecte d’intérieur Gaëlle Ribouchon que ce couple vient de frapper. La professionnelle, formée aux Beaux-Arts de Toulouse puis au design d’espace, s’est installée à son compte en 2017 à Bron. Elle propose naturellement ses services pour repenser l’emplacement des toilettes, une aide de voisinage qui met immédiatement le couple en confiance.
Mais, contre toute attente, cette petite mission va se muer en trois mois de gros travaux pour transformer presque toute la maison. Comment la nécessité de cette transformation s’est-elle imposée ?
Le hasard fait parfois bien les choses : c’est à la porte de l’architecte d’intérieur Gaëlle Ribouchon que ce couple vient de frapper. La professionnelle, formée aux Beaux-Arts de Toulouse puis au design d’espace, s’est installée à son compte en 2017 à Bron. Elle propose naturellement ses services pour repenser l’emplacement des toilettes, une aide de voisinage qui met immédiatement le couple en confiance.
Mais, contre toute attente, cette petite mission va se muer en trois mois de gros travaux pour transformer presque toute la maison. Comment la nécessité de cette transformation s’est-elle imposée ?
Plan du RDC après travaux
« Au moment de la démolition, nous avons eu de très mauvaises surprises liées à l’état de la maison en pisé. Avec l’entrepreneur, nous avons dû rapidement proposer des solutions. Les clients nous ont fait confiance, car ils projetaient de vivre de longues années dans cette maison. Nos valeurs communes ont créé un lien solide et, avec l’entrepreneur, nous avons formé l’équipe idéale. Comme je le dis souvent, un chantier réussi, c’est la rencontre d’un maître d’ouvrage, d’un chef de chantier et d’un professionnel de l’aménagement. Ici, ce fut le perfect match », explique Gaëlle Ribouchon en préambule de notre visite.
Trouvez un architecte d’intérieur près de chez vous sur Houzz
« Au moment de la démolition, nous avons eu de très mauvaises surprises liées à l’état de la maison en pisé. Avec l’entrepreneur, nous avons dû rapidement proposer des solutions. Les clients nous ont fait confiance, car ils projetaient de vivre de longues années dans cette maison. Nos valeurs communes ont créé un lien solide et, avec l’entrepreneur, nous avons formé l’équipe idéale. Comme je le dis souvent, un chantier réussi, c’est la rencontre d’un maître d’ouvrage, d’un chef de chantier et d’un professionnel de l’aménagement. Ici, ce fut le perfect match », explique Gaëlle Ribouchon en préambule de notre visite.
Trouvez un architecte d’intérieur près de chez vous sur Houzz
Avant. Voici le salon dans son état d’origine avec la porte des toilettes au fond. Lorsque l’architecte d’intérieur est entrée pour la première fois dans cette maison 1900, elle a tout de suite été séduite par le décor « shabby chic » et l’âme qui se dégageait des lieux. « La propriétaire avait un vrai univers, elle aimait les meubles qui ont une histoire et l’ambiance campagne, ça m’a tout de suite plu », se remémore-t-elle.
Le problème des propriétaires fut vite identifié : juste à gauche de l’escalier se trouvait la porte des toilettes donnant directement sur le séjour. Par ailleurs, ils lui ont confié leur envie de remplacer leur grande armoire de famille par des rangements toute hauteur.
Le problème des propriétaires fut vite identifié : juste à gauche de l’escalier se trouvait la porte des toilettes donnant directement sur le séjour. Par ailleurs, ils lui ont confié leur envie de remplacer leur grande armoire de famille par des rangements toute hauteur.
Après. Voici la première projection en 3D que leur a soumise la professionnelle. Son idée était de transformer en sas le petit renfoncement d’origine, contigu à l’escalier, qui desservait les toilettes et la salle de bains, évitant ainsi que leurs portes ne donnent sur le séjour. Elle souhaitait ajouter à ce sas un coin lecture avec une banquette et un mur complet de rangement, en proposant d’empiéter légèrement sur la salle de bains à l’arrière. Un projet qui a immédiatement séduit les propriétaires.
Avant. Voici la salle de bains du rez-de-chaussée avant travaux. Modifier la cloison de la salle de bains n’a pas bloqué les propriétaires, qui ont très vite émis des doléances à propos de cette pièce. « C’était la salle de bains de monsieur, car madame préférait celle du haut, et il ne l’aimait pas. Ils l’avaient récupérée ainsi, avec ses sanitaires bordeaux en forme de fleur et ses carreaux rose. Monsieur ne se servait jamais de la baignoire, c’était pour lui une vraie perte de place », explique Gaelle.
En cours de travaux. La salle de bains en cours de chantier
La salle de bains a donc été déposée ainsi que sa cloison donnant sur le séjour afin de commencer les travaux du sas et des rangements, et c’est à ce moment que les choses se sont compliquées. « Le carrelage rose a commencé à tomber tout seul », se remémore Gaelle. « L’entreprise a gratté, trouvé du moisi, regratté et voilà ce qui est apparu : un mur en terre tout fissuré ! »…
La salle de bains a donc été déposée ainsi que sa cloison donnant sur le séjour afin de commencer les travaux du sas et des rangements, et c’est à ce moment que les choses se sont compliquées. « Le carrelage rose a commencé à tomber tout seul », se remémore Gaelle. « L’entreprise a gratté, trouvé du moisi, regratté et voilà ce qui est apparu : un mur en terre tout fissuré ! »…
La salle de bains en cours de chantier a révélé ce mur en pisé. Les murs en pisé datant du début du siècle sont une spécificité bien connue à Lyon, c’est-à-dire des murs en terre crue. Un peu plus tard, dans les années 1950-1960, l’agglomération lyonnaise a connu beaucoup d’extensions en mâchefer, un autre matériau peu courant constitué de béton mélangé à des résidus de houille.
Gaëlle se trouvait face à sa seconde rénovation dans du pisé puisque sa maison avait rencontré les mêmes désordres, et elle avait trouvé des solutions grâce à LEI Réseaux, une entreprise tout corps d’état expérimentée et de confiance avec laquelle elle a l’habitude de réaliser ses chantiers. « Ils ont tout de suite identifié que l’isolation et le Placo avaient été collés au mur lors de la précédente rénovation. Or, il ne faut jamais enfermer le pisé dans un doublage étanche, car c’est un matériau respirant qu’il faut toujours veiller à ventiler en laissant une lame d’air », indique-t-elle.
Gaëlle se trouvait face à sa seconde rénovation dans du pisé puisque sa maison avait rencontré les mêmes désordres, et elle avait trouvé des solutions grâce à LEI Réseaux, une entreprise tout corps d’état expérimentée et de confiance avec laquelle elle a l’habitude de réaliser ses chantiers. « Ils ont tout de suite identifié que l’isolation et le Placo avaient été collés au mur lors de la précédente rénovation. Or, il ne faut jamais enfermer le pisé dans un doublage étanche, car c’est un matériau respirant qu’il faut toujours veiller à ventiler en laissant une lame d’air », indique-t-elle.
Le rangement du séjour en construction sur la nouvelle cloison de la salle de bains.
À la suite à ce constat, le propriétaire a conduit la professionnelle dans son bureau (la pièce du rez-de-chaussée de l’autre côté de l’escalier) où le bas des murs était moisi, puis dans la salle de bains du dessus qui présentait le même problème d’humidité. « Toutes les pièces au nord avaient la même pathologie », résume Gaelle.
Ces propriétaires, bientôt retraités et avec plusieurs petits-enfants en bas âge, ne souhaitaient pas vieillir dans une maison malsaine, d’autant que l’on connaît les risques que l’humidité fait courir à la santé sur le long terme : rhinites allergiques, problèmes de bronches… « Ces propriétaires ont décidé de valider une rénovation plus globale », explique Gaelle.
En accord avec les propriétaires, une inspection complète de la maison s’est imposée. L’entreprise et l’architecte d’intérieur ont procédé à un diagnostic approfondi afin d’identifier les désordres hérités de la précédente rénovation pour planifier leur remise en état.
À la suite à ce constat, le propriétaire a conduit la professionnelle dans son bureau (la pièce du rez-de-chaussée de l’autre côté de l’escalier) où le bas des murs était moisi, puis dans la salle de bains du dessus qui présentait le même problème d’humidité. « Toutes les pièces au nord avaient la même pathologie », résume Gaelle.
Ces propriétaires, bientôt retraités et avec plusieurs petits-enfants en bas âge, ne souhaitaient pas vieillir dans une maison malsaine, d’autant que l’on connaît les risques que l’humidité fait courir à la santé sur le long terme : rhinites allergiques, problèmes de bronches… « Ces propriétaires ont décidé de valider une rénovation plus globale », explique Gaelle.
En accord avec les propriétaires, une inspection complète de la maison s’est imposée. L’entreprise et l’architecte d’intérieur ont procédé à un diagnostic approfondi afin d’identifier les désordres hérités de la précédente rénovation pour planifier leur remise en état.
Vous êtes en quête d'un artisan pour votre projet en rénovation complète ?
Nous vous aidons à trouver les meilleurs pros
Nous vous aidons à trouver les meilleurs pros
Le rangement du séjour en construction avec la pose des portes plaquées chêne sans poignées.
Une fois les travaux actés, le couple a quitté les lieux pendant trois mois, louant un Airbnb dans le quartier afin d’être présent chaque semaine pour les réunions de chantier. « C’est très important pour moi que mes clients s’impliquent dans leur projet et qu’ils comprennent ce que l’on fait à leur maison. Une fois de plus, tout a été totalement parfait avec ces clients », partage Gaelle.
Une fois les travaux actés, le couple a quitté les lieux pendant trois mois, louant un Airbnb dans le quartier afin d’être présent chaque semaine pour les réunions de chantier. « C’est très important pour moi que mes clients s’impliquent dans leur projet et qu’ils comprennent ce que l’on fait à leur maison. Une fois de plus, tout a été totalement parfait avec ces clients », partage Gaelle.
Après. La première phase des travaux a concerné la zone des toilettes et de la salle de bains en lien avec le séjour et l’escalier. Le nouveau fond de scène de la pièce de vie été pensé d’un seul geste depuis les nouveaux rangements jusqu’à l’escalier pour aboutir à un ensemble bien intégré. « Nous avons choisi un duo de chêne et une peinture bleue très douce pour contraster (Tollens Résonance T2028-3). Les placards ont des fermetures push lash évitant les poignées apparentes et la portes du sas a été traitée en continuité avec le même placage chêne », explique l’architecte d’intérieur.
Dans une bande de 80 centimètres nécessaire pour aligner la porte du sas à l’escalier, ce coin lecture avec banquette fait la jonction avec les placards gagnés sur la superficie de la salle de bains. « Une idée fort appréciée par ce couple pour leurs petits-enfants en bas âge », explique Gaelle.
Les petits-enfants ont même une case sous la banquette pour pouvoir ranger leurs jouets tout seuls comme des grands. « C’est vrai que depuis que j’ai deux enfants, je ne vois plus l’architecture pareil et cela donne des idées d’amélioration. Chaque chantier et chaque expérience de vie nous enrichit », philosophe la professionnelle.
L’inspection a révélé un nouveau problème au niveau des fenêtres, elles aussi refaites avant l’achat de la maison. « Les précédents propriétaires avaient opté pour une pose en rénovation », explique Gaëlle. Cette technique, qui consiste à installer un nouveau châssis sur l’ancien sans le déposer, avait créé ici un double cadre de 14 centimètres au total, réduisant significativement la surface vitrée. « Nous avons donc opté pour un remplacement complet : de nouvelles menuiseries en aluminium aux montants fins ont permis de maximiser largement l’apport de lumière naturelle », poursuit-elle.
Avant. La faïence en carrelage beige foncé à cabochon noir avait également été refaite lors de la précédente rénovation et n’avait pas tenu dans le temps, éclatant par endroits. Une autre source de doléances pour les propriétaires…
Après. Ceux-ci ont validé le changement de cette faïence sur tout le rez-de-chaussée par un grès cérame imitation parquet de chêne. « Ne trouvez-vous pas que le changement de sol et de fenêtre a complètement changé l’ambiance de la maison et met mieux en valeur le mobilier de ma cliente ? », interroge Gaelle face aux deux fenêtres qui inondent désormais le séjour d’une lumière douce, reflétée par le nouveau carrelage clair.
Plus d’idées pour aménager un salon sur Houzz
Plus d’idées pour aménager un salon sur Houzz
Avant. Evoquons à nouveau la salle de bains du rez-de-chaussée pour visualiser sa rénovation.
Après. Malgré une surface légèrement réduite, la nouvelle salle de bains s’inscrit parfaitement dans la continuité du séjour. Le mobilier suspendu en placage chêne, qui remplace l’ancienne faïence bordeaux, apporte de l’élégance et davantage de rangements par rapport à l’ancien lavabo.
Face au budget imprévu déjà important, l’architecte d’intérieur a cherché des solutions économiques. Son choix s’est porté sur une cabine de douche en applique tout intégrée, une alternative plus abordable qu’une douche à l’italienne qui aurait nécessité une reprise complète de l’étanchéité. « Malgré la réduction de surface, nous avons même gagné en fonctionnalité avec l’installation d’un grand meuble de rangement, alors qu’auparavant, la pièce n’en contenait aucun », souligne Gaëlle
La mise aux normes de la ventilation s’est également imposée comme une priorité. « À l’origine, la pièce ne disposait que d’une simple grille de ventilation naturelle », explique la professionnelle. Une VMC a donc été installée pour assurer un renouvellement d’air constant dans la salle de bains et éviter que l’humidité ne stagne. « Le moteur a été déporté dans le grenier pour limiter les nuisances sonores », précise-t-elle.
Avant. La cuisine d’origine, aménagée sur mesure en chêne massif, avait séduit les propriétaires lors de l’achat. Son design robuste et intemporel leur avait d’ailleurs permis de la conserver, se contentant de la repeindre pour l’accorder aux goûts shabby chic de la propriétaire. Les travaux de rénovation générale ont été l’occasion de lui offrir un nouveau rafraîchissement.
En cours de travaux. La rénovation du sol a nécessité une intervention en profondeur : dépose complète de la cuisine, ragréage, puis pose d’un nouveau carrelage effet parquet. Face à ce démontage complet, l’entreprise et l’architecte d’intérieur ont naturellement proposé de repenser l’aménagement. Cependant, les propriétaires restaient attachés à leur cuisine, tant pour sa configuration pratique que pour la qualité de ses meubles, promis encore à de belles années. Une réflexion s’est donc engagée pour identifier des interventions ciblées qui permettraient de moderniser l’ensemble tout en préservant ses atouts.
Après. Le premier fut le remplacement de la fenêtre ouvrant à la française par un châssis fixe sans petit bois, juste au-dessus de leur évier. « On peut faire la vaisselle en ayant une vue comme un tableau sur le magnifique jardin », explique Gaelle, qui s’est occupée de toutes les autorisations d’urbanisme nécessaires au changement de menuiserie auprès des services de la ville.
L’évier en faïence marron a également été remplacé par un évier plus moderne en pierre synthétique blanc cassé. Par ailleurs, tous les plans de travail ont été renouvelés avec un stratifié chêne qui s’accorde aux matériaux choisis dans le séjour et apporte un côté chaleureux à la pièce.
Enfin, ils ont procédé à la réfection de la hotte. L’imposante structure d’origine, en forme de pyramide crépie, a cédé la place à une solution plus contemporaine. « Nous avons opté pour un groupe d’aspiration encastré, qui allège l’espace. Cette modification nous a même permis d’optimiser le rangement en intégrant des placards discrets au-dessus du four », explique Gaelle.
Avant. L’escalier en pin, initialement blanchi par les propriétaires, assure la liaison avec l’étage. Sa vue directe depuis le séjour a imposé sa rénovation en cohérence avec les travaux du séjour.
Après. L’escalier a été poncé et vitrifié, ce qui a éclairci le bois, puis les contremarches ont été peintes en bleu pâle comme le mur du salon, une teinte qui contraste bien avec le bois blond. Une nouvelle rampe a été intégrée sur la droite, étant donné que le garde-corps de gauche avait été déposé pour prolonger la cloison du sas. « Ma cliente a eu une belle idée. Elle a trouvé une idée de rampe lumineuse sur internet et l’entreprise a réalisé la rampe en intégrant un ruban LED », explique l’architecte d’intérieur.
Les toilettes, toujours positionnées sous l’escalier, ont bénéficié d’une rénovation complète : un revêtement en grès cérame beige imitation pierre au sol et l’installation d’une cuvette suspendue modernisent l’espace. Le sas de distribution, qui dessert désormais à la fois les toilettes et la salle de bains depuis le séjour, a tout changé. « C’est une solution particulièrement appréciable en termes d’intimité pour ces propriétaires qui reçoivent régulièrement leur famille », résume Gaelle.
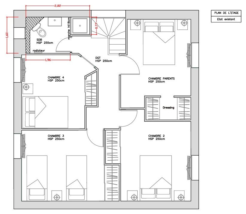
Avant. La rénovation s’est également étendue à la salle de bains de l’étage, où les problèmes d’humidité similaires devaient être traités. L’état des lieux a révélé la présence de toilettes installées sur un imposant coffrage d’angle, comme le montre le plan de l’étage.
La salle de bains de madame n’était pas très pratique avec cette vieille douche des années 1970 et sa porte battante vers l’intérieur.
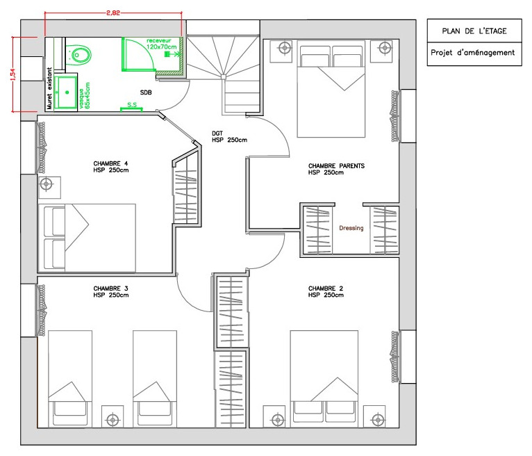
Après. La dépose de la salle de bains a apporté une fois de plus son lot de surprises, mais bonnes cette fois-ci, puisque « le coffrage des toilettes, que l’on aurait pu penser très utile, ne servait à rien. Il n’y avait aucun tuyau qui passait à cet endroit », raconte Gaelle.
Il a donc été possible de gagner beaucoup de place dans cette pièce et d’installer les toilettes suspendues à côté de la vasque.
L’opération a même dégagé de l’espace pour agrandir la douche. Elle a été pavée de zelliges bleu ciel pour rester dans l’harmonie choisie.
Précisons pour finir que le bureau du propriétaire et toutes les chambres de l’étage ont été repeints.
Précisons pour finir que le bureau du propriétaire et toutes les chambres de l’étage ont été repeints.
Ce chantier revêt une importance particulière pour l’architecte d’intérieur Gaelle Ribouchon, tant sur le plan professionnel qu’humain. Cette seconde expérience avec une maison en pisé lui a permis d’enrichir ses compétences techniques, tandis que la relation de confiance avec ses clients a donné une dimension mémorable au projet. « Ils m’ont donné les clefs de leur maison, leur budget et on a trouvé des solutions avec l’entreprise. On se sent vraiment investi d’une mission et j’aime que l’on ait construit ça tous ensemble ! Je suis d’ailleurs restée liée avec ce couple, comme lorsque des liens se tissent quand on a partagé ensemble une histoire forte ».
ET VOUS ?
Que pensez-vous de cette rénovation ? Avez-vous déjà eu des mauvaises surprises lors d’une rénovation ?
ET VOUS ?
Que pensez-vous de cette rénovation ? Avez-vous déjà eu des mauvaises surprises lors d’une rénovation ?








































Qui vit ici ? Un couple de sexagénaires
Superficie : 130 m² sur deux niveaux
Emplacement : Bron, dans la métropole lyonnaise
Livraison du projet : mi-mai 2023 après 3 mois de travaux
Architecte d’intérieur : Gaelle Ribouchon
Entreprise : LEI Réseaux à Lyon
Budget : 110 000 € TTC (hors honoraires)
Photos : Amandine Vey