Visites Privées
Intérieurs colorés
Avant/Après : À Nantes, un logement neuf prend des couleurs
Cet appartement acheté sur plan se métamorphose grâce aux idées colorées de l'architecte d'intérieur Lydie Pineau
C’est un très bel appartement de 130 m² en étage élevé d’une promotion haut de gamme, située dans le centre de Nantes, que ce couple de quinquagénaires a retenu auprès d’un promoteur. La livraison approche, et il est désormais nécessaire d’anticiper l’aménagement et la décoration de ce logement sur plan (autrement dit, Vefa en langage juridique), car celui-ci sera livré juste peint en blanc et sans cuisine ni guère de rangements, comme c’est souvent le lot des constructions neuves. Pour un bon accompagnement dans cette personnalisation, le couple entre en contact par bouche-à-oreille avec Lydie Pineau, une architecte d’intérieur qui les retient par son attrait pour les intérieurs de caractère, hauts en couleur.
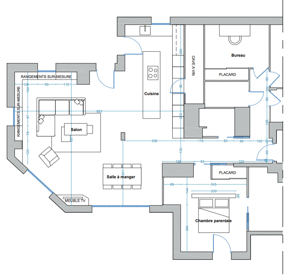
Avant. À deux pas de la place Viarme, l’appartement sur plan composé d’une vaste pièce de vie ouverte et de deux suites a séduit ces Nantais qui l’ont acheté sur plan selon l’implantation ci-dessus émanant du promoteur.
Comment gérer l’achat et l’aménagement d’un bien neuf sur plan ?
Comment gérer l’achat et l’aménagement d’un bien neuf sur plan ?
Après. Quelques mois avant la livraison, lors de la « visite des cloisons » – la seule visite autorisée par le promoteur avant la remise des clés – le couple a invité l’architecte d’intérieur Lydie Pineau à se joindre à eux. Ils ont fait appel à ses compétences pour pour les aider à faire évoluer l’appartement selon leurs souhaits. « Ils aimaient la couleur et Monsieur portait même un intérêt particulier aux intérieurs audacieux, avec du caractère. Ils m’ont sollicitée pour optimiser les espaces en terme de rangement et de décoration, en me demandant de me concentrer sur la conception de la cuisine ainsi que l’aménagement de l’entrée, du séjour et de la chambre parentale », partage la professionnelle, qui a guidé notre visite.
Trouvez un architecte d’intérieur près de chez vous sur Houzz
Trouvez un architecte d’intérieur près de chez vous sur Houzz
Après. Dans l’entrée, initialement sombre, la professionnelle a joué la carte de l’originalité. Réputée pour sa passion des environnements colorés et profondément personnels, elle a une méthode bien à elle pour impliquer les clients qui la sollicitent pour son talent. « Pour placer le curseur, j’aime provoquer leur sensibilité et les pousser au-delà de ce qu’ils envisagent. Collaborer avec un architecte d’intérieur n’a guère d’intérêt si l’on se contente de blanc et de décors insipides », estime-t-elle.
Le coup de cœur des propriétaires, adeptes d’intérieurs de caractère, s’est fait sur un papier peint de chez Arte au décor tropical. Les teintes qui sont venues parer le mur opposé et le plafond – un corail et un kaki intenses – en ont découlé pour créer un cocon chaleureux et enveloppant. Pour ne pas gâcher ce décor, les prises et les interrupteurs qui avaient été posés un peu anarchiquement ont été déplacés.
Le coup de cœur des propriétaires, adeptes d’intérieurs de caractère, s’est fait sur un papier peint de chez Arte au décor tropical. Les teintes qui sont venues parer le mur opposé et le plafond – un corail et un kaki intenses – en ont découlé pour créer un cocon chaleureux et enveloppant. Pour ne pas gâcher ce décor, les prises et les interrupteurs qui avaient été posés un peu anarchiquement ont été déplacés.
L’une des principales attentes du couple portait sur la création de la cuisine, qui n’était pas prise en charge par le promoteur. Et ce, d’autant qu’ils adorent cuisiner et recevoir.
Dans la grande pièce ouverte de 62 m², le défi était de créer une zone propre pour la cuisine et une autre pour le séjour. La cuisine s’est habillée de noir, le séjour de blanc, un duo chic et zen, agrémenté d’inserts de couleur et de bois. « Dans une pièce ouverte, tout le défi est de créer des espaces distincts et de faire matcher les ambiances », rappelle l’architecte d’intérieur.
Plus d’idées pour agrémenter une cuisine noire sur Houzz
Dans la grande pièce ouverte de 62 m², le défi était de créer une zone propre pour la cuisine et une autre pour le séjour. La cuisine s’est habillée de noir, le séjour de blanc, un duo chic et zen, agrémenté d’inserts de couleur et de bois. « Dans une pièce ouverte, tout le défi est de créer des espaces distincts et de faire matcher les ambiances », rappelle l’architecte d’intérieur.
Plus d’idées pour agrémenter une cuisine noire sur Houzz
Après. La cuisine se fait enveloppante dans son cocon coloré et joue la carte de la convivialité, avec son îlot central où l’on peut préparer les repas tout en discutant avec ses amis ou encore déjeuner à deux. La fonctionnalité est également au rendez-vous avec un équipement électroménager complet et haut de gamme : une plaque induction avec hotte intégrée, deux armoires frigo et congélateur, deux fours, un lave-vaisselle et une cave à vin de service.
« Pour Monsieur, féru d’œnologie, l’arrière-cuisine a été dédiée à sa collection de grands crus, stockée dans des caisses à vin qui ont été installées sur les parois du cellier », révèle Lydie. Notez que, derrière le plan de travail, une ouverture vitrée permet de voir la cave de garde depuis la cuisine, lui dispensant juste ce qu’il faut de lumière naturelle. La porte du cellier a, quant à elle, été travaillée pour se faire oublier.
« Pour Monsieur, féru d’œnologie, l’arrière-cuisine a été dédiée à sa collection de grands crus, stockée dans des caisses à vin qui ont été installées sur les parois du cellier », révèle Lydie. Notez que, derrière le plan de travail, une ouverture vitrée permet de voir la cave de garde depuis la cuisine, lui dispensant juste ce qu’il faut de lumière naturelle. La porte du cellier a, quant à elle, été travaillée pour se faire oublier.
Vous êtes en quête d'un artisan pour votre projet en rénovation de cuisine ?
Nous vous aidons à trouver les meilleurs pros
Nous vous aidons à trouver les meilleurs pros
L’intégration parfaite du mobilier, tant côté cuisine que séjour, constitue le fil rouge de cette rénovation. Afin que les aménagements disparaissent le plus possible dans cette pièce ouverte, l’architecte d’intérieur a imaginé un agencement « en double peau ». Ainsi, les meubles toute hauteur enserrent les murs et se transforment en parois dans lesquels s’extrudent plans de travail ou étagères façon niches.
Après. Conformément aux plans conçus par Lydie Pineau, le mobilier laqué émanant de l’enseigne Schmidt a été entièrement customisé sur mesure par un menuisier. Celui-ci a donné corps à son attention particulière aux lignes et à l’équilibre de la composition. « Je privilégie la collaboration avec des artisans locaux talentueux. J’accorde une grande importance à cette démarche, dans la mesure où mes clients en ont la possibilité, car cela contribue à préserver nos savoir-faire locaux », partage-t-elle.
Remarquez le liseré en stratifié chêne clair qui s’étend entre les deux niveaux de meubles hauts, créant ainsi le linteau de la porte de la cave à vin. De la même manière, l’emplacement des quatre suspensions en béton, judicieusement installées au-dessus de l’îlot, n’a pas été laissé au hasard.
Travailler avec un menuisier, tout ce qu’il faut savoir
Remarquez le liseré en stratifié chêne clair qui s’étend entre les deux niveaux de meubles hauts, créant ainsi le linteau de la porte de la cave à vin. De la même manière, l’emplacement des quatre suspensions en béton, judicieusement installées au-dessus de l’îlot, n’a pas été laissé au hasard.
Travailler avec un menuisier, tout ce qu’il faut savoir
La palette de couleurs a également été méticuleusement réfléchie. Pour une distinction nette entre la cuisine et le séjour, l’idée audacieuse de prolonger le plafond kaki de l’entrée jusqu’au-dessus de la cuisine a été adoptée, un choix qui s’est révélé fructueux. « Mon client a été enthousiasmé par cette proposition ! », souligne Lydie avec satisfaction.
Une crédence dans une teinte rouille profonde crée un contraste subtil avec le kaki environnant. « Mon client avait exprimé son penchant pour l’aspect rouillé, et j’ai cherché la teinte parfaite pour cet espace. Un effet Corten aurait été trop orangé, mais les panneaux de placage de chez Polyrey ont parfaitement répondu à cette attente », confie-t-elle.
L’îlot imposant, revêtu d’un Dekton noir mat texturé rappelant le granit du Zimbabwe, se fond harmonieusement dans la cuisine noire. Les notes boisées sur le plan de travail et dans les niches de l’îlot évoquent le parquet en chêne choisi par les clients en collaboration avec le promoteur et apportent, par touches, chaleur et contraste à l’espace.
Une crédence dans une teinte rouille profonde crée un contraste subtil avec le kaki environnant. « Mon client avait exprimé son penchant pour l’aspect rouillé, et j’ai cherché la teinte parfaite pour cet espace. Un effet Corten aurait été trop orangé, mais les panneaux de placage de chez Polyrey ont parfaitement répondu à cette attente », confie-t-elle.
L’îlot imposant, revêtu d’un Dekton noir mat texturé rappelant le granit du Zimbabwe, se fond harmonieusement dans la cuisine noire. Les notes boisées sur le plan de travail et dans les niches de l’îlot évoquent le parquet en chêne choisi par les clients en collaboration avec le promoteur et apportent, par touches, chaleur et contraste à l’espace.
Après. Si la magnifique vue sur Nantes depuis les baies vitrées happe le visiteur, l’aménagement du séjour n’était pas aisé en raison de ses nombreuses fenêtres. « Impossible de mettre des meubles du commerce. Il fallait habiller les formes atypiques de la pièce en faisant en sorte que le mobilier se fonde dans les murs afin de laisser la part belle à la vue », partage l’architecte d’intérieur.
Le mobilier a été dessiné là encore à la manière d’une double peau qui ne fait qu’un avec les murs existants, puis intégralement réalisé par le menuisier. « Nous avons travaillé dans une base blanche pour tempérer la zone cuisine et créer du contraste. Tout le mobilier a été encastré pour éviter un effet massif et garder dans la pièce un maximum de fluidité » décrypte-t-elle.
Afin d’apporter néanmoins du rythme et de l’originalité à ces parois blanches, elles ont été enrichies d’effets matières et d’inserts de couleur, « Mon client m’avait indiqué aimer le style Mondrian et nous nous en sommes inspirés pour créer du mobilier fonctionnel et coloré qui procure un effet waouh », explique Lydie.
Ainsi des niches bleu, bois, métallisées ou terracotta appellent l’œil et font joliment ressortir la décoration qu’elles supportent.
Ainsi des niches bleu, bois, métallisées ou terracotta appellent l’œil et font joliment ressortir la décoration qu’elles supportent.
Après. Dans les constructions neuves, les chambres sont souvent lumineuses et bien isolées thermiquement et phoniquement mais leur superficie est souvent limitée, ce qui complique leur aménagement. Dans cette chambre de 16 m², c’est à un autre obstacle que s’est confrontée l’architecte d’intérieur. « Les propriétaires ne souhaitaient pas un lit placé contre le mur mais en îlot, face à la baie vitrée », révèle-t-elle.
À charge pour elle d’inventer une configuration plaisante, ce qu’elle a réussi grâce à une tête de lit menuisée sur mesure en placage noyer et recouverte d’un papier peint en relief de chez Arte. « La partie arrière comporte des étagères pour placer des livres et de la décoration », précise-t-elle.
À charge pour elle d’inventer une configuration plaisante, ce qu’elle a réussi grâce à une tête de lit menuisée sur mesure en placage noyer et recouverte d’un papier peint en relief de chez Arte. « La partie arrière comporte des étagères pour placer des livres et de la décoration », précise-t-elle.
Pour prolonger l’ambiance tropicale initiée dans l’entrée, un papier peint au feuillage coloré anime l’un des murs de la chambre. Un renfoncement de la pièce a également été aménagé en coiffeuse sur mesure pour Madame, dont nous n’avons malheureusement aucune photo.
Après environ trois mois de travaux, les clients de Lydie Pineau ont exprimé à leur architecte d’intérieur qu’ils se sentaient parfaitement chez eux, une réaction qui n’a pas manqué de susciter une réponse émue de sa part. « Recevoir un tel compliment est la plus belle récompense pour moi, car faire du beau est ce qui m’anime. Savoir que les gens se sentiront bien chez eux même dix ans plus tard, comme me l’a confié une de mes anciennes clientes, m’apporte véritablement de la joie ! »
ET VOUS ?
Que pensez-vous de cette rénovation ?
Après environ trois mois de travaux, les clients de Lydie Pineau ont exprimé à leur architecte d’intérieur qu’ils se sentaient parfaitement chez eux, une réaction qui n’a pas manqué de susciter une réponse émue de sa part. « Recevoir un tel compliment est la plus belle récompense pour moi, car faire du beau est ce qui m’anime. Savoir que les gens se sentiront bien chez eux même dix ans plus tard, comme me l’a confié une de mes anciennes clientes, m’apporte véritablement de la joie ! »
ET VOUS ?
Que pensez-vous de cette rénovation ?























Qui habite ici ? Un couple de quinquagénaires
Emplacement : Nantes
Superficie de l’appartement : 130 m². Les travaux ne concernent que 88 m² : l’entrée (10 m²), le séjour (44 m²), la cuisine (18 m²) et la chambre (16 m²)
Budget : 2 000 euros /m²
Date : livraison en 2022 après 3 mois de travaux
Architecte d’intérieur : Lydie Pineau
Photos : Caroline Morin