Dossiers populaires
Avant/Après : Ce 14 m2 gagne une micro-salle d'eau incroyable
À Paris, un atelier transformé en studio et ses WC de 1,40 m² en salle d'eau grâce à un système révolutionnaire
Quand cette avocate cherche des bureaux à Paris, elle repense à un local de famille inutilisé, en l’occurrence l’ancien atelier de peinture de sa maman dans le Ier arrondissement. Eclairée par deux petites fenêtres, la pièce carrée flanquée d’un WC formant une excroissance, est nichée au premier étage sur cour d’un immeuble en pans de bois du quartier Saint-Honoré. L’avocate charge son fils, étudiant en école d’architecture, de réfléchir au plan afin d’ajouter au local une cuisine et une salle de bains. En cherchant des idées pour transformer les toilettes de 1,40 m² en vraie salle de douche, vasque et WC, il tombe sur la vidéo d’une salle de bains gain d’espace révolutionnaire, signée par l’architecte d’intérieur Sarah Campet. La propriétaire décide alors de prendre contact avec cette jeune femme, laquelle affirme que « quel que soit l’espace, ce qu’(elle) aime dans (son) métier c’est optimiser coûte que coûte le plan, en travaillant au centimètre près ».
Important : La différence de qualité entre les photos avant et après s’explique par le fait que les photos avant sont des photos amateurs, souvent prises par le propriétaire ou le professionnel lui-même, et les photos après sont issues de shootings réalisés par des photographes professionnels.
Important : La différence de qualité entre les photos avant et après s’explique par le fait que les photos avant sont des photos amateurs, souvent prises par le propriétaire ou le professionnel lui-même, et les photos après sont issues de shootings réalisés par des photographes professionnels.
Avant. Lors de sa première visite de l’atelier de peinture, l’architecte d’intérieur découvre une pièce très basse de plafond (2,15 m sous les poutres), murs orange vif et moquette marron, remplie à craquer de toiles peintes. Une fois débarrassée, la pièce demeure sombre, éclairée seulement par deux petites fenêtres, mais ses proportions (3,75 x 3,45 m) sont plutôt harmonieuses. Le local dispose par ailleurs de toilettes avec lave-mains, sans aucun autre point d’eau.
Trouvez un architecte d’intérieur sur Houzz
Trouvez un architecte d’intérieur sur Houzz
Après. La cliente désire installer son activité d’avocate dans ce local et disposer en outre d’un pied à terre pour le week-end. Elle demande donc à la professionnelle de caser à la fois un grand bureau muni de rangements confortables pour ses dossiers ainsi que les aménagements nécessaires à un studio pour deux personnes (salle de bains, cuisine, dressing, espace repas). « Un programme vraiment très ambitieux ! », résume Sarah Campet, l’architecte d’intérieur.
Chaise scandinave ancienne Fanett de Ilmari Tapiovaara
Chaise scandinave ancienne Fanett de Ilmari Tapiovaara
Avant. Juste à la droite de l’entrée, l’excroissance formée par les toilettes va être le théâtre d’une transformation bluffante de l’espace. « C’était une drôle de pièce qui avait été rajoutée après coup à l’immeuble ancien. Dans la cour, elle formait une verrue soutenue par deux poteaux porteurs », détaille l’architecte d’intérieur. Cette pièce de 1,40 m² avec petit vasistas va en effet être transformée en salle d’eau avec douche, toilettes et vasque à la faveur d’une astuce inédite mise au point par la pro.
Après. À gauche de l’entrée figurait un meuble de séparation, lequel enfermait en particulier le compteur. La propriétaire trouvait que le renfoncement formé à l’arrière se prêtait bien à installer sa cuisine. « C’était en effet la meilleure place mais il était impossible de savoir avant travaux si nous allions pouvoir techniquement relier les évacuations à la colonne présente dans les toilettes car il fallait décaisser le sol devant l’entrée. Jusqu’au début des travaux nous avions donc prévu un plan de secours avec la cuisine côté fenêtre », relate l’architecte d’intérieur.
En accompagnant la professionnelle dans la visite des lieux rénovés de A à Z, nous entrons face à un claustra en tasseaux de chêne. Réalisé par le menuisier de la société tout corps d’état, il esquisse un sas d’entrée tout en légèreté et dissimule le bureau. Appuyé à celui-ci, un placard d’un mètre de haut, recouvert d’une tablette de chêne, joue les meubles vide-poches : « C’est un caisson Ikea adapté. Il sert à ma cliente pour stocker ses dossiers et les consulter debout », affirme Sarah.
En prolongement, placé au niveau le plus lumineux du studio, le grand bureau souhaité par l’avocate a été conçu sur mesure en médium peint. « Il s’adapte au coin pas droit de la pièce et au renfoncement sous la fenêtre, offre un arrondi confortable au niveau de la zone de travail et un passe-câbles », nous fait remarquer la pro qui l’a entièrement designé.
En prolongement, placé au niveau le plus lumineux du studio, le grand bureau souhaité par l’avocate a été conçu sur mesure en médium peint. « Il s’adapte au coin pas droit de la pièce et au renfoncement sous la fenêtre, offre un arrondi confortable au niveau de la zone de travail et un passe-câbles », nous fait remarquer la pro qui l’a entièrement designé.
En fond de pièce s’épanouit un lit banquette, appuyé à d’autres caissons de rangement qui jouent le rôle de tête de lit. « La propriétaire tenait à un lit 160 x 200. Ce lit coffre transformable permet même de ranger les couettes et oreillers dans son soubassement équipé d’un tiroir », affirme l’architecte d’intérieur.
Lit : Hemnes, Ikea
Lit : Hemnes, Ikea
Au-dessus, une étagère en chêne sert de bibliothèque tandis que, sur la gauche, une grande colonne de 40 x 60 cm est aménagée en dressing. « C’est un élément de cuisine Ikea que nous avons détourné en penderie grâce à une tringle », explique la pro qui en plus des solutions gain d’espace, adore trouver des astuces pour raboter les budgets.
Après. Ces deux mètres de long ont été équipés de quatre caissons bas, dont l’un renferme un réfrigérateur. La cuisine n’étant pas destinée à un usage intensif s’est dispensée de crédence et de hotte. Mais le micro-ondes n’a pas été omis et se cache dans l’unique élément en hauteur.
Le plan de travail a été réalisé en chêne massif lamellé collé, vernis mat. « Quant à la couleur des murs empruntée au nuancier Farrow & Ball - jaune Babouche en cuisine et vert d’eau Green Blue au salon -, la propriétaire a voulu retrouver les couleurs qu’elle avait choisies dans sa maison de Suresnes », justifie Sarah.
Avant. Avec 103 cm de large et 135 cm de long, les toilettes de l’atelier n’étaient pas franchement immenses. La propriétaire s’était pourtant mis en tête de créer à cet emplacement une salle d’eau complète. Et c’est de cette décision qu’a découlé sa rencontre avec l’architecte d’intérieur Sarah Campet.
Après. En 2014, l’architecte d’intérieur avait travaillé avec son mari Olivier Taliani sur le plan d’un appartement destiné à la location, dans lequel l’espace dévolu à la salle de bains n’excédait pas 1,70 m². Olivier est ingénieur, Sarah passionnée par l’optimisation d’espace. À eux deux, ils ont mis au point un système escamotable ultra-ingénieux pour doubler le volume d’une salle de bains minuscule. L’astuce gain de place repose sur le principe d’une paroi mobile sur pivot qui offre une vasque côté face tandis que côté pile se cache la douche.
Sarah Campet n’a encore jamais eu l’occasion de réaliser chez des clients le système qu’elle a inventé, notamment en raison de son prix, autour des 7 000 euros la petite salle de bains. Mais après six ans de mise à l’épreuve, au fil des différents locataires de l’appartement, elle ne doute pas sur le fait qu’il soit costaud et pérenne. « Sans dévoiler mes secrets, l’évacuation passe dans la porte et n’est soumise à aucune torsion », nous indique-t-elle notamment.
Sarah Campet n’a encore jamais eu l’occasion de réaliser chez des clients le système qu’elle a inventé, notamment en raison de son prix, autour des 7 000 euros la petite salle de bains. Mais après six ans de mise à l’épreuve, au fil des différents locataires de l’appartement, elle ne doute pas sur le fait qu’il soit costaud et pérenne. « Sans dévoiler mes secrets, l’évacuation passe dans la porte et n’est soumise à aucune torsion », nous indique-t-elle notamment.
Mieux encore, depuis sa première réalisation, Sarah continue à faire progresser son idée géniale. « Nous avons trouvé un système pour améliorer la paroi pivotante : un pivot de porte avec amorti inventé par un architecte français qui a créé la société Elezio. Ce pivot rend la porte battante invisible, sans cadre ni charnière. Et on bascule d’une position à une autre d’une main sans forcer », explique-t-elle.
« Notre porte est fabriquée en bois de bateau étanche, carrelée du côté douche et équipée d’une vasque et d’un meuble Eket de chez Ikea, les plus légers possibles », détaille encore Sarah. Sur la droite de la vasque, les toilettes suspendues restent fixes et sont uniquement cachées lorsque l’on fait pivoter la vasque pour se doucher.
Dans la position vasque, qui est la plus classique, personne ne peut se douter qu’il existe une douche à l’arrière. C’était vraiment le système rêvé de l’avocate, amenée à partager les toilettes avec les clients sans forcément vouloir partager l’intimité de sa douche.
« Notre porte est fabriquée en bois de bateau étanche, carrelée du côté douche et équipée d’une vasque et d’un meuble Eket de chez Ikea, les plus légers possibles », détaille encore Sarah. Sur la droite de la vasque, les toilettes suspendues restent fixes et sont uniquement cachées lorsque l’on fait pivoter la vasque pour se doucher.
Dans la position vasque, qui est la plus classique, personne ne peut se douter qu’il existe une douche à l’arrière. C’était vraiment le système rêvé de l’avocate, amenée à partager les toilettes avec les clients sans forcément vouloir partager l’intimité de sa douche.
En position douche, l’espace disponible au sol est de 102 x 70 cm ce qui est purement incroyable pour une si petite salle de bains. « Le carré douche va jusqu’à la porte d’entrée qui a été traitée contre l’humidité et dispose d’un joint pour ne pas arroser la pièce de vie. Elle est même équipée d’un grand miroir », note Sarah.
Finalement ce qui a été le plus difficile dans cette réalisation s’est révélé être le choix de l’entreprise. « Nombreux ont pris peur quand je leur ai dit ce que je voulais faire mais Etoile Travaux a tout de suite accepté de relever le défi », indique Sarah. Le sens du détail cultivé par cette entreprise est en effet visible jusqu’à la pose parfaite du carrelage de sol, un damier dans le style vintage choisi par la propriétaire.
Aujourd’hui Sarah brûle de se confronter à la réalisation d’une nouvelle salle de bains de poche, tout en poursuivant son travail d’architecte d’intérieur dans tout type d’espaces : « C’est fou ce que cette expérience du minuscule m’a aidé à gérer différemment mes chantiers. Cette logique d’optimisation préexiste, même dans de grands espaces », nous a-t-elle confié en quittant les lieux.
Finalement ce qui a été le plus difficile dans cette réalisation s’est révélé être le choix de l’entreprise. « Nombreux ont pris peur quand je leur ai dit ce que je voulais faire mais Etoile Travaux a tout de suite accepté de relever le défi », indique Sarah. Le sens du détail cultivé par cette entreprise est en effet visible jusqu’à la pose parfaite du carrelage de sol, un damier dans le style vintage choisi par la propriétaire.
Aujourd’hui Sarah brûle de se confronter à la réalisation d’une nouvelle salle de bains de poche, tout en poursuivant son travail d’architecte d’intérieur dans tout type d’espaces : « C’est fou ce que cette expérience du minuscule m’a aidé à gérer différemment mes chantiers. Cette logique d’optimisation préexiste, même dans de grands espaces », nous a-t-elle confié en quittant les lieux.
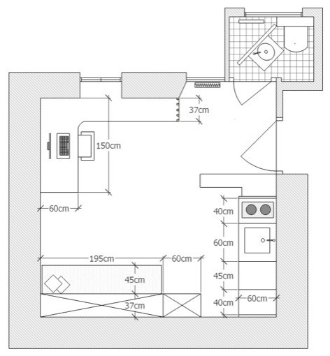
Le plan après travaux avec les cotes
ET VOUS ?
Que pensez-vous de cette rénovation ?
Trouvez des professionnels près de chez vous sur Houzz
Plus de photos déco
Découvrez d’autres Avant/Après
ET VOUS ?
Que pensez-vous de cette rénovation ?
Trouvez des professionnels près de chez vous sur Houzz
Plus de photos déco
Découvrez d’autres Avant/Après
























Qui habite ici : une avocate
Emplacement : au 1er étage sur cour d’un vieil immeuble du Ier arrondissement de Paris
Superficie : 14 m²
Date et durée des travaux : 3 mois de mai à juillet 2020
Architecte d’intérieur : Sarah Campet
Budget : 25 000 euros, rénovation, mobilier et électroménager compris (7000 euros pour la salle de bains)
Crédit Photos après travaux : Laura Jacques