Projets nés sur Houzz
Visites Privées
Avant/Après : Cocon de 32 m2 pour retraités épris de Paris
La métamorphose modèle d'un minuscule 3P et un adorable 2P pour des retraités et leurs petits-enfants
Dès la retraite, ce couple de Parisiens a préféré déménager en province pour profiter des joies d’une maison, d’un jardin où faire un potager, des balades dans la forêt toute proche. Mais, pour ne pas perdre de vue les sorties culturelles de la capitale dont ils sont friands et, surtout, profiter d’un pied-à-terre à proximité de leur fille et leurs deux petits-enfants, ils se mettent en quête d’une petite surface à rénover, avec l’aide et les conseils d’une architecte d’intérieur qu’ils ont repérée via le site Houzz.
Avant. Au 2ᵉ étage sur une cour arborée d’un immeuble 1910 du quartier Oberkampf (Paris 10ᵉ), l’architecte d’intérieur Charlotte Astruc a visité avec eux cet énième appartement. À la suite de leurs recherches d’un an et demi, c’est avec enthousiasme qu’elle a donné son aval. « Ce 32 m² avait tous les critères qu’ils cherchaient : très clair et calme sur une cour arborée, près de République, le quartier qui les intéressait ». Elle a également perçu, derrière ce minuscule trois pièces tout engoncé, « un plan intéressant que l’on pouvait entièrement décloisonner, la présence de nombreuses fenêtres déjà changées et un très beau parquet d’origine ».
Trouvez un architecte d’intérieur près de chez vous sur Houzz
Trouvez un architecte d’intérieur près de chez vous sur Houzz
Après. Les propriétaires souhaitaient faire de ce pied-à-terre un « cocon confortable et bien rangé pour quatre », dans lequel il soit agréable de rester à l’envi, un week-end par-ci ou même 15 jours par-là, au gré des vacances des petits-enfants.
Bien que la propriétaire ne soit pas foncièrement rassurée par l’état d’origine et le cloisonnement excessif, Charlotte Astruc était confiante dans le fait de pouvoir caser dans 32 m² leur programme exigeant, à savoir : « une vraie entrée, une vraie cuisine, une salle de bains avec machine à laver, un salon confortable avec convertible et une chambre avec dressing. »
Bien que la propriétaire ne soit pas foncièrement rassurée par l’état d’origine et le cloisonnement excessif, Charlotte Astruc était confiante dans le fait de pouvoir caser dans 32 m² leur programme exigeant, à savoir : « une vraie entrée, une vraie cuisine, une salle de bains avec machine à laver, un salon confortable avec convertible et une chambre avec dressing. »
Avant. On entrait directement sur la table à manger tandis que la cuisine vieillotte se situait sur la droite de la première pièce. En dépit de la belle et grande fenêtre, le manque de place généré par le cloisonnement étriqué a littéralement angoissé la cliente, qui avait du mal à se projeter.
Après. Cependant, les plans et les rendus en 3D que la professionnelle a produits à la suite de cette visite l’ont vite tranquillisée puisque d’emblée, dans la petite surface en longueur, elle a recherché un maximum de perspective afin de faire respirer l’espace et ses occupants.
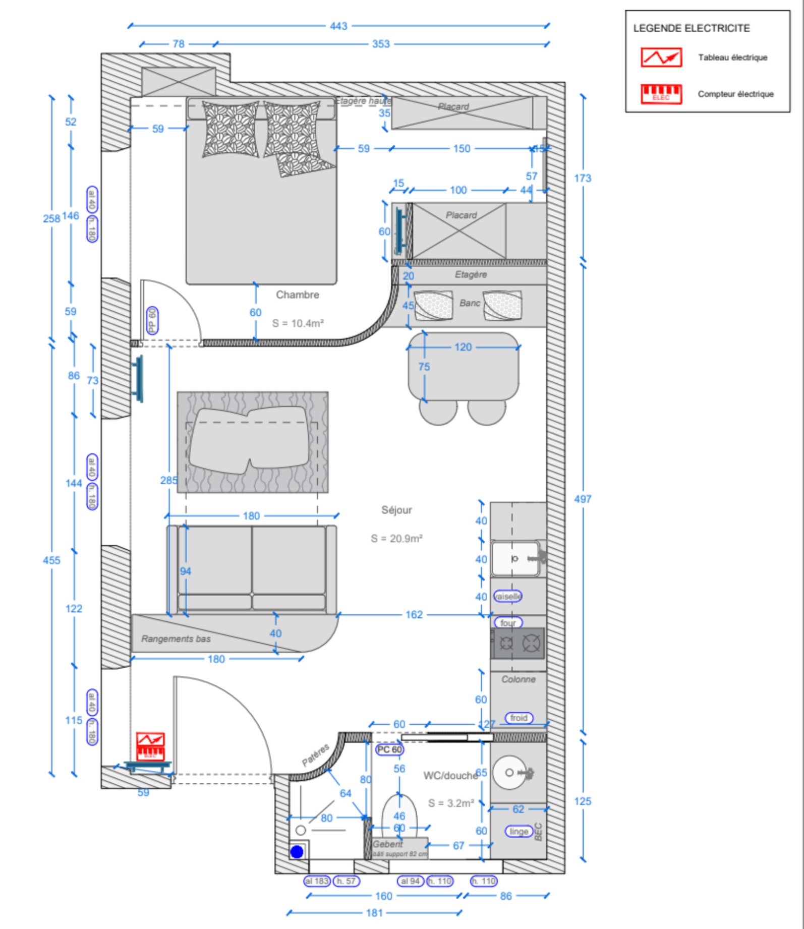
La chambre a été pressentie au fond pour bénéficier d’une vraie intimité. La salle de bains et la cuisine sont restées vers l’entrée pour mettre à profit les évacuations existantes.
La chambre a été pressentie au fond pour bénéficier d’une vraie intimité. La salle de bains et la cuisine sont restées vers l’entrée pour mettre à profit les évacuations existantes.
Et Charlotte n’a pas pas fait l’impasse sur la véritable entrée souhaitée par les propriétaires. La cloison d’antan a été remplacée par une bibliothèque double face, qui joue les filtres légers avec le coin salon, sans bloquer ni la vue ni la lumière. Composée d’un soubassement fermé, elle est surplombée d’étagères arrimées à des tubes chromés. La partie basse, truffée de placards à chaussures, accueille également la box, tandis qu’un autre de ses éléments est dédié aux jouets des petits-enfants.
« Ils voulaient pouvoir se délester de leurs affaires en entrant et que les choses soient bien ordonnées. Bénéficier d’un intérieur épuré et reposant, c’était une attente très forte », se remémore-t-elle.
Le salon s’est retrouvé au centre du plan et, pour éviter le flottement dû au décloisonnement, le claustra est venu tracer un élément structurant très utile, permettant d’y appuyer le canapé.
Le salon s’est retrouvé au centre du plan et, pour éviter le flottement dû au décloisonnement, le claustra est venu tracer un élément structurant très utile, permettant d’y appuyer le canapé.
« Comme le programme était tout de même chargé, lorsque nous avons placé tous les blocs de fonction angulaires sur le plan, la fluidité de circulation n’était pas bonne. C’est pourquoi nous avons tout revu avec des arrondis », dévoile Charlott,e alors que dans l’entrée, nous admirons ce coin concave dédié aux manteaux qui trace la séparation avec la salle d’eau.
Après. Ce leitmotiv cintré n’a certes pas fait le bonheur du maçon du chantier qui y a usé sa marouflette, mais a bien adouci les lignes en créant dans la petite surface un fil rouge particularisant. Cela était d’autant plus bienvenu que les propriétaires ne souhaitaient pas de couleurs, craignant de se lasser. « J’aurais bien mis une teinte de transition entre la cuisine et le coin repas, mais il n’y avait rien à faire, ils préféraient capitaliser sur la lumière des deux grandes fenêtres de la pièce de vie et garder du blanc », raconte Charlotte.
Tabouret noir : AM.PM
Tabouret noir : AM.PM
La proposition de beaux matériaux a toutefois séduit les propriétaires, ce qui faute de couleur, donne du relief à cette pièce et un rendu plus noble.
Ainsi, dans la cuisine constituée sur du mobilier Ikea, la crédence a été réalisée avec des tuiles de céramique grège bombées (Casalux), tandis que le plan de travail a été paré de quartz Silestone Yukon, d’un chamois très doux. « Je privilégie les fournisseurs locaux avec qui j’ai une relation de confiance. Cette proximité permet de trouver des produits uniques et d’aider ces commerces à prospérer, car la circulation difficile à Paris les pénalise. J’apprécie aussi le contact humain et la flexibilité que ces collaborations offrent, ce qui me permet d’explorer de nouvelles options et de répondre à des demandes spécifiques », explique la professionnelle.
Plan de travail : Silestone Yukon, Cosentino, posé par le marbrier Les Émaux de la Fontaine ; Ruban Led : Paulmann
Ainsi, dans la cuisine constituée sur du mobilier Ikea, la crédence a été réalisée avec des tuiles de céramique grège bombées (Casalux), tandis que le plan de travail a été paré de quartz Silestone Yukon, d’un chamois très doux. « Je privilégie les fournisseurs locaux avec qui j’ai une relation de confiance. Cette proximité permet de trouver des produits uniques et d’aider ces commerces à prospérer, car la circulation difficile à Paris les pénalise. J’apprécie aussi le contact humain et la flexibilité que ces collaborations offrent, ce qui me permet d’explorer de nouvelles options et de répondre à des demandes spécifiques », explique la professionnelle.
Plan de travail : Silestone Yukon, Cosentino, posé par le marbrier Les Émaux de la Fontaine ; Ruban Led : Paulmann
Bien que compacte, la cuisine a été aménagée sur la pleine hauteur et équipée pour réellement cuisiner. On y retrouve une colonne réfrigérateur congélateur, un domino à induction et une hotte à filtre, un four combiné micro-ondes (qui évite deux fours), un lave-vaisselle de 45 centimètres et de nombreux placards.
Sur la gauche de la cuisine, l’espace repas s’adosse à la cloison de la chambre, prenant la forme d’un mignon coin banquette surmonté d’étagères ouvertes et fermées. « C’est une bonne solution gain de place », estime Charlotte, qui a conçu la menuiserie en médium avec des coffres dans l’assise et le dossier. On y range la couette du canapé convertible du séjour et dans le dossier, les tableaux que la propriétaire aime bien faire varier sur les étagères dédiées à la déco.
Évier et robinet : Blanco, UDS Market ; crédence : faïence Dune Bianco, Casalux + joint époxy
Sur la gauche de la cuisine, l’espace repas s’adosse à la cloison de la chambre, prenant la forme d’un mignon coin banquette surmonté d’étagères ouvertes et fermées. « C’est une bonne solution gain de place », estime Charlotte, qui a conçu la menuiserie en médium avec des coffres dans l’assise et le dossier. On y range la couette du canapé convertible du séjour et dans le dossier, les tableaux que la propriétaire aime bien faire varier sur les étagères dédiées à la déco.
Évier et robinet : Blanco, UDS Market ; crédence : faïence Dune Bianco, Casalux + joint époxy
La table a été réalisée sur mesure grâce au recyclage d’un plan de travail en stratifié compact Absolu Roc blanc de Polyrey, qui appartenait déjà aux propriétaires, et de pieds sur mesure de La Fabrique des Pieds. Elle est surplombée d’une applique potence industrielle, fabriquée par un membre de la famille.
La banquette a été recouverte sur mesure par la tapissière Deloison, une tourangelle rencontrée par Charlotte grâce à la magie des réseaux. « J’étais en recherche d’une bonne référence et l’une de mes followers m’a mise en contact avec cette perle », remercie-t-elle.
Si la propriétaire avait au départ sélectionné de belles chaises à manger, elle a finalement préféré, sur les conseils de son architecte d’intérieur, deux tabourets aux formes totémiques qui impactent moins l’espace.
Coussin banquette : tissu Océan, Jab Anstoetz Fabrics
La banquette a été recouverte sur mesure par la tapissière Deloison, une tourangelle rencontrée par Charlotte grâce à la magie des réseaux. « J’étais en recherche d’une bonne référence et l’une de mes followers m’a mise en contact avec cette perle », remercie-t-elle.
Si la propriétaire avait au départ sélectionné de belles chaises à manger, elle a finalement préféré, sur les conseils de son architecte d’intérieur, deux tabourets aux formes totémiques qui impactent moins l’espace.
Coussin banquette : tissu Océan, Jab Anstoetz Fabrics
Vous êtes en quête d'un artisan pour votre projet en rénovation complète ?
Nous vous aidons à trouver les meilleurs pros
Nous vous aidons à trouver les meilleurs pros
Après. Le salon a été aménagé autour de la deuxième fenêtre sur cour, au cœur de l’appartement. C’est Hélène, la collaboratrice de Charlotte, qui a réalisé la shopping list grâce à l’outil Clipper de Houzz Pro, conçu pour les professionnels de l’aménagement et de la décoration. « J’adore Clipper ! », s’enthousiasme Charlotte. « Son côté intuitif et facile d’utilisation permet de créer une bibliothèque de produits et de l’enrichir facilement. Tout est connecté : planches d’ambiance, listes de shopping, devis, attribution aux projets… On peut tout modifier, exporter, adapter et partager avec nos clients en quelques clics ! »
Rideau : Pietro, Madura ; suspension : Réflection, Bolia ; table basse : chinée en brocante ; convecteur à peindre : Touch de chez Valderoma, UDS Market ; tabouret Bit effet terrazzo : Normann Copenhagen
Rideau : Pietro, Madura ; suspension : Réflection, Bolia ; table basse : chinée en brocante ; convecteur à peindre : Touch de chez Valderoma, UDS Market ; tabouret Bit effet terrazzo : Normann Copenhagen
Avant. L’ancien séjour, trop petit et cloisonné, créait une circulation sombre et étroite vers l’ancienne chambre. Lors de la démolition de cette petite pièce centrale, un moment d’inquiétude s’est installé lorsque la professionnelle a découvert que les cloisons en Placo cachaient des modifications antérieures. « Les anciennes cloisons en mâchefer avaient été abattues, ce que je ne fais jamais car elles sont souvent semi-porteuses », explique-t-elle. « J’ai donc fait appel à un bureau d’études spécialisé (BET) pour confirmer la possibilité de décloisonner complètement. »
Heureusement, après des calculs minutieux, le BET a confirmé la faisabilité de la dépose des cloisons, rassurant tout le monde.
Heureusement, après des calculs minutieux, le BET a confirmé la faisabilité de la dépose des cloisons, rassurant tout le monde.
Après. De l’ancien couloir, il reste une empreinte dans le parquet avec la lame qui coupe la pièce transversalement devant la cuisine. Charlotte s’est arrangée pour la prolonger jusqu’à la porte de la salle d’eau comme une esthétique trace de l’histoire des lieux. « Cette lame permet également de marquer une séparation symbolique entre cuisine et salon. Il aurait été dommage de changer le magnifique plancher d’origine pour la faire disparaître, nous avons préféré le faire restaurer », estime-t-elle.
Canapé : La Maison convertible
Canapé : La Maison convertible
Après. La nouvelle chambre conserve à peu près son périmètre d’origine, mais sa cloison arrondie lui confère une impression d’espace plus généreux autour du lit, créant une alcôve intime et cosy. « Nous avons imaginé la chambre comme un boudoir, un poudrier ou une bonbonnière. Ces images nous sont venues à l’esprit lors de sa conception, c’est pourquoi nous avons opté pour les teintes Sulking Room de Farrow & Ball et Rose poudré d’Unikalo », explique Charlotte, heureuse d’avoir enfin emporté l’adhésion de sa cliente dans le choix d’une couleur.
Plus d’idées pour adopter la couleur dans une chambre sur Houzz
Plus d’idées pour adopter la couleur dans une chambre sur Houzz
Sur la droite du lit, le passage ouvert mène au dressing, de bonne dimension car « l’idée des propriétaires était de prendre le TER depuis chez eux et de regagner le pied-à-terre d’un coup de métro sans changement, avec seulement une seule trousse de toilette. »
Le dressing a été réalisé avec des placards Ikea Pax face à face et deux espaces vides au fond, l’un pour caser l’aspirateur et l’autre les chaises pliantes qui servent lorsque plus que quatre personnes sont présentes dans l’appartement. « Les portes Ikea ont été peintes avec de la peinture No Limit achetée chez Peinture de Paris, colorée sur mesure dans la teinte Sulking Room. Cette peinture a la particularité d’être très couvrante et de pouvoir se colorer aux teintes choisies ! », indique Charlotte.
Convecteur à peindre : Touch de chez Valderoma ; applique et liseuse en plâtre à peindre : Nedgis
Le dressing a été réalisé avec des placards Ikea Pax face à face et deux espaces vides au fond, l’un pour caser l’aspirateur et l’autre les chaises pliantes qui servent lorsque plus que quatre personnes sont présentes dans l’appartement. « Les portes Ikea ont été peintes avec de la peinture No Limit achetée chez Peinture de Paris, colorée sur mesure dans la teinte Sulking Room. Cette peinture a la particularité d’être très couvrante et de pouvoir se colorer aux teintes choisies ! », indique Charlotte.
Convecteur à peindre : Touch de chez Valderoma ; applique et liseuse en plâtre à peindre : Nedgis
Les rideaux occultants Pietro de chez Madura sont un coup de cœur de la propriétaire. Ils ont été repérés sur l’un des autres projets de Charlotte, affiché sur son profil Houzz.
L’architecte d’intérieur, qui aime les détails soignés, note encore : « Les interrupteurs sur le mur rose vont être remplacés par des interrupteurs à peindre tout comme nous avons posé des convecteurs électriques à peindre et des appliques, spots et liseuse en plâtre à peindre. »
L’architecte d’intérieur, qui aime les détails soignés, note encore : « Les interrupteurs sur le mur rose vont être remplacés par des interrupteurs à peindre tout comme nous avons posé des convecteurs électriques à peindre et des appliques, spots et liseuse en plâtre à peindre. »
Après. Bien que la salle d’eau ait gagné en superficie en s’étendant sur une partie de l’ancienne cuisine, son aménagement a présenté des défis, dus notamment à la présence de trois petites fenêtres. Le plan s’est débloqué grâce à la découverte d’une référence sanitaire idéale : « Nous avons trouvé chez Geberit le “bâti-support bas”. Avec ses 80 centimètres de hauteur, il permet d’installer les toilettes suspendues sous la fenêtre existante face à l’entrée. Ce n’est pas l’emplacement idéal, mais cela a permis de créer une douche spacieuse », explique Charlotte, reconnaissant que chaque rénovation implique des compromis.
Carrelage sol : terrazzo Córdoba, Casalux
Carrelage sol : terrazzo Córdoba, Casalux
Un autre défi d’aménagement était l’installation du lave-linge, une demande des propriétaires. « Nous ne voulions pas l’intégrer sous une vasque à poser, car cela aurait été inconfortable pour ma cliente de petite taille. Nous avons donc conçu un plan de 125 centimètres de long avec, d’un côté, une vasque à encastrer et un meuble Ikea sous plan, et de l’autre, le lave-linge », poursuit-elle.
Robinetterie douche et vasque : modèle Curved chez Casalux
Robinetterie douche et vasque : modèle Curved chez Casalux
Cette rénovation a nécessité seulement trois mois et zéro stress pour les propriétaires, qui gardent un excellent souvenir de la supervision attentive de Charlotte et de son équipe de travaux de choc. « L’accompagnement, c’est notre métier ! Avec l’équipe, on travaille depuis tellement de temps ensemble que tout le monde est rompu à mes exigences en termes de finitions », glisse-t-elle.
Quant à la professionnelle, elle se rappellera également de ce chantier comme une étape importante de sa vie de pro, celui où elle a fait muter sa facturation sur les outils Houzz Pro. « J’ai enfin trouvé un logiciel de comptabilité pratique et intuitif ! Les devis se transforment en factures, nous pouvons enregistrer nos prestations et les détailler en fonction des projets, nous pouvons transmettre les documents directement aux clients pour signatures. Un vrai gain de temps inestimable par rapport à toute la gestion que demande une entreprise ! »
Budget détaillé :
- travaux TCE : 42 000 € TTC (les matériaux sont compris dans les travaux TCE)
- menuiserie intérieure sur mesure (coin repas et meuble entrée) : 3 600 € TTC
- cuisine Ikea et plan de travail en Silestone : 3 600 € TTC
- Ameublement et décoration : 3 700 €TTC
ET VOUS ?
Que pensez-vous de cette transformation ?
Quant à la professionnelle, elle se rappellera également de ce chantier comme une étape importante de sa vie de pro, celui où elle a fait muter sa facturation sur les outils Houzz Pro. « J’ai enfin trouvé un logiciel de comptabilité pratique et intuitif ! Les devis se transforment en factures, nous pouvons enregistrer nos prestations et les détailler en fonction des projets, nous pouvons transmettre les documents directement aux clients pour signatures. Un vrai gain de temps inestimable par rapport à toute la gestion que demande une entreprise ! »
Budget détaillé :
- travaux TCE : 42 000 € TTC (les matériaux sont compris dans les travaux TCE)
- menuiserie intérieure sur mesure (coin repas et meuble entrée) : 3 600 € TTC
- cuisine Ikea et plan de travail en Silestone : 3 600 € TTC
- Ameublement et décoration : 3 700 €TTC
ET VOUS ?
Que pensez-vous de cette transformation ?






























Qui vit ici ? C’est le pied-à-terre parisien d’un couple de retraités résidant en province
Emplacement : Paris, quartier Oberkampf
Superficie : 32 m²
Date des travaux : 2023
Architecte d’intérieur : Charlotte Astruc, CA Architecture d’Intérieur
Budget total : 52 900 € TTC (hors honoraires)
Budget détaillé en fin d’article
Photos : Julien Pépy