Avant/Après : Deux mini-deux-pièces de 30 m² sous les toits
Deux projets d'appartements décryptés par les architectes en charge de leur rénovation, astuces à la clé
Premier achat ou surface à optimiser en vue de la location, les petites surfaces n’en finissent plus d’avoir la cote. Selon que l’on achète pour soi ou pour louer, les problématiques ne sont pas tout à fait les mêmes, ni le budget que l’on souhaite y consacrer. Pour guider votre réflexion sur ce sujet, nous vous présentons aujourd’hui deux des meilleures réalisations repérées sur Houzz en matière d’aménagement de petite surface. Les pros qui ont orchestré leurs rénovations ont accepté de décrypter en détail ces projets et de nous confier leurs astuces.
AVANT : La trémie et la salle d’eau
L’état des lieux :
L’appartement d’une trentaine de mètres carrés était l’étage d’un duplex, qu’une propriétaire âgée voulait céder. Desservi par un escalier central, il était composé de deux chambres sous combles et d’une salle d’eau au milieu, près de l’escalier. Toute la surface était cloisonnée, rendant toute projection difficile pour l’acquéreuse. L’obstacle d’une trémie au centre et un sanibroyeur ne la rendaient également pas confiante quant aux possibilités d’aménagement d’une cuisine et d’une salle de bains.
L’état des lieux :
L’appartement d’une trentaine de mètres carrés était l’étage d’un duplex, qu’une propriétaire âgée voulait céder. Desservi par un escalier central, il était composé de deux chambres sous combles et d’une salle d’eau au milieu, près de l’escalier. Toute la surface était cloisonnée, rendant toute projection difficile pour l’acquéreuse. L’obstacle d’une trémie au centre et un sanibroyeur ne la rendaient également pas confiante quant aux possibilités d’aménagement d’une cuisine et d’une salle de bains.
APRÈS
Le brief de la propriétaire : La propriétaire n’est plus une étudiante. Elle voulait investir pour son quotidien dans un appartement confortable, avec un bureau pour travailler à la maison de temps en temps. Elle souhaitait une décoration sobre et stylée, des matériaux de qualité et un plan efficace.
Le brief de la propriétaire : La propriétaire n’est plus une étudiante. Elle voulait investir pour son quotidien dans un appartement confortable, avec un bureau pour travailler à la maison de temps en temps. Elle souhaitait une décoration sobre et stylée, des matériaux de qualité et un plan efficace.
Plan avant travaux
Acheter ce type de surface vétuste et très encombré, comporte sa part d’aléas car il est difficile de tout vérifier à l’achat. La propriétaire s’était accordé un budget de 35 000 euros pour cette rénovation mais lors de la phase de démolition, elle a eu de mauvaises surprises : « Lors de la dépose des cloisons, une partie du plafond nous est tombée sur la tête. Nous avons constaté qu’il n’y avait pas d’isolation et que le risque d’infiltration depuis la toiture était réel », explique Agathe Marimbert, l’architecte. Privilégiant l’isolation plutôt que les poutres apparentes, afin d’éviter les déperditions de chaleur et la surchauffe l’été, La propriétaire a donc accordé 5000 euros supplémentaires à l’isolation et au plaquage plafond. L’appartement disposait de trois vieilles fenêtres simples vitrages et d’un puits de lumière récent, en double vitrage. Pour une question de budget, la jeune femme a décidé de remettre à plus tard le changement des fenêtres : « comptez environ 1500 euros l’unité », affirme la pro. Mais elle a validé la pose d’efficaces radiateurs électriques à inertie fluide.
Acheter ce type de surface vétuste et très encombré, comporte sa part d’aléas car il est difficile de tout vérifier à l’achat. La propriétaire s’était accordé un budget de 35 000 euros pour cette rénovation mais lors de la phase de démolition, elle a eu de mauvaises surprises : « Lors de la dépose des cloisons, une partie du plafond nous est tombée sur la tête. Nous avons constaté qu’il n’y avait pas d’isolation et que le risque d’infiltration depuis la toiture était réel », explique Agathe Marimbert, l’architecte. Privilégiant l’isolation plutôt que les poutres apparentes, afin d’éviter les déperditions de chaleur et la surchauffe l’été, La propriétaire a donc accordé 5000 euros supplémentaires à l’isolation et au plaquage plafond. L’appartement disposait de trois vieilles fenêtres simples vitrages et d’un puits de lumière récent, en double vitrage. Pour une question de budget, la jeune femme a décidé de remettre à plus tard le changement des fenêtres : « comptez environ 1500 euros l’unité », affirme la pro. Mais elle a validé la pose d’efficaces radiateurs électriques à inertie fluide.
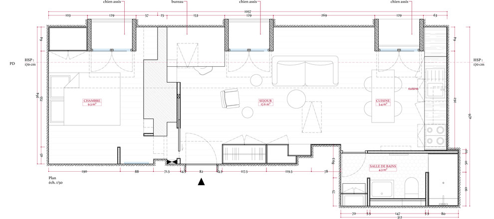
Plan après travaux
L’expertise de la pro :
L’expertise d’un architecte était importante dans ce projet, en particulier pour déterminer le plan. Agathe Marimbert a détecté immédiatement la possibilité de décloisonner la majorité du volume et de conserver la cloison porteuse pour isoler une chambre de 8 m². Par ailleurs, elle a dû identifier la colonne d’évacuation afin de placer judicieusement les pièces d’eau, à commencer par la cuisine.
L’expertise de la pro :
L’expertise d’un architecte était importante dans ce projet, en particulier pour déterminer le plan. Agathe Marimbert a détecté immédiatement la possibilité de décloisonner la majorité du volume et de conserver la cloison porteuse pour isoler une chambre de 8 m². Par ailleurs, elle a dû identifier la colonne d’évacuation afin de placer judicieusement les pièces d’eau, à commencer par la cuisine.
La cuisine
« Nous avons habillé le mur du fond de la pièce de vie avec la cuisine car c’était la meilleure place pour tirer parti du charme de cet appartement sous combles sans se cogner la tête », explique-t-elle.
« Nous avons habillé le mur du fond de la pièce de vie avec la cuisine car c’était la meilleure place pour tirer parti du charme de cet appartement sous combles sans se cogner la tête », explique-t-elle.
Comme la cuisine est devenue le point focal de la pièce de vie, elle a été traitée sobrement mais avec des matériaux de qualité. Les caissons provenant de la grande distribution ont été équipés de portes sur mesure en Valchromat taupe, du médium teinté dans la masse.
L’astuce de la pro :
L’effet déco, tout en subtilité, est apporté par la crédence toute hauteur, dont les carreaux ont été posés en chevrons avec un joint teinté. « Un vrai parti pris graphique et une manière d’apporter de l’originalité sans faire exploser la facture », glisse Agathe Marimbert.
L’astuce de la pro :
L’effet déco, tout en subtilité, est apporté par la crédence toute hauteur, dont les carreaux ont été posés en chevrons avec un joint teinté. « Un vrai parti pris graphique et une manière d’apporter de l’originalité sans faire exploser la facture », glisse Agathe Marimbert.
AVANT
APRÈS
Côté pièce de vie
L’architecte a conseillé à la propriétaire de placer son bureau à l’entrée pour disposer d’un espace sous une fenêtre et profiter de la lumière et de la vue. Sous les rampants, le bureau ne prend pas de place et côté porte d’entrée (à gauche du visuel) l’espace est libéré, ce qui met en valeur le beau parquet de chêne massif choisi pour le sol.
L’astuce de la pro : À l’opposé du bureau, un grand rangement permet de lisser un décroché du mur présent dans le plan de base. Pour alléger ce linéaire toute hauteur, de 52 cm de large réalisé en médium, Agathe Marimbert a suggéré une niche avec des étagères en partie centrale.
Côté pièce de vie
L’architecte a conseillé à la propriétaire de placer son bureau à l’entrée pour disposer d’un espace sous une fenêtre et profiter de la lumière et de la vue. Sous les rampants, le bureau ne prend pas de place et côté porte d’entrée (à gauche du visuel) l’espace est libéré, ce qui met en valeur le beau parquet de chêne massif choisi pour le sol.
L’astuce de la pro : À l’opposé du bureau, un grand rangement permet de lisser un décroché du mur présent dans le plan de base. Pour alléger ce linéaire toute hauteur, de 52 cm de large réalisé en médium, Agathe Marimbert a suggéré une niche avec des étagères en partie centrale.
AVANT
APRÈS
La chambre
C’est la propriétaire, qui a eu l’idée de cette ambiance boudoir, conférée par les murs de couleur vert grisé. « Elle désirait une couleur forte qui tranche complètement. Je ne me serais pas risquée sans elle à repeindre les rampants et même le cadre de la fenêtre mais ça fonctionne et je le referai ! », affirme Agathe Marimbert.
L’astuce de la pro : Pour optimiser l’espace de la chambrette de 8 m², les rampants ont été mis à contribution, équipés de menuiseries sur mesure. À l’opposé, un dressing a été aménagé avec une tringle et un rideau : « Comme le placard ne fait que 40 cm de large, le rideau est la bonne solution pour pouvoir faire tenir les cintres », souligne la pro.
Peinture : Pleat 280, Little Greene ; Rideaux de la fenêtre : Paul&Joe
La chambre
C’est la propriétaire, qui a eu l’idée de cette ambiance boudoir, conférée par les murs de couleur vert grisé. « Elle désirait une couleur forte qui tranche complètement. Je ne me serais pas risquée sans elle à repeindre les rampants et même le cadre de la fenêtre mais ça fonctionne et je le referai ! », affirme Agathe Marimbert.
L’astuce de la pro : Pour optimiser l’espace de la chambrette de 8 m², les rampants ont été mis à contribution, équipés de menuiseries sur mesure. À l’opposé, un dressing a été aménagé avec une tringle et un rideau : « Comme le placard ne fait que 40 cm de large, le rideau est la bonne solution pour pouvoir faire tenir les cintres », souligne la pro.
Peinture : Pleat 280, Little Greene ; Rideaux de la fenêtre : Paul&Joe
La salle de bains
« La propriétaire voulait initialement placer la salle de bains à l’entrée de l’appartement pour profiter du Velux dans cette pièce. J’ai préconisé de la placer plutôt dans un renfoncement existant près de la cuisine afin d’éviter un nouveau sanibroyeur », explique Agathe Marimbert.
Comme le renfoncement était tout en longueur, la douche de 80 x 140 cm est venue se loger au fond sur toute la largeur, suivie par les toilettes et le plan vasque. : « Le plan le plus confortable pour ce type d’espace. » Une faïence 10 x 10 cm blanc brillant et ses joints foncés apportent la touche graphique contrastée par un sol en carreaux octogonaux en grès cérame.
« La propriétaire voulait initialement placer la salle de bains à l’entrée de l’appartement pour profiter du Velux dans cette pièce. J’ai préconisé de la placer plutôt dans un renfoncement existant près de la cuisine afin d’éviter un nouveau sanibroyeur », explique Agathe Marimbert.
Comme le renfoncement était tout en longueur, la douche de 80 x 140 cm est venue se loger au fond sur toute la largeur, suivie par les toilettes et le plan vasque. : « Le plan le plus confortable pour ce type d’espace. » Une faïence 10 x 10 cm blanc brillant et ses joints foncés apportent la touche graphique contrastée par un sol en carreaux octogonaux en grès cérame.
PROJET 2 : À Tours, rénovation stylée à prix plancher pour un étudiant
Coup d’œil
Qui habite ici : un étudiant
Emplacement : en plein centre, dans le vieux Tours
Date de la réalisation : 2018
Superficie : 30 m² Carrez et 40 m² de surface de plancher
Architecte : Cécile Gorce de MadaM Architecture
Budget : 23 000 euros
Coup d’œil
Qui habite ici : un étudiant
Emplacement : en plein centre, dans le vieux Tours
Date de la réalisation : 2018
Superficie : 30 m² Carrez et 40 m² de surface de plancher
Architecte : Cécile Gorce de MadaM Architecture
Budget : 23 000 euros
AVANT
L’état des lieux :
Pour investir, le propriétaire a acheté cette petite surface en plein centre de Tours afin de la faire rénover et de la louer à un étudiant. L’appartement était vétuste, en particulier le toit fuyait, les poutres étaient à traiter et le faux plancher se décollait. On accédait au centre de l’appartement, côté pièce de vie, par un escalier. En enfilade, une chambre de la même taille donnait sur une salle de bains et des toilettes séparées.
L’état des lieux :
Pour investir, le propriétaire a acheté cette petite surface en plein centre de Tours afin de la faire rénover et de la louer à un étudiant. L’appartement était vétuste, en particulier le toit fuyait, les poutres étaient à traiter et le faux plancher se décollait. On accédait au centre de l’appartement, côté pièce de vie, par un escalier. En enfilade, une chambre de la même taille donnait sur une salle de bains et des toilettes séparées.
APRÈS
Le brief du propriétaire : Le but du propriétaire est de transformer la surface en un endroit moderne, lumineux et facile à vivre, en dépensant le moins possible mais sans compromis sur le style. Il souhaitait en particulier mettre en valeur la belle charpente, bijou de l’appartement, et offrir au petit deux-pièces un air tendance pour plaire à des jeunes locataires.
Le brief du propriétaire : Le but du propriétaire est de transformer la surface en un endroit moderne, lumineux et facile à vivre, en dépensant le moins possible mais sans compromis sur le style. Il souhaitait en particulier mettre en valeur la belle charpente, bijou de l’appartement, et offrir au petit deux-pièces un air tendance pour plaire à des jeunes locataires.
L’expertise de la pro :
L’architecte Cécile Gorce a d’abord pensé redimensionner l’appartement en réduisant la chambre et en agrandissant la pièce de vie mais, pour une question de budget, le propriétaire a préféré conserver le cloisonnement initial et garder les mêmes emplacements pour la cuisine et la salle de bains. Toujours pour limiter les frais, les poutres marron foncé, très abîmées, n’ont pas été sablées mais repeintes dans une couleur qui éclaircit l’ensemble. Le plafond n’a pas été isolé davantage mais les fuites réparées et les plâtres refaits. En revanche, pas question de lésiner sur la plomberie et l’électricité, qui ont été entièrement refaites, et les radiateurs changés pour des modèles radiants. Dans un souci de clarté, le sol a été recouvert de lames de plancher vinyle clair (20 euros le mètre carré) et le blanc largement privilégié aux murs et pour la cuisine.
L’architecte Cécile Gorce a d’abord pensé redimensionner l’appartement en réduisant la chambre et en agrandissant la pièce de vie mais, pour une question de budget, le propriétaire a préféré conserver le cloisonnement initial et garder les mêmes emplacements pour la cuisine et la salle de bains. Toujours pour limiter les frais, les poutres marron foncé, très abîmées, n’ont pas été sablées mais repeintes dans une couleur qui éclaircit l’ensemble. Le plafond n’a pas été isolé davantage mais les fuites réparées et les plâtres refaits. En revanche, pas question de lésiner sur la plomberie et l’électricité, qui ont été entièrement refaites, et les radiateurs changés pour des modèles radiants. Dans un souci de clarté, le sol a été recouvert de lames de plancher vinyle clair (20 euros le mètre carré) et le blanc largement privilégié aux murs et pour la cuisine.
Dans la pièce de vie, la cuisine tout équipée avec son plan bar sur mesure optimise l’espace au maximum et permet au locataire d’arriver avec un minimum de meubles. « Les plans de travail sont les modèles Ikea en bouleau que le menuisier a recoupés », précise-t-elle. Bien pensée, la table de repas, haute pour la modernité, est idéalement placée sous la fenêtre et dans la pente pour prendre le moins de place possible. Elle se prolonge en espace bureau.
Minimaliste, la cuisine est équipée d’un évier d’une plaque vitrocéramique, d’un frigo, d’un lave-linge et d’un logement pour la poubelle : « Le placard à vaisselle et casseroles est sous le bar. Quant à la plaque de cuisson, impossible d’employer de l’induction au-dessus du frigo car elle aurait dégagé trop de chaleur », explique Cécile Gorce.
L’astuce déco de la pro :
La charpente a donné le tempo de la réalisation et inspiré l’architecte. Les lignes graphiques des poutres trouvent un écho sur les murs où des aplats de peinture grise soulignent le plafond cathédrale. Des lignes graphiques que l’on retrouve sur le plan bar, également dans une alternance de pleins et de vides des rangements de la chambre, ou encore dans la verrière de la salle de bains.
La charpente a donné le tempo de la réalisation et inspiré l’architecte. Les lignes graphiques des poutres trouvent un écho sur les murs où des aplats de peinture grise soulignent le plafond cathédrale. Des lignes graphiques que l’on retrouve sur le plan bar, également dans une alternance de pleins et de vides des rangements de la chambre, ou encore dans la verrière de la salle de bains.
AVANT
APRÈS
Côté chambre, l’architecte n’a pas perdu de vue son idée de départ de redimensionner l’espace. En délestant la pièce de vie au maximum et en plaçant tous les rangements dans la chambre en sous pente, elle a réussi à rééquilibrer quelque peu l’espace global de l’appartement.
Côté chambre, l’architecte n’a pas perdu de vue son idée de départ de redimensionner l’espace. En délestant la pièce de vie au maximum et en plaçant tous les rangements dans la chambre en sous pente, elle a réussi à rééquilibrer quelque peu l’espace global de l’appartement.
L’astuce de la pro :
Pour minimiser les coûts Cécile est une adepte de la débrouille : « Nous n’avions qu’une sortie électrique au-dessus du lit. Avec des équerres en bois Ikea à 3 euros, une dizaine d’euros de câble et 20 euros d’ampoules, nous avons réalisé une suspension double, style DIY, pour lire confortablement éclairé au lit. »
Pour minimiser les coûts Cécile est une adepte de la débrouille : « Nous n’avions qu’une sortie électrique au-dessus du lit. Avec des équerres en bois Ikea à 3 euros, une dizaine d’euros de câble et 20 euros d’ampoules, nous avons réalisé une suspension double, style DIY, pour lire confortablement éclairé au lit. »
AVANT
APRÈS
La salle de bains était au même endroit mais sa cloison a été repeinte en anthracite façon métal et ouverte au moyen d’une verrière, ce qui donne une note tendance au projet. La baignoire d’origine a été remplacée par une douche de 120 x 70 cm et un meuble suspendu de 60 cm complète l’équipement : « J’ai trouvé cet ensemble meuble vasque, mitigeur, miroir et lumière chez Lapeyre pour 199 euros et c’est un super produit que je recommande », nous a affirmé la pro.
ET VOUS ?
Que pensez-vous de ces rénovations ?
Trouvez le bon pro pour votre projet
Retrouvez d’autres foyers français
Découvrez d’autres avant/après
La salle de bains était au même endroit mais sa cloison a été repeinte en anthracite façon métal et ouverte au moyen d’une verrière, ce qui donne une note tendance au projet. La baignoire d’origine a été remplacée par une douche de 120 x 70 cm et un meuble suspendu de 60 cm complète l’équipement : « J’ai trouvé cet ensemble meuble vasque, mitigeur, miroir et lumière chez Lapeyre pour 199 euros et c’est un super produit que je recommande », nous a affirmé la pro.
ET VOUS ?
Que pensez-vous de ces rénovations ?
Trouvez le bon pro pour votre projet
Retrouvez d’autres foyers français
Découvrez d’autres avant/après




























Coup d’oeil
Qui habite ici : Une jeune active de 30 ans
Emplacement : Charonne
Dates de la réalisation : 2017
Superficie : 32 m² Carrez et 42 m² surface de plancher
Architecte : Agathe Marimbert
Budget : 40 000 euros
Photographe : Philippe Billard