Visites Privées
Projets nés sur Houzz
Avant/Après : Éclats pop et esprit Memphis dans 45 m2 à Paris
Quartier Belleville, la mue hypnotique et colorée d'un T2 pour une jeune femme créative par l'agence Épicène
Dans le quartier bouillonnant et métissé de Belleville, un appartement de 45 m², figé dans les années 1970, s’est métamorphosé en un cocon audacieux, reflet de la personnalité de sa propriétaire, une jeune femme américaine, installée à Paris depuis dix ans, créative et passionnée de littérature. Séduite par le style audacieux de l’architecte d’intérieur Isabelle Heilmann, suite à un séjour dans l’un de ses projets, elle a confié à l’agence Épicène la rénovation de son premier achat immobilier. Le résultat ? Un dialogue énergisant entre l’élégance haussmannienne et l’exubérance du design Memphis, porté par des couleurs pop et des menuiseries sur mesure.
Coup d’œil
Qui vit ici ? Une jeune femme originale
Emplacement : quartier Belleville, Paris
Durée des travaux : 5 mois (avril – août 2024)
Superficie : 45 m²
Architecte d’intérieur : Isabelle Heilmann, Agence Épicène
Entreprises : L’entreprise générale VSA a également réalisé les menuiseries
Budget : 160 000 € HT (travaux, décoration, menuiserie sur mesure, électroménager, stores extérieurs, hors honoraires d’architecte)
Photos : BCDF studio
Coup d’œil
Qui vit ici ? Une jeune femme originale
Emplacement : quartier Belleville, Paris
Durée des travaux : 5 mois (avril – août 2024)
Superficie : 45 m²
Architecte d’intérieur : Isabelle Heilmann, Agence Épicène
Entreprises : L’entreprise générale VSA a également réalisé les menuiseries
Budget : 160 000 € HT (travaux, décoration, menuiserie sur mesure, électroménager, stores extérieurs, hors honoraires d’architecte)
Photos : BCDF studio
L’histoire de ce projet hors normes commence par une expérience fortuite. En séjournant dans un loft rénové par l’architecte d’intérieur Isabelle Heilmann, la cliente tombe sous le charme de son style coloré et audacieux. Un article sur Houzz consacré à la renaissance de cet ancien atelier du 11ᵉ arrondissement lui permet de faire le lien avec l’agence Épicène et de contacter Isabelle pour son propre projet : la rénovation d’un deux pièces de 45 m² dans un immeuble en briques typique de Belleville, situé dans une rue piétonne calme à deux pas de l’animation du quartier.
Avant. Sis en étage élevé de cet immeuble ancien, l’appartement offre deux pièces égales sur rue – salon et chambre – où afflue la lumière. Les pièces d’eau –toilettes, salle de bains et cuisine –, cloisonnées, se situent sur la cour. Resté figé dans sa dernière rénovation remontant aux années 1970, le deux-pièces, défraîchi, nécessite une remise à niveau thermique et un réagencement complet.
Isabelle Heilmann a d’abord étudié le plan pour maximiser l’espace, puis mis l’appartement aux normes énergétiques avec une isolation renforcée sur les deux façades, un remplacement de chaque fenêtre avec du double vitrage et un changement des radiateurs branchés sur le chauffage central de l’immeuble. « Lorsque l’on fait une rénovation intégrale, c’est le moment de faire ces travaux que l’on ne fera pas après coup, afin de faire baisser la facture d’énergie et se préserver des canicules et des grands froids », insiste-t-elle.
Trouvez un architecte d’intérieur près de chez vous sur Houzz
Isabelle Heilmann a d’abord étudié le plan pour maximiser l’espace, puis mis l’appartement aux normes énergétiques avec une isolation renforcée sur les deux façades, un remplacement de chaque fenêtre avec du double vitrage et un changement des radiateurs branchés sur le chauffage central de l’immeuble. « Lorsque l’on fait une rénovation intégrale, c’est le moment de faire ces travaux que l’on ne fera pas après coup, afin de faire baisser la facture d’énergie et se préserver des canicules et des grands froids », insiste-t-elle.
Trouvez un architecte d’intérieur près de chez vous sur Houzz
Après. Côté décor, la propriétaire avec sa personnalité forte et son amour affirmé pour le design des années 1980, avait une vision claire de ses attentes. « Elle m’a tout de suite parlé de références pointues comme le style Memphis. Elle souhaitait un cocon puissamment coloré, à la frontière du kitsch, mais élégant, qui reflète sa créativité et son identité. Elle avait à cœur de refléter une féminité assumée, puissante, loin des clichés mièvres, et de créer un lieu propice aux réceptions, avec des rangements optimisés pour ses livres et collections », explique la professionnelle.
La jeune femme pouvant consacrer un budget confortable à son petit cocon, l’architecte d’intérieur s’en est donné à cœur joie pour tisser sur mesure un fil rouge déco audacieux, confrontant l’élégance haussmannienne (parquet en chêne, fenêtres anciennes, rosace au plafond…) à l’exubérance du mouvement Memphis. « Nous avons été jusqu’au bout de la démarche. Tout a été réfléchi dans les moindres détails pour coller au concept, depuis les menuiseries sur mesure aux choix des luminaires et objets de décoration. C’était une carte blanche passionnante avec une cliente qui a été une formidable camarade de jeu ! », partage-t-elle, enthousiaste. Nous l’avons suivie dans cette visite ponctuée de couleurs vives, de formes géométriques ludiques et de surprises.
La jeune femme pouvant consacrer un budget confortable à son petit cocon, l’architecte d’intérieur s’en est donné à cœur joie pour tisser sur mesure un fil rouge déco audacieux, confrontant l’élégance haussmannienne (parquet en chêne, fenêtres anciennes, rosace au plafond…) à l’exubérance du mouvement Memphis. « Nous avons été jusqu’au bout de la démarche. Tout a été réfléchi dans les moindres détails pour coller au concept, depuis les menuiseries sur mesure aux choix des luminaires et objets de décoration. C’était une carte blanche passionnante avec une cliente qui a été une formidable camarade de jeu ! », partage-t-elle, enthousiaste. Nous l’avons suivie dans cette visite ponctuée de couleurs vives, de formes géométriques ludiques et de surprises.
Avant. L’appartement souffrait d’un agencement cloisonné à l’ancienne. Le séjour (12 m²) était daté mais présentait du potentiel avec sa grande fenêtre.
Après. Pour cette propriétaire qui souhaitait recevoir souvent, l’architecte d’intérieur a ouvert l’espace sur l’ancienne chambre adjacente afin de créer une pièce de vie de 24 m², intégrant cuisine, salon et salle à manger. Le parquet point de Hongrie à lames étroites, restauré dans l’esprit haussmannien, ancre le lieu dans l’élégance parisienne, tandis que le mobilier sur mesure incarne l’originalité recherchée.
À l’arrière, le couloir d’entrée ne laisse pas indifférent. Porte rouge, encadrements de porte et plinthes fuchsia posent directement le ton audacieux de l’appartement, tandis qu’une étagère en hauteur suggère d’emblée le travail soigné d’optimisation spatiale.
À l’arrière, le couloir d’entrée ne laisse pas indifférent. Porte rouge, encadrements de porte et plinthes fuchsia posent directement le ton audacieux de l’appartement, tandis qu’une étagère en hauteur suggère d’emblée le travail soigné d’optimisation spatiale.
Dans le séjour, la bibliothèque sur mesure, nécessaire pour ranger les très nombreux livres de la propriétaire, revendique une inspiration puisée chez Ettore Sottsass (1917-2007), immense designer italien et chef de file du mouvement de design Memphis. Né dans les années 1980 telle une réaction exubérante et ludique contre le minimalisme et le bon goût du design moderniste, ce mouvement repose sur l’utilisation de couleurs vives et audacieuses, de motifs graphiques souvent déstructurés, l’emploi de matériaux bon marché et un design ludique et anticonformiste.
« Dans une économie de moyens, nous avons peint l’intérieur du porteur en vert et un montant de la bibliothèque en jaune comme des contrepoints au rose que nous avons choisi comme teinte principale. Nous avons également intégré quelques éléments séparateurs d’un vert plus foncé », souligne Isabelle. Les caissons fermés peints en rose cachent la connectique de la télévision The Frame ainsi que la box Internet. Des appliques en céramique (chez Hiromi) ajoutent une touche d’élégance pop.
« Dans une économie de moyens, nous avons peint l’intérieur du porteur en vert et un montant de la bibliothèque en jaune comme des contrepoints au rose que nous avons choisi comme teinte principale. Nous avons également intégré quelques éléments séparateurs d’un vert plus foncé », souligne Isabelle. Les caissons fermés peints en rose cachent la connectique de la télévision The Frame ainsi que la box Internet. Des appliques en céramique (chez Hiromi) ajoutent une touche d’élégance pop.
Avant. Autre vue du séjour d’origine avant travaux
Après. La pièce phare du salon est un canapé rouge géant qui occupe un pan de mur entier (3 mètres). Conçu par Épicène et réalisé par le tapissier Fayolle, il est convertible en lit double grâce au mécanisme qui se dissimule dans son estrade. Il s’accompagne d’une table basse en inox (Sabourin-Costes) et un tapis (collaboration entre Archik et Sabourin-Costes).
Avant. Pièce jumelle du séjour, la chambre sur rue présentait la même configuration, si ce n’est une belle fenêtre à quatre vantaux, une moulure au plafond et un pan coupé qui autrefois correspondait à une cheminée déjà déposée.
Après. La cuisine en L, aménagée dans l’ancienne chambre sur rue, a été rattachée au séjour. Elle est délimitée par un béton ciré d’une couleur abricot de chez Mercadier tandis que l’enveloppe haussmannienne a été préservée avec la mise en valeur de la fenêtre changée à l’identique, la moulure centrale et un pan de corniche conservé. Sur une base de caissons Ikea retravaillés, les façades sur mesure en chêne teinté, dans un style haussmannien patrimonial, contrastent avec une hypnotique armoire de rangement jaune (Ressource R405 La Lueur) qui explose de modernité. « Elle dissimule une colonne réfrigérateur et un coin petit déjeuner de type “larder”, à l’anglaise, qui permet de laisser branchés la bouilloire, le toaster, la cafetière », indique Isabelle.
Vous êtes en quête d'un artisan pour votre projet en rénovation complète ?
Nous vous aidons à trouver les meilleurs pros
Nous vous aidons à trouver les meilleurs pros
Avant. Le coup de maître de la professionnelle est d’avoir prélevé une partie de cette ancienne chambre (4 m² au niveau de l’ancien radiateur visible sur cette photos) afin de réaliser un grand dressing, équipé d’un coin buanderie avec lave-linge et sèche-linge et d’un placard à balais, le tout accessible depuis le couloir d’entrée. « Ce sont des fonctions auxquelles il convient de penser, car elles permettent de libérer les pièces comme la chambre ou la salle de bains », rappelle l’architecte d’intérieur.
Après. Placée devant la baie vitrée, la table à manger dessinée par Épicène crée la surprise et incarne bien la confrontation entre classicisme et exubérance dans la cuisine. Son plateau en terrazzo a été réalisé sur mesure et la granulométrie des inserts de marbre et leur emplacement choisis finement par la professionnelle qui l’a également dotée de pieds bleus audacieux (Ressource R811 Le Chenapan). Les pans coupés de la table peuvent accueillir jusqu’à six convives entourés de de chaises design de Mario Botta et Harry Bertoia, « On a conçu cette cuisine visible du séjour comme un meuble, à la fois fonctionnelle et décorative, dans l’esprit Memphis », résume-t-elle.
Pour ne pas entrer en concurrence avec le terrazzo de la table et se présenter comme un aplat parfaitement blanc, le plan de travail est en Corian. « Cette résine est en parfaite adéquation avec les matériaux prisés dans les années 1980 », glisse l’architecte d’intérieur.
Pour ne pas entrer en concurrence avec le terrazzo de la table et se présenter comme un aplat parfaitement blanc, le plan de travail est en Corian. « Cette résine est en parfaite adéquation avec les matériaux prisés dans les années 1980 », glisse l’architecte d’intérieur.
Preuve que chaque détail a été travaillé avec attention, Isabelle a même dessiné sur mesure les poignées de l’armoire jaune dans un motif crenelé que ne renierait pas Sottsass, père du miroir Diva ou encore de la célèbre bibliothèque Carlton.
Avant. La cuisine était une petite pièce sur cour de 6 m² aménagée à l’ancienne.
Après. La réflexion initiale sur le plan a immédiatement conduit l’architecte d’intérieur à envisager le déplacement de la chambre dans cette petite pièce afin d’agrandir la pièce de vie. Nullement impactée par la présence d’un placard (puisqu’une pièce dressing a été créée par ailleurs), la chambre est un cocon minimaliste mais très suffisant et agréable pour nicher un lit double. Dans ce nid intime, le style haussmannien de l’enveloppe s’est marié au style Memphis exubérant. L’enveloppe originelle accueille un lit podium sur mesure, laqué en rose glossy (Ressource SL17 Rose d’Amour), avec tiroir de rangements intégrés. Son entourage se prolonge en alcôve tout autour du lit et intègre une fois de plus des étagères pour les livres, exploitant habilement une colonne structurelle. « La menuiserie a été laquée en cabine comme une carrosserie. L’effet se prolonge du pied du lit à l’alcôve et apporte une profondeur impossible avec une simple peinture », note Isabelle qui, grâce à cet entourage menuisé, a également pu déstructurer légèrement le côté de la tête de lit adjacent à la fenêtre pour créer une forme plus enveloppante.
Sur cette niche menuisée s’appuie la tête de lit conçue comme un paravent asymétrique et hypnotique, dans le style Memphis. Des cadres laqués violets (Ressource – SL20 Lilas des Indes) accueillent des panneaux molletonnés fuchsia auxquels on peut s’adosser confortablement.
Pour contrebalancer les roses dont le contraste crée une vibrance entêtante, des rideaux argentés évoquent une boule à facettes, tandis qu’une moquette grise adoucit l’ensemble.
Pour contrebalancer les roses dont le contraste crée une vibrance entêtante, des rideaux argentés évoquent une boule à facettes, tandis qu’une moquette grise adoucit l’ensemble.
Avant. L’ancienne salle de bains se trouvait à l’entrée du deux-pièces, juste après les toilettes.
Après. La salle de bains a été réorientée pour annexer la fenêtre des toilettes. Une décision prise par rapport à un souhait fort de la propriétaire : « elle voulait une baignoire-douche, car elle a la passion des bains ». Isabelle Heilmann a donc installé un modèle de baignoire à fond plat dédié à ce double usage, dans une alcôve étanche en béton ciré abricot et mosaïque de la même teinte.
L’étonnant meuble vasque ton sur ton, entièrement carrelé, offre à l’ouverture un effet de surprise typique du style Memphis. « La cliente voyait sa salle de bains comme un lieu de ressourcement, avec des tons doux mais des touches inattendues et nous avons eu l’idée de cet intérieur de tiroir laqué en jaune vif », précise l’architecte d’intérieur. Les toilettes, désormais sans fenêtre, mais ventilées, ont été réduites pour optimiser l’espace de la salle de bains.
Le budget de 160 000 €, incluant travaux, menuiseries sur mesure, décoration et électroménager, reflète l’ampleur de la rénovation, qui a nécessité cinq mois de chantier, du printemps à l’été 2024. « C’était un projet jubilatoire, porté par une cliente qui nous a poussés à aller au bout de ses idées », la remercie Isabelle Heilmann, qui ajoute : « l’esprit de notre agence Épicène n’est pas d’imposer un style mais de suivre toutes les envies de nos clients ».
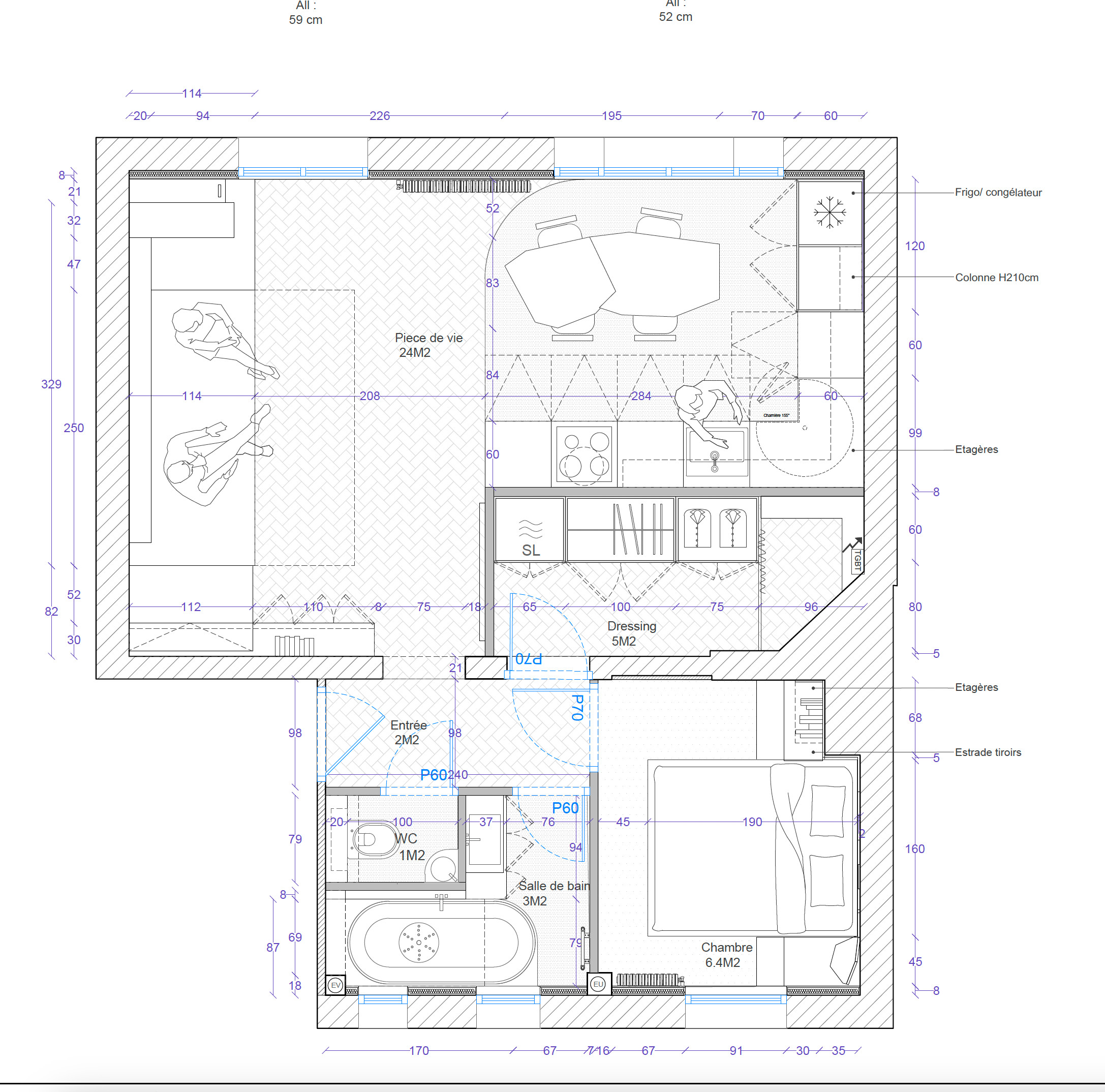
Annexe : plan après travaux coté
ET VOUS ?
Que pensez-vous de cette rénovation ?
Vous êtes en quête d’un professionnel pour vos travaux ? Houzz partage son annuaire exclusif pour que vous mettiez toutes les chances de votre côté. Savez-vous pourquoi les professionnels qui utilisent Houzz Pro ont de meilleures chances de vous faire atteindre vos objectifs ? Ils utilisent notre logiciel tout-en-un et vous pourrez en profiter grâce à eux. Grâce aux outils de visualisation inclus dans l’outil, vous pourrez imaginer votre projet clairement et rapidement. Le Portail Client fluidifie quant à lui vos communications avec le professionnel tout au long du projet, quand la signature des devis en ligne simplifie vos démarches.
ET VOUS ?
Que pensez-vous de cette rénovation ?
Vous êtes en quête d’un professionnel pour vos travaux ? Houzz partage son annuaire exclusif pour que vous mettiez toutes les chances de votre côté. Savez-vous pourquoi les professionnels qui utilisent Houzz Pro ont de meilleures chances de vous faire atteindre vos objectifs ? Ils utilisent notre logiciel tout-en-un et vous pourrez en profiter grâce à eux. Grâce aux outils de visualisation inclus dans l’outil, vous pourrez imaginer votre projet clairement et rapidement. Le Portail Client fluidifie quant à lui vos communications avec le professionnel tout au long du projet, quand la signature des devis en ligne simplifie vos démarches.























