Projets nés sur Houzz
Visites Privées
Avant/Après : Escalier multifonction pour duplex sous les combles
Paris 10e : un rattachement de combles mémorable et des idées exemplaires pour restructurer et pimper ce duplex de 39 m²
Ce couple de Français expatrié à Berlin possède un duplex sous les toits proche du métro Goncourt, comprenant une chambre et un séjour lumineux au niveau inférieur, ainsi qu’une grande mezzanine utilisée comme bureau. Une fois leur locataire parti, ils envisagent de retourner dans la capitale moyennant des travaux dans le duplex. Plutôt que des travaux cosmétiques, ils projettent de rattacher un segment de combles perdus au-dessus de leurs cuisine et salle de bains afin d’agrandir leur espace de vie. Pour mener à bien cette aventure, ils ont repéré sur Houzz l’agence Ameo Concept, qui excelle à aménager les espaces dotés de fortes contraintes.
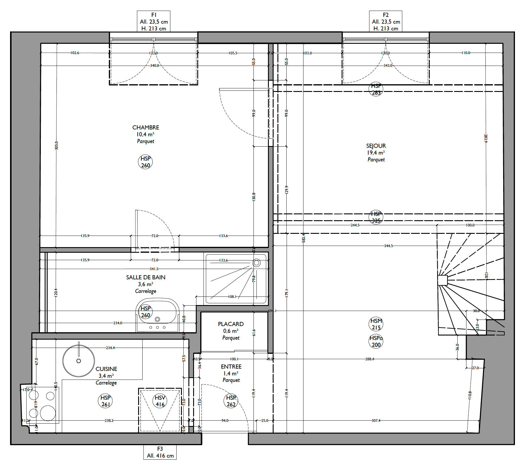
Plan du premier niveau avant travaux
« Un chantier complet et complexe » : ce sont d’emblée les mots d’Alicia Oustry, architecte d’intérieur et fondatrice d’Ameo Concept, pour décrire cette mission qui s’est étalée sur un peu plus de deux ans, à la suite de sa première visite des lieux en novembre 2023.
Le T2 de 38,8 m² se niche au 6ᵉ étage d’un immeuble de faubourg dans le quartier Goncourt. À gauche se trouve la cuisine étroite, tandis que le salon s’ouvre à droite comme une double pièce sur rue. Ce dernier dessert une belle chambre, également sur rue, dotée d’une salle de bains attenante. Dans le séjour, un escalier en colimaçon mène à une mezzanine en bois de 8,8 m² de surface et 165 centimètres de hauteur au faîtage, occupant environ la moitié du séjour et aménagée en bureau.
« Avec ses pans coupés et ses grandes portes-fenêtres embrassant le panorama du faubourg du Temple, l’appartement avait un charme fou. Cependant, la disposition des lieux manquait de proportions : la cuisine était minuscule, tandis que la chambre et la salle de bains étaient trop grandes pour cet espace », se remémore Alicia.
Trouvez un architecte d’intérieur près de chez vous sur Houzz
« Un chantier complet et complexe » : ce sont d’emblée les mots d’Alicia Oustry, architecte d’intérieur et fondatrice d’Ameo Concept, pour décrire cette mission qui s’est étalée sur un peu plus de deux ans, à la suite de sa première visite des lieux en novembre 2023.
Le T2 de 38,8 m² se niche au 6ᵉ étage d’un immeuble de faubourg dans le quartier Goncourt. À gauche se trouve la cuisine étroite, tandis que le salon s’ouvre à droite comme une double pièce sur rue. Ce dernier dessert une belle chambre, également sur rue, dotée d’une salle de bains attenante. Dans le séjour, un escalier en colimaçon mène à une mezzanine en bois de 8,8 m² de surface et 165 centimètres de hauteur au faîtage, occupant environ la moitié du séjour et aménagée en bureau.
« Avec ses pans coupés et ses grandes portes-fenêtres embrassant le panorama du faubourg du Temple, l’appartement avait un charme fou. Cependant, la disposition des lieux manquait de proportions : la cuisine était minuscule, tandis que la chambre et la salle de bains étaient trop grandes pour cet espace », se remémore Alicia.
Trouvez un architecte d’intérieur près de chez vous sur Houzz
Plan du premier niveau après travaux
Les propriétaires souhaitaient retrouver du volume à vivre au niveau inférieur. Pour cela, ils avaient l’ambition de transférer la chambre dans les combles, au-dessus de l’entrée, de la salle de bains et de la cuisine où une trappe de visite leur a donné des espoirs.
Pour vérifier la faisabilité de ce rattachement de combles, Alicia Oustry a mandaté un bureau d’études structure qui s’est montré favorable à leur projet. Les planètes se sont alignées quand les propriétaires ont réussi, de leur côté, à obtenir l’aval du syndic de copropriété pour acheter ce segment de combles perdus.
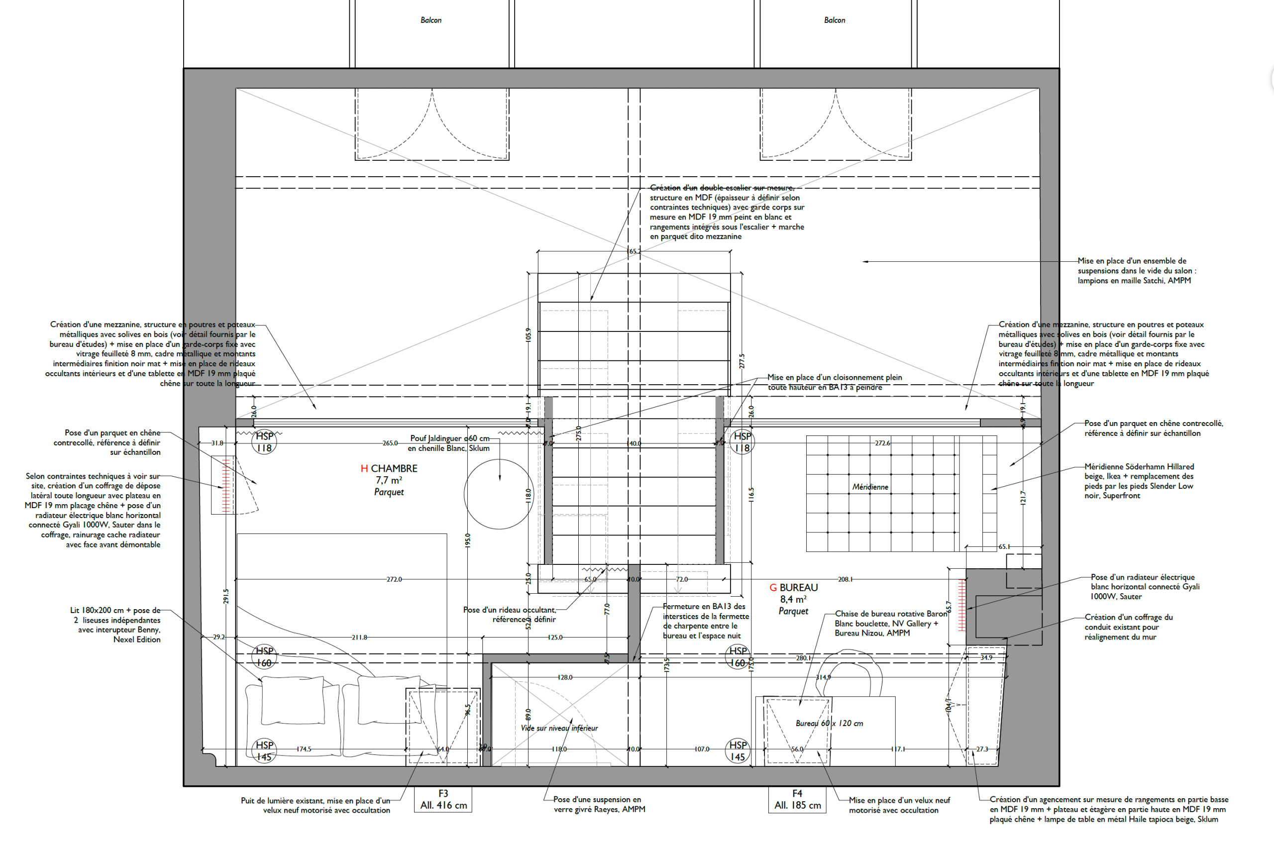
Cependant, malgré ces signaux prometteurs, la mission s’est révélée complexe, tant en conception qu’en réalisation, due à une découverte inattendue lors de la démolition : la ferme du toit, une poutre maîtresse triangulée, soutenant la charpente. « Il était impossible d’y toucher, car il s’agit d’un élément porteur qui assure la couverture du toit et transfère les charges vers les murs. Malheureusement, cela bloquait la distribution des pièces à l’étage et nous ne pouvions donc pas conserver l’escalier d’origine à sa place », explique Alicia.
Il est rapidement devenu évident que l’ensemble de l’étage nécessitait une reprise approfondie, sachant que la mezzanine existante avait été décrite par le bureau d’études comme un « élément bricolé, insuffisamment solide pour répondre aux normes exigées ».
Les propriétaires souhaitaient retrouver du volume à vivre au niveau inférieur. Pour cela, ils avaient l’ambition de transférer la chambre dans les combles, au-dessus de l’entrée, de la salle de bains et de la cuisine où une trappe de visite leur a donné des espoirs.
Pour vérifier la faisabilité de ce rattachement de combles, Alicia Oustry a mandaté un bureau d’études structure qui s’est montré favorable à leur projet. Les planètes se sont alignées quand les propriétaires ont réussi, de leur côté, à obtenir l’aval du syndic de copropriété pour acheter ce segment de combles perdus.
Cependant, malgré ces signaux prometteurs, la mission s’est révélée complexe, tant en conception qu’en réalisation, due à une découverte inattendue lors de la démolition : la ferme du toit, une poutre maîtresse triangulée, soutenant la charpente. « Il était impossible d’y toucher, car il s’agit d’un élément porteur qui assure la couverture du toit et transfère les charges vers les murs. Malheureusement, cela bloquait la distribution des pièces à l’étage et nous ne pouvions donc pas conserver l’escalier d’origine à sa place », explique Alicia.
Il est rapidement devenu évident que l’ensemble de l’étage nécessitait une reprise approfondie, sachant que la mezzanine existante avait été décrite par le bureau d’études comme un « élément bricolé, insuffisamment solide pour répondre aux normes exigées ».
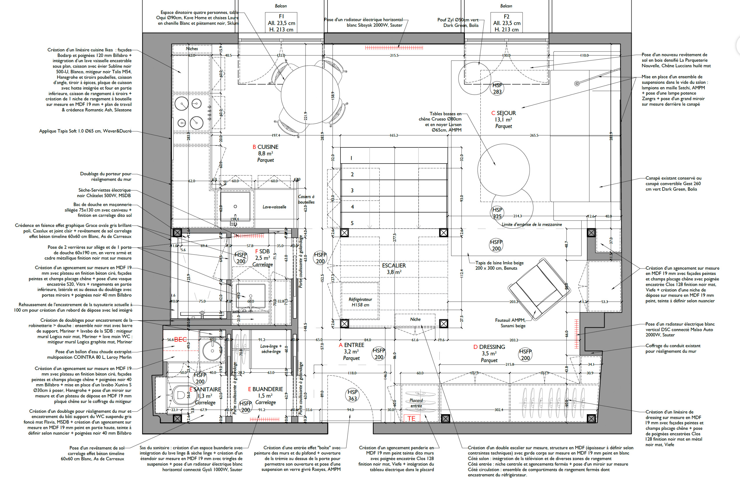
Après. De ces réflexions est née l’idée d’un nouvel escalier central de 1,65 mètre de large et 2,25 mètres de haut, conçu pour desservir le nouvel étage de part et d’autre de la ferme, laissant s’organiser les pièces de vie du niveau inférieur tout autour. « Cet escalier devait être assez large pour offrir des passages suffisants de chaque côté de cette poutre. Il laisse aujourd’hui 70 centimètres de passage côté bureau et 60 centimètres côté chambre », précise Alicia.
Ce volumineux escalier étant nécessaire, Alicia l’a dès lors imaginé comme la pierre angulaire de ce mini duplex, le rendant aussi soigné esthétiquement que fonctionnellement. « Notre parti pris était qu’il devienne la signature du lieu », résume-t-elle.
En termes de style, le couple souhaitait un « décor sobre et pérenne, agrémenté de quelques éléments forts, avec des touches de couleur verte ou bleue et du bois ». L’escalier, paré d’une palette harmonieuse de verts, beiges, noirs et blancs, est devenu un élément central de la personnalisation. « Un décor urbain qui apporte une bouffée d’oxygène tout en évitant d’assombrir », commente Alicia.
Ce volumineux escalier étant nécessaire, Alicia l’a dès lors imaginé comme la pierre angulaire de ce mini duplex, le rendant aussi soigné esthétiquement que fonctionnellement. « Notre parti pris était qu’il devienne la signature du lieu », résume-t-elle.
En termes de style, le couple souhaitait un « décor sobre et pérenne, agrémenté de quelques éléments forts, avec des touches de couleur verte ou bleue et du bois ». L’escalier, paré d’une palette harmonieuse de verts, beiges, noirs et blancs, est devenu un élément central de la personnalisation. « Un décor urbain qui apporte une bouffée d’oxygène tout en évitant d’assombrir », commente Alicia.
Après. L’escalier a été conçu minutieusement pour garantir une utilisation pratique : il est confortable pour monter, tout en laissant suffisamment d’espace à l’arrière pour accéder aisément à l’appartement et à l’avant pour circuler facilement entre séjour et cuisine. « Nous ne l’avons pas doté de garde-corps pour pouvoir s’en servir comme assises supplémentaires et que cela permette plus de modularité », explique Alicia, soulignant que cet appartement est destiné à des adultes sans enfants.
Un autre défi majeur était le manque de rangements dans l’appartement. Alicia a vu dans cet escalier sur mesure une opportunité pour créer un important volume de stockage.
Côté séjour, les cases sont à la fois ouvertes et fermées, agrémentées de touches de couleur pour animer le décor. L’escalier accueille même le téléviseur dans une niche peinte en noir pour assurer sa discrétion, tout en étant monté sur un bras pivotant qui optimise son orientation.
Un surplus de rangement se cache également derrière l’escalier, sous la nouvelle mezzanine. Ce linéaire complet de dressings aménagé avec des étagères, tringles et tiroirs, offre un volume de stockage dont bien des appartements beaucoup plus grands pourraient être jaloux.
Plus d’idées pour optimiser un escalier sur Houzz
Un autre défi majeur était le manque de rangements dans l’appartement. Alicia a vu dans cet escalier sur mesure une opportunité pour créer un important volume de stockage.
Côté séjour, les cases sont à la fois ouvertes et fermées, agrémentées de touches de couleur pour animer le décor. L’escalier accueille même le téléviseur dans une niche peinte en noir pour assurer sa discrétion, tout en étant monté sur un bras pivotant qui optimise son orientation.
Un surplus de rangement se cache également derrière l’escalier, sous la nouvelle mezzanine. Ce linéaire complet de dressings aménagé avec des étagères, tringles et tiroirs, offre un volume de stockage dont bien des appartements beaucoup plus grands pourraient être jaloux.
Plus d’idées pour optimiser un escalier sur Houzz
Après. Le séjour n’a pas changé de place, tant il est agréable d’y contempler la vue dégagée sur le ciel et les toits de Paris. « C’est la plus belle vue de l’appartement », confirme Alicia.
Derrière le canapé, le mur suit la pente du toit et s’élève sur une double hauteur, un atout que l’architecte d’intérieur a su transformer en un élément de charme. Là où certains auraient opté pour un tableau ou un lé de papier peint, elle a appliqué l’une de ses astuces favorites : l’intégration d’un miroir. « Il a vraiment une raison d’être ici car il a de nombreuses utilités », déclare-t-elle. « Il double visuellement la surface de l’appartement et le nombre de fenêtres. Il offre aussi une vue panoramique de l’appartement lorsqu’on est au bureau au-dessus. Et puis, j’adore son effet, qui réfléchit la lumière des lampes la nuit ».
Pour l’anecdote, l’équipe d’artisans de la société tout corps d’état, partenaire d’Alicia a rebaptisé son agence « Ameo Concept » en « Ameo Lighting », en raison de sa passion pour les éclairages. « J’en mets partout, c’est vrai. Des éclairages directs et indirects adaptés à chaque moment de la journée et de la soirée. Il n’y a rien de plus sympa que d’allumer une petite lampe pour créer une ambiance feutrée ou de profiter d’un éclairage puissant quand c’est nécessaire », s’enthousiasme-t-elle. Cet appartement n’a pas fait exception, intégrant des spots au plafond dans les circulations, un élégant ensemble de suspensions dans le séjour, une applique graphique dans la cuisine, le tout dimmable pour un confort optimal.
Derrière le canapé, le mur suit la pente du toit et s’élève sur une double hauteur, un atout que l’architecte d’intérieur a su transformer en un élément de charme. Là où certains auraient opté pour un tableau ou un lé de papier peint, elle a appliqué l’une de ses astuces favorites : l’intégration d’un miroir. « Il a vraiment une raison d’être ici car il a de nombreuses utilités », déclare-t-elle. « Il double visuellement la surface de l’appartement et le nombre de fenêtres. Il offre aussi une vue panoramique de l’appartement lorsqu’on est au bureau au-dessus. Et puis, j’adore son effet, qui réfléchit la lumière des lampes la nuit ».
Pour l’anecdote, l’équipe d’artisans de la société tout corps d’état, partenaire d’Alicia a rebaptisé son agence « Ameo Concept » en « Ameo Lighting », en raison de sa passion pour les éclairages. « J’en mets partout, c’est vrai. Des éclairages directs et indirects adaptés à chaque moment de la journée et de la soirée. Il n’y a rien de plus sympa que d’allumer une petite lampe pour créer une ambiance feutrée ou de profiter d’un éclairage puissant quand c’est nécessaire », s’enthousiasme-t-elle. Cet appartement n’a pas fait exception, intégrant des spots au plafond dans les circulations, un élégant ensemble de suspensions dans le séjour, une applique graphique dans la cuisine, le tout dimmable pour un confort optimal.
Après. Nous sommes ici dans l’entrée, située derrière l’escalier et intégrée sous le nouvel étage. Le plafond, à 2,20 mètres, offre une hauteur suffisante pour les espaces de circulation.
Sur la gauche de l’escalier, une autre série de logements masque le combiné réfrigérateur et le placard à balais avec l’étendoir à linge et l’aspirateur. Face à eux se profile la porte de la nouvelle salle d’eau.
Sur la gauche de l’escalier, une autre série de logements masque le combiné réfrigérateur et le placard à balais avec l’étendoir à linge et l’aspirateur. Face à eux se profile la porte de la nouvelle salle d’eau.
Vous êtes en quête d'un artisan pour votre projet en rénovation complète ?
Nous vous aidons à trouver les meilleurs pros
Nous vous aidons à trouver les meilleurs pros
À l’arrière de l’escalier, l’espace est agrémenté d’une peinture beige lumineuse. Cet espace d’entrée intègre un grand miroir et un placard de faible profondeur, avec une niche en chêne rétroéclairée.
Sur le côté droit, le linéaire de placards évoqué offre un vestiaire d’entrée. Ces rangements se prolongent côté séjour, autour d’un ancien conduit de cheminée qui supporte un grand radiateur électrique.
Sur le côté droit, le linéaire de placards évoqué offre un vestiaire d’entrée. Ces rangements se prolongent côté séjour, autour d’un ancien conduit de cheminée qui supporte un grand radiateur électrique.
Après. Aujourd’hui, la cuisine se niche en L dans cet espace. Structurée à partir de caissons et de façades Ikea, elle arbore une teinte verte soutenue, mise en valeur par un plan de travail en quartz noir veiné de blanc. « Dans cette cuisine, nous avions envie d’un fort contraste et d’une volumétrie libre. L’idée était de démultiplier les perspectives », partage Alicia. On note également un chassis fixe à gauche de l’évier, afin de donner de la lumière naturelle à la salle de bains.
Après. Désormais, on accède à la salle d’eau par l’une des circulations offertes via l’escalier. « On a joué sur des coloris clairs et des lignes très droites, adoucies par un carrelage en forme de navette », note la professionnelle. Le décaissement du sol a permis d’installer une douche à l’italienne, et Alicia a suggéré un bandeau LED pour créer une belle ambiance lumineuse pendant la douche.
Grâce à des efforts d’intégration, la salle de bains ne semble pas étroite. La robinetterie encastrée contribue aux lignes épurées, de même que l’armoire de toilette au-dessus.
Après. Cette cuisine, autrefois trop longue, a été repensée en deux pièces très fonctionnelles en enfilade. On y trouve une mini-buanderie, suivie de petits coins discrets façon color block. « Les toilettes qui donnent sur les pièces de vie, c’est ma hantise absolue. Pour plus de discrétion dans les petits espaces, j’aime utiliser cette astuce de sas », explique Alicia.
En cours de chantier. Le chantier s’est révélé difficile en raison de cette préconisation du bureau d’études. « Les ingénieurs du BET ont recommandé une structure tout en acier, très lourde et coûteuse. Nous avons pour notre part choisi de combiner bois et acier pour alléger le poids et réduire les frais, mais le bureau d’études nous a alors imposé des jonctions spécifiques entre ces matériaux. Cela a entraîné un véritable ping-pong avec l’entreprise pour trouver les meilleures solutions. Au final, nous avons utilisé plus de 1 500 boulons et accumulé environ deux mois de retard », explique l’architecte d’intérieur, soulignant la complexité des échanges entre les différents acteurs, ingénieurs et artisans et son rôle essentiel tout au long pour fluidifier les relations.
En cours de chantier. Vous aurez noté qu’un nouveau plancher en bois densifié a remplacé le parquet en chêne d’origine. Ce changement était nécessaire pour des raisons techniques. En effet, le mur du fond de l’appartement, où reposent les placards, était une cloison. De plus, les murs latéraux comprenaient chacun un ancien conduit de cheminée, ce qui a rendu impossible la fixation pour soutenir l’étage.
« Il a fallu s’empocher à la façade par le bas », jargonne Alicia. En clair, la structure porteuse de l’étage repose désormais sur des poteaux en acier, arrimés à de nouvelles poutrelles métalliques posées directement au sol et ancrées à la structure de l’immeuble (voir visuel précédent). Par la suite, le sol de l’étage a été réalisé en plancher bois avec une épaisseur totale de 24 centimètres.
« Il a fallu s’empocher à la façade par le bas », jargonne Alicia. En clair, la structure porteuse de l’étage repose désormais sur des poteaux en acier, arrimés à de nouvelles poutrelles métalliques posées directement au sol et ancrées à la structure de l’immeuble (voir visuel précédent). Par la suite, le sol de l’étage a été réalisé en plancher bois avec une épaisseur totale de 24 centimètres.
Après. Pour plus de confort, deux pièces semi-fermées ont été construites à cet étage : un nouveau bureau (photo) et la chambre tant désirée par les propriétaires. Chaque pièce est équipée d’un grand châssis fixe, qui permet de récupérer la luminosité de la façade en second jour. « Nous n’avons pas voulu opter pour des vitrages coulissants, car les châssis auraient été infiniment plus lourds », explique Alicia.
Après. Le nouveau bureau a été aménagé avec une méridienne de repos offrant une vue sur le séjour. Un bureau est judicieusement placé sous le Velux existant, profitant de la lumière naturelle. Des étagères optimisent l’espace dans le recoin créé par le conduit de cheminée tandis que, pour prolonger l’harmonie colorée, la niche a été accentuée par un fond vert.
Après. Pari gagné pour les propriétaires, qui disposent désormais d’une chambre à l’étage. L’ancien puits de lumière de la cuisine, remplacé par un Velux, apporte la lumière naturelle directe et permet d’aérer la pièce. La chambre, à l’instar du bureau, est également équipée d’un châssis fixe en second jour qui surplombe la cuisine. « Cette chambre, c’est un peu le minimum vital, mais elle est très fonctionnelle », estime Alicia.
Après. Le plafond culmine à 165 centimètres sous la panne faîtière bien restaurée (c’est pourquoi ni la chambre ni le bureau ne sont comptabilisés dans les mètres Carrez). Cependant, le confort d’usage est le meilleur possible grâce à une isolation généreuse des combles. Un radiateur électrique a été discrètement coffré sur un côté (derrière les rainures), et au-dessus, l’architecte d’intérieur a intégré une tablette filante pour compenser l’absence de tête de lit. À côté du radiateur, une sortie circulaire communique avec l’extérieur, pour brancher au besoin une climatisation mobile, selon les souhaits des propriétaires en cas d’une éventuelle canicule.
« C’est l’un de mes projets préférés ! », affirme Alicia. « Les clients étaient adorables et ont immédiatement adhéré à mes idées de conception. Bien sûr, le fait que le chantier ait été prolongé de deux mois n’a pas été idéal. Ils ont dû aller à l’hôtel, mais le résultat les a enchantés. » Pour sa part, ce chantier restera un défi complexe en termes d’exécution. « Il a nécessité une vraie précision chirurgicale, mais il m’a beaucoup appris », a-t-elle conclu.
ET VOUS ?
Que pensez-vous de cette rénovation ?
Vous êtes en quête d’un architecte d’intérieur ? Houzz partage son annuaire exclusif pour que vous mettiez toutes les chances de votre côté. Savez-vous pourquoi les architectes d’intérieur qui utilisent Houzz Pro ont de meilleures chances de vous faire atteindre vos objectifs ? Ils utilisent notre logiciel tout-en-un et vous pourrez en profiter grâce à eux. Grâce aux outils de visualisation inclus dans l’outil, vous pourrez imaginer votre projet clairement et rapidement. Le Portail Client fluidifie quant à lui vos communications avec le professionnel tout au long du projet, quand la signature des devis en ligne simplifie vos démarches.
« C’est l’un de mes projets préférés ! », affirme Alicia. « Les clients étaient adorables et ont immédiatement adhéré à mes idées de conception. Bien sûr, le fait que le chantier ait été prolongé de deux mois n’a pas été idéal. Ils ont dû aller à l’hôtel, mais le résultat les a enchantés. » Pour sa part, ce chantier restera un défi complexe en termes d’exécution. « Il a nécessité une vraie précision chirurgicale, mais il m’a beaucoup appris », a-t-elle conclu.
ET VOUS ?
Que pensez-vous de cette rénovation ?
Vous êtes en quête d’un architecte d’intérieur ? Houzz partage son annuaire exclusif pour que vous mettiez toutes les chances de votre côté. Savez-vous pourquoi les architectes d’intérieur qui utilisent Houzz Pro ont de meilleures chances de vous faire atteindre vos objectifs ? Ils utilisent notre logiciel tout-en-un et vous pourrez en profiter grâce à eux. Grâce aux outils de visualisation inclus dans l’outil, vous pourrez imaginer votre projet clairement et rapidement. Le Portail Client fluidifie quant à lui vos communications avec le professionnel tout au long du projet, quand la signature des devis en ligne simplifie vos démarches.



































Qui habite ici ? Un couple de quadras
Emplacement : quartier Goncourt, Paris 10ᵉ
Études et travaux : de novembre 2023 à janvier 2025
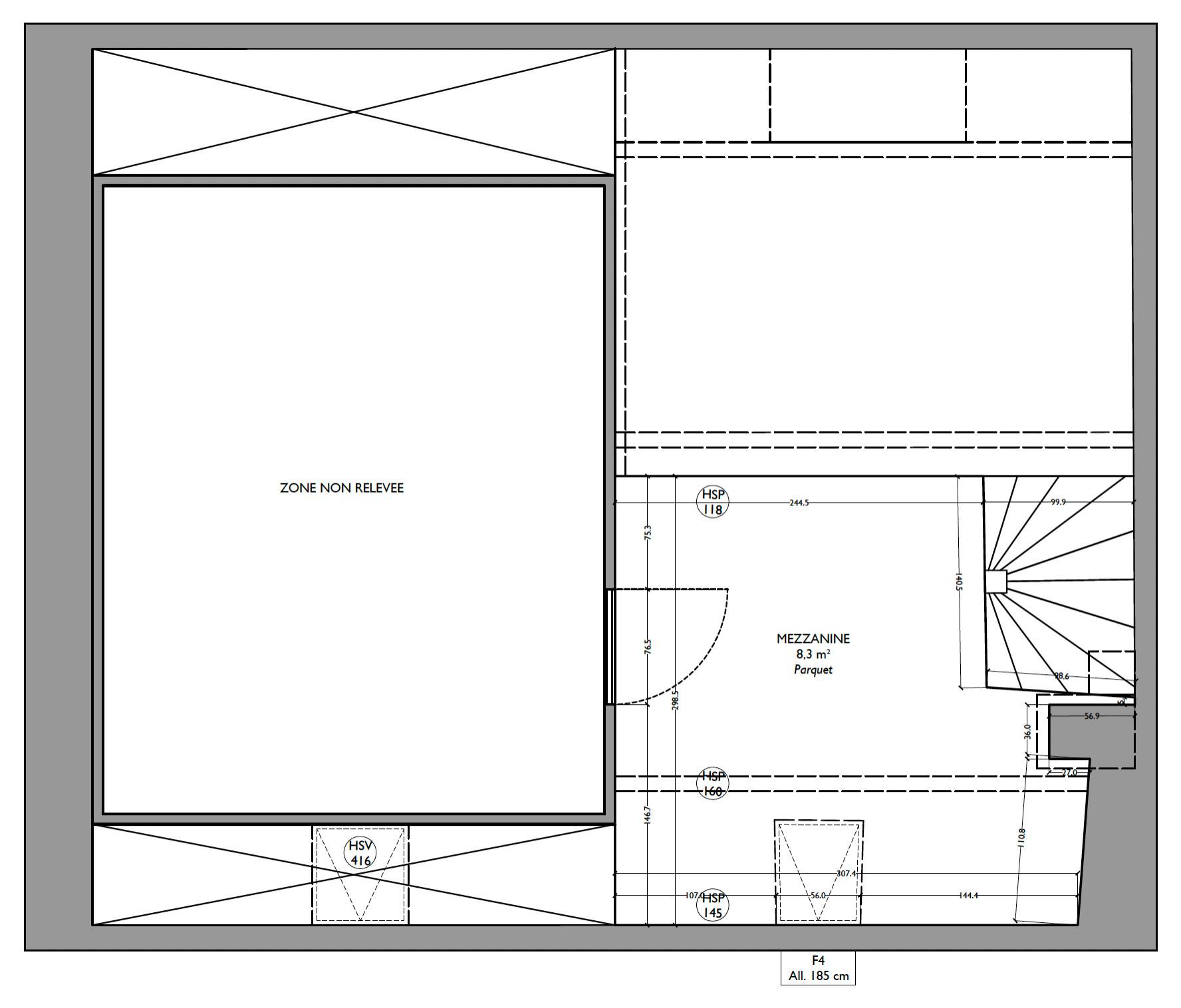
Superficie : 38,8 m² Carrez (niveau bas) + une mezzanine de 8,3 m² à laquelle a été adjointe une chambre de 8 m² suite au rattachement des combles.
Architecte d’intérieur : Alicia Oustry, Ameo Concept
Budget tout compris : 110 000 euros TTC, dont 95 000 euros pour les travaux et 15 000 euros pour les études structure et les honoraires
Photos : Agathe Tissier