Avant/Après : Jeux de géométrie pour personnaliser un 55 m2
Découvrons cet appartement personnalisé autour d'un motif de crédence et de textile
C’est à Thomas Christiaen, de l’Atelier Philibert, que ce jeune couple a confié l’aménagement de son premier appartement, après avoir découvert le travail du professionnel grâce à Internet. Le logement est refait à neuf et en excellent état au moment de l’achat. Ce qui manque, c’est une personnalisation, une âme… Découvrez comment les professionnels ont aménagé cet appartement et lui ont donné un cachet unique, avec pour point de départ un motif singularisé en couleur et en géométrie.
Avant. Cet appartement est dans un immeuble des années 1930. Le propriétaire a refait l’intégralité des appartements. Les logements bénéficient donc d’une rare conjonction entre l’ancien et le neuf. Le cachet d’origine reste présent avec le parquet, une bonne hauteur sous plafond, des moulures très légèrement arrondies, un bow-window dans le salon. Par ailleurs, « c’était très propre, tout neuf, ce qui a plu aux clients dont c’était le premier achat », explique Thomas Christiaen. Cependant, « au moment de l’acquisition, tout était hyper simple, minimaliste », sans aménagement marqué.
Trouvez un architecte d’intérieur près de chez vous sur Houzz
Trouvez un architecte d’intérieur près de chez vous sur Houzz
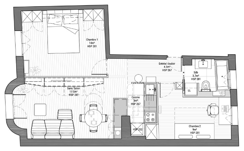
Après. Voici comment se présente l’appartement retravaillé : une chambre pour deux, une salle de bains, un bureau, et surtout un triptyque cuisine ouverte/salle à manger/séjour qui constitue la part centrale du logement. « L’enjeu », explique Thomas en évoquant les souhaits des jeunes propriétaires, « c’était de donner de la vie, d’obtenir un lieu qui leur ressemble, avec un cachet ; il fallait créer des rangements, une cuisine avec plus de place, optimiser la salle de bains et la rendre plus charmante, aménager le salon… ».
Quant à la touche déco, elle provient d’une source d’inspiration particulière. Afin de visualiser le rendu idéal, Thomas a sa méthode : « Je passe un peu de temps avec les clients, les questionne, je leur ai fait plusieurs propositions d’ambiance. Ici, ils m’avaient envoyé un tissu quilt avec des coussins assortis, le tout avec un côté très graphique, c’était notre point de départ, et on a choisi des tonalités en harmonie avec : bleu, noir… ».
Quant à la touche déco, elle provient d’une source d’inspiration particulière. Afin de visualiser le rendu idéal, Thomas a sa méthode : « Je passe un peu de temps avec les clients, les questionne, je leur ai fait plusieurs propositions d’ambiance. Ici, ils m’avaient envoyé un tissu quilt avec des coussins assortis, le tout avec un côté très graphique, c’était notre point de départ, et on a choisi des tonalités en harmonie avec : bleu, noir… ».
Après. Voici l’entrée vue de l’intérieur, selon l’angle opposé. On relève d’emblée l’importance des perpendicularités, des courbes et des géométries dans l’appartement. D’une part, des lignes très droites, au sol avec les lattes de parquet, et à la verticale avec le meuble sur mesure accueillant les chaussures. D’autre part, des arrondis, des ovales et des quarts de cercle animent le champ de vision. « Ces lignes circulaires, comme le miroir ovale de l’entrée, adoucissent les angles. Pour le dessin du carrelage au sol, on a ajouté des fragments redessinés pour créer un arrondi », raconte Thomas.
Maximilien Caglayan, qui a effectué les travaux planifiés par Thomas avec sa société Rénovamax, explique : « Nous avons fait un travail particulier en n’utilisant pas la même finition de peinture : mat pour le plafond, velours pour le mur, selon des tracés qu’on a bien délimités ».
Plus d’idées pour aménager une entrée sur Houzz
Maximilien Caglayan, qui a effectué les travaux planifiés par Thomas avec sa société Rénovamax, explique : « Nous avons fait un travail particulier en n’utilisant pas la même finition de peinture : mat pour le plafond, velours pour le mur, selon des tracés qu’on a bien délimités ».
Plus d’idées pour aménager une entrée sur Houzz
Voici le détail du claustra séparant entrée et cuisine. On remarque le placement original des lignes en oblique et l’ombre particulière qu’elles projettent, ce qui change de la disposition habituellement parallèle des lattes de bois de ce type d’élément.
Après. La nouvelle cuisine est très ouverte et établit une liaison à la fois esthétique et fonctionnelle avec le séjour, avec l’îlot qui marque la séparation sans cloisonner les espaces. Le claustra remplace avantageusement la paroi en verre, créant une démarcation plus aérée et esthétique. La suspension originale centrée sur la table de la salle à manger afin de mieux marquer sa place condense les jeux de couleur et de forme du lieu : emboîtements circulaires et teintes bleutée et orangée. L’îlot de séparation contient des rangements de 60 centimètres de profondeur côté cuisine, 40 centimètres de profondeur côté salle à manger. Il provient d’une optimisation ingénieuse d’un morceau de mur présent et au départ pas très esthétique. Investi, aménagé, paré d’un miroir par les soins des professionnels, ce qui donne beaucoup de lumière, il devient un atout, apportant perspective et profondeur.
Suspension : Louis Poulsen
Suspension : Louis Poulsen
La cuisine s’organise autour de cette crédence bleu sombre, blanc et noir, dont les éléments environnants reprennent les trois tonalités. En effet, les façades sont assorties à la crédence. Le choix de placer les placards blancs en hauteur ouvre le regard et empêche la cuisine de paraître trop engoncée.
Caissons : Ikea ; façades : Plum Kitchen
Caissons : Ikea ; façades : Plum Kitchen
Voici le détail du carrelage de la cuisine, qui avait pour inspiration de départ le textile quilt montré par les clients. La crédence comporte huit carreaux différents par boîte. « Ensuite, on dessine avec, on crée son propre motif », explique Thomas. « Ce carrelage, c’est le point focal de l’appartement ».
Crédence : Mutina
Crédence : Mutina
Après. Voici le fond, vu sous le même angle. La grande porte bleue est celle du réfrigérateur. Les spots d’éclairage au plafond étaient déjà présents, mais un éclairage LED a été rajouté au niveau du plan de travail.
Vous êtes en quête d'un artisan pour votre projet en rénovation de cuisine ?
Nous vous aidons à trouver les meilleurs pros
Nous vous aidons à trouver les meilleurs pros
La salle en manger s’articule autour de meubles simples aux lignes très marquées et droites, avec la table ronde aux pieds en jambes de compas, s’harmonisant ainsi aux géométries de l’appartement. Le bois s’allie bien aux notes bleu sombre et au parquet, et réchauffe le visuel.
Thomas raconte : « Ils n’avaient pas forcément beaucoup de choses mais quelques objets design qu’ils souhaitaient conserver, comme ces chaises avec leur touche de noir, c’est aussi pour cela qu’on a placé des notes noires dans la crédence de cuisine et le plan de travail ».
Thomas raconte : « Ils n’avaient pas forcément beaucoup de choses mais quelques objets design qu’ils souhaitaient conserver, comme ces chaises avec leur touche de noir, c’est aussi pour cela qu’on a placé des notes noires dans la crédence de cuisine et le plan de travail ».
Après. Voici le séjour aménagé. L’ameublement, abondant sans surcharge, casse les lignes en couloir et apporte des notes de rondeur – le pouf, les rebords du canapé, la table à manger circulaire.
Nous voyons ici sur le canapé le point de départ d’inspiration : le tissu quilt et les coussins de même style, qui appartenaient déjà aux clients. Les couleurs et motifs de plusieurs zones comme la cuisine ont été choisis pour s’y accorder parfaitement.
Voici la table basse vue de près. Avec son plateau carré et son pied en croix, elle s’inscrit bien dans les jeux de lignes de l’appartement. « Elle est en travertin, ils hésitaient à la garder, je leur ai conseillé de le faire. Ils avaient des éléments de décoration assez jolis », explique Thomas.
Nous remarquons en haut à droite de l’angle du mur, marquant la jonction avec le plafond, un léger arrondi. Cette forme, d’origine, contribue au cachet de l’appartement et a été préservée. « Dans plusieurs endroits, comme la chambre et le bureau, nous avons mis en valeur ces arrondis, nous avons peint de façon à renforcer leur dessin », raconte Thomas. « Le mobilier ici est sur mesure, dans deux tonalités, en MDF peint en blanc et en MDF plaqué chêne en bas », précise Maximilien.
Concernant le meuble de séjour, « nous l’avons dessiné en cassant les angles, pour fluidifier la circulation », se souvient Thomas. Les trous que l’on entrevoit à gauche près du sol correspondent au coffrage du radiateur, tandis que sous le téléviseur a été réservé un espace ouvert, souhaité par les clients afin d’y placer la PlayStation.
Les ouvertures nouvelles permettent une sensation d’espace et de liberté et une circulation sans entrave, avec une continuité visuelle de formes et de teintes.
Les dessus du meuble du séjour peuvent aussi bien servir d’étagères que de socles de mise en valeur, comme ici avec ce cadre photo et ces petits objets plutôt design.
Nous découvrons la chambre. Elle est claire et douce. « Nous ne voulions pas laisser la chambre toute blanche, l’idée était d’obtenir, avec cette teinte, une sensation un peu enveloppante ». La chambre, qui donne côté rue, comporte deux types de rideaux, une paire qui laisse passer la lumière, l’autre, plus occultante, pour la nuit. Les dressings Ikea Pax sont faciles à aménager et sont complétés aisément par la tête de lit sur mesure. « Le lit pont permet d’avoir de l’espace, il en reste d’ailleurs encore dans cette chambre même après tous les rangements qu’on a placés », remarque Thomas.
Peinture : Pale Powder, Farrow and Ball
Peinture : Pale Powder, Farrow and Ball
La tête de lit comporte de chaque côté une applique, son interrupteur, et une niche de rangement. Le dessus de la tête de lit fait office en plus d’étagère. Chaque niche comporte une prise.
« La tête et le pont de lit sont sur mesure », précise Maximilien. « Du “semi-mesure” : on prend des caissons Ikea, que l’on “habille” ensuite comme on le souhaite ». Cette utilisation du « hack Ikea » – où l’on combine des caissons de l’enseigne à des façades ou autres ajouts personnalisés – permet un aménagement précis et complet pour un budget raisonnable. Dans cet environnement simple et fluide, le coussin placé par les propriétaires crée un écho à la décoration particulière des autres pièces.
7 Ikea Hacks de pros
7 Ikea Hacks de pros
Après. Comme dans la chambre, le choix d’une couleur claire et douce, ici vert amande, a été préféré à l’incolore. Maximilien précise : « Nous avons placé dans la salle de bains deux étagères en MDF plaqué chêne et une planche sur la machine à laver, le tout sur mesure ». Cet aménagement sobre apporte cependant à la fois de la praticité sur le plan fonctionnel et de la chaleur sur le plan esthétique.
Après. Le décroché et les angles ont été traités comme un atout esthétique, et participent ainsi aux jeux de l’appartement sur les lignes et les angles droits, grâce à cette peinture gaie et chaude au plafond, qui valorise leur dessin.
Peinture du plafond : Red Earth, Farrow & Ball
Peinture du plafond : Red Earth, Farrow & Ball
Dans ce bureau clair et épuré, pourvu d’un pupitre blanc, dont les jambages obliques et longilignes en compas écartés rappellent légèrement ceux de la table du salon, le pouf fait écho au plafond par sa note orangée et vive. Le choix d’ambiance valorise la clarté, l’épure et la chaleur.
Bureau : Hay
Bureau : Hay
La lampe choisie pour le bureau renforce la touche vitaminée et design de cet espace moderne.
Lampe de bureau : Vitra
Lampe de bureau : Vitra
Dernier détail que nous explorerons : cette petite étagère en bois a été placée sur un radiateur, comme un discret point d’aménagement supplémentaire. « En soi, il est plutôt joli, mais c’est toujours un peu massif. On ajoute donc une petite tablette, qui permet aussi d’éviter de salir le mur ». Quel a été le bilan de cette expérience pour les professionnels ? « C’est un beau projet, design », commente Maximilien. Ce type de chantier consistant à donner du cachet, du style, est assez satisfaisant », conclut Thomas. « Mon espace préféré est la cuisine, on a fait d’un petit coin sans intérêt un élément très marquant qui donne le ton dans tout l’appartement ».
Concernant les clients, leur réaction est parlante : « ils étaient très contents, c’était leur premier achat, les travaux représentaient un gros investissement, ils avaient beaucoup d’attente sur le résultat et étaient très satisfaits du rendu et de l’ambiance globale, ils nous ont même offert du champagne pour nous remercier de la fin du chantier ! »
Budget global : 30 000 euros, honoraires inclus, incluant :
ET VOUS ?
Que pensez-vous de cette rénovation ?
Concernant les clients, leur réaction est parlante : « ils étaient très contents, c’était leur premier achat, les travaux représentaient un gros investissement, ils avaient beaucoup d’attente sur le résultat et étaient très satisfaits du rendu et de l’ambiance globale, ils nous ont même offert du champagne pour nous remercier de la fin du chantier ! »
Budget global : 30 000 euros, honoraires inclus, incluant :
- Parquet : 1 000 euros
- Plomberie : 1 500 euros
- Électricité : 2 500 euros
- Carrelage : 1 400 euros
- Menuiserie : 16 000 euros
- Peinture : 2 500 euros
ET VOUS ?
Que pensez-vous de cette rénovation ?


































Qui habite ici ? Un jeune couple
Emplacement : Paris, 18ᵉ
Surface/nombre de pièces : 55 m², 3 pièces
Architecte d’intérieur : Thomas Christiaen et Clémence Ledure, de l’Atelier Philibert
Entreprise de travaux : Renovamax
Durée des travaux : 2 mois, livraison en août 2024
Budget : 30 000 euros, hors honoraires (budget détaillé en fin d’article)
Photo : Julie de Bourmont