Dossiers populaires
Projets nés sur Houzz
Avant/Après : La renaissance d'une maison pleine de malfaçons
Dix ans après sa rénovation totale, cette maison de ville était devenue insalubre et tout était à refaire !
Vous connaissez sans doute l’histoire du petit homme dont la maison est en carton et ses escaliers en papier… Elle n’est pas si lointaine de celle de ce couple, propriétaire d’une jolie petite maison 1930 en banlieue parisienne. Après y avoir vécu 15 ans, ils ont voulu faire réagencer la bâtisse saine mais dans son jus et, pour cela, ont mandaté une architecte, laquelle leur a dessiné un plan bien sympathique. Après un an de chantier, une extension a été créée sur le jardin, les pièces de vies maximisées, jusque-là tout allait bien. Mais après six mois de vie dans la maison rénovée de fond en comble, les escaliers ont commencé à s’effriter, le plancher à gondoler, les fenêtres à se desceller, les murs se sont mis à pourrir, la terrasse à s’effondrer… Dix années de procédure contre l’architecte et la décennale de la société de travaux, qui avait fermé entretemps, ont été nécessaires pour que le couple récupère l’argent de l’assurance et puisse enfin envisager la réfection intégrale du bien.
Avant. « Ça a été très long et très compliqué », résume la jeune architecte Émilie Melin en commençant la visite. Car après avoir découvert ce qui était visible, la pro et son entreprise (RSM) ont eu d’autres mauvaises surprises au fil des déposes : « Nous avions identifié d’emblée le problème d’humidité en raison du salpêtre aux murs avant de découvrir plus tard que l’étanchéité de l’extension avait été mal faite, que la pompe du système de récupération d’eau avait explosé, que les fenêtres avaient été mal posées et d’autres déboires…. J’ai eu quelques nuits difficiles en me demandant à chaque problème comment j’allais l’annoncer aux maîtres d’ouvrage. Nous étions partis pour 8 mois de chantier, les travaux ont duré deux ans. Nous avions une enveloppe de 100 000 euros, il a fallu en rajouter 50… Même s’ils essayaient de rester positifs, compréhensifs et attentifs, les propriétaires ont eu des périodes très difficiles puisqu’ils vivaient directement sur le lieu du chantier… », raconte Émilie.
Après. À voir aujourd’hui cette façade arrière bardée de tasseaux de mélèze, cette piscine dans ce jardin paysager, nous peinons à imaginer les efforts qu’il a fallu aux propriétaires et à leur architecte pour en arriver là. Bardage, réfection de la terrasse, pose des volets et piscine ne sont intervenus qu’à la toute fin du chantier, l’été dernier. Avant de parvenir à ces belles finitions, la route d’une rénovation en profondeur a été longue.
Avant. Dès la façade avant, les soucis s’amoncelaient… Sur la droite, une cour anglaise contenait le bloc extérieur de la clim réversible, lequel, mal réglé, avait soufflé de l’air glacial au point d’occire le moteur de la pompe du recyclage d’eau. Sur la gauche, l’abri technique pour loger poubelles et vélos s’était effondré.
Quant aux marches du perron, elles avaient été réalisées sans aucune pente si bien que l’eau stagnait à chaque pluie et les dégradait.
Les malfaçons s’enchaînaient donc au rythme du gag de Muriel Robin « La réunion de chantier ». Mais pour ces propriétaires, l’heure n’était pas à la franche rigolade car la rénovation complète de la maison datait d’à peine dix ans et elle semblait déjà sans âge !
Les malfaçons s’enchaînaient donc au rythme du gag de Muriel Robin « La réunion de chantier ». Mais pour ces propriétaires, l’heure n’était pas à la franche rigolade car la rénovation complète de la maison datait d’à peine dix ans et elle semblait déjà sans âge !
Après. Pour redonner du panache à la façade Il a été convenu de la rehausser avec un parement briques, dans le style des maisons ouvrières de banlieue parisienne. Mais la réalisation a rencontré elle aussi son lot d’imprévus : « Les propriétaires avaient choisi une plaquette gris foncé, mais il y a eu un problème de référence à la commande. Mon entreprise a été obligée d’aller en chercher en urgence en Belgique où seule cette couleur beige/gris était disponible de suite. Heureusement elle plaisait aux propriétaires… Ils ont trouvé le résultat très heureux et leurs voisins les ont mêmes complimentés », relate Émilie.
Pour ajouter une note chaleureuse, la cour anglaise et l’abri à vélo ont été bardés pour leur part de bois de mélèze.
Pour ajouter une note chaleureuse, la cour anglaise et l’abri à vélo ont été bardés pour leur part de bois de mélèze.
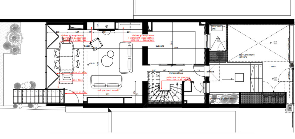
Plan du rez-de-chaussée
Dès 2017, la première phase des travaux s’est concentrée sur le rez-de-jardin, partie de la maison la plus endommagée et où la liste de malfaçons était très longue. Celui-ci était occupé par une chambre d’amis, un bureau avec un coin salle de sport, une buanderie et une salle d’eau.
Dès 2017, la première phase des travaux s’est concentrée sur le rez-de-jardin, partie de la maison la plus endommagée et où la liste de malfaçons était très longue. Celui-ci était occupé par une chambre d’amis, un bureau avec un coin salle de sport, une buanderie et une salle d’eau.
Avant. « À l’arrière de la maison, sur la terrasse de tomettes d’origine, une terrasse bois avait été installée lors de la phase de rénovation. Mais les propriétaires ont fini par découvrir que la terrasse avait été posée sur des plots de… plâtre et non de PVC ou de béton comme on doit le faire normalement. Le plâtre s’est bien entendu désagrégé au fil des pluies et il est venu boucher les caniveaux. Un jour d’orage, tout le rez-de-chaussée a été inondé. Les murs intérieurs avaient déjà commencé à cloquer depuis quelque temps et ce dégât des eaux a accéléré le pourrissement des murs. Les bouches de ventilation avaient été omises dans le rez-de-jardin. Ce dernier est devenu insalubre », raconte Émilie.
Après. L’extension conçue sur la base d’une ossature acier semblait quant à elle tenir bon mais de gros doutes s’étaient installés dans l’esprit de l’architecte : « Quelques mois avant le démarrage du chantier nous avons procédé à des sondages afin de vérifier comment ces murs étaient construits. Quelle ne fut pas notre surprise quand nous avons découvert qu’il n’y avait pas de fondations. Il a donc fallu faire une étude de sol avant de les recréer. Heureusement, il n’y a eu aucun désordre lié à ce manque », poursuit Émilie Melin.
Avant. Il a fallu néanmoins reprendre l’intégralité de l’extension en sous-face car elle avait été finie en… BA13, pas même hydrofuge !
Autre problème pour les deux portes-fenêtres du rez-de-jardin dont les dormants avaient boursouflé si bien que la chambre d’amis et le bureau ne pouvaient plus s’ouvrir :
« Au rez-de-jardin, le mur qui fermait l’extension en donnant sur l’extérieur avait été également construit en BA13 classique comme une cloison intérieure ! Les portes-fenêtres étaient prises dans ce mur. Au fil des intempéries, le plâtre s’est gorgé d’eau, les fenêtres se sont descellées et il n’était plus possible de les ouvrir », explique la pro.
Autre problème pour les deux portes-fenêtres du rez-de-jardin dont les dormants avaient boursouflé si bien que la chambre d’amis et le bureau ne pouvaient plus s’ouvrir :
« Au rez-de-jardin, le mur qui fermait l’extension en donnant sur l’extérieur avait été également construit en BA13 classique comme une cloison intérieure ! Les portes-fenêtres étaient prises dans ce mur. Au fil des intempéries, le plâtre s’est gorgé d’eau, les fenêtres se sont descellées et il n’était plus possible de les ouvrir », explique la pro.
À l’intérieur, outre que les portes avaient été très mal posées, les murs étaient couverts de salpêtre. Pour s’aventurer sereinement sur ce terrain, Émilie a fait expertiser le bâtiment par deux sociétés spécialisées dans le traitement de l’humidité : ATB et Murprotec.
« ATB, société qui intervient fréquemment sur les monuments historiques nous a bien conseillés et a donné à mon entreprise un cahier de préconisations pour mettre en œuvre le traitement contre les remontées capillaires provenant des murs semi-enterrés. Comme la maison était mitoyenne, il n’était pas possible de poser un drain sur son pourtour. Nous avons employé la solution des injections de résine à la base des murs, tous les 30 cm. Elle fait office de barrière étanche et permet de bloquer de façon pérenne les remontées d’eau des sols. »
« ATB, société qui intervient fréquemment sur les monuments historiques nous a bien conseillés et a donné à mon entreprise un cahier de préconisations pour mettre en œuvre le traitement contre les remontées capillaires provenant des murs semi-enterrés. Comme la maison était mitoyenne, il n’était pas possible de poser un drain sur son pourtour. Nous avons employé la solution des injections de résine à la base des murs, tous les 30 cm. Elle fait office de barrière étanche et permet de bloquer de façon pérenne les remontées d’eau des sols. »
Par ailleurs, l’isolation avait été installée à même la paroi sans lame d’air. Après le dégât des eaux, elle s’était gorgée d’eau, imbibant les plâtres et les faisant moisir comme on le voit ici dans le bureau. Résultat, les murs pourrissaient et il a donc fallu déposer tout le doublage.
Humidité : Quels recours pour les locataires et les propriétaires ?
Humidité : Quels recours pour les locataires et les propriétaires ?
« Tous les murs ont été grattés et purgé, puis badigeonnés avec un produit “adjuvant hydrofuge” contre le sel et le salpêtre. On peut voir sur ce cliché de la buanderie les trous des injections. À partir de là, il a fallu attendre six mois que les murs traités soient bien secs avant de réisoler avec de la laine de roche, imputrescible, et de refermer les cloisons », explique Émilie.
Après. Pour réaménager le rez-de-jardin ainsi que les étages, Émilie a repris le plan d’origine validé par les propriétaires, celui de l’architecte de départ : « Le pire c’est que ses intentions étaient bonnes et le projet bien dessiné… Comme cette architecte exerçait toujours, je l’ai contactée pour qu’elle me fasse savoir si rien ne s’opposait à ma reprise sur ce dossier eu égard à la propriété intellectuelle des plans mais je n’ai eu aucun retour de sa part… », raconte Émilie.
Quitte à tout refaire, Émilie Melin en a profité pour apporter quelques améliorations aux agencements de départ afin de coller au plus près aux besoins actuels des propriétaires. Elle a donc légèrement déplacé la cloison entre la chambre et le bureau de sorte à créer un très grand placard de rangement côté bureau. Elle a également proposé de scinder le bureau en deux avec un claustra afin de créer un espace pour les appareils de sport.
Quitte à tout refaire, Émilie Melin en a profité pour apporter quelques améliorations aux agencements de départ afin de coller au plus près aux besoins actuels des propriétaires. Elle a donc légèrement déplacé la cloison entre la chambre et le bureau de sorte à créer un très grand placard de rangement côté bureau. Elle a également proposé de scinder le bureau en deux avec un claustra afin de créer un espace pour les appareils de sport.
Après. Les propriétaires appréciaient les briques, qui font partie du paysage dans leur commune. La tête de lit a donc été parée de plaquettes de parement, d’une couleur plus classique que celle de la façade.
Après avoir traité l’humidité et laissé séché, il fallait absolument ventiler le logement. Or, rien n’avait été fait précédemment dans ce sens. « Une clim réversible avait été posée pour chauffer et rafraîchir la maison mais les bouches de ventilation requises au-dessus des fenêtres avaient été oubliées… Nous avons posé sur toutes les cloisons et tous les murs périphériques de petites grilles de ventilation de 35 mm environ
conçues pour ventiler naturellement le bâti et assainir l’air », explique Émilie.
Dans la salle de bains qui a été refaite intégralement, la VMC existante a bien entendu été conservée pour extraire l’air humide.
conçues pour ventiler naturellement le bâti et assainir l’air », explique Émilie.
Dans la salle de bains qui a été refaite intégralement, la VMC existante a bien entendu été conservée pour extraire l’air humide.
Avant. Les malfaçons se poursuivaient néanmoins… La principale concernait la baie pliable qui fermait l’extension sur le jardin. Comme elle avait été mal posée, des infiltrations d’eau en périphérie avaient fait boursoufler le parquet. « Très rapidement les propriétaires n’ont plus pu s’en servir et ils ne l’ouvraient plus car le châssis bougeait et menaçait de tomber. Malgré cela, il faisait froid dans la pièce car elle jointait mal, ce qui provoquait des dépenses de chauffage supplémentaires », poursuit l’architecte.
Après. Émilie a fait poser une nouvelle baie pliable réalisée sur mesure. « C’est un modèle performant thermiquement, en alu avec double vitrage et contrôle solaire, car la baie est située plein sud. Nous avons ajouté des stores, qui ont été placés discrètement dans les faux plafonds », explique-t-elle.
Baie pliable : Technal France
Baie pliable : Technal France
Après. Une fois rénové, le salon est devenu une pièce à vivre très agréable avec son mur de verre donnant sur le jardin. Si les propriétaires avaient choisi il y a dix ans une ambiance en vert anis, blanc et bois de wengé au sol, ils ont repensé les teintes sur une base plus minérale à l’aide de leur architecte. Un chêne très clair a été posé au sol, des volumes noirs ont apporté ici et là du graphisme et un parement de pierre de schiste a souligné le coin télé. Au plafond, deux gorges noires ont accueilli des spots.
Le poêle à bois et son entourage de Corten appartenaient à la précédente rénovation. Posé par une entreprise spécialisée, celui-ci était parfaitement en état et avait permis au couple de compenser leur problème de chauffage dans la pièce.
À droite de l’écran, se situe la cuisine dans le volume fermé par trois portes coulissantes en wengé. L’une des seules pièces qui n’avait pas bougé depuis la rénovation…
Depuis l’entrée de la maison, enduits, peinture et réseaux électriques ont été refaits.
Foncé à l’origine, l’escalier en chêne qui distribue tous les étages de la maison a été poncé pour retrouver sa couleur naturelle. Les contremarches ont été peintes en noir pour prolonger les contrastes initiés au salon. Au pied des murs, un chemin lumineux a été pensé par l’architecte dans un souci à la fois design et sécuritaire.
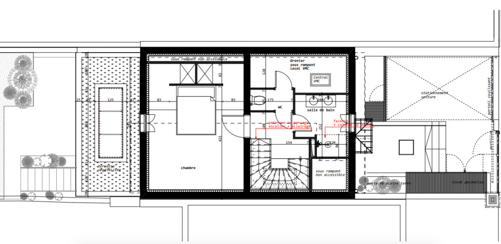
La chambre parentale sous rampants était relativement en bon état. Elle a été uniquement repeinte.
La salle de bains, en revanche, a donné lieu à des travaux plus importants : « Il fallait prendre la douche en baissant la tête car il n’y avait pas suffisamment de hauteur sous plafond là où elle avait été placée. Nous avons dû envisager une mini-extension de toit pour retrouver une hauteur normale et donc du confort », explique Émilie Melin.
La petite surélévation a permis d’ajouter deux bandes de carreaux de verre en partie haute de la douche et donc de gagner en hauteur et en clarté.
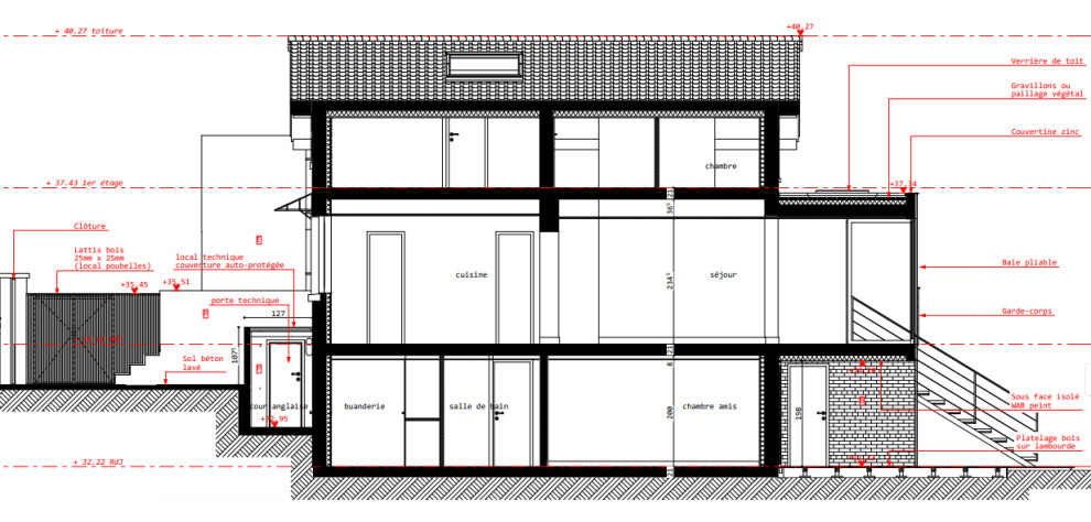
Plan de la maison en coupe
« Ce fut un chantier de longue haleine très lourd à gérer mais cela restera pour moi une expérience inoubliable. D’abord humaine car ma relation avec les propriétaires a été formidable tout du long. Ils ont été très heureux du résultat et c’est vraiment ce qui est essentiel pour moi. J’ai aussi beaucoup appris sur ce chantier. J’ai fait de nombreuses recherches de solutions techniques car je me sentais investie de grosses responsabilités et aujourd’hui cela m’aide à mieux appréhender d’autres chantiers », conclut Émilie Melin.
« Ce fut un chantier de longue haleine très lourd à gérer mais cela restera pour moi une expérience inoubliable. D’abord humaine car ma relation avec les propriétaires a été formidable tout du long. Ils ont été très heureux du résultat et c’est vraiment ce qui est essentiel pour moi. J’ai aussi beaucoup appris sur ce chantier. J’ai fait de nombreuses recherches de solutions techniques car je me sentais investie de grosses responsabilités et aujourd’hui cela m’aide à mieux appréhender d’autres chantiers », conclut Émilie Melin.
En avril dernier, alors que les travaux touchaient à leur fin, les propriétaires ont décidé de se faire plaisir en accomplissant leur rêve : faire creuser une piscine dans leur jardin et aménager les espaces extérieurs. Découvrez la dernière phase de ce chantier titanesque.
ET VOUS ?
Que pensez-vous de cette rénovation ?
Trouvez des professionnels près de chez vous sur Houzz
Plus de photos déco
Découvrez d’autres Avant/Après
ET VOUS ?
Que pensez-vous de cette rénovation ?
Trouvez des professionnels près de chez vous sur Houzz
Plus de photos déco
Découvrez d’autres Avant/Après









































Coup d’œil
Qui vit ici : Un couple de quadragénaires
Emplacement : en banlieue parisienne
Livraison du projet : septembre 2019
Durée des travaux : deux ans
Superficie : 100 m²
Architecte : Émilie Melin
Société de rénovation tout corps d’état : Rénovation sur Mesure (RSM)
Budget : 150 000 euros
Crédit photos : Stéphane Vasco