Visites Privées
Dossiers populaires
Avant/Après : Le 40 m² enchanté d'une archi d'intérieur inspirée
Découvrez le boudoir parisien chic et frais que l'architecte et décoratrice d'intérieur Ingrid Cuny s'est concocté !
Ingrid, jeune architecte et décoratrice d’intérieur, a déjà plusieurs carrières à son actif, plusieurs vies même pourrait-on dire. Tour à tour publicitaire dans la presse internationale, responsable d’une boutique de décoration haut de gamme, comédienne, peintre, sculpteur, cette diplômée d’une école de commerce puis de La Fabrique en décoration d’intérieur, en passant par des études au cours Florent et à l’école Boulle, a travaillé entre Paris et Londres, Montréal et Göteborg. Ce parcours hors du commun lui a permis de développer un coup d’œil remarquable, une personnalité unique et une quiétude que l’on retrouve habituellement chez des personnes beaucoup plus âgées. Son propre appartement est sans nul doute le meilleur manifeste de ses goûts en matière de rénovation et de décoration.
Coup d’œil
Qui vit ici : Ingrid Cuny, 41 ans, architecte d’intérieur et décoratrice
Emplacement : quartier de la Goutte d’Or, Paris XVIIIe
Livraison du projet : avril 2018
Durée des travaux : 4 mois
Superficie : 40 m²
Architecte d’intérieur : Ingrid Cuny
Budget : 30 000 euros
Crédit photos : Ina Malec-Dorfin
Coup d’œil
Qui vit ici : Ingrid Cuny, 41 ans, architecte d’intérieur et décoratrice
Emplacement : quartier de la Goutte d’Or, Paris XVIIIe
Livraison du projet : avril 2018
Durée des travaux : 4 mois
Superficie : 40 m²
Architecte d’intérieur : Ingrid Cuny
Budget : 30 000 euros
Crédit photos : Ina Malec-Dorfin
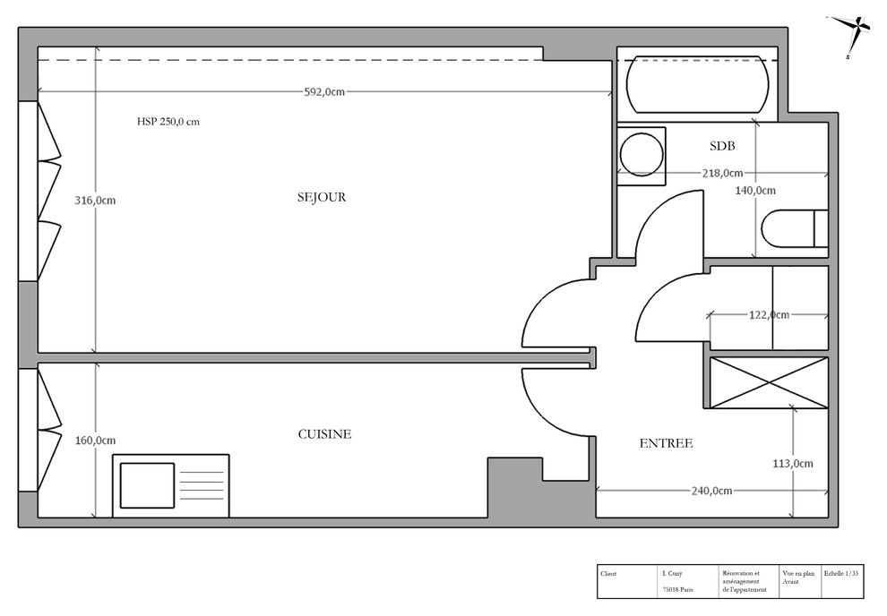
Plan avant
Fraîchement diplômée en décoration d’intérieur, Ingrid Cuny décide d’investir dans une surface plus grande avant de se lancer dans sa nouvelle aventure professionnelle. Celle-ci habite déjà le XVIIIe arrondissement de Paris, dans un 30 m² acheté quatre ans auparavant, qui lui a permis de mettre les mains dans le plâtre puisqu’elle l’a rénové intégralement en deux mois, pièces d’eau comprises ! Ayant cerné ses envies — 40 m² dans un tout petit périmètre du XVIIIe, le quartier Doudeauville dans la Goutte d’Or — elle trouve rapidement son bonheur : un deux-pièces lumineux, au troisième étage d’un immeuble des années 70. L’appartement est en assez bon état, avec une cuisine et un séjour tout en longueur, une entrée avec un grand placard vide et une salle de bains.
Fraîchement diplômée en décoration d’intérieur, Ingrid Cuny décide d’investir dans une surface plus grande avant de se lancer dans sa nouvelle aventure professionnelle. Celle-ci habite déjà le XVIIIe arrondissement de Paris, dans un 30 m² acheté quatre ans auparavant, qui lui a permis de mettre les mains dans le plâtre puisqu’elle l’a rénové intégralement en deux mois, pièces d’eau comprises ! Ayant cerné ses envies — 40 m² dans un tout petit périmètre du XVIIIe, le quartier Doudeauville dans la Goutte d’Or — elle trouve rapidement son bonheur : un deux-pièces lumineux, au troisième étage d’un immeuble des années 70. L’appartement est en assez bon état, avec une cuisine et un séjour tout en longueur, une entrée avec un grand placard vide et une salle de bains.
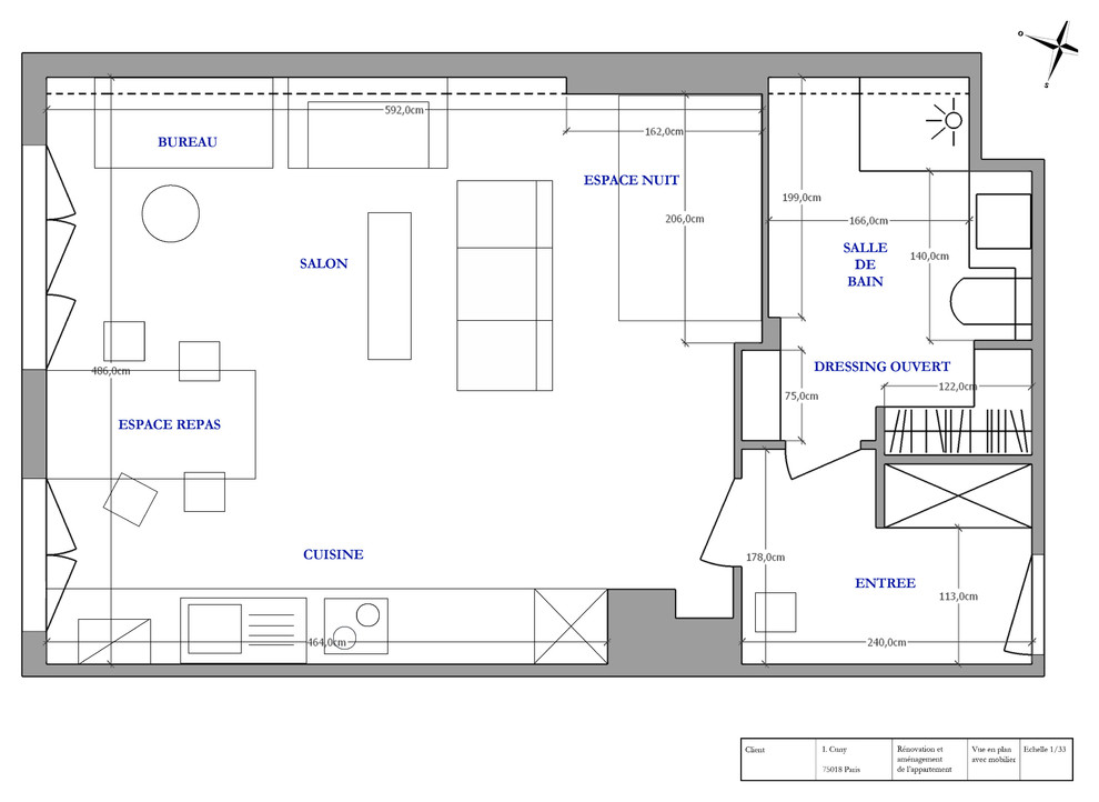
Plan après
En ce qui concerne les volumes, la jeune femme a tôt fait de cerner ce qu’elle désire. Sa priorité pour aménager les espaces consiste à les penser avec un maximum de perspective, « à faire en sorte que les lieux respirent, en particulier en dégageant les sols », insiste-t-elle. Dans son esprit, la cloison entre cuisine et séjour tombe à la première visite. Par la suite, elle abat également une autre cloison dans l’entrée pour rattacher le placard/dressing à la salle de bains.
Pragmatique, elle réfléchit son aménagement sans perdre de vue son budget de 30 000 euros et pour ne pas faire exploser la facture, elle se base au maximum sur l’existant, laissant les pièces d’eau et les radiateurs du chauffage central de l’immeuble à leur place.
En ce qui concerne les volumes, la jeune femme a tôt fait de cerner ce qu’elle désire. Sa priorité pour aménager les espaces consiste à les penser avec un maximum de perspective, « à faire en sorte que les lieux respirent, en particulier en dégageant les sols », insiste-t-elle. Dans son esprit, la cloison entre cuisine et séjour tombe à la première visite. Par la suite, elle abat également une autre cloison dans l’entrée pour rattacher le placard/dressing à la salle de bains.
Pragmatique, elle réfléchit son aménagement sans perdre de vue son budget de 30 000 euros et pour ne pas faire exploser la facture, elle se base au maximum sur l’existant, laissant les pièces d’eau et les radiateurs du chauffage central de l’immeuble à leur place.
Projection 3D
Voici la 3D qu’Ingrid Cuny a réalisée pour guider la rénovation. Cette fois, elle a fait appel à des professionnels pour la seconder, et également pour tester des entreprises dans le cadre de son installation comme architecte d’intérieur. Par goût, investissement personnel et également pour minimiser les coûts elle a néanmoins gardé quelques postes : « J’ai notamment posé le parquet dans la pièce de vie avec mon petit frère puis je l’ai peint moi-même. En économisant sur la pose, j’ai pu m’offrir du chêne massif, en profitant d’un déstockage pour 1200 euros, ce qui était mon rêve car je suis amoureuse des belles matières simples et naturelles », raconte-t-elle.
Parquet massif : Decoplus
Voici la 3D qu’Ingrid Cuny a réalisée pour guider la rénovation. Cette fois, elle a fait appel à des professionnels pour la seconder, et également pour tester des entreprises dans le cadre de son installation comme architecte d’intérieur. Par goût, investissement personnel et également pour minimiser les coûts elle a néanmoins gardé quelques postes : « J’ai notamment posé le parquet dans la pièce de vie avec mon petit frère puis je l’ai peint moi-même. En économisant sur la pose, j’ai pu m’offrir du chêne massif, en profitant d’un déstockage pour 1200 euros, ce qui était mon rêve car je suis amoureuse des belles matières simples et naturelles », raconte-t-elle.
Parquet massif : Decoplus
Avant. Du parquet recouvrait déjà l’entrée et la pièce de vie mais son dessin lamellé, tout droit rescapé des années 60, ne faisait pas battre son cœur, ni même cette couleur caramel. Elle a préféré le relooker en bleu gris.
« Quand j’ai commencé mes travaux, j’étais encore responsable d’une boutique déco haut de gamme où je sélectionnais notamment les papiers peints, les peintures et textiles d’ameublement. La nouvelle gamme de teintes de Farrow & Ball venait de paraître avec cette couleur Inchyra Blue. J’ai su instantanément que je la poserai sur mon sol », se remémore la jeune femme.
Dans l’entrée, le sol a été peint sur le parquet existant tandis que du massif, peint après la pose, a habillé la pièce de vie de ses lames larges. Celles-ci ont été posées volontairement à la perpendiculaire des fenêtres pour élargir visuellement l’espace.
Peinture sol : Inchyra Blue chez Farrow & Ball
« Quand j’ai commencé mes travaux, j’étais encore responsable d’une boutique déco haut de gamme où je sélectionnais notamment les papiers peints, les peintures et textiles d’ameublement. La nouvelle gamme de teintes de Farrow & Ball venait de paraître avec cette couleur Inchyra Blue. J’ai su instantanément que je la poserai sur mon sol », se remémore la jeune femme.
Dans l’entrée, le sol a été peint sur le parquet existant tandis que du massif, peint après la pose, a habillé la pièce de vie de ses lames larges. Celles-ci ont été posées volontairement à la perpendiculaire des fenêtres pour élargir visuellement l’espace.
Peinture sol : Inchyra Blue chez Farrow & Ball
Après. Particulièrement attentive aux perspectives, Ingrid aurait pu décider de décloisonner son entrée mais, au contraire, elle l’a soigneusement conservée : « J’ai testé le décloisonnement dans mon précédent appartement avant de me rendre compte que l’entrée est un sas très efficace pour limiter les bruits venant du couloir ! », se rappelle-t-elle.
Ingrid a néanmoins retravaillé les circulations en rattachant le placard à la salle de bains car à l’origine l’entrée comprenait cinq portes : beaucoup trop dans trois mètres carrés !
Toujours dans l’entrée, Ingrid n’a pas manqué de laisser son empreinte déco que d’aucuns qualifieraient d’éclectique bien que la jeune femme récuse ce terme. Nous préférerons donc évoquer le métissage de ses influences, à mi-chemin entre le style « français de souche » qu’elle a appris à aimer à l’école Boulle, l’avant-gardisme anglais qui s’exprime dans le sol de couleur et le souffle brûlant de l’Afrique qui traverse son quartier et se retrouve propulsé au mur avec ce papier peint Leopard Walk. « C’est vrai, je suis également tombée amoureuse de toute la collection Ardmore des papiers peints de Cole & Son, faite en partenariat avec des céramistes d’Afrique du Sud », nous glisse-t-elle.
Emblématique de son attention aux détails, elle a également repeint l’intérieur de son placard d’entrée dans le même gris que le mur : « C’est exactement la même chose qu’une veste avec une belle doublure. Cela ne se voit pas mais on le sait quand on la porte. C’est l’idée même du luxe, tout en discrétion ! »
Lustre à pampilles chiné aux Puces de Saint-Ouen ; Tirants de portes de placard : La Quincaillerie ; Papier peint Leopard Walk chez Cole & Son ; Peintures Farrow & Ball (plafond et portes placard : All White ; Peinture murs et intérieur placard : Hardwick White)
Ingrid a néanmoins retravaillé les circulations en rattachant le placard à la salle de bains car à l’origine l’entrée comprenait cinq portes : beaucoup trop dans trois mètres carrés !
Toujours dans l’entrée, Ingrid n’a pas manqué de laisser son empreinte déco que d’aucuns qualifieraient d’éclectique bien que la jeune femme récuse ce terme. Nous préférerons donc évoquer le métissage de ses influences, à mi-chemin entre le style « français de souche » qu’elle a appris à aimer à l’école Boulle, l’avant-gardisme anglais qui s’exprime dans le sol de couleur et le souffle brûlant de l’Afrique qui traverse son quartier et se retrouve propulsé au mur avec ce papier peint Leopard Walk. « C’est vrai, je suis également tombée amoureuse de toute la collection Ardmore des papiers peints de Cole & Son, faite en partenariat avec des céramistes d’Afrique du Sud », nous glisse-t-elle.
Emblématique de son attention aux détails, elle a également repeint l’intérieur de son placard d’entrée dans le même gris que le mur : « C’est exactement la même chose qu’une veste avec une belle doublure. Cela ne se voit pas mais on le sait quand on la porte. C’est l’idée même du luxe, tout en discrétion ! »
Lustre à pampilles chiné aux Puces de Saint-Ouen ; Tirants de portes de placard : La Quincaillerie ; Papier peint Leopard Walk chez Cole & Son ; Peintures Farrow & Ball (plafond et portes placard : All White ; Peinture murs et intérieur placard : Hardwick White)
Avant. La salle de bains avant travaux était assez grande pour un petit appartement et disposait même d’une baignoire de taille confortable. Si le voisin du dessous d’Ingrid a pris le parti de minimiser sa pièce d’eau pour redonner des mètres carrés à la pièce de vie, celle-ci a fait tout l’inverse.
Plus de photos de salles de bains sur Houzz
Plus de photos de salles de bains sur Houzz
Après. « J’ai cherché à agrandir ma salle de bains au maximum car pour moi c’est une pièce de détente et de bien-être. Après avoir testé l’hydrométrie de la pièce et constaté qu’elle était très saine et sèche, j’ai fait rattacher le grand placard adjacent afin de créer un dressing. Je l’ai voulu expressément ouvert afin d’embrasser d’un coup d’œil tout ce que j’ai et de porter tous les habits sans en oublier au fond de l’armoire », explique-t-elle.
Et pour les chaussures, même programme ! Les nombreux escarpins sur lesquels elle a craqué lorsqu’elle vivait à Londres assurent la déco des murs et sont régulièrement portés puisque immédiatement disponibles à la vue de la jeune femme.
Plus de photos de dressing sur Houzz
Plus de photos de dressing sur Houzz
Pour donner à sa salle de bains un air de boudoir chic et frais, Ingrid a misé sur un pan de papier peint pastel, différentes teintes de peintures blanches, un sol en marbre véritable dont les chevrons reprennent les couleurs bleutés, un miroir psyché et une commode en chêne qu’elle a chinée sur Le Bon Coin : « Cette dernière ajoute un air de pièce à vivre et elle est très pratique pour tous les vêtements qui se rangent difficilement sur des étagères ouvertes. »
Papier peint : Savuti chez Cole & Son ; Peintures Farrow & Ball (Plan : Brinjal ; murs : All White ; Étagères et fond dressing : Blackened ; Cadre miroir : Yellow Cake) ; Carrelage sol : marbre chevron chez Carrelage du Marais
Papier peint : Savuti chez Cole & Son ; Peintures Farrow & Ball (Plan : Brinjal ; murs : All White ; Étagères et fond dressing : Blackened ; Cadre miroir : Yellow Cake) ; Carrelage sol : marbre chevron chez Carrelage du Marais
Le miroir du plan de travail a été repeint en jaune par ses soins pour donner du dynamisme à l’ensemble sur la base d’une autre des couleurs présentes dans le papier peint.
Applique dessus plan : Zangra, BHV ; Plafonnier : Habitat, abat-jour Leia ; Commode vintage chinée en ligne ; Miroir en pied sur mesure : Miroiterie Concept
Applique dessus plan : Zangra, BHV ; Plafonnier : Habitat, abat-jour Leia ; Commode vintage chinée en ligne ; Miroir en pied sur mesure : Miroiterie Concept
Plan de la salle de bains
Étant donné la configuration de sa salle de bains (voir visuel ci-dessus), Ingrid aurait pu installer une douche toute largeur sur le mur du fond mais elle a préféré la limiter à 75 x 90 cm : « C’était suffisant pour se laver ! Je préférais dégager le sol pour avoir une vue sur la patère argentée et le tabouret en bois que j’ai fabriqué avec une vieille poutre trouvée dans la scierie de mes parents. En optant pour une douche plus petite, j’ai également limité son coût, ce qui m’a permis de faire fabriquer un beau rideau en lin enduit sur mesure », justifie-t-elle.
Patère argent : La Quincaillerie ; Rideau de douche en lin sur mesure, GalboBain ; Receveur de douche : Villeroy & Boch ; Carrelage mural métro mat : S’Tiles (Paris 13)
Patère argent : La Quincaillerie ; Rideau de douche en lin sur mesure, GalboBain ; Receveur de douche : Villeroy & Boch ; Carrelage mural métro mat : S’Tiles (Paris 13)
Après. Dans cette pièce principale, on note d’emblée l’assemblage osé de couleurs : des verts, des bleus, du bois clair, du noir, de l’écru, du saumon… ! « Tout est parti du décor de Singita, un autre des papiers peints de la collection Ardmore de Cole & Son qui rend hommage à l’Afrique et que j’ai placé derrière mon lit », décrypte l’architecte d’intérieur.
C’est néanmoins une chose d’avoir moult couleurs en tête et une autre de les assembler dans une pièce sans cacophonie… Reconnaissons à Ingrid ce talent inné : « Pour la cuisine par exemple, je voyais un lever de soleil que j’ai traduit par un effet de dégradé de bleu, vert, écru, rose pâle, du sol au plafond, tandis que j’avais la vision d’une savane humide de l’autre côté de la pièce », explique-t-elle.
Mobilier : Ikea ; Plan en bambou huilé : Leroy Merlin ; Zelliges en crédence : S’Tiles ; Mur rose pâle au-dessus du linéaire de cuisine : Little Green
C’est néanmoins une chose d’avoir moult couleurs en tête et une autre de les assembler dans une pièce sans cacophonie… Reconnaissons à Ingrid ce talent inné : « Pour la cuisine par exemple, je voyais un lever de soleil que j’ai traduit par un effet de dégradé de bleu, vert, écru, rose pâle, du sol au plafond, tandis que j’avais la vision d’une savane humide de l’autre côté de la pièce », explique-t-elle.
Mobilier : Ikea ; Plan en bambou huilé : Leroy Merlin ; Zelliges en crédence : S’Tiles ; Mur rose pâle au-dessus du linéaire de cuisine : Little Green
La nouvelle cuisine a été laissée à la même place, composée selon deux idées principales : « La rendre discrète et ne pas toucher aux canalisations pour limiter les coûts. » Aux yeux de la professionnelle, la cuisine prenait beaucoup de place dans la pièce de vie. Pour rééquilibrer les choses elle y a ingénieusement introduit des éléments de bibliothèque : des étagères supportant des livres et encadrements, une belle lampe de bureau et un tapis berbère cosy.
Posée sur son plan de travail en bambou, la lampe suédoise vintage en laiton, a été chinée par Ingrid aux puces de Saint-Ouen. Elle confesse d’ailleurs que les luminaires sont l’une de ses passions, « la touche bijou d’un appartement ».
Tapis de style berbère : La Redoute Intérieurs ; Étagères en chêne massif lamellé-collé
Posée sur son plan de travail en bambou, la lampe suédoise vintage en laiton, a été chinée par Ingrid aux puces de Saint-Ouen. Elle confesse d’ailleurs que les luminaires sont l’une de ses passions, « la touche bijou d’un appartement ».
Tapis de style berbère : La Redoute Intérieurs ; Étagères en chêne massif lamellé-collé
La crédence en zelliges marocains fait mains, d’une teinte crème tirant sur le vert amande, apporte un côté artisanal, chaleureux et authentique.
Suspensions en verre : BHV ; peinture mur côté fenêtres : F&B, Borrowed Light ; Voilage en lin de style bohème : AM.PM
Suspensions en verre : BHV ; peinture mur côté fenêtres : F&B, Borrowed Light ; Voilage en lin de style bohème : AM.PM
Toujours dans l’idée de fusionner cuisine et bibliothèque, Ingrid s’est servi de ce renfoncement offert par la gaine du vide-ordures pour placer d’autres étagères en chêne : « Pas au même niveau pour le dynamisme et surtout en libérant le sol ! », note-t-elle. Les deux rhinocéros sont des sculptures d’Ingrid.
Plus de photos de cuisines sur Houzz
Plus de photos de cuisines sur Houzz
Au centre de la pièce de vie, la décoratrice d’intérieur a placé le plan bar qu’elle a réalisé à partir d’une planche de bambou peint, afin d’architecturer les différentes zones.
Le souffle exotique rejaillit dans les encadrements muraux tandis que sur le plan, d’autres objets rappellent à la jeune femme des moments chers.
Plateau de table peint en Pitch Black de Farrow & Ball ; Tabourets de style industriel : Sklum
Le souffle exotique rejaillit dans les encadrements muraux tandis que sur le plan, d’autres objets rappellent à la jeune femme des moments chers.
Plateau de table peint en Pitch Black de Farrow & Ball ; Tabourets de style industriel : Sklum
Chinée à Londres, une travailleuse ancienne sert à cacher les pinceaux et le matériel de dessin. Quant au vase en verre rose Malabar, il émane de la designer suédoise Hanna Hansdotter, une artiste qu’elle a découverte dans une galerie et qui souffle le verre à travers un treillis de métal pour parvenir à ces formes organiques.
Posée au pied du plan bar, à l’orée du séjour, voici celle qu’Ingrid nomme sa « déesse du lac de la guerre et de la paix », une sculpture qu’elle a réalisée en terre puis peinte en blanc. « C’est une guerrière mais douce, qui protège. J’ai cherché à exprimer la force dans ses traits tout comme j’ai laissé s’exprimer la personnalité dans mes choix déco », commente-t-elle.
Après. De l’autre côté de la pièce de vie, pour celle qui se revendique une fervente admiratrice du travail de Dimore Studio ou de Laura Gonzales, le traitement énergique voire énergétique des couleurs ne pouvait faire défaut !
Ingrid a su dès la première visite qu’elle placerait là, près de cette grande fenêtre, son bureau d’architecte dont elle a peint le plateau en noir pour coller avec la belle chaise Thonet qu’elle a chiné aux Puces. Quant au vert du mur, elle a choisi la nuance Calke Green de Farrow & Ball, « une couleur qui apaise l’esprit et libère la création », affirme-t-elle.
Plateau du bureau peint en Pitch Black de Farrow & Ball ; Fauteuil Thonet : Puces de Saint-Ouen ; Pied de lampe : Habitat ; Abat-jour rétro : chiné à Nantes ; Tapis natte africaine rouge : commerce de quartier ; Paire de rideaux en lin sur mesure, Maison Olivier Thévenon
Ingrid a su dès la première visite qu’elle placerait là, près de cette grande fenêtre, son bureau d’architecte dont elle a peint le plateau en noir pour coller avec la belle chaise Thonet qu’elle a chiné aux Puces. Quant au vert du mur, elle a choisi la nuance Calke Green de Farrow & Ball, « une couleur qui apaise l’esprit et libère la création », affirme-t-elle.
Plateau du bureau peint en Pitch Black de Farrow & Ball ; Fauteuil Thonet : Puces de Saint-Ouen ; Pied de lampe : Habitat ; Abat-jour rétro : chiné à Nantes ; Tapis natte africaine rouge : commerce de quartier ; Paire de rideaux en lin sur mesure, Maison Olivier Thévenon
Ayant installé deux canapés en angle pour recevoir ses amis chaleureusement, Ingrid a choisi un tapis saumon pour remplacer sa natte africaine tressée blanche et rouge. « L’un sans l’autre ça ne fonctionnait pas, je les ai gardés tous les deux ! », nous glisse-t-elle.
En ce qui concerne le mobilier, Ingrid s’est concentrée sur quelques belles pièces : une lampe au pied en verre de Murano, une table basse danoise mid-century, une console à roulettes des années 60. « Ce que je préfère, ce sont mes coussins Watom de la maison Pierre Frey. Leur imprimé ethnique et graphique m’a séduite au premier coup d’œil. »
Canapé de style scandinave: Ikea ; Canapé rétro bordeaux, en ligne, Menzzo ; Tapis saumon : La Redoute Intérieurs ; Table basse vintage chinée en ligne, « Réveillé par Monsieur » ; Lampe Donghia en verre de Murano chez Rubelli
En ce qui concerne le mobilier, Ingrid s’est concentrée sur quelques belles pièces : une lampe au pied en verre de Murano, une table basse danoise mid-century, une console à roulettes des années 60. « Ce que je préfère, ce sont mes coussins Watom de la maison Pierre Frey. Leur imprimé ethnique et graphique m’a séduite au premier coup d’œil. »
Canapé de style scandinave: Ikea ; Canapé rétro bordeaux, en ligne, Menzzo ; Tapis saumon : La Redoute Intérieurs ; Table basse vintage chinée en ligne, « Réveillé par Monsieur » ; Lampe Donghia en verre de Murano chez Rubelli
Après. C’est dans cette partie de la pièce que la jeune femme a installé son coin nuit. Si elle a d’abord réfléchi à le séparer de la pièce de vie au moyen d’une verrière, elle a finalement préféré ne pas contraindre son espace par un cloisonnement en dur. « J’ai plutôt opté pour un beau rideau en lin crème que j’ai fait réaliser sur mesure afin de profiter de la modularité qu’il me permet, déplacer le canapé par exemple pour créer avec le lit une assise en U et utiliser tout l’espace comme un salon », explique la professionnelle.
La nuit, Ingrid voulait pouvoir profiter de son coin chambre comme d’une alcôve cosy. Elle en imaginait l’ambiance comme une « savane profonde et humide » et a immédiatement habillé le mur de côté avec son papier peint préféré, une forêt luxuriante aux motifs et couleurs complexes, peuplée d’animaux de la jungle. Elle a cherché longtemps le store dont elle rêvait pour fermer son alcôve et dormir comme dans un cocon tropical. Elle l’a finalement fait réaliser sur mesure en fibres végétales.
Papier peint Singita chez Cole & Son ; Rideau en lin (voilage) de chez Rouge Carmin, fait sur mesure ; Store naturel en bois tissé à cordon, fait sur mesure, Ballauff ; Tête de lit peinte Pitch Black chez Farrow & Ball ; Illustration de Lorraine Sorlet
Papier peint Singita chez Cole & Son ; Rideau en lin (voilage) de chez Rouge Carmin, fait sur mesure ; Store naturel en bois tissé à cordon, fait sur mesure, Ballauff ; Tête de lit peinte Pitch Black chez Farrow & Ball ; Illustration de Lorraine Sorlet
La tête de lit noire est arrivée en dernier : « Je n’y avais pas songé et je n’aurais pas mis de noir spontanément. Mais le fond, resté blanc, était fade et je ne voulais pas prolonger le vert qui pour moi structurait le coin bureau. Le noir s’est imposé naturellement et j’ai choisi un noir très particulier, quasiment chaud, avec 40 % de brillance », détaille-t-elle.
Quand Ingrid a posté les photos de son appartement sur Houzz, elle n’a pas su cocher la case du « style » : « Ce n’est pas classique, ni éclectique, ni ethnique… D’ailleurs je n’aime pas les étiquettes ! », lance-t-elle à raison. Vous l’aurez compris, Ingrid est une jeune femme douée d’un puissant instinct déco et pictural, doublée d’une professionnelle exigeante et déterminée qui n’a pas peur de révéler sa personnalité à travers des choix engagés. Une démarche rare et précieuse, à rebours des consensus et clichés déco communs.
Quand Ingrid a posté les photos de son appartement sur Houzz, elle n’a pas su cocher la case du « style » : « Ce n’est pas classique, ni éclectique, ni ethnique… D’ailleurs je n’aime pas les étiquettes ! », lance-t-elle à raison. Vous l’aurez compris, Ingrid est une jeune femme douée d’un puissant instinct déco et pictural, doublée d’une professionnelle exigeante et déterminée qui n’a pas peur de révéler sa personnalité à travers des choix engagés. Une démarche rare et précieuse, à rebours des consensus et clichés déco communs.
Planche de style déco d’Ingrid Cuny
ET VOUS ?
Que pensez-vous de cette rénovation ?
Trouvez des professionnels près de chez vous sur Houzz
Plus de photos déco sur Houzz
Découvrez d’autres avant/après
ET VOUS ?
Que pensez-vous de cette rénovation ?
Trouvez des professionnels près de chez vous sur Houzz
Plus de photos déco sur Houzz
Découvrez d’autres avant/après


































Trouvez un décorateur ou un architecte d’intérieur sur Houzz