Visites Privées
Projets nés sur Houzz
Avant/Après : Le contreplaqué de pin signe ce studio de 32 m2
Des accents contemporains et bohèmes pour un studio pas comme les autres rue de la Roquette à Paris
Cet homme vient de s’installer en couple mais ne se sépare pas pour autant de son ancien logement, un studio de 32 m² très bien placé rue de la Roquette, à deux pas de l’opéra Bastille. Anticipant une belle source de rentabilité, il décide de faire rénover ce bien qui n’a pas connu de travaux depuis les années 2000, avec pour idée directrice un design particularisant en « contreplaqué de pin ».
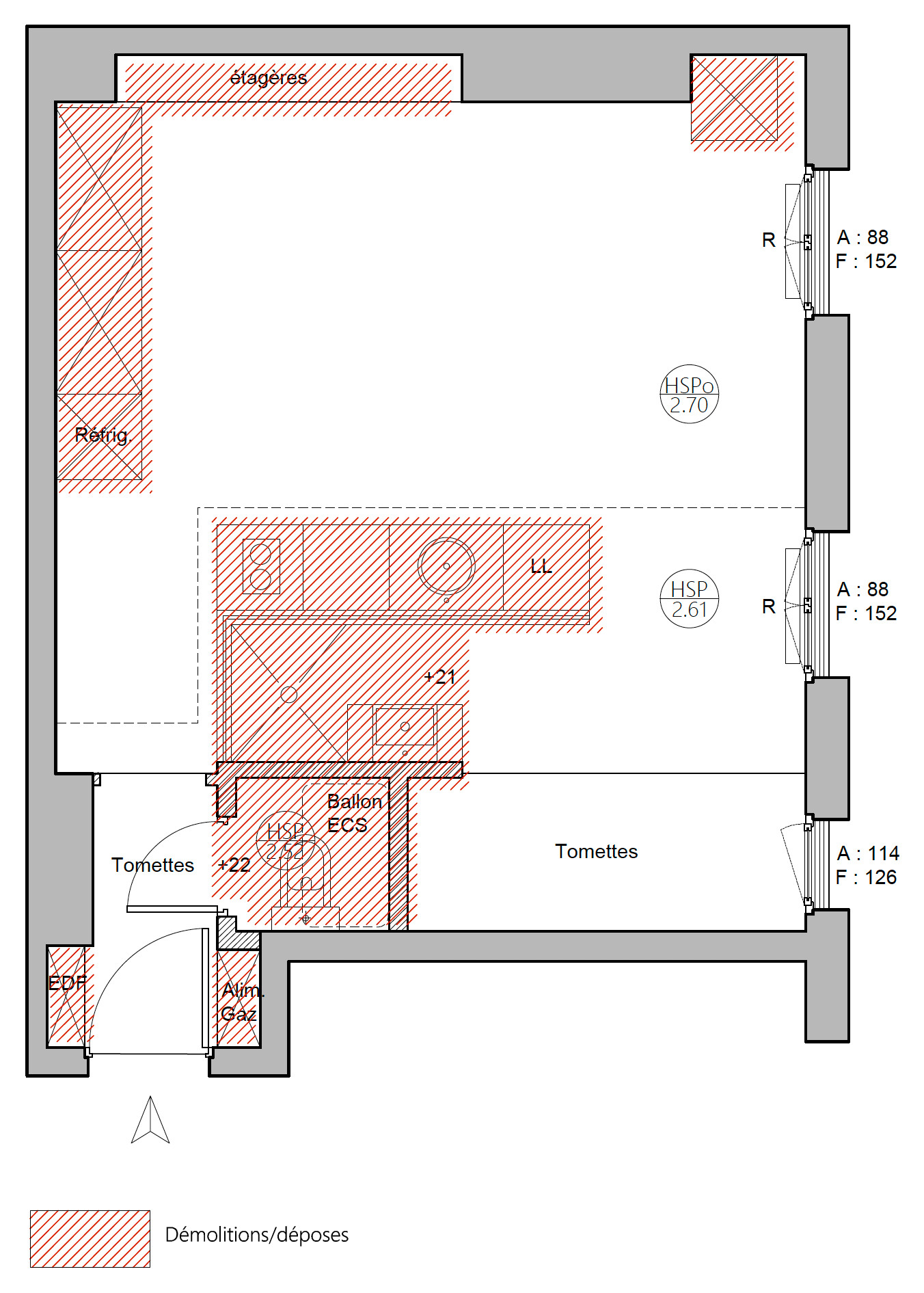
Avant. Au 4ᵉ et dernier étage sous les combles d’un vieil immeuble en pans de bois, le studio de 32 m² donnait uniquement sur cour. Au chapitre des bonnes nouvelles, il présentait une forme régulière et des plafonds hauts dont les trois quarts laissaient apparaître les belles poutres d’origine. Moins bons étaient l’état des sols, l’isolation thermique et l’implantation qui avait près d’un quart de siècle.
L’aménagement misait sur un espace tout ouvert mais, paradoxalement, l’espace paraissait engoncé. Seules les toilettes étaient cloisonnées à l’entrée. La cuisine était placée au centre et le canapé du salon lui tournait le dos. La salle était d’eau était ouverte sur l’espace nuit, séparée de la cuisine par une vitre dépolie. L’espace nuit avec sa couchette simple (correspondant à l’endroit où est inscrit « tomettes » sur le plan), offrait peu d’intimité.
L’aménagement misait sur un espace tout ouvert mais, paradoxalement, l’espace paraissait engoncé. Seules les toilettes étaient cloisonnées à l’entrée. La cuisine était placée au centre et le canapé du salon lui tournait le dos. La salle était d’eau était ouverte sur l’espace nuit, séparée de la cuisine par une vitre dépolie. L’espace nuit avec sa couchette simple (correspondant à l’endroit où est inscrit « tomettes » sur le plan), offrait peu d’intimité.
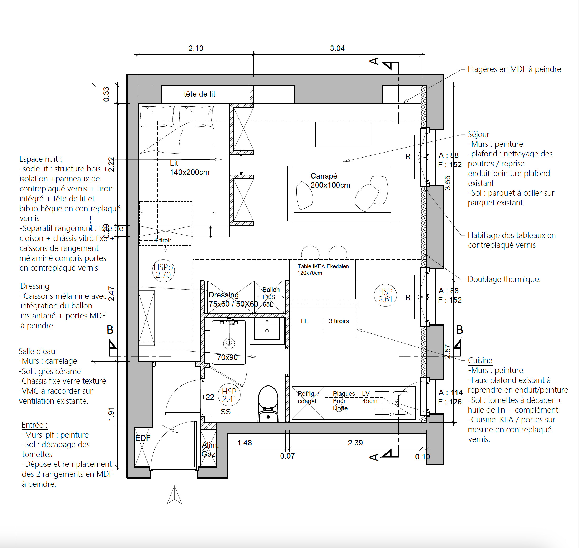
Après. Pour rénover le logement – qui en avait bien besoin –, le propriétaire a contacté sur Houzz une architecte dont il avait repéré le profil via la plateforme. « L’appartement étant destiné à la location, l’enjeu du projet a été de mieux segmenter les différentes fonctions et usages sans trop cloisonner et ce, dans un espace réduit avec une seule façade disposant de fenêtres. La demande du client était également d’intégrer un maximum de rangements », détaille l’architecte Pamela Martin.
Trouvez un architecte près de chez vous sur Houzz
Trouvez un architecte près de chez vous sur Houzz
Après. Guidée par l’emplacement de la seule évacuation qui se trouvait dans les toilettes à l’entrée, l’architecte a pensé le plan en privilégiant l’intimité. « Nous avons conçu plusieurs espaces telles des boîtes. Les toilettes, agrandies pour accueillir la salle de bains, forment la seule boîte fermée. Le reste est composé de menuiseries sur mesure, structurantes à part entière dans ce projet » explique-t-elle.
Pour des questions d’évacuation, la cuisine a été placée contre la boite de la salle de bains, rendue originale par sa teinte bleu outremer. « Elle dispose d’un meilleur emplacement qu’avant car sa fenêtre dispense beaucoup de lumière, ce qui est très agréable », partage Pamela.
La cuisine est vaste pour un 32 m², installée en parallèle sur la base de caissons standard Ikea. Elle comprend un combiné réfrigérateur, un four, un micro-ondes, un domino de cuisson, une hotte, un lave-vaisselle et même le lave-linge. Son décor très particularisant vient de la création des façades et des joues sur mesure en contreplaqué de pin de 18 millimètres d’épaisseur, un matériau réclamé par le propriétaire appréciant sa couleur chaleureuse et sa veinure vivante. « Il avait vu sur Houzz de beaux aménagements très contemporains avec ce matériau et il a fait tout de suite partie du projet », explique Pamela.
Le bleu de la boîte salle de bains (qui habille également l’entrée) a été choisi pour contraster avec le contreplaqué de pin blond. La crédence miroir est également un coup de cœur du propriétaire. Les plans de travail, quant à eux, sont basiques, en stratifié blanc de chez Ikea, afin de privilégier la lumière.
11 astuces pour installer et optimiser une cuisine dans un studio
La cuisine est vaste pour un 32 m², installée en parallèle sur la base de caissons standard Ikea. Elle comprend un combiné réfrigérateur, un four, un micro-ondes, un domino de cuisson, une hotte, un lave-vaisselle et même le lave-linge. Son décor très particularisant vient de la création des façades et des joues sur mesure en contreplaqué de pin de 18 millimètres d’épaisseur, un matériau réclamé par le propriétaire appréciant sa couleur chaleureuse et sa veinure vivante. « Il avait vu sur Houzz de beaux aménagements très contemporains avec ce matériau et il a fait tout de suite partie du projet », explique Pamela.
Le bleu de la boîte salle de bains (qui habille également l’entrée) a été choisi pour contraster avec le contreplaqué de pin blond. La crédence miroir est également un coup de cœur du propriétaire. Les plans de travail, quant à eux, sont basiques, en stratifié blanc de chez Ikea, afin de privilégier la lumière.
11 astuces pour installer et optimiser une cuisine dans un studio
Avant. Le coin nuit avant travaux. On aperçoit la salle de bain collée au lit, ce qui n’était pas une configuration très agréable.
Le coin nuit était placé sur une bande de tomettes, presque cachées entièrement par le lit. Le reste du studio était recouvert par un plancher en bois (pas du chêne) qui avait été plusieurs fois abîmé par des dégâts de eaux et faisait cuvette par endroits.
Le coin nuit était placé sur une bande de tomettes, presque cachées entièrement par le lit. Le reste du studio était recouvert par un plancher en bois (pas du chêne) qui avait été plusieurs fois abîmé par des dégâts de eaux et faisait cuvette par endroits.
Après. L’architecte a proposé de prolonger la partie de tomettes du coin nuit afin d’en habiller le sol de toute la cuisine. « Nous avons déposé les tomettes de l’entrée et celles du coin nuit et les avons mélangées avec un surplus trouvé chez BCA matériaux anciens. Nous avons beaucoup cherché pour dénicher la même taille et la même épaisseur. Après un ragréage de la surface, nous avons reposé les tomettes que l’on a associées à un chêne massif de Décoplus Parquet. Les tomettes juste huilées rendent très bien, associées au pin blond, au plancher et à la boite bleue », estime Pamela.
Désormais en second jour, la salle d’eau reste éclairée via la cuisine par ce grand vitrage en verre flute. Regroupant la douche, les toilettes et un meuble vasque en contreplaqué de pin, elle a été carrelée en un carrelage blanc 10×10 centimètres tout simple.
Plus d’idées pour aménager une salle de bains sur Houzz
Désormais en second jour, la salle d’eau reste éclairée via la cuisine par ce grand vitrage en verre flute. Regroupant la douche, les toilettes et un meuble vasque en contreplaqué de pin, elle a été carrelée en un carrelage blanc 10×10 centimètres tout simple.
Plus d’idées pour aménager une salle de bains sur Houzz
Après. L’architecte a travaillé à libérer le centre de la pièce afin de chasser cette impression d’étroitesse véhiculée par l’accumulation de mobilier (cuisine, canapé, fauteuils).
Il est toutefois prévu de pouvoir placer une table le long du bar de la cuisine afin de pouvoir dîner à deux, mais le mobilier n’était pas encore arrivé le jour du shooting.
Il est toutefois prévu de pouvoir placer une table le long du bar de la cuisine afin de pouvoir dîner à deux, mais le mobilier n’était pas encore arrivé le jour du shooting.
Toujours pour épurer l’espace, le propriétaire a opté pour une banquette compacte qu’il a fait recouvrir par un tapissier et une petite table basse en laiton brossé. « Je laisse autant que faire se peut mes clients maîtres de leur décoration, car j’apprécie qu’ils s’approprient leur espace et le signent de leur goût », partage l’architecte, reconnaissant chez son client une vraie appétence pour la décoration. « J’aime beaucoup son choix de suspension dans la cuisine et il a trouvé également de beaux rideaux en lin, assortis à la teinte de la salle de bains », apprécie-t-elle.
Sur ce cliché, on note que les encadrements de fenêtres ont été recouverts de contreplaqué de pin. Ce rappel de ce matériau sur l’enveloppe du studio est un joli détail découlant de l’isolation du mur de façade. « Nous avons également remplacé les fenêtres par des doubles vitrages et changé les radiateurs », précise Pamela.
Sur ce cliché, on note que les encadrements de fenêtres ont été recouverts de contreplaqué de pin. Ce rappel de ce matériau sur l’enveloppe du studio est un joli détail découlant de l’isolation du mur de façade. « Nous avons également remplacé les fenêtres par des doubles vitrages et changé les radiateurs », précise Pamela.
Vous êtes en quête d'un artisan pour votre projet en rénovation complète ?
Nous vous aidons à trouver les meilleurs pros
Nous vous aidons à trouver les meilleurs pros
Après. Pour laisser s’épanouir le salon près des fenêtres, en prolongement de la cuisine, le coin nuit a été repoussé en second jour derrière un cloisonnement meublant. « Nous ne voulions pas monter jusqu’au plafond pour chatouiller les poutres afin de conserver la beauté du plafond et préserver de la lumière jusqu’en fond de pièce », explique Pamela.
Pour un meilleur rendu des poutres, l’architecte les a fait traiter. « Elles ont été badigeonnées de lait de chaux. À l’origine, c’est une technique ancestrale naturelle pour les protéger des xylophages, tout en les laisser respirer, car ce badigeon n’est pas filmogène. Ici, nous avons détourné cet usage de manière décorative car le lait de chaux teinte légèrement en blanc et atténue la couleur foncée des poutres, tout en préservant le rendu chaleureux du bois ».
Pour un meilleur rendu des poutres, l’architecte les a fait traiter. « Elles ont été badigeonnées de lait de chaux. À l’origine, c’est une technique ancestrale naturelle pour les protéger des xylophages, tout en les laisser respirer, car ce badigeon n’est pas filmogène. Ici, nous avons détourné cet usage de manière décorative car le lait de chaux teinte légèrement en blanc et atténue la couleur foncée des poutres, tout en préservant le rendu chaleureux du bois ».
La cloison structurante de la « boîte de nuit » a été réalisée en maçonnerie. Quatre colonnes de rangement avec des portes en contreplaqué de pin sans poignées y ont été réintégrées, utiles pour ranger les vêtements ou encore le linge de maison. En leur centre apparaît la même astuce que dans la cuisine : un vitrage en verre flûte pour maximiser la lumière dans l’alcôve. « Nous avons également optimisé l’entrée et ajouté un grand rangement pour les manteaux et chaussures. Tous les espaces ont été exploités au maximum », partage par ailleurs l’architecte.
10 manières de cloisonner un lit dans un studio
10 manières de cloisonner un lit dans un studio
Le coin nuit a été construit sur une estrade afin de lui donner un air de cocon.
L’estrade permet également de dissimuler deux grands tiroirs coulissant de 1,50 mètre de long, visibles en bas à gauche. Ils peuvent être extraits entièrement en tirant vers l’entrée qui se trouve diamétralement opposée.
Face à l’entrée, la bibliothèque en pied de lit permet de tracer un filtre pour intimiser le coin nuit.
Le lit deux places a été installé sur l’estrade. Il repose sur une tête de lit toute largeur en contreplaqué de pin, équipée de prises. Sur le côté gauche, un conduit de cheminée existant a été plaqué. Sur la structure cloisonnante, deux appliques permettent de créer une belle ambiance de nuit.
L’expérience de cette rénovation a été très positive pour le propriétaire qui, depuis, a trouvé rapidement un locataire. « Ma plus-value pour mon client a été d’imaginer ces structures sur mesure et définir leur implantation, puis de trouver une société pour réaliser les travaux et de suivre le chantier afin que notre projet soit bien réalisé », explique Pamela. Une mission qui peut sembler simple mais comporte de vrais écueils pour un particulier. « La société a géré la démolition en août à toute vitesse puis a fortement ralenti en septembre car elle avait d’autres chantiers. Si je n’avais pas été là pour anticiper la fabrication des menuiseries et cadencer les équipes, un particulier aurait pu perdre de longs mois », rappelle l’architecte, et ce, même lorsque le budget du client est confortable comme ici.
Budget détaillé (TTC) : 61 920 euros dont :
ET VOUS ?
Que pensez-vous de la transformation de ce studio ?
Budget détaillé (TTC) : 61 920 euros dont :
- démolition, préparation chantier, nettoyage : 8 400 euros
- fournitures : 8 760 euros
- fenêtres : 5 160 euros
- menuiserie sur mesure : 15 000 euros
- maçonnerie : 1 800 euros
- plomberie : 6 600 euros
- peintures : 7 200 euros
- Electricité : 9000 euros
ET VOUS ?
Que pensez-vous de la transformation de ce studio ?























Qui vit ici ? Un locataire
Emplacement : rue de la Roquette (Paris 11ᵉ)
Superficie : 32 m²
Date des travaux : Les travaux ont été réalisés de septembre 2022 à janvier 2023.
Architecte : Pamela Martin
Budget : < 62 000 euros TTC (hors honoraires). Budget détaillé en fin d’article
Photos : Jean-Michel Rodrigues Da Fonte