Projets nés sur Houzz
Visites Privées
Avant/Après : Les secrets d'aménagement d'un 22 m2 à Paris pour 4
Ce pied-à-terre parisien d'un couple madrilène a été aménagé pour loger confortablement 4 personnes. Un vrai modèle !
Résidant à Madrid, ce couple a entrepris la recherche d’un pied-à-terre à Paris pour le mari qui travaille régulièrement dans le 17ᵉ arrondissement. Après l’acquisition d’un petit appartement situé au 5ᵉ étage sur cour de la rue Sauffroy, ils font appel à Alicia Oustry, une architecte d’intérieur qu’ils ont repérée sur Houzz pour ses talents à optimiser les espaces restreints. Défiant les contraintes spatiales, celle-ci va relever brillamment le défi d’aménager un espace de vie confortable pour quatre personnes, sans faire le moindre compromis sur les besoins quotidiens. Attention, Avant/Après culte !
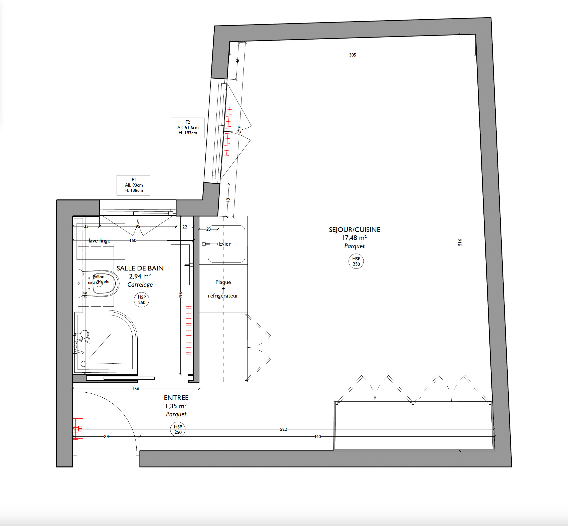
Avant. Au cinquième étage sur cour d’un immeuble de faubourg, la petite surface de 22 m² avait été aménagée précédemment dans les années 1980. Sa configuration était en L inversé et ses principales contraintes résidaient dans deux fenêtres réparties sur les petits côtés du L, ainsi que dans ses pièces d’eau (et donc ses évacuations) massées à l’entrée. « Ce n’était vraiment pas simple. Ces deux éléments figeaient l’espace et nous ne pouvions guère chambouler le plan… », partage Alicia Oustry.
Trouvez un architecte d’intérieur près de chez vous sur Houzz
Trouvez un architecte d’intérieur près de chez vous sur Houzz
Après. La situation s’est encore compliquée lorsque les propriétaires ont exprimé toutes leurs exigences : « Ils tenaient à inclure tous les équipements que l’on trouve dans un appartement beaucoup plus grand : un programme électroménager complet avec lave-linge et lave-vaisselle, un espace nuit indépendant et un canapé convertible pour que quatre personnes puissent dormir. Ce type de demande est d’ailleurs de plus en plus fréquent, les clients souhaitant toujours plus de fonctionnalités dans des espaces de plus en plus restreints », explique Alicia. Il a donc fallu faire tout simplement des miracles pour tout caser !
Après. Afin de respecter la place des évacuations, il était difficile de placer la douche ailleurs que face à l’entrée. Mais le plan s’est débloqué quand l’architecte d’intérieur a pensé la douche telle une alcôve. « La “bulle douche” a induit un motif d’arrondi qui a été décliné sur l’ensemble de la surface et vraiment contribué à fluidifier toutes les circulations », explique-t-elle.
La configuration des fenêtres en angle peinait à rendre lumineuse la petite surface, aussi Alicia a-t-elle fait un gros travail de mise en lumière. Pour éclairer l’entrée, une élégante verrière en verre flûte et montants de chêne permet de profiter de la lumière de la salle d’eau en second jour. Le motif de l’arrondi a par ailleurs été décliné sur les lampes en opaline.
La configuration des fenêtres en angle peinait à rendre lumineuse la petite surface, aussi Alicia a-t-elle fait un gros travail de mise en lumière. Pour éclairer l’entrée, une élégante verrière en verre flûte et montants de chêne permet de profiter de la lumière de la salle d’eau en second jour. Le motif de l’arrondi a par ailleurs été décliné sur les lampes en opaline.
Après. Pensée comme deux linéaires parallèles, la nouvelle cuisine accompagne le cheminement vers l’intérieur du logement, que l’on découvre telle une bulle de nature en vert, blanc et bois clair. « Mes clients souhaitaient un décor pérenne, élégant sans ostentation mais avec une touche raffinée », partage Alicia.
Le placard, accessible côté entrée, sous le plan de travail en chêne, est tout simplement dédié au lave-linge séchant, ardemment souhaité par les propriétaires.
9 erreurs à éviter quand on aménage un studio
Le placard, accessible côté entrée, sous le plan de travail en chêne, est tout simplement dédié au lave-linge séchant, ardemment souhaité par les propriétaires.
9 erreurs à éviter quand on aménage un studio
Après. L’inventivité de la nouvelle cuisine en deux linéaires parallèles n’a d’égal que sa praticité. C’est un fait notoire que les cuisines en parallèle sont l’une des configurations les plus efficaces pour cuisiner car il suffit de se tourner d’un côté ou de l’autre pour avoir tout à disposition. Les plans de travail en stratifié chêne ont été agencés sur des modules et façades (Voxtorp) de chez Ikea. Sous plan figurent un lave-vaisselle, un réfrigérateur/freezer et un four combiné micro-ondes, un appareil deux-en-un qui combine les ondes et la chaleur tournante pour cuire ou réchauffer en un temps record.
Plus d’idées pour aménager une petite cuisine sur Houzz
Plus d’idées pour aménager une petite cuisine sur Houzz
L’atout gain de place est d’avoir imaginé cette cuisine comme une circulation vers la salle de bains qui se dissimule derrière cette discrète porte coulissante en galandage.
Des rangements complémentaires ont été aménagés en partie haute de la cuisine, sous la forme d’esthétiques étagères cintrées et de quelques caissons bien intégrés au-dessus du passage de porte de la salle d’eau.
Après. La nouvelle salle de bains est très confortable pour un si petit studio. L’alcôve de douche, les toilettes suspendues ou encore le meuble vasque, créé sur mesure avec un bel arrondi, offrent toutes les fonctions nécessaires. L’impression haut de gamme est véhiculée par une utilisation de matières naturelles comme le béton ciré, le chêne ou encore le laiton. « C’était un vrai parti-pris de mes clients qui étaient en attente de raffinement et d’élégance », rappelle Alicia.
Les accessoires ont été très soignés. On note le miroir orientable suspendu, utile pour se maquiller, ou encore, un élégant séchoir à linge extractible à la façade en bois. Quant au tube de laiton, il s’agit d’un sèche-serviette multifonction, disposant de patères pour accrocher les serviettes ou servant de poignée pour se relever des toilettes. « Le Jay d’Instamat est l’une de nos références préférées. On a découvert ce sèche-serviettes il y a quelques années et depuis, on l’a souvent réemployé dans des petits espaces. D’ailleurs, je remercie les designers pour ce modèle ultime », apprécie Alicia.
Après. Le coin repas est venu se nicher à l’endroit le plus lumineux de la pièce, le long de la fenêtre existante.
Une banquette en bois cintré optimise l’espace, offrant un généreux espace de stockage dans son coffre. « Nous l’avons installée à la place du radiateur électrique existant. Dans les petites surfaces, je préconise d’installer du chauffage au sol électrique pour délester au maximum les murs », conseille l’architecte d’intérieur. La banquette a un autre tour dans son sac : elle sert aux propriétaires à enfermer leurs affaires personnelles en cas de location de l’appartement. « Nous l’avons équipée d’une serrure magnétique, imperceptible de l’extérieur, qui se déverrouille avec une carte », explique-t-elle.
Vous êtes en quête d'un artisan pour votre projet en rénovation complète ?
Nous vous aidons à trouver les meilleurs pros
Nous vous aidons à trouver les meilleurs pros
L’étroitesse du coin déjeuner a été compensée par des détails élégants. Les stores bateau de chez Madura, soulignés par un bourdon noir, ont été fixés sur des tringles sur mesure en laiton. Au centre, la table, en marbre et laiton, fait aussi son petit effet. « On a voulu marquer le coup avec une pièce bijou. Elle vient de chez La Redoute mais son plateau de marbre la rend unique. Ce ne sera jamais la même que celle du voisin », glisse Alicia.
Après. Aujourd’hui, la pièce a été équipée d’un canapé convertible pour loger les enfants ou les amis, quand les propriétaires passent un week-end accompagnés à Paris. « C’est un modèle de chez Moncanapé.com. Je les aime beaucoup, ils sont de belle qualité pour un couchage quotidien et on peut choisir le revêtement », explique Alicia.
L’essentiel pour choisir un canapé convertible
L’essentiel pour choisir un canapé convertible
Les propriétaires ont choisi eux-mêmes ces trois encadrements de Matisse, le peintre français qu’ils préfèrent. Les appliques et la suspension, en matière naturelle, apportent une petite touche bohème qui compense le côté plus chic du canapé capitonné. Dans le coin séjour, l’architecte d’intérieur a suggéré d’installer un miroir toute hauteur. « Face à la fenêtre, il ramène la lumière en fond de pièce et sert aussi de miroir en pied, ce qui est toujours pratique. C’est une astuce dont je me sers souvent », partage-t-elle.
Tables basses gigognes Westwing
Tables basses gigognes Westwing
Après. On aurait pu envisager un nouveau dressing à cet endroit mais les propriétaires ne souhaitaient pas un tel volume de stockage pour les vêtements, n’étant en général sur place que pour une brève durée. Face au canapé, ils ont préféré un meuble multifonction tout en légèreté. Ce dernier a été réalisé sur mesure et accessoirisé esthétiquement avec des tubes en laiton. « C’est un gain d’espace quatre-en-un : à la fois bibliothèque, penderie, meuble TV et commode de rangements », détaille Alicia, qui l’a conçu pour être à la fois pratique et esthétique.
Nous terminons le grand tour de ce petit espace par l’alcôve de nuit, bien mise en valeur par sa couleur vert d’eau. « Des rideaux occultants ont été prévus pour la fermer, car l’appartement ne dispose pas de volets », indique la professionnelle. Les rideaux peuvent aussi permettre de cacher simplement l’endroit où l’on dort en journée.
L’alcôve a été pensée comme un petit cocon de nuit, rehaussé par l’application d’une peinture verte côté tête de lit. « On a testé des couleurs plus pop au départ avant d’estimer que ce Vert de Terre de chez Farrow&Ball était vraiment apaisant et ressourçant », explique Alicia. Si la teinte n’a pas été apposée sur le pied du lit, c’est pour éventuellement pouvoir projeter un film à partir d’un vidéoprojecteur mobile.
Le couple de propriétaires a également souhaité un ventilateur de plafond en prévision de chaleurs estivales. « C’est un accessoire habituel en Espagne », rappelle Alicia. Elle a trouvé ce modèle plutôt esthétique chez le fabricant portuguais Faro.
Le couple de propriétaires a également souhaité un ventilateur de plafond en prévision de chaleurs estivales. « C’est un accessoire habituel en Espagne », rappelle Alicia. Elle a trouvé ce modèle plutôt esthétique chez le fabricant portuguais Faro.
Alicia avait envisagé l’idée d’un lit coffre dans l’alcôve pour maximiser le rangement, mais a été contrainte de l’abandonner lorsque le plateau monobloc est resté coincé dans la cage d’escalier. « Nous avions pris les mesures, mais ce sont des choses vraiment difficiles à anticiper… », déplore-t-elle.
Un sommier à lattes a donc été préféré, car il offrait la possibilité d’être entièrement démonté. Alicia explique : « Nous l’avons installé sur les pieds les plus hauts possibles et les propriétaires mettront une jupe de lit afin de pouvoir cacher le volume de rangement dessous, parfait pour des valises ou encore la table à repasser ».
Un sommier à lattes a donc été préféré, car il offrait la possibilité d’être entièrement démonté. Alicia explique : « Nous l’avons installé sur les pieds les plus hauts possibles et les propriétaires mettront une jupe de lit afin de pouvoir cacher le volume de rangement dessous, parfait pour des valises ou encore la table à repasser ».
Les travaux se sont étalés sur trois mois et demi et se sont chiffrés à 1 840 euros/m², un montant légèrement au-dessus de la moyenne. Rappelons à cette occasion que la rénovation d’espaces réduits est particulièrement exigeante, tant en conception qu’en réalisation. « Les contraintes récurrentes telles que l’absence de stationnement facile et/ou d’ascenseur, ainsi que l’espace restreint où les artisans ne peuvent pas travailler simultanément, contribuent à faire augmenter sensiblement les coûts. Ces aspects doivent être pris en compte dès l’achat afin d’éviter toute mauvaise surprise », souligne en effet Alicia.
ET VOUS ?
Que pensez-vous de cette rénovation ? Y séjourneriez-vous à quatre ?
ET VOUS ?
Que pensez-vous de cette rénovation ? Y séjourneriez-vous à quatre ?
































Qui habite ici ? C’est le pied-à-terre d’un couple de madrilènes
Emplacement : rue Sauffroy, Paris 17ᵉ
Date des travaux : conception décembre 2021 à mars 2022, travaux de fin mars au 4 juillet 2022
Superficie : 22 m²
Architecte d’intérieur : Alicia Oustry, Ameo Concept
Budget : 45 500 euros TTC (travaux : 40 500 euros TTC ; mobilier, linge de maison et déco : 4 000 euros TTC ; électroménager : 1 000 euros TTC)
Photos : Agathe Tissier