Visites Privées
Projets nés sur Houzz
Avant/Après : Notes seventies pour loft familial à Montreuil
Aux portes de Paris, un ancien atelier 1900 de 135 m² sur trois niveaux mué en loft chaleureux pour une jeune famille
À Montreuil, aux portes de Paris, une famille de trentenaires avec une fillette et un second enfant à venir a acquis un loft de 135 m², un ancien atelier d’ébénisterie niché au fond d’une copropriété derrière une grande porte cochère. Ce lieu, aux volumes généreux, était resté longtemps habité par la même famille, marqué par des aménagements bricolés et une humidité problématique. En quête d’un cocon familial convivial, les propriétaires ont découvert sur Houzz le profil de Sophie Boichon, architecte d’intérieur pour laquelle ce projet était le premier chantier d’envergure. Avec l’entreprise Journo-Spinella, choisie pour ses finitions soignées, elle a métamorphosé ce triplex en un espace lumineux, coloré et follement chaleureux. Elle a partagé avec nous les secrets de cette transformation réussie.
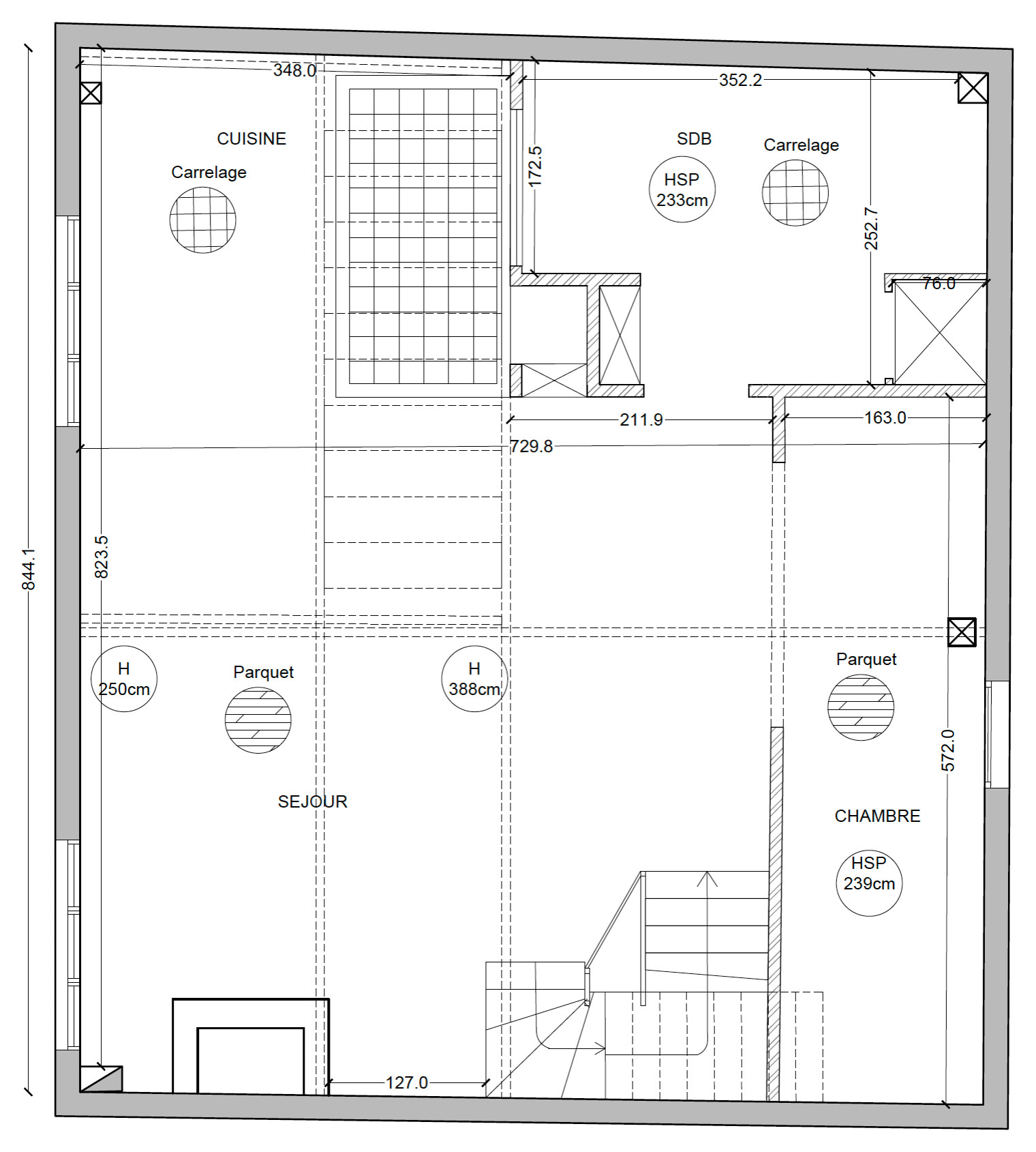
Plan R+1 avant travaux
Situé derrière une porte cochère de Montreuil, au fond d’une impasse accueillant d’anciens ateliers 1900, ce loft de 135 m² a séduit les propriétaires en partance de Milan, par ses hauteurs sous plafond – 3,14 mètres au rez-de-chaussée – et sa charpente apparente dans les deux étages.
Pour l’heure, l’intérieur était daté, mal agencé et souffrait d’humidité. « L’espace était dans son jus avec des cloisons inutiles et les finitions vieillottes mais le potentiel était incroyable. Le toit cathédrale du premier niveau et sa belle charpente lui donnait un charme fou », se remémore l’architecte d’intérieur Sophie Boichon, qui a fait la première visite avant l’achat avec eux puis orchestré en cinq mois cette rénovation générale.
Trouvez un architecte d’intérieur près de chez vous sur Houzz
Situé derrière une porte cochère de Montreuil, au fond d’une impasse accueillant d’anciens ateliers 1900, ce loft de 135 m² a séduit les propriétaires en partance de Milan, par ses hauteurs sous plafond – 3,14 mètres au rez-de-chaussée – et sa charpente apparente dans les deux étages.
Pour l’heure, l’intérieur était daté, mal agencé et souffrait d’humidité. « L’espace était dans son jus avec des cloisons inutiles et les finitions vieillottes mais le potentiel était incroyable. Le toit cathédrale du premier niveau et sa belle charpente lui donnait un charme fou », se remémore l’architecte d’intérieur Sophie Boichon, qui a fait la première visite avant l’achat avec eux puis orchestré en cinq mois cette rénovation générale.
Trouvez un architecte d’intérieur près de chez vous sur Houzz
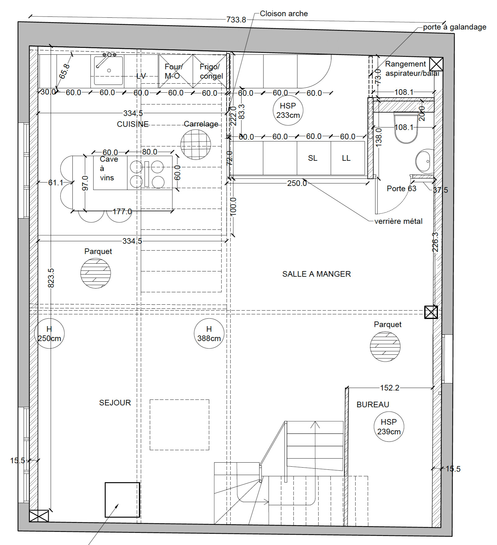
Plan R+1 après travaux
Nous commençons notre découverte par le niveau central et la pièce de vie, mais l’entrée du triplex se situe un étage en dessous, devenu l’étage des enfants. Sophie Boichon a d’abord veillé à transformer ce loft en un espace fonctionnel et économe en énergie, en effectuant une remise aux normes aussi bien sur les plans thermiques qu’électriques ou sur celui de la plomberie.
Les façades ont été isolées avec 15 centimètres de laine de roche par l’intérieur. Une pompe à chaleur air/air avec splits réversibles a été installée, ainsi qu’un gros poêle mixte (bois et granulés) au centre de la bâtisse. Des radiateurs électriques ont été ajoutés au rez-de-chaussée pour pallier les basses températures dans cette zone partiellement enterrée. Toutes les fenêtres ont été remplacées par des modèles à double vitrage performants.
Par ailleurs, une étanchéité complète du rez-de-chaussée a été réalisée avec une nouvelle chape et des injections de résine pour traiter l’humidité résiduelle à ce niveau semi-enterré. Une fois ces travaux de mise à niveau de l’enveloppe réalisés, l’architecte d’intérieur s’est livrée à l’optimisation spatiale et esthétique tant attendue par les propriétaires et on peut dire qu’elle y a excellé.
Nous commençons notre découverte par le niveau central et la pièce de vie, mais l’entrée du triplex se situe un étage en dessous, devenu l’étage des enfants. Sophie Boichon a d’abord veillé à transformer ce loft en un espace fonctionnel et économe en énergie, en effectuant une remise aux normes aussi bien sur les plans thermiques qu’électriques ou sur celui de la plomberie.
Les façades ont été isolées avec 15 centimètres de laine de roche par l’intérieur. Une pompe à chaleur air/air avec splits réversibles a été installée, ainsi qu’un gros poêle mixte (bois et granulés) au centre de la bâtisse. Des radiateurs électriques ont été ajoutés au rez-de-chaussée pour pallier les basses températures dans cette zone partiellement enterrée. Toutes les fenêtres ont été remplacées par des modèles à double vitrage performants.
Par ailleurs, une étanchéité complète du rez-de-chaussée a été réalisée avec une nouvelle chape et des injections de résine pour traiter l’humidité résiduelle à ce niveau semi-enterré. Une fois ces travaux de mise à niveau de l’enveloppe réalisés, l’architecte d’intérieur s’est livrée à l’optimisation spatiale et esthétique tant attendue par les propriétaires et on peut dire qu’elle y a excellé.
Avant. Cuisine et séjour étaient les pièces principales du premier niveau qui comptait également une chambre improvisée et une salle de bains. La famille trouvait la cuisine trop petite et mal équipée. Par ailleurs, le parquet était en mauvais état et gondolait, les poutres de la charpente apparaissaient tristes et mal mises en valeur par leur peinture grise et une curieuse partie du sol en pavé de verre éclairait l’étage du dessous.
Après. Le cœur du loft s’organise désormais autour d’un plateau central largement ouvert. Baigné de lumière, cet espace de vie s’articule autour de plusieurs zones : une cuisine éclairée par une verrière zénithale, une salle à manger qui s’épanouit devant une arrière-cuisine vitrée, ainsi qu’un séjour et un espace bureau.
Des jeux de graphismes ont permis de démarquer chaque fonction, si bien que cinq zones se regroupent dans cette pièce sans peine. Mais les travaux ont été importants : « Nous avons refait le parquet, supprimé les carreaux de verre du sol puis nous avons dû poncer toute la charpente, souvent à la main, en raison des difficultés d’accès », se remémore Sophie. Une autre grosse intervention a concerné la verrière du plafond. « À l’origine, elle était doublée par une seconde verrière opaque, ce qui empêchait de distinguer le ciel », explique l’architecte d’intérieur. Après une analyse structurelle – qui a requis l’intervention d’un cordiste – il a été possible de retirer cette seconde verrière opaque. « La verrière en place était de bonne qualité et en double vitrage », indique la professionnelle.
Des jeux de graphismes ont permis de démarquer chaque fonction, si bien que cinq zones se regroupent dans cette pièce sans peine. Mais les travaux ont été importants : « Nous avons refait le parquet, supprimé les carreaux de verre du sol puis nous avons dû poncer toute la charpente, souvent à la main, en raison des difficultés d’accès », se remémore Sophie. Une autre grosse intervention a concerné la verrière du plafond. « À l’origine, elle était doublée par une seconde verrière opaque, ce qui empêchait de distinguer le ciel », explique l’architecte d’intérieur. Après une analyse structurelle – qui a requis l’intervention d’un cordiste – il a été possible de retirer cette seconde verrière opaque. « La verrière en place était de bonne qualité et en double vitrage », indique la professionnelle.
Égayée par un îlot chaleureux, hautement plébiscité par la famille, la cuisine, restée à sa place a abandonné la fadeur d’antan. Réalisée sur une base Ikea, l’îlot a été rendu hypnotique par le pavement en zelliges brillantes rouge terracotta, qui se marie chaleureusement avec les façades en chêne clair de chez Plum Kitchen. « Les propriétaires souhaitaient un espace familial ouvert, lumineux et coloré, avec des matériaux nobles et un style rétro-modernisé inspiré des années 1970 », explique Sophie.
La suspension Oblure au dessin festonné qui illumine l’îlot sublime le tout. « Nous avons tous eu un énorme coup de cœur pour cette suspension, qui est une vraie oeuvre d’art », glisse-t-elle. Seul léger bémol, le plan de travail en stratifié de chez Plum a nécessité un renfort à l’aide de deux pieds sur mesure fournis par la Fabrique des Pieds. « Ces pieds ont finalement amené un bel équilibre », apprécie-t-elle.
La suspension Oblure au dessin festonné qui illumine l’îlot sublime le tout. « Nous avons tous eu un énorme coup de cœur pour cette suspension, qui est une vraie oeuvre d’art », glisse-t-elle. Seul léger bémol, le plan de travail en stratifié de chez Plum a nécessité un renfort à l’aide de deux pieds sur mesure fournis par la Fabrique des Pieds. « Ces pieds ont finalement amené un bel équilibre », apprécie-t-elle.
L’intégration bien maîtrisée de cette cuisine dans la pièce de vie est sublimée par le tapis de carreaux de ciment graphiques au sol. « Faire personnaliser les carreaux de sol par Mosaic Factory a permis d’apporter un motif complètement sur mesure », s’enthousiasme Sophie.
Cette intégration idéale fut pourtant moins facile qu’il n’y paraît en raison d’un dénivelé existant. « Nous avons dû créer un raccord en pente autour du périmètre des carreaux. Une finition bois forme une transition douce entre le parquet posé sur lambourdes et la dalle légèrement plus haute de la cuisine », explique la professionnelle.
Cette intégration idéale fut pourtant moins facile qu’il n’y paraît en raison d’un dénivelé existant. « Nous avons dû créer un raccord en pente autour du périmètre des carreaux. Une finition bois forme une transition douce entre le parquet posé sur lambourdes et la dalle légèrement plus haute de la cuisine », explique la professionnelle.
Après. Celle-ci est devenue une arrière-cuisine semi-cloisonnée derrière une verrière métallique claire. « La verrière laisse la lumière circuler tout en structurant l’espace et en permettant de cacher tout ce que l’on ne veut pas montrer », valide Sophie. Au fond de l’arrière-cuisine, en effet, un cloisonnement, ouvert par une porte à galandage, cache un espace buanderie, le tableau électrique et l’aspirateur. Quant à la cave à vin, elle a été dissimulée derrière l’îlot.
Après. Devant la verrière, la salle à manger a été meublée avec des pièces chinées et éclairée par des suspensions assorties dans le style seventies. « Les couleurs chaudes (terracotta, orange, kaki) de la pièce de vie, les motifs géométriques et les notes rétro reflètent l’identité des propriétaires. », explique Sophie.
Plus de photos de salles à manger sur Houzz
Plus de photos de salles à manger sur Houzz
Après. Dans cette cuisine où dominent les formes orthogonales de l’ilot, des éléments de cuisine, des carreaux de la verrière ou du motif du carrelage de sol, la professionnelle a souhaité rapporter de la rondeur. « L’arche est venue adoucir la verrière et elle trouvé écho dans la suspension de l’îlot et celles du séjour », partage-t-elle.
Façades, plan de travail et poignées : Plum ; Carreaux de ciment et zelliges (crédence) : Mosaic Factory ; Suspension îlot cuisine : Oblure
Façades, plan de travail et poignées : Plum ; Carreaux de ciment et zelliges (crédence) : Mosaic Factory ; Suspension îlot cuisine : Oblure
Après. Le salon profite aujourd’hui de la magnifique charpente dont la teinte de bois naturel a été révélée. « Poncer la charpente a été un défi technique, mais c’est le cœur du caractère du loft », confie Sophie. La charpente s’accorde bien avec le nouveau parquet chêne clair et le bois de l’escalier également reponcé.
Pour un salon cosy et très lumineux, la professionnelle a misé sur un canapé Vetsak en velours côtelé beige choisi pour son confort et ses formes enveloppantes. Sur le côté droit, un banc filant réalisé avec des caissons Ikea et des façades Plum permet de créer des assises supplémentaires compactes lorsque passent les amis. « Il crée également du rangement très pratique à hauteur de petits enfants », observe l’architecte d’intérieur.
Pour un salon cosy et très lumineux, la professionnelle a misé sur un canapé Vetsak en velours côtelé beige choisi pour son confort et ses formes enveloppantes. Sur le côté droit, un banc filant réalisé avec des caissons Ikea et des façades Plum permet de créer des assises supplémentaires compactes lorsque passent les amis. « Il crée également du rangement très pratique à hauteur de petits enfants », observe l’architecte d’intérieur.
Après. Débarrassé de sa cheminée vintage que les propriétaires trouvaient disgracieuse, le salon accueille un poêle mixte (bois et granulés) posé sur des zelliges de chez Maison Bahya. « Le poêle chauffe tout le plateau et la mezzanine : c’est un choix à la fois esthétique et pratique », précise Sophie.
Le tapis graphique en laine a été choisi par les propriétaires chez Layered (modèle Berry Rain par Evelina Kroon) tandis que les suspensions de chez KSL Living ramènent de la rondeur. Vous l’aurez peut-être noté, la télévision a disparu du salon. « C’était un souhait de mes clients. À terme, ils mettront peut-être un vidéoprojecteur », indique la professionnelle.
Canapé : Vetsak ; banquette : Plum ; zelliges derrière poêle : Maison Bahya
Le tapis graphique en laine a été choisi par les propriétaires chez Layered (modèle Berry Rain par Evelina Kroon) tandis que les suspensions de chez KSL Living ramènent de la rondeur. Vous l’aurez peut-être noté, la télévision a disparu du salon. « C’était un souhait de mes clients. À terme, ils mettront peut-être un vidéoprojecteur », indique la professionnelle.
Canapé : Vetsak ; banquette : Plum ; zelliges derrière poêle : Maison Bahya
Après. Décloisonné en majeure partie, ce coin nuit a disparu pour agrandir la pièce de vie. L’emplacement sous l’escalier a été mis à profit avec un coin bureau nécessaire aux propriétaires. « Nous avons utilisé un bout de cloison existant pour créer une séparation et du rangement et avons particularisé l’endroit avec un papier peint graphique », explique Sophie.
Vous êtes en quête d'un artisan pour votre projet en rénovation complète ?
Nous vous aidons à trouver les meilleurs pros
Nous vous aidons à trouver les meilleurs pros
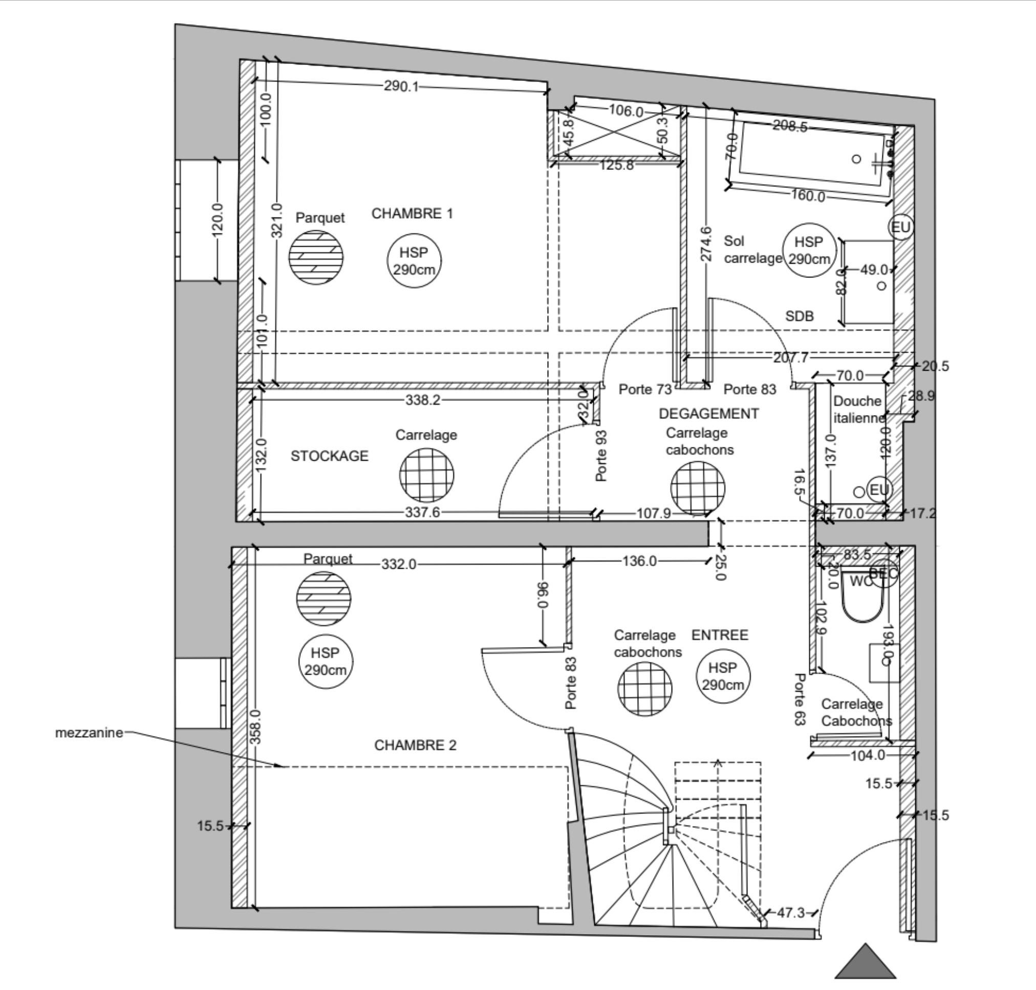
Plan rez-de-chaussée après travaux
« Nous avons eu de mauvaises surprises à ce niveau, au point que la grande chambre a été découverte gorgée d’eau. Nous avons coulé une nouvelle chape et réalisé des injections de résine afin de régler le problème de remontées capillaires », rappelle Sophie Boichon, d’autant que ce niveau devait devenir celui de la petite fille et du bébé attendu par le couple.
« Nous avons eu de mauvaises surprises à ce niveau, au point que la grande chambre a été découverte gorgée d’eau. Nous avons coulé une nouvelle chape et réalisé des injections de résine afin de régler le problème de remontées capillaires », rappelle Sophie Boichon, d’autant que ce niveau devait devenir celui de la petite fille et du bébé attendu par le couple.
Après. L’entrée a été entièrement repensée autour de la fonctionnalité et de l’épure. Elle a été habillée de teintes claires avec de beaux carreaux de ciment parés de cabochons verts (Mosaic Factory) qui lui confèrent charme et élégance.
Désormais accueillante, elle offre une zone de déchausse grâce à un meuble banquette rehaussé de façades Plum et de poignées en porcelaine Hello Jacques. « Les tons clairs étaient essentiels pour compenser le manque de lumière naturelle à ce niveau », justifie l’architecte d’intérieur.
Carreaux de ciment : Mosaic Factory ; Meuble entrée : Plum ; Poignées porcelaine : Hello Jacques
Désormais accueillante, elle offre une zone de déchausse grâce à un meuble banquette rehaussé de façades Plum et de poignées en porcelaine Hello Jacques. « Les tons clairs étaient essentiels pour compenser le manque de lumière naturelle à ce niveau », justifie l’architecte d’intérieur.
Carreaux de ciment : Mosaic Factory ; Meuble entrée : Plum ; Poignées porcelaine : Hello Jacques
Après. Réduite à 12 m², cette chambre est devenue celle de l’aînée du couple. « On l’a scindée afin de créer un espace de stockage adjacent pour ranger les vélos et les valises car il n’y avait ni garage ni cave », partage-t-elle.
Cette chambre était éclairée par les carreaux de verre que l’on a aperçus au sol de l’ancienne cuisine. Le plafond a été fermé et une nouvelle fenêtre a été créée pour lui donner une prise de lumière directe.
La chambre intègre deux grands placards : un dressing aménagé dans un ancien cloisonnement tout hauteur astucieusement mis à profit et un « meuble arche » conçu en face comme un coin ludique pour la petite fille, composé sur la base de caissons Ikea et équipé de façades Plum.
Meuble arche : Plum ; Poignée ; Hello Jacques
Meuble arche : Plum ; Poignée ; Hello Jacques
Après. La salle de bains dédiée aux enfants est aussi hypnotique qu’envoûtante avec ses rayures ludiques blanches et bleues.
Sophie Boichon a réalisé cette rayure en continu du sol au mur en passant par le tablier de la baignoire grâce à un carrelage bien particuliers : « Ils viennent d’une petite fabrique Italienne (Mavi Ceramica) qui les peints à la main. Il s’agit du I de leur collection Alfabetile (alphabet) », révèle-t-elle.
Sophie Boichon a réalisé cette rayure en continu du sol au mur en passant par le tablier de la baignoire grâce à un carrelage bien particuliers : « Ils viennent d’une petite fabrique Italienne (Mavi Ceramica) qui les peints à la main. Il s’agit du I de leur collection Alfabetile (alphabet) », révèle-t-elle.
« Les carreaux de Mavi Ceramica, avec leurs traces artisanales, donnent une âme unique à cette salle de bains dédiée aux enfants », estime-t-elle.
Carrelage : Mavi Ceramica
Carrelage : Mavi Ceramica
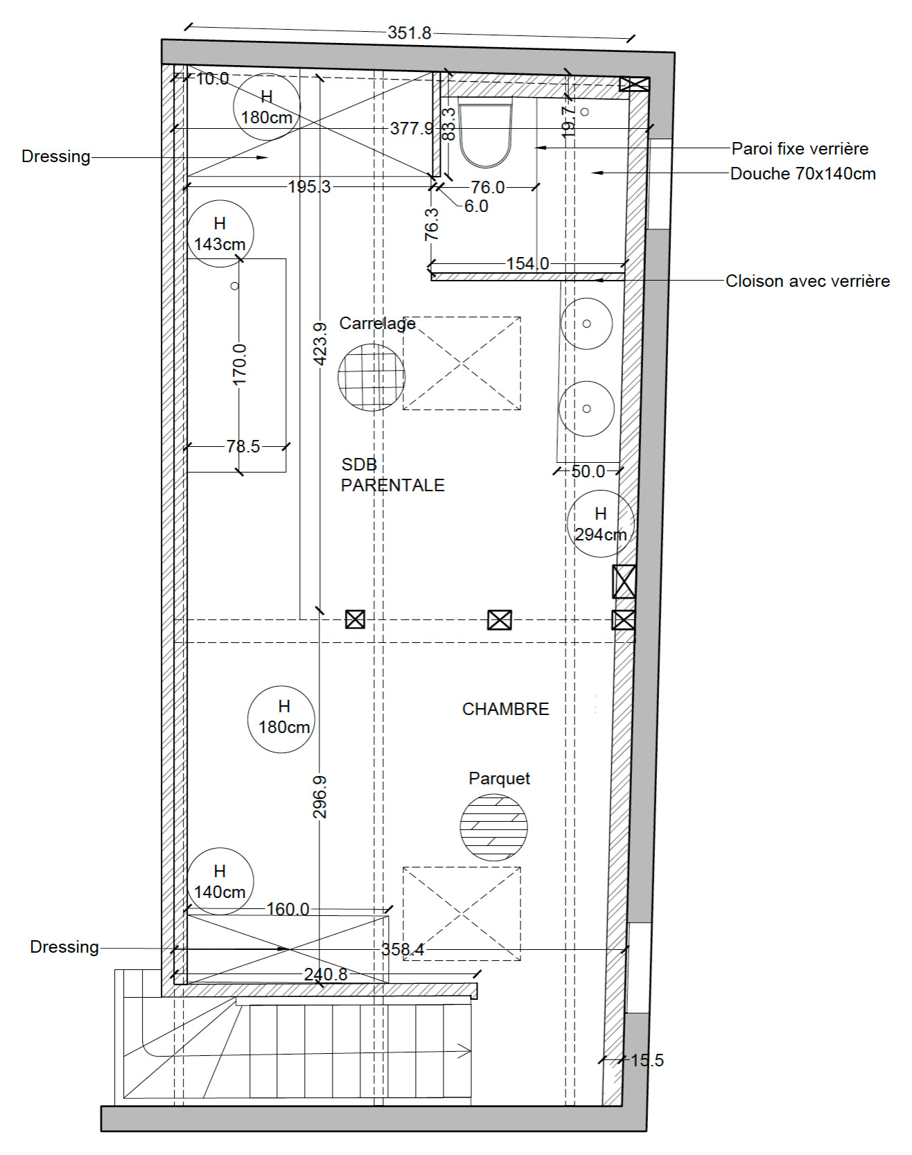
Après. Imaginée dans le respect du charme de la charpente, la suite parentale met en valeur son bois poncé. « Libérer la charpente a vraiment redonné du volume et une âme au lieu », estime l’architecte d’intérieur. Cette charpente débarrassée des étagères a permis de semi-cloisonner avec charme la chambre et la salle de bains des propriétaires.
Après. La tête de lit peinte en vert « anisette » (chez Maison Janette) fait resurgir le goût des habitants des lieux pour les années1970, tandis qu’à l’arrière deux dressings ont été créés sur mesure. La partie plus basse a été adaptée au passage du Velux.
L’ambiance couleur de cette suite a été façonnée à partir du coup de cœur pour les carreaux de ciment du côté bains. Comme dans la pièce de vie, le dénivelé entre les carreaux et le plancher du côté chambre a été habilement géré par l’entreprise à l’aide d’une lame de bois inclinée.
Carreaux de ciment : Maison Bahya ; Zelliges dans la douche : Mosaic Factory ; Meuble vasque et vasques : Tikamoon ; Peinture verte côté tête de lit : Maison Janette
Carreaux de ciment : Maison Bahya ; Zelliges dans la douche : Mosaic Factory ; Meuble vasque et vasques : Tikamoon ; Peinture verte côté tête de lit : Maison Janette
Après. Il n’y avait aucune salle de bains à ce niveau. Le réseau de plomberie a dû être remonté depuis l’ancienne salle de bains du premier étage, là où se trouve désormais l’arrière-cuisine. Cette dernière a été imaginée comme un véritable salon de bains tout confort, en deux temps. La première partie est composée d’une baignoire îlot et d’un meuble double vasque. La seconde partie, intime derrière son cloisonnement, donne accès à une douche et des toilettes.
« Les zelliges orangés, les mitigeurs en cuivre, les vasques confetti de chez Tikamoon en terrazzo créent une atmosphère cocooning sophistiquée », décrit Sophie.
Derrière la paroi de douche graphique à l’inspiration Mondrian, les zelliges Mosaic Factory captent le regard et répondent au vert de la tête de lit.
Avec ce premier projet d’ampleur après son installation comme architecte d’intérieur il y a seulement un an et demi, Sophie Boichon signe un loft éminemment désirable qui confirme son talent pour la création d’ambiances graphiques et envoûtantes. Installés depuis février 2025, les propriétaires sont ravis et ont déjà eu l’occasion de recommander cette professionnelle à plusieurs de leurs amis, lui laissant également cet avis élogieux sur son profil Houzz : « /…/ Entre héritage et création, elle a réussi un joli équilibre de styles, on recommande vivement la collaboration avec Sophie. En plus d’être une professionnelle de qualité, sa personnalité et son empathie font du travail réalisé avec elle une véritable aventure créative et humaine a la fois ! ».
ET VOUS ?
Que pensez-vous de cette rénovation ?
Vous êtes en quête d’un professionnel pour vos travaux ? Houzz partage son annuaire exclusif pour que vous mettiez toutes les chances de votre côté. Savez-vous pourquoi les professionnels qui utilisent Houzz Pro ont de meilleures chances de vous faire atteindre vos objectifs ? Ils utilisent notre logiciel tout-en-un et vous pourrez en profiter grâce à eux. Grâce aux outils de visualisation inclus dans l’outil, vous pourrez imaginer votre projet clairement et rapidement. Le Portail Client fluidifie quant à lui vos communications avec le professionnel tout au long du projet, quand la signature des devis en ligne simplifie vos démarches.
Que pensez-vous de cette rénovation ?
Vous êtes en quête d’un professionnel pour vos travaux ? Houzz partage son annuaire exclusif pour que vous mettiez toutes les chances de votre côté. Savez-vous pourquoi les professionnels qui utilisent Houzz Pro ont de meilleures chances de vous faire atteindre vos objectifs ? Ils utilisent notre logiciel tout-en-un et vous pourrez en profiter grâce à eux. Grâce aux outils de visualisation inclus dans l’outil, vous pourrez imaginer votre projet clairement et rapidement. Le Portail Client fluidifie quant à lui vos communications avec le professionnel tout au long du projet, quand la signature des devis en ligne simplifie vos démarches.
















































Qui vit ici ? Un couple de trentenaires avec une fille et un second enfant à venir
Emplacement : Montreuil, aux portes de Paris
Superficie : 135 m² (rez-de-chaussée : 45 m², premier étage : 60 m², mezzanine : 30 m²)
Dates : Conception sur 3 mois, chantier de 5 mois (mi-septembre 2024 à février 2025, finitions jusqu’en avril 2025)
Architecte d’intérieur : Sophie Boichon
Entreprise de travaux : Journo-Spinella
Budget : 200 000 € TTC ( hors honoraires)
Photos : Sarah Khodri