Maisons de campagne
Visites Privées
Développement durable
Dossiers populaires
Avant/Après : Restructuration écolo et lumineuse d'une landaise
Direction Mérignac pour ces anciens Parisiens. À la clé, la refonte boisée de leur nouvelle maison entourée de nature
Pour se rapprocher de leur famille et changer de vie, ces Parisiens font le choix de s’installer à Mérignac près de Bordeaux. Ayant acquis une maison de type landaise, agrémentée sur son pourtour d’un grand jardin, ils se rapprochent d’Acosa Architectes (Jean-baptiste Couty et Laura Sas) afin d’envisager une rénovation de l’intérieur et de l’extérieur. « L’orientation, la circulation et la hiérarchie des espaces n’étaient pas optimisées. Séjour et chambres ne bénéficiaient pas d’une exposition favorable. Par ailleurs, ils désiraient une extension, une piscine et un pool house », explique l’architecte. Eu égard au budget initial des jeunes propriétaires, les travaux sont prévus en deux phases. Voici en images le résultat de l’aménagement intérieur, avec pour inspiration, la nature et la lumière.
Avant. Traditionnellement « l’ostau » landais est une construction à colombages et toit à trois pans, réalisée à partir d’une structure en chêne, remplie de torchis ou de briques plates. Elle est construite au centre d’un « ayrial », une vaste prairie arborée.
Ici, la propriété des années 80 s’inspirait de ce style traditionnel avec son parc et sa bâtisse en poteaux poutres et maçonnerie. Elle empruntait aussi en partie l’orientation classique de l’ostau, à l’est, tournant le dos aux intempéries. Ici nous distinguons la face sud, peu exploitée, avec les petites ouvertures des chambres. Au fil du temps s’était rajoutée cette véranda qui n’était pas connectée à la maison…
Ici, la propriété des années 80 s’inspirait de ce style traditionnel avec son parc et sa bâtisse en poteaux poutres et maçonnerie. Elle empruntait aussi en partie l’orientation classique de l’ostau, à l’est, tournant le dos aux intempéries. Ici nous distinguons la face sud, peu exploitée, avec les petites ouvertures des chambres. Au fil du temps s’était rajoutée cette véranda qui n’était pas connectée à la maison…
Après. « Ce fut un chantier plaisant et facile car les propriétaires avaient conscience de ce qu’ils souhaitaient : redistribuer l’espace en fonction de leurs besoins et connecter la maison à la nature ! », explique d’emblée l’architecte Jean-Baptiste Couty en compagnie duquel nous avons fait la visite.
À l’extérieur, les propriétaires souhaitaient moderniser la landaise avec un bardage bois et, dans le prolongement de la maison, côté sud, développer une extension qui serve de cuisine d’été et pool house et fasse le lien entre la maison et le jardin.
Trouvez un architecte sur Houzz
À l’extérieur, les propriétaires souhaitaient moderniser la landaise avec un bardage bois et, dans le prolongement de la maison, côté sud, développer une extension qui serve de cuisine d’été et pool house et fasse le lien entre la maison et le jardin.
Trouvez un architecte sur Houzz
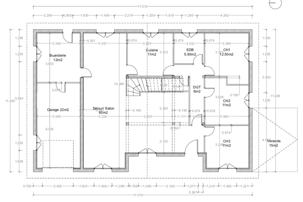
Avant. Mais pour l’heure, avec un budget initial de 100 000 euros environ, ils se sont concentrés sur l’intérieur qui nécessitait une restructuration complète. « La distribution des espaces était mal conçue. On entrait face à un grand couloir qui distribuait les chambres au sud. La cuisine à l’est était cachée derrière l’escalier. Le salon était peu large, tout en longueur… C’était sombre, on sentait que les chambres et le séjour étaient mal orientés », résume l’architecte Jean-baptiste Couty.
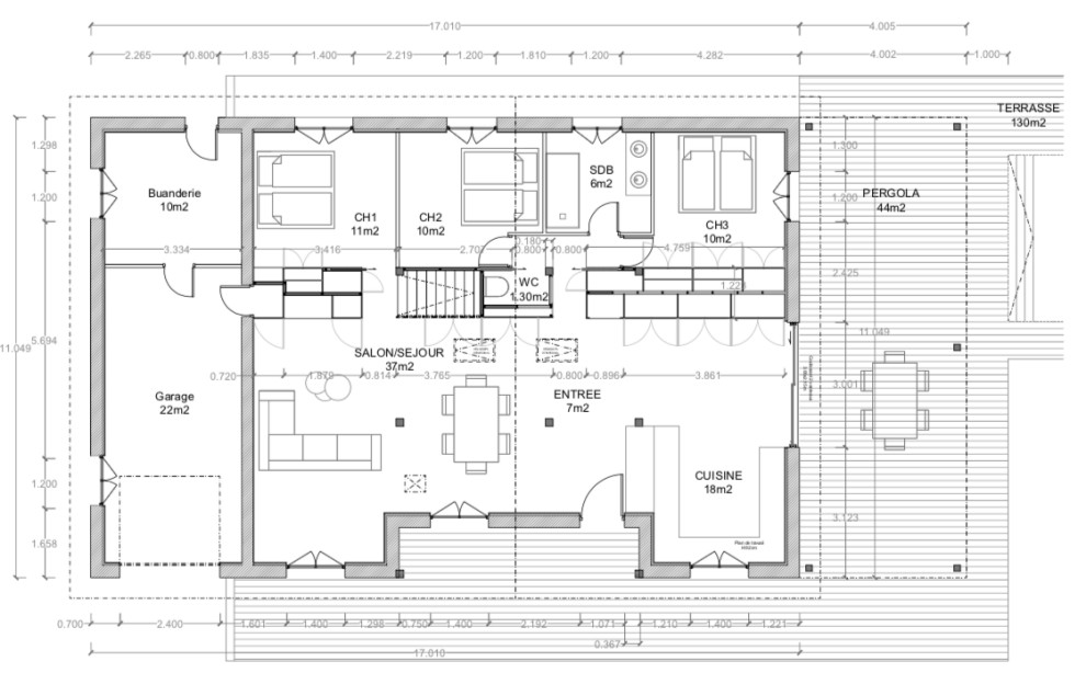
Après. Redistribuer les espaces fut le mot d’ordre de ce projet. La solution radicale proposée par les architectes a consisté à décloisonner totalement le rez-de-chaussée afin de conserver uniquement la structure poteaux/poutre de la maison. Puis le recloisonnement s’est fait de manière maligne, à partir d’un unique meuble cloison qui scinde les espaces jour/nuit, tout en incluant des fonctions de part et d’autre.
Après. Après le décloisonnement complet du rez-de-chaussée de 70 m² et la mise en blanc cassé de la structure porteuse en chêne, les architectes ont proposé de rassembler les fonctions dans une cloison technique. « Nous avons tracé une ligne avec un meuble qui départage les espaces jour et nuit. Il intègre toutes les fonctions : escalier pour monter à l’étage, meuble TV, toilettes, bibliothèque et penderies. Il a également permis de passer les réseaux et sert de tampon acoustique entre les pièces », indique Jean-Baptiste Couty.
Par ailleurs, un sas d’entrée a été marqué par un meuble sur mesure, un banc-coffre accolé à une commode qui permet de ranger les chaussures, les parapluies, bonnets, écharpes, etc.
Après. Mais les architectes ont repensé les espaces avec une logique multifonction qui permet d’épurer les lieux et de gagner beaucoup de place. Avec leur meuble cloison, ils ont rassemblé toutes ces fonctions.
Exit le couloir pour distribuer les chambres. On traverse désormais la profondeur de ce meuble juste devant la bibliothèque pour parvenir aux deux chambres d’enfant. « Au centre de la menuiserie, nous avons placé une cloison en dur doublée de laine de bois. Ce qui permet une isolation phonique renforcée. Quand les parents reçoivent au salon, ils n’entendent pas les enfants dans les chambres », explique l’architecte.
Dans le sas des chambres d’enfant, une porte coulissante à galandage donne accès aux toilettes qui se nichent juste derrière la bibliothèque faible profondeur.
Dans le sas des chambres d’enfant, une porte coulissante à galandage donne accès aux toilettes qui se nichent juste derrière la bibliothèque faible profondeur.
Derrière l’escalier, un autre passage donne accès à la chambre d’amis. Les propriétaires amateurs d’upcycling ont réalisé eux-mêmes le sommier du lit grâce à un assemblage de palettes.
Le meuble cloison est complètement double face. Côté séjour, il joue par exemple le rôle de meuble TV en englobant l’écran plat. Tandis que de l’autre côté, à l’arrière de l’écran, il a été pensé comme un placard pour la chambre d’amis. « La profondeur crée un tampon acoustique très efficace d’autant que le bois est un bon isolant », rappelle le pro.
Après. Face à la menuiserie sur mesure en bois clair, les ouvertures à l’ouest ont été agrandies pour conférer à la pièce davantage de lumière naturelle. Au sud, sur la droite de ce visuel, une grande baie vitrée donnant vers la future véranda et la piscine a été installée.
Le sol a également été revu. « Nous avons déplacé la cuisine et refait tous les réseaux en creusant des tranchées si bien que nous avons dû changer le sol », justifie l’architecte.
Au départ, un contrecollé en chêne cérusé blanc avait été pressenti. Mais les propriétaires, craintifs sur son entretien, ont finalement opté pour un travertin, afin de rester sur un matériau naturel. Si ce choix était avant tout celui des propriétaires, le pro estime le résultat « solide et pas dissonant avec le bois » et apprécie « le calepinage irrégulier qui a permis de moderniser ce matériau en créant une originalité ».
Pour ne pas grever le budget, un chauffage au sol n’a pas été intégré en dessous. Les propriétaires ont préféré un poêle à bûches Aasgard dans le salon et ont conservé le chauffage central au gaz existant dans les chambres.
Le sol a également été revu. « Nous avons déplacé la cuisine et refait tous les réseaux en creusant des tranchées si bien que nous avons dû changer le sol », justifie l’architecte.
Au départ, un contrecollé en chêne cérusé blanc avait été pressenti. Mais les propriétaires, craintifs sur son entretien, ont finalement opté pour un travertin, afin de rester sur un matériau naturel. Si ce choix était avant tout celui des propriétaires, le pro estime le résultat « solide et pas dissonant avec le bois » et apprécie « le calepinage irrégulier qui a permis de moderniser ce matériau en créant une originalité ».
Pour ne pas grever le budget, un chauffage au sol n’a pas été intégré en dessous. Les propriétaires ont préféré un poêle à bûches Aasgard dans le salon et ont conservé le chauffage central au gaz existant dans les chambres.
Avant. Le séjour était très étroit dans son plan ancien orienté est-ouest. Aujourd’hui, il a changé d’orientation (sud-ouest) ses volumes sont bien plus agréables. Le nouveau meuble-cloison s’aligne à la place du mur et de l’ancien escalier quart tournant que nous distinguons sur la droite de ce visuel.
Après. Structure d’épicéa et panneaux de contreplaqué de peuplier de 22 mm, provenant du Lot-et-Garonne, composent le meuble cloison. Afin de protéger ce bois dans la durée, il a été recouvert en trois couches d’une vitrification en phase aqueuse* qui imprègne le bois à cœur. « Rien à voir avec les produits filmogènes de l’époque, comme les lasures ou les vernis. La base cellulosique bouche-pores protège tout en permettant de garder le naturel du bois », apprécie le professionnel.
*Plastor monopur T3, vitrification à l’eau
*Plastor monopur T3, vitrification à l’eau
C’est un menuisier-charpentier de Peyrissac, Guillaume Aubert, qui a réalisé l’agencement en bois. « Un charpentier avec le sens du détail et soucieux de respecter le dessin de départ, c’est très rare ! », déclare Jean-Baptiste Couty, lui rendant hommage. Des qualités qui parlent forcément à cet architecte, lui-même menuisier de part sa première formation.
En effet, le sens du détail a été nécessaire à chaque phase de l’agencement menuisé conçu avec moult cachettes. Ainsi, sous l’escalier de 120 cm de large, il a fallu concevoir avec exactitudes les portes sans poignées qui dissimulent un nombre de rangements appréciables dans une maison familiale.
Trouvez un menuisier sur Houzz
En effet, le sens du détail a été nécessaire à chaque phase de l’agencement menuisé conçu avec moult cachettes. Ainsi, sous l’escalier de 120 cm de large, il a fallu concevoir avec exactitudes les portes sans poignées qui dissimulent un nombre de rangements appréciables dans une maison familiale.
Trouvez un menuisier sur Houzz
Pour une bonne résistance de l’escalier, les marches ont quant à elles été conçues dans un contreplaqué de peuplier de 30 mm d’épaisseur.
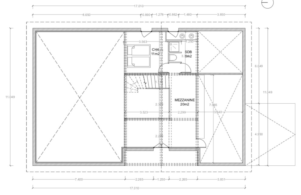
Après. Les travaux ont porté sur l’aménagement de la mezzanine qui était inexistant.
Ce garde-corps façon filtre n’a finalement pas été retenu. Les propriétaires ont préféré disposer des plantes sur le côté de l’escalier assez large (120 cm) pour être sécurisant.
Avec ce projet, l’architecte Jean-Baptiste Couty et son associée Laura Sas signent leur attachement au matériau bois. « Le bois local, c’est notre pâte. On est très attaché à son emploi pour sa facilité de mise en œuvre et son caractère durable. Cela fait sens dans notre travail d’architecte car nous souhaitons aller vers des projets toujours plus écologiques », nous ont-ils affirmé pour conclure.
ET VOUS ?
Que pensez-vous de cette rénovation ? Partagez vos commentaires ci-dessous.
Trouvez des professionnels près de chez vous sur Houzz
Plus de photos déco
Découvrez d’autres Avant/Après
Avec ce projet, l’architecte Jean-Baptiste Couty et son associée Laura Sas signent leur attachement au matériau bois. « Le bois local, c’est notre pâte. On est très attaché à son emploi pour sa facilité de mise en œuvre et son caractère durable. Cela fait sens dans notre travail d’architecte car nous souhaitons aller vers des projets toujours plus écologiques », nous ont-ils affirmé pour conclure.
ET VOUS ?
Que pensez-vous de cette rénovation ? Partagez vos commentaires ci-dessous.
Trouvez des professionnels près de chez vous sur Houzz
Plus de photos déco
Découvrez d’autres Avant/Après




























Qui vit ici : une famille avec deux enfants de 4 et 8 ans
Emplacement : Mérignac
Superficie : 160 m² ; surface de plancher : 70 m²
Durée des travaux : 5 mois
Date de livraison : juin 2020
Architectes : Acosa Architectes (Jean-Baptiste Couty et Laura Sas)
Menuiserie : Guillaume Aubert
Budget rénovation intérieure : 105 000 euros (dont 45 000 euros pour l’agencement menuisé)
Crédit photo : Kevin Biette