Avant/Après : Standard hôtelier pour loft atypique dans le Marais
À Paris, ces bureaux morcelés en espaces disparates ont été mués en 4 mois en un loft luxueux par l'agence Décodheure
Cet investisseur passionné de déco a eu l’opportunité de racheter une surface de bureaux en plein cœur du Marais qu’il entend transformer en un appartement haut de gamme destiné à des étrangers. Pour apporter une « vision » à cet endroit morcelé en trois niveaux et à cheval sur deux immeubles bien différents, il a fait appel à une agence nantaise d’architecture intérieure avec laquelle il a déjà collaboré et dont il garde les meilleurs souvenirs. Loin de la partition pop dans laquelle ils aiment souvent s’exprimer, les créatifs de Décodheure signent ici un loft haut de gamme aux standards hôteliers, dans un camaïeu de teintes sobres et contrastées, aussi inspirant qu’élégant. Pierre-Edouard Milochau, l’un des deux fondateurs, nous a révélé les secrets de cette adresse bien gardée.
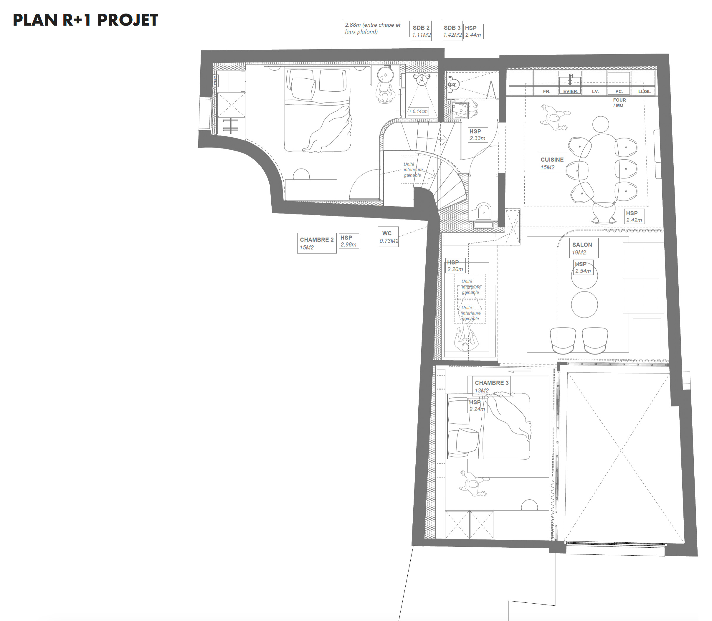
Plan du niveau le plus haut après travaux – La chambre sur la gauche est située à l’entresol
Situé place Thorigny, à deux pas du musée Picasso, ce bien de 95 m² réparti sur trois niveaux bénéficie d’un emplacement rêvé, au cœur d’un quartier préservé, digne du décor de la série Emily in Paris. Lors de l’acquisition de ces anciens bureaux fin 2023, leur propriétaire avait une motivation claire : « Il faut être prêts pour les JO ! »
Après l’attribution du projet à Decodheure, une agence d’architecture d’intérieur nantaise avec laquelle il avait déjà collaboré, les architectes d’intérieur Sandie Perraud et Pierre-Edouard Milochau découvrent une surface morcelée, atypique à bien des égards. « Nous avions trois niveaux, deux entrées et une répartition curieuse, à cheval sur deux immeubles : l’un datant de 1900, l’autre des années 1980. Une belle configuration, mais qui nécessitait d’être totalement réorganisée pour coller aux standards de la location haut de gamme », explique Pierre-Edouard Milochau.
Trouvez un architecte d’intérieur près de chez vous sur Houzz
Situé place Thorigny, à deux pas du musée Picasso, ce bien de 95 m² réparti sur trois niveaux bénéficie d’un emplacement rêvé, au cœur d’un quartier préservé, digne du décor de la série Emily in Paris. Lors de l’acquisition de ces anciens bureaux fin 2023, leur propriétaire avait une motivation claire : « Il faut être prêts pour les JO ! »
Après l’attribution du projet à Decodheure, une agence d’architecture d’intérieur nantaise avec laquelle il avait déjà collaboré, les architectes d’intérieur Sandie Perraud et Pierre-Edouard Milochau découvrent une surface morcelée, atypique à bien des égards. « Nous avions trois niveaux, deux entrées et une répartition curieuse, à cheval sur deux immeubles : l’un datant de 1900, l’autre des années 1980. Une belle configuration, mais qui nécessitait d’être totalement réorganisée pour coller aux standards de la location haut de gamme », explique Pierre-Edouard Milochau.
Trouvez un architecte d’intérieur près de chez vous sur Houzz
Avant. La pièce principale se situe au niveau le plus haut.
Malgré ce morcellement, les architectes d’intérieur repèrent immédiatement des atouts notables : une grande verrière angulaire au rez-de-jardin et à l’étage, un puits de lumière sur le niveau supérieur (photo), et un jardin intérieur de 20 m² confèrent à ces bureaux une véritable bouffée d’air frais en plein cœur de Paris. Mais le contraste entre l’aile des années 1900, sombre et vieillotte, et celle construite dans les années 1980, au fort caractère architectural, ne pouvait être ignoré. « Nous avons décidé d’exploiter cette dualité et d’unifier l’ensemble à travers une esthétique contemporaine. Cela voulait dire : mettre en scène les volumes et travailler une palette sophistiquée et feutrée en mettant en avant de beaux matériaux », explique le duo. Ainsi, les tons neutres et naturels, rehaussés de contrastes marqués, ont servi de fil conducteur pour transformer ces anciens bureaux en un appartement au style hôtelier.
Malgré ce morcellement, les architectes d’intérieur repèrent immédiatement des atouts notables : une grande verrière angulaire au rez-de-jardin et à l’étage, un puits de lumière sur le niveau supérieur (photo), et un jardin intérieur de 20 m² confèrent à ces bureaux une véritable bouffée d’air frais en plein cœur de Paris. Mais le contraste entre l’aile des années 1900, sombre et vieillotte, et celle construite dans les années 1980, au fort caractère architectural, ne pouvait être ignoré. « Nous avons décidé d’exploiter cette dualité et d’unifier l’ensemble à travers une esthétique contemporaine. Cela voulait dire : mettre en scène les volumes et travailler une palette sophistiquée et feutrée en mettant en avant de beaux matériaux », explique le duo. Ainsi, les tons neutres et naturels, rehaussés de contrastes marqués, ont servi de fil conducteur pour transformer ces anciens bureaux en un appartement au style hôtelier.
Après. Pour comprendre toute l’ampleur du projet, commençons avec la visite par les pièces de vie de l’appartement au niveau supérieur. Située au sommet de la cage d’escalier, la cuisine est la première pièce à révéler l’âme du nouveau lieu. Si une cuisine figurait déjà à cette place, tout a été repensé depuis ses volumes jusqu’aux moindres détails. « Le mur en biseau a été ajusté pour redonner une orthogonalité et du confort visuel à la pièce. Nous avons dessiné cette cuisine en privilégiant des lignes légères et du mobilier fonctionnel sans colonnes volumineuses », explique Pierre-Edouard.
Plus d’idées pour une cuisine contemporaine sur Houzz
Plus d’idées pour une cuisine contemporaine sur Houzz
Le parti pris ? Une composition en deux bandeaux où la matérialité devient un véritable terrain d’expression artistique. Les façades en mélaminé Master Oak, une finition bois texturée d’Unilin, côtoient une crédence pleine hauteur en terrazzo imitation Ceppo di Gré, le tout mis en valeur par un plan de travail en granit noir du Zimbabwe finition cuir, épais et cossu. « Nous avons particulièrement travaillé sur les jeux de lumière, les proportions et les détails, comme le débord des joues ou les accessoires discrets de la crédence », ajoute-t-il.
Sur le mur, les assiettes en forme de miroirs de sorcière inversés sont l’un des effets décoratifs que l’agence apprécie. « Multipliés, ces objets anecdotiques évoquent l’art et la lumière. Dans ce loft, notre travail sur la circulation de la lumière et les jeux de perspectives a été constant », insiste l’architecte d’intérieur.
Four : micro-ondes combiné ; pot en papier mâché : Zara Home ; chaise grise : Moustache
Four : micro-ondes combiné ; pot en papier mâché : Zara Home ; chaise grise : Moustache
Après. Attenant à la cuisine, le salon s’étend le long d’une verrière qui domine le jardin. Ici, l’atmosphère se joue dans une harmonie de teintes naturelles et de contrastes marqués entre le clair et le foncé. Pierre-Edouard évoque un mobilier à la fois flexible et pratique pour répondre aux différents scénarios d’une location : « Le canapé est convertible, et nous avons opté pour de petites tables mobiles faciles à reconfigurer. Nous cherchions un effet à la fois théâtral et facile à vivre ».
Vous êtes en quête d'un artisan pour votre projet en rénovation complète ?
Nous vous aidons à trouver les meilleurs pros
Nous vous aidons à trouver les meilleurs pros
Les matières et textures y jouent également un rôle crucial : un canapé en lin mélangé, des fauteuils façon Bertoia tout en transparence et des objets en marbre qui évoquent un artisanat raffiné.
Après. Parfait exemple de contrainte technique transformée en élément décoratif, une niche au cœur du séjour dissimule sous son plafond abaissé les moteurs de climatisation, tout en devenant une alcôve cosy et fonctionnelle.
Équipée d’une bibliothèque, d’une télévision et d’un système de sonorisation, cette bulle invite à la détente après une journée à déambuler dans les rues parisiennes.
Derrière le salon, la seule chambre de l’étage a été aménagée avec des standards hôteliers : lit de 160×190, armoire, bureau, téléviseur.
Pour unifier l’ensemble de l’appartement, le sol a été recouvert de dalles en Bolon, un vinyle tissé haut de gamme prisé dans l’hôtellerie. « Ce matériau fabriqué en Suède répond à plusieurs contraintes : sa pose rapide nous a permis de respecter les délais serrés, et son aspect lissé et durable rassurait le maître d’ouvrage davantage que le un béton ciré. Comme il est en dalles, il est facilement remplaçable et en prime lavable, même à l’eau de Javel », explique Pierre-Edouard.
Pour unifier l’ensemble de l’appartement, le sol a été recouvert de dalles en Bolon, un vinyle tissé haut de gamme prisé dans l’hôtellerie. « Ce matériau fabriqué en Suède répond à plusieurs contraintes : sa pose rapide nous a permis de respecter les délais serrés, et son aspect lissé et durable rassurait le maître d’ouvrage davantage que le un béton ciré. Comme il est en dalles, il est facilement remplaçable et en prime lavable, même à l’eau de Javel », explique Pierre-Edouard.
Les tapis sont en polypropylène, un autre matériau facilement lavable et détachable. « Nous avons fait ourler des moquettes chez Saint-Maclou, ce qui est une vraie astuce budget », partage l’architecte d’intérieur.
L’idée originale de Pierre-Edouard et Sandie pour habiller sa tête de lit – un papier peint haute définition représentant Mona Lisa en format XXL – est révélatrice de leur travail. « La Joconde est devenue l’hôtesse de ces lieux. Elle accueille les visiteurs en incarnant l’élégance française et en les invitant à se créer des souvenirs de Paris, ne serait-ce qu’avec un selfie. Elle reflète également l’esprit de l’agence : attirer l’attention par du sérieux sans jamais faire fi d’une pointe d’humour », explique Pierre-Edouard.
Après. En repassant devant la cuisine, nous découvrons les toilettes, un ajout qui a demandé une véritable prouesse technique.
Dans ce bâtiment, seule une colonne d’évacuation existait à l’origine, contraignant les architectes à positionner les deux sanitaires l’un au-dessus de l’autre. Leur intégration a été réalisée avec élégance.
En descendant quelques marches, nous accédons à la seconde suite, aménagée dans l’entresol, une partie ancienne du bâtiment. Cet espace, autrefois entrée aveugle, a été entièrement repensé pour maximiser la lumière et le confort.
La porte en verre flûte de la chambre permet de capter la lumière naturelle en second jour, provenant du puits de lumière situé au-dessus de la cuisine.
Après. « Brillance, mouvement et jeux de lumière », ont été les maîtres mots pour transformer l’ancien entresol sombre en une suite chaleureuse et lumineuse.
Suspension : Aim de Flos
Suspension : Aim de Flos
La salle de bains noire, habillée de carreaux Marazzi, s’inspire de celles de Standard Hotel sur la High Line à New York, tandis que les panneaux muraux en Inox bosselé de la tête de lit évoquent le design des années 1970, notamment l’époque Space Age. « Nous avons voulu mélanger les inspirations pour créer un espace douillet et élégant qui parle à beaucoup de monde en fonction de sa culture personnelle », confie Pierre-Edouard.
La salle de bains, compacte mais parfaitement optimisée, regorge d’astuces pratiques : un meuble suspendu, une robinetterie intégrée, des flacons encastrés et un ruban LED dans la douche.
En descendant encore quelques marches, nous atteignons le rez-de-jardin, où se trouve l’entrée de l’appartement. Cette entrée, accessible via le jardin et la verrière, accueille les visiteurs de manière confortable avec sa banquette intégrée. La bibliothèque rétroéclairée, remplie de livres d’art, se veut un prélude à leurs visites parisiennes.
Après. À ce niveau, nous découvrons la troisième suite, largement ouverte sur le jardin par sa verrière. Elle bénéficie de tout le confort avec un lit de 160×200 centimètres faisant face à un coin petit déjeuner avec banquette et sa salle de bains attenante avec partie dressing.
Pour s’opposer à l’autre suite où la brillance était le credo, c’est ici la matérialité mate, poreuse et calcaire, qui a été explorée. « Le ton mastic chaud des murs prend des accents de beige ou de gris suivant la lumière, apportant dans ces lieux la vibration que nous avons recherchée », explique l’architecte d’intérieur.
Avant. La salle de bains de cette suite avant travaux.
Après. Les volumes de cette ancienne chambre avec salle de bains ont été repensés pour donner une impression haut de gamme. Les épaisseurs de cloisons ont été augmentées et les plinthes retravaillées en terrazzo.
Par ailleurs, comme dans les autres chambres, le mobilier a été repensé « sur mesure mais dans une approche de pose libre afin que le déploiement soit rapide et efficace », partage Pierre-Edouard.
Après. Enfin, de l’autre côté de l’entrée, une petite pièce donnant elle aussi sur la verrière du rez-de-jardin a été convertie en salle de sport. Une idée des architectes d’intérieur pour valoriser le bien, hautement appréciée par le propriétaire. Un sauna Boreal a été intégré au fond de la pièce, ainsi que des agrès, tapis de yoga et appareils de fitness.
Avant. Les bureaux s’organisaient autour de ce « jardin », qui intégrait une zone centrale décaissée.
Afin d’optimiser l’espace extérieur, le sol a été entièrement remis à niveau et recouvert de lames en composite, formant une vaste terrasse qui prolonge harmonieusement l’intérieur. Le mur latéral a conservé sa végétalisation, réduisant ainsi l’entretien tout en embellissant la vue et en allongeant l’espace. Grâce aux plantes grimpantes qui ont été multipliées, ce mur a vocation à se transformer en un véritable jardin vertical, offrant également à l’étage supérieur une agréable bouffée de verdure.
Afin d’optimiser l’espace extérieur, le sol a été entièrement remis à niveau et recouvert de lames en composite, formant une vaste terrasse qui prolonge harmonieusement l’intérieur. Le mur latéral a conservé sa végétalisation, réduisant ainsi l’entretien tout en embellissant la vue et en allongeant l’espace. Grâce aux plantes grimpantes qui ont été multipliées, ce mur a vocation à se transformer en un véritable jardin vertical, offrant également à l’étage supérieur une agréable bouffée de verdure.
Après. Avec ce projet, Décodheure s’est lancé dans un défi ambitieux : transformer un espace morcelé et atypique en un appartement haut de gamme en seulement six mois, études comprises. « Ce projet a mobilisé de nombreux savoir-faire : une réflexion stratégique sur l’orientation, la rentabilité et le déploiement rapide des travaux en à peine quatre mois. Nous sommes fiers d’avoir réussi à transmettre notre vision de l’hospitalité », conclut Pierre-Edouard Milochau.
Dès sa mise en location, le loft a rencontré un succès immédiat, séduisant une clientèle internationale exigeante. « Nous avons même reçu à l’agence un message de félicitations d’un architecte américain qui a séjourné ici. C’est une immense satisfaction et une belle reconnaissance pour notre travail », ajoute-t-il.
ET VOUS ?
Que pensez-vous de cette transformations hors norme ?
Vous êtes en quête d’un architecte d’intérieur ? Houzz partage son annuaire exclusif pour que vous mettiez toutes les chances de votre côté. Savez-vous pourquoi les architectes d’intérieur qui utilisent Houzz Pro ont de meilleures chances de vous faire atteindre vos objectifs ? Ils utilisent notre logiciel tout-en-un et vous pourrez en profiter grâce à eux. Grâce aux outils de visualisation inclus dans l’outil, vous pourrez imaginer votre projet clairement et rapidement. Le Portail Client fluidifie quant à lui vos communications avec le professionnel tout au long du projet, quand la signature des devis en ligne simplifie vos démarches.
Dès sa mise en location, le loft a rencontré un succès immédiat, séduisant une clientèle internationale exigeante. « Nous avons même reçu à l’agence un message de félicitations d’un architecte américain qui a séjourné ici. C’est une immense satisfaction et une belle reconnaissance pour notre travail », ajoute-t-il.
ET VOUS ?
Que pensez-vous de cette transformations hors norme ?
Vous êtes en quête d’un architecte d’intérieur ? Houzz partage son annuaire exclusif pour que vous mettiez toutes les chances de votre côté. Savez-vous pourquoi les architectes d’intérieur qui utilisent Houzz Pro ont de meilleures chances de vous faire atteindre vos objectifs ? Ils utilisent notre logiciel tout-en-un et vous pourrez en profiter grâce à eux. Grâce aux outils de visualisation inclus dans l’outil, vous pourrez imaginer votre projet clairement et rapidement. Le Portail Client fluidifie quant à lui vos communications avec le professionnel tout au long du projet, quand la signature des devis en ligne simplifie vos démarches.










































Qui habite ici ? Il s’agit d’une location haut de gamme
Emplacement : dans le quartier du Marais à Paris
Superficie : 95 m²
Durée des travaux : 4 mois
Date de livraison : juin 2024
Architectes d’intérieur : Sandie Perraud et Pierre-Edouard Milochau de Decodheure (photo ci-contre)
Budget : 250 000 €
Photos : Decodheure / Caroline Morin