Visites Privées
Au bord de l'eau
Projets nés sur Houzz
Dossiers populaires
Avant/Après : Sur Oléron, une villa aux airs de cabane de pêcheur
La métamorphose d'une maison sans charme en une belle villa maritime, où styles cargo et indus' se marient à la couleur
Ce couple habitait depuis de longues années l’île d’Oléron, dans un pavillon de plain-pied, avec véranda et jardin. La construction à ossature bois assez récente, crépie en blanc et couverte de tuiles, ne souffrait pas tant de carences thermiques que d’un manque de charme évident. La propriétaire, peintre à ses heures, et son époux, amateur de design industriel, avaient envie de s’offrir une charmante maison typique de l’île, dans le style des cabanes de pêcheur colorées du port de La Cotinière. S’étant mis en quête d’un tel bien pour y couler une heureuse retraite, ils se rendent vite compte qu’ils ne trouveront ni autant de superficie, ni une meilleure situation, que celles de leur maison à deux pas de la mer. C’est ainsi qu’ils conçoivent l’idée d’une rénovation totale et, pour les accompagner dans ce projet ambitieux, repèrent sur Houzz l’architecte d’intérieur Nadège Nari, attirés par son talent pour réveiller les intérieurs et les personnaliser au plus près des envies des maîtres d’ouvrage. Attention, avant/après bluffant !
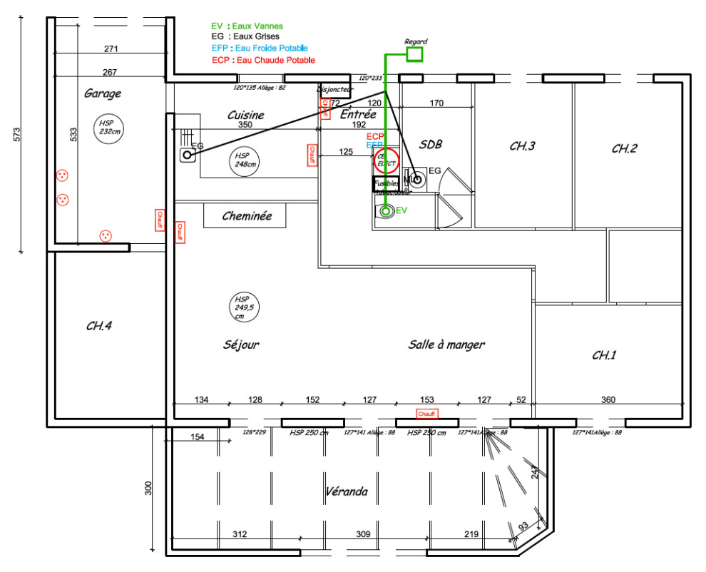
Plan de la maison avant travaux
Situé au milieu d’un charmant jardin, ce pavillon de plain-pied manquait de caractère, malgré ses 135 m² habitables. Il comprenait également un garage de 20 m² et une véranda de 28 m² ajoutée à l’arrière de la maison.
À l’origine, la maison comptait trois chambres, mais les propriétaires l’avaient modifiée en transformant l’arrière-garage en une quatrième, servant d’atelier de peinture ou, parfois, de chambre d’amis. Cependant, maintenant que leurs enfants avaient quitté le foyer, les propriétaires, avec leurs âmes d’artistes, étaient à la recherche d’un environnement qui refléterait davantage leur personnalité.
Situé au milieu d’un charmant jardin, ce pavillon de plain-pied manquait de caractère, malgré ses 135 m² habitables. Il comprenait également un garage de 20 m² et une véranda de 28 m² ajoutée à l’arrière de la maison.
À l’origine, la maison comptait trois chambres, mais les propriétaires l’avaient modifiée en transformant l’arrière-garage en une quatrième, servant d’atelier de peinture ou, parfois, de chambre d’amis. Cependant, maintenant que leurs enfants avaient quitté le foyer, les propriétaires, avec leurs âmes d’artistes, étaient à la recherche d’un environnement qui refléterait davantage leur personnalité.
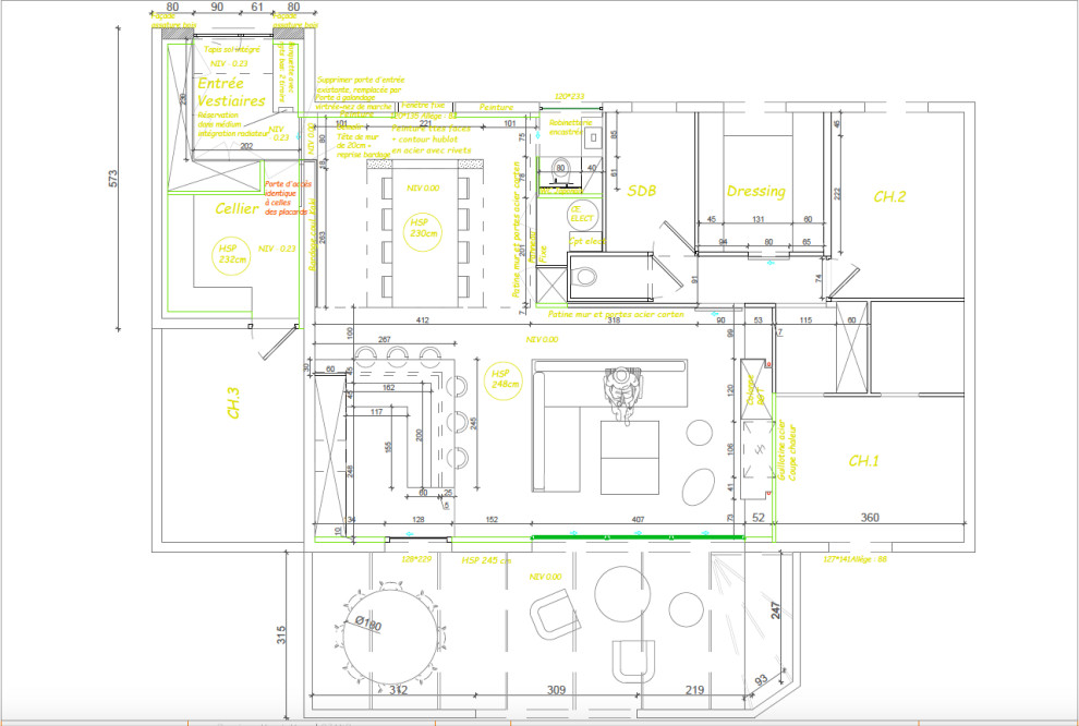
Plan de la maison après travaux
En consultant le plan après travaux, la maison peut sembler avoir gentiment évolué, avec la transformation d’une chambre en dressing, par exemple. Mais sur le terrain, l’oléronaise a vécu un big bang qui l’a plongée dans un an de travaux pour renaître totalement transformée sous la houlette de Nadège Nari. L’architecte d’intérieur, établie à La Rochelle depuis une dizaine d’années, a en effet insufflé de multiples changements aussi bien sur la structure que l’ambiance, offrant une nouvelle vie à la maison.
Trouvez un architecte d’intérieur près de chez vous sur Houzz
En consultant le plan après travaux, la maison peut sembler avoir gentiment évolué, avec la transformation d’une chambre en dressing, par exemple. Mais sur le terrain, l’oléronaise a vécu un big bang qui l’a plongée dans un an de travaux pour renaître totalement transformée sous la houlette de Nadège Nari. L’architecte d’intérieur, établie à La Rochelle depuis une dizaine d’années, a en effet insufflé de multiples changements aussi bien sur la structure que l’ambiance, offrant une nouvelle vie à la maison.
Trouvez un architecte d’intérieur près de chez vous sur Houzz
Avant. Voici la façade d’origine de la construction années 1980 sans guère de cachet. Nous distinguons sur la droite le garage, fermé par une baie coulissante. La porte d’entrée se trouve à gauche de la fenêtre. « Mes clients avaient beaucoup de goût et de vraies envies de couleurs. Ils rêvaient d’une maison de caractère, typique de l’île », se remémore Nadège Nari.
Après. Dans l’esprit d’une cabane de pêcheur, celle-ci a suggéré de couvrir la façade de la maison de bardage à couvre-joints peint en noir. Cette teinte emblématique des maisons de saulniers de l’île garantit une élégance renouvelée, tout en préservant l’essence même de l’architecture locale.
Puisant dans l’esprit atelier qui régnait dans cette maison occupée par une peintre et un amoureux de la pêche, l’architecte d’intérieur en a fait son fil conducteur. « Nous avons filé la métaphore du style cargo, le style industriel du bord de mer, qui leur plaisait beaucoup », glisse-t-elle.
Puisant dans l’esprit atelier qui régnait dans cette maison occupée par une peintre et un amoureux de la pêche, l’architecte d’intérieur en a fait son fil conducteur. « Nous avons filé la métaphore du style cargo, le style industriel du bord de mer, qui leur plaisait beaucoup », glisse-t-elle.
L’entrée du garage est devenue la nouvelle entrée de la maison, parée d’une porte atelier en métal à double battant réalisée sur mesure. En amont, la terrasse existante a été négligemment aménagée, comme pour un retour de pêche. Lampe-tempête et épuisettes se mêlent aux bacs en tôle ondulée d’où débordent les euphorbes aux couleurs acidulées.
Après. Moyennant une « déclaration préalable » auprès des services de la mairie, le garage existant a été mué en entrée et en cellier, générant de la surface plancher supplémentaire. « Nous avons gagné une dizaine de m², amenant la superficie habitable de la maison à 145 m² », confirme Nadège.
Dans la nouvelle entrée figure désormais de nombreux rangements en médium laqué, fabriqués sur mesure par un menuisier, dont cette banquette-coffre pour se déchausser confortablement. Une porte de placard permet d’accéder de manière secrète au cellier et à l’atelier.
À l’intérieur, l’ambiance tristounette a été supplantée par une explosion colorée, correspondant au profond désir des propriétaires. Nadège Nari a puisé dans la palette naturelle des couleurs de l’île d’Oléron, tel le vert sauge appliqué sur le plafond bardé de bois, ou le jaune ajonc qui habille les meubles sur mesure en médium.
Référence peinture vert sauge : Sage Green n° 80, chez Little Green en alternance avec vert kaki : Farrow&Ball bancha (NCS S6005 G50Y)
Dans la nouvelle entrée figure désormais de nombreux rangements en médium laqué, fabriqués sur mesure par un menuisier, dont cette banquette-coffre pour se déchausser confortablement. Une porte de placard permet d’accéder de manière secrète au cellier et à l’atelier.
À l’intérieur, l’ambiance tristounette a été supplantée par une explosion colorée, correspondant au profond désir des propriétaires. Nadège Nari a puisé dans la palette naturelle des couleurs de l’île d’Oléron, tel le vert sauge appliqué sur le plafond bardé de bois, ou le jaune ajonc qui habille les meubles sur mesure en médium.
Référence peinture vert sauge : Sage Green n° 80, chez Little Green en alternance avec vert kaki : Farrow&Ball bancha (NCS S6005 G50Y)
Après. Aujourd’hui, l’entrée créée dans l’ancien garage se prolonge par ce sas, voulu comme « une séparation et non un couloir qui guide le visiteur soit vers les toilettes, soit vers la salle à manger. »
Au fond de ce sas, les toilettes ont été joliment scénarisées. « Nous avons fait en sorte de pouvoir laisser la porte coulissante ouverte en ne laissant visible que le lave-mains. Le fond de scène est mis en valeur par ces carreaux de ciment Mosaic Factory sur lesquels nous avons craqué et qui sont devenus un fil conducteur de cette rénovation », explique la professionnelle.
Au fond de ce sas, les toilettes ont été joliment scénarisées. « Nous avons fait en sorte de pouvoir laisser la porte coulissante ouverte en ne laissant visible que le lave-mains. Le fond de scène est mis en valeur par ces carreaux de ciment Mosaic Factory sur lesquels nous avons craqué et qui sont devenus un fil conducteur de cette rénovation », explique la professionnelle.
Derrière ces très esthétiques toilettes placées au niveau de l’ancienne entrée, se cache une plaisante anecdote. Certains savent mettre de l’importance à des choses simples, comme contempler leur jardin depuis ce lieu où l’on passe du temps quotidiennement. Ces propriétaires ont ainsi demandé à leur architecte d’intérieur, non seulement de soigner le style des lieux, mais également de transformer l’ex-porte d’entrée en haute fenêtre pour profiter de leur extérieur en toute saison.
« Ce sont des toilettes toutes options. Nous avons intégré des sanitaires lavants japonais et un vitrage réfléchissant type Antelio pour admirer le jardin sans être vus sur les WC depuis l’extérieur », confirme Nadège avec amusement.
« Ce sont des toilettes toutes options. Nous avons intégré des sanitaires lavants japonais et un vitrage réfléchissant type Antelio pour admirer le jardin sans être vus sur les WC depuis l’extérieur », confirme Nadège avec amusement.
Après. Délestant la maison de ce couloir, Nadège Nari a travaillé à pousser les murs, pour donner plus d’aisance à la pièce de vie qui se prolonge jusqu’à la véranda à l’arrière de la maison, ce qui lui confère une exposition traversante.
Au sol, un mortier fin lissé, imitation béton ciré, recouvre en continuité le sol depuis l’entrée jusqu’à la véranda, participant à faire paraître l’espace plus grand. « Ce n’est pas un véritable béton ciré coulé mais un revêtement millimétrique très résistant, une super finition, douce aux pieds, qui s’entretient facilement », estime l’architecte d’intérieur.
Les enduits décoratifs : béton ciré ou chaux, lequel choisir ?
Au sol, un mortier fin lissé, imitation béton ciré, recouvre en continuité le sol depuis l’entrée jusqu’à la véranda, participant à faire paraître l’espace plus grand. « Ce n’est pas un véritable béton ciré coulé mais un revêtement millimétrique très résistant, une super finition, douce aux pieds, qui s’entretient facilement », estime l’architecte d’intérieur.
Les enduits décoratifs : béton ciré ou chaux, lequel choisir ?
La professionnelle a également fait un gros travail d’étude de la luminosité pour maximiser les apports de lumière dans cet intérieur précédemment cloisonné et sombre. Ainsi, dans la zone de l’entrée et jusqu’à la table de la salle à manger, un faux plafond en bardage bois crée une zone plus intime, accueillant en son centre un miroir qui surplombe la table à manger. « C’est un miroir légèrement fumé qui crée un puits de lumière douce au niveau de la table et donne une impression de hauteur. Au centre, l’éclairage LED a été chiné », explique-t-elle.
Dans la salle à manger, qui a pris la place de l’ancienne cuisine, ce hublot nous interpelle. Derrière celui-ci se trouve une autre anecdote. « Mes clients avaient l’habitude de profiter du coucher du soleil depuis la fenêtre de leur cuisine, laquelle a été transformée en châssis fixe pour éclairer le sas d’entrée. Grâce à ce hublot, ils profitent désormais de l’orientation plein ouest depuis leur pièce de vie », explique Nadège.
Fabriquée par un métallier en acier galvanisé, cette fenêtre ronde est rivetée sur les bords à la manière d’un hublot de bateau. « Pour faire ressurgir le style cargo ! », glisse la pro. Bien calée sur cette cloison, la salle à manger est composée d’une table industrielle que possédait le couple et de nouveaux fauteuils confortables, en finition alcantara. À l’arrière, le tableau représentant un poisson est signé Catherine Lozano.
Assises : Cocktail scandinave
Assises : Cocktail scandinave
Se prolongeant depuis la porte coulissante des toilettes jusqu’à la cheminée du salon, une cloison en L trace la séparation avec l’espace nuit. Sa finition en acier Corten est une nouvelle concession au style cargo. « Les propriétaires adoraient ce style bateau rouillé et cette couleur chaude qui rappelle les couleurs de l’automne », justifie Nadège.
L’acier Corten est ce métal rouillé que l’on utilise souvent en architecture contemporaine dont le nom provient de ses deux principales propriétés :
CORrosion resistance (résistance à la corrosion) et TENsile strength (résistance à la traction). « Ici, ce n’est pas du véritable acier Corten mais du Muraltech©, un oxyde d’acier imitant l’acier Corten, apposé en couche de 3 à 4 millimètres sur des panneaux de MDF. Cette finition réalisée par l’Atelier Alchimie à Niort est stabilisée, lisse et douce et facilement nettoyable », précise Nadège Nari devant cette porte industrielle qui cache l’accès aux pièces de sommeil et à la salle de bains.
CORrosion resistance (résistance à la corrosion) et TENsile strength (résistance à la traction). « Ici, ce n’est pas du véritable acier Corten mais du Muraltech©, un oxyde d’acier imitant l’acier Corten, apposé en couche de 3 à 4 millimètres sur des panneaux de MDF. Cette finition réalisée par l’Atelier Alchimie à Niort est stabilisée, lisse et douce et facilement nettoyable », précise Nadège Nari devant cette porte industrielle qui cache l’accès aux pièces de sommeil et à la salle de bains.
Sur le pourtour du bardage du plafond, un discret éclairage LED de température chaude permet de venir lécher la cloison rouille, apportant une ambiance très chaleureuse.
Après. La cuisine actuelle n’a pas été placée au niveau de la cuisine d’antan mais de l’ancien salon. La composition en est très graphique, comme en a l’habitude Nadège Nari. Conçue en U, la cuisine offre une grande surface de travail et de rangement, ainsi qu’un plan bar qui crée la séparation avec le séjour.
Le style industriel a été privilégié par les propriétaires amoureux d’artisanat. Les tabourets de bar ont été fabriqués par l’artisan métallier Charles Roland mobilier et la lampe industrielle sur le bar par l’artiste Stéphane Kempf (« lumineuses idées »).
Le style industriel a été privilégié par les propriétaires amoureux d’artisanat. Les tabourets de bar ont été fabriqués par l’artisan métallier Charles Roland mobilier et la lampe industrielle sur le bar par l’artiste Stéphane Kempf (« lumineuses idées »).
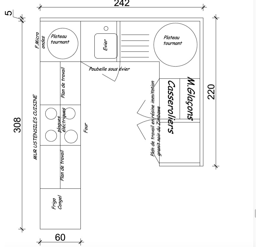
Plan de la cuisine
L’architecte d’intérieur a conçu intégralement le plan de cette cuisine qui a été réalisée sur mesure par le menuisier.
Travailler avec un menuisier, tout ce qu’il faut savoir
L’architecte d’intérieur a conçu intégralement le plan de cette cuisine qui a été réalisée sur mesure par le menuisier.
Travailler avec un menuisier, tout ce qu’il faut savoir
La palette de couleurs contrastante, en vert sauge et Corten orangé, lui confère une forte présence. « On retrouve sur la crédence notre carreau de ciment coup de cœur et, au-dessus, une bande de miroir pour apporter de la profondeur et de la lumière. C’est quelque chose que je fais souvent dans mes cuisines », souligne Nadège.
Après. Pour définir clairement cet espace cuisine et lui conférer une ambiance chaleureuse, le plafond a été abaissé à une hauteur de 2,30 mètres. Un faux plafond lisse d’un noir mat a été choisi en harmonie avec le bar, en résine, qui imite l’aspect du granit noir du Zimbabwe. Ce contraste saisissant se marie parfaitement avec le revêtement rouillé, patiné à la manière du Corten. Autour du bar, des étagères en hauteur ont été installées, rappelant l’esthétique industrielle de certains bars à la mode. « Les étagères ainsi que la verrière en verre armé au vitrage sablé ont été fabriquées par le métallier », précise Nadège.
Après. Installé à la place de l’ancienne salle à manger, le salon a été repensé autour d’une cheminée, mais pas n’importe laquelle. « C’est une cheminée à double foyer qui profite au salon et à la chambre parentale placée juste derrière », indique l’architecte d’intérieur. Celle-ci a fait appel à l’installateur Scan-Line (Groupe TDL) pour installer ce foyer de la marque allemande Brunner.
Après. Pour rendre le salon encore plus chaleureux, la cheminée a été bardée de bois peint en vert, tandis que le plafond a été traité en lambris blanc ponctué de poutres vert amande. « Ici, nous avons joué sur la pleine hauteur. Nous avons fait ajouter ces poutres pour donner un charme authentique », affirme Nadège.
Au niveau du séjour, la façade de la maison a été plus largement ouverte qu’à l’origine, au moyen d’une très grande baie vitrée. « Nous avons ouvert la façade à ossature bois et fait les renforts nécessaires selon les préconisations du bureau d’études Kheops structures, toujours de très bon conseil », précise-t-elle.
Au niveau du séjour, la façade de la maison a été plus largement ouverte qu’à l’origine, au moyen d’une très grande baie vitrée. « Nous avons ouvert la façade à ossature bois et fait les renforts nécessaires selon les préconisations du bureau d’études Kheops structures, toujours de très bon conseil », précise-t-elle.
Une menuiserie sur mesure, avec encadrement alu à rupture de pont thermique, a été placée à fleur de véranda. Pendant les demi-saisons, la baie vitrée reste ouverte, ce qui offre à la maison un double séjour.
Pour suggérer cette continuité du séjour, un banc fabriqué sur mesure s’étire dans le prolongement de la cheminée côté véranda. De même, un coffrage servant de tablette, bardé de bois peint en vert, se prolonge sur son pourtour.
Pour suggérer cette continuité du séjour, un banc fabriqué sur mesure s’étire dans le prolongement de la cheminée côté véranda. De même, un coffrage servant de tablette, bardé de bois peint en vert, se prolonge sur son pourtour.
Les propriétaires ont conservé leur table basse de style industriel et investi dans un confortable canapé en cuir fauve, pour se marier harmonieusement avec les façades Corten.
Canapé Cadix de iDsofa, chez Côté Meubles à Saint-Pierre D’Oléron
Canapé Cadix de iDsofa, chez Côté Meubles à Saint-Pierre D’Oléron
Après. La véranda n’a pas été remplacée mais semble avoir changé du tout au tout grâce à plusieurs améliorations préconisées par Nadège Nari. Cette façade arrière de la maison a été bardée en noir, de la même manière que la façade principale, ce qui offre désormais une très élégante zone d’affichage pour les tableaux de la propriétaire.
Vous êtes en quête d'un artisan pour votre projet en rénovation complète ?
Nous vous aidons à trouver les meilleurs pros
Nous vous aidons à trouver les meilleurs pros
Des voiles d’ombrage blanches et noires ont été tendues au plafond pour rester dans des teintes chic et cacher la construction vieillissante. Enfin, le sol en carrelage rose, affreusement daté années 1980, a été recouvert de mortier fin lissé, imitation béton ciré pour créer une unité avec la maison principale. Ainsi, tous les volumes sont unifiés par un même traitement du sol qui agrandit les volumes et renvoie la lumière
Dans cette enveloppe modernisée, du mobilier industriel vintage et des chaises de style bord de mer apportent cachet et authenticité.
Références décoration :
- Décorations coquillage, cercle et méduse chez Dominique Desanti à Saint-Pierre-d’Oléron (Desanti Bijoux)
- peinture de la méduse, du poisson et des flotteurs par Catherine Lozano
Références décoration :
- Décorations coquillage, cercle et méduse chez Dominique Desanti à Saint-Pierre-d’Oléron (Desanti Bijoux)
- peinture de la méduse, du poisson et des flotteurs par Catherine Lozano
Traversant le jardin et longeant un salon lounge agrémenté de chaises Adirondack, Nadège nous confie avec des étoiles plein les yeux : « Cette maison, j’ai toujours du mal à la quitter tellement elle est devenue chaleureuse. Ce projet était tout simplement passionnant, car ces clients avaient de vraies envies et beaucoup de goût. Grâce à leur implication, on a réussi à en changer radicalement l’univers et à créer une belle harmonie. C’est vraiment le genre de projet dans lequel on se sent utile et qui donne plus que jamais envie de se dépasser dans ce métier. »,
ET VOUS ?
Que pensez-vous de cette rénovation ?
ET VOUS ?
Que pensez-vous de cette rénovation ?












































Qui vit ici : un couple
Emplacement : sur l’île d’Oléron
Superficie de la maison après travaux : 145 m² + véranda de 28 m²
Date : livraison en 2022 après un an de travaux
Architecte d’intérieur : Atelier Nadège Nari
Spécialiste des effets matières : Alchimie à Niort
Budget : 236 400 euros
Photos : Florent Fauqueux