Avant/Après : Un duplex des Alpes sublimé en chalet contemporain
Ce couple résidant à l'étranger a trouvé la pro idéale pour transformer un morne duplex sur plan en chalet de rêve
À Saint-Martin-de-Belleville, dans une station familiale idéalement nichée entre Méribel et Courchevel, deux couples d’amis partagent un même rêve : celui de posséder un pied-à-terre pour savourer ensemble les joies des sports d’hiver. Ils ont opté pour l’achat de deux appartements neufs mitoyens mais l’un des couples, des quinquagénaires wallons, parents de deux adolescents en fin de lycée, souhaitent personnaliser le leur selon leurs aspirations. C’est pourquoi le promoteur Promojay les a mis en relation avec Aude Boquet, une architecte d’intérieur installée à Sallanches en Savoie. Leur collaboration a consisté au départ à affiner les plans et choisir les finitions, avant de dépasser rapidement ce cadre initial pour se transformer en une mission complète de décoration et d’ameublement sur mesure, afin de métamorphoser le duplex en un chalet chaleureux et authentique. L’architecte d’intérieur Aude Boquet nous a fait visiter les lieux qu’elle a sublimés.
Avant. La construction du duplex en cours, au moment de l’intervention d’Aude Boquet
Situé sur le domaine skiable de Courchevel, ce duplex de 128 m² avec quatre suites est un Vefa (Vente en l’état futur d’achèvement) dans son appellation juridique, soit un appartement vendu sur plan. Certains promoteurs haut de gamme, à l’image de Promojay, proposent à leurs clients de personnaliser leur bien grâce aux TMA (Travaux modificatifs acquéreurs), permettant des ajustements de plan, d’électricité et de plomberie.
Pour guider ses clients dans ces choix complexes, d’autant plus qu’ils vivent en Belgique, le promoteur les a mis en relation avec Aude Boquet, une architecte d’intérieur rompue à la rénovation et la décoration de chalets et d’appartements montagnards.
Comment gérer l’achat et l’aménagement d’un bien neuf sur plan ?
Situé sur le domaine skiable de Courchevel, ce duplex de 128 m² avec quatre suites est un Vefa (Vente en l’état futur d’achèvement) dans son appellation juridique, soit un appartement vendu sur plan. Certains promoteurs haut de gamme, à l’image de Promojay, proposent à leurs clients de personnaliser leur bien grâce aux TMA (Travaux modificatifs acquéreurs), permettant des ajustements de plan, d’électricité et de plomberie.
Pour guider ses clients dans ces choix complexes, d’autant plus qu’ils vivent en Belgique, le promoteur les a mis en relation avec Aude Boquet, une architecte d’intérieur rompue à la rénovation et la décoration de chalets et d’appartements montagnards.
Comment gérer l’achat et l’aménagement d’un bien neuf sur plan ?
Niveau 0 avant travaux (plan promoteur)
La collaboration a démarré en 2021, avant même la pose de la charpente, pour s’étendre jusqu’à quelques semaines après la livraison du programme presque deux ans après, ce qui est un délai normal d’intervention dans le cas d’une construction neuve. « Mes clients avaient déjà initié après la réservation du bien quelques modifications avec l’architecte du promoteur, comme la suppression d’une des quatre salles de bains, le déplacement de l’escalier et l’ajout d’un sauna à l’étage », expose la professionnelle.
Trouvez un architecte d’intérieur près de chez vous sur Houzz
La collaboration a démarré en 2021, avant même la pose de la charpente, pour s’étendre jusqu’à quelques semaines après la livraison du programme presque deux ans après, ce qui est un délai normal d’intervention dans le cas d’une construction neuve. « Mes clients avaient déjà initié après la réservation du bien quelques modifications avec l’architecte du promoteur, comme la suppression d’une des quatre salles de bains, le déplacement de l’escalier et l’ajout d’un sauna à l’étage », expose la professionnelle.
Trouvez un architecte d’intérieur près de chez vous sur Houzz
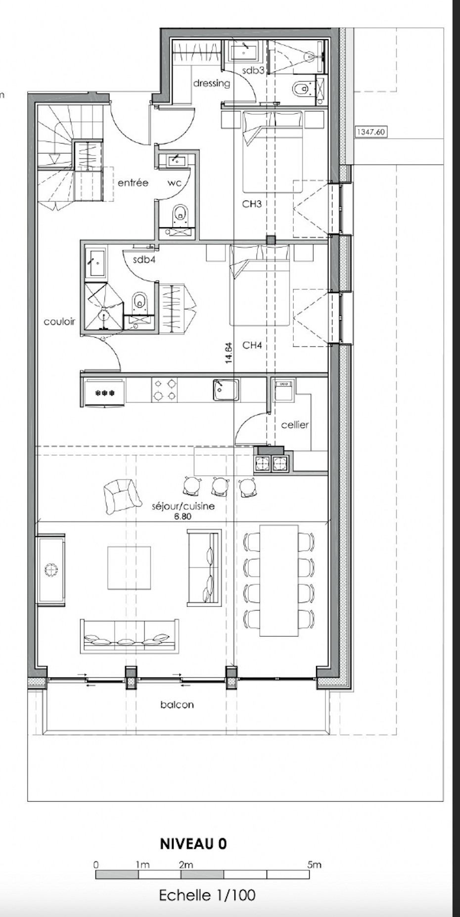
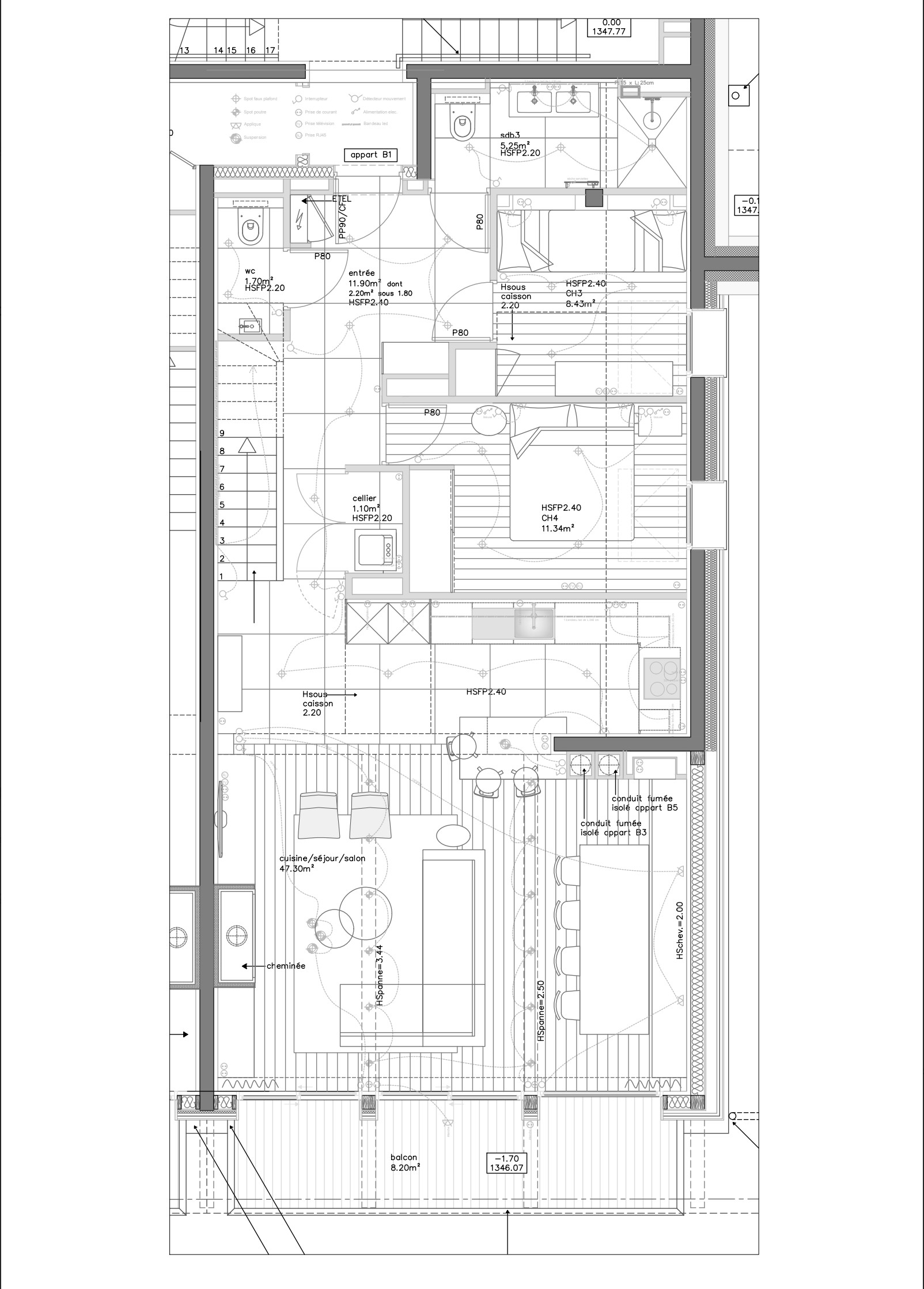
Niveau 0 après travaux
« Nous avons poursuivi ces ajustements en fluidifiant l’espace, en reconfigurant la cuisine et en repensant l’installation électrique. Notre mission a également couvert le choix de finitions, un processus particulièrement long et fastidieux dans une construction neuve, » explique-t-elle.
« Nous avons poursuivi ces ajustements en fluidifiant l’espace, en reconfigurant la cuisine et en repensant l’installation électrique. Notre mission a également couvert le choix de finitions, un processus particulièrement long et fastidieux dans une construction neuve, » explique-t-elle.
Après. Au rez-de-chaussée, l’architecte d’intérieur a repensé la circulation pour éviter l’effet couloir et créer un espace de circulation plus agréable. Une banquette a été intégrée dans l’entrée, offrant un espace pratique pour se déchausser.
Des placards sur mesure ont été aménagés sous l’escalier, permettant de ranger chaussures et manteaux. L’ensemble de la menuiserie sur mesure a été confiée à une entreprise régionale, reconnue pour son expertise. « L’entrée ne comporte pas de placard à ski, car le promoteur a prévu une pièce spéciale au rez-de-chaussée de l’immeuble », précise Aude.
Carrelage : Porcelanosa
Des placards sur mesure ont été aménagés sous l’escalier, permettant de ranger chaussures et manteaux. L’ensemble de la menuiserie sur mesure a été confiée à une entreprise régionale, reconnue pour son expertise. « L’entrée ne comporte pas de placard à ski, car le promoteur a prévu une pièce spéciale au rez-de-chaussée de l’immeuble », précise Aude.
Carrelage : Porcelanosa
Les finitions de sol et de mur ont fait l’objet d’une attention toute particulière. Chaque matériau a été soigneusement sélectionné et positionné : le carrelage habille l’entrée et la cuisine, tandis que le séjour et les chambres sont parés d’un plancher en chêne contrecollé.
« Nous avons défini la direction artistique du projet en concertation avec les clients, en pensant la pertinence de chaque matériau : épicéa brut, métal, carrelage et peinture », explique la fondatrice de l’agence Au-delà des Murs. « Comme cette famille envisageait de louer le chalet à certaines périodes, nous avons privilégié la solidité sans compromettre l’élégance », ajoute-t-elle.
Parquet chêne : Lamett
« Nous avons défini la direction artistique du projet en concertation avec les clients, en pensant la pertinence de chaque matériau : épicéa brut, métal, carrelage et peinture », explique la fondatrice de l’agence Au-delà des Murs. « Comme cette famille envisageait de louer le chalet à certaines périodes, nous avons privilégié la solidité sans compromettre l’élégance », ajoute-t-elle.
Parquet chêne : Lamett
Pour marquer les différentes zones de la pièce de vie ouverte, une arche en parement d’épicéa souligne élégamment l’entrée de la cuisine.
Dans cette cuisine, chaque détail a été pensé sur mesure. Le cellier initial du promoteur a été déplacé pour optimiser les surfaces de travail et de rangements. La zone de cuisson est astucieusement dissimulée derrière le bar en retour et beaucoup de rangements sont installés en hauteur, tandis que le dessous du plan de travail est équipé de généreux coulissants. « Nous avons travaillé sur la fonctionnalité avec un plan de travail surélevé à 98 centimètres [NDLR : contre 90 centimètres en général], adapté à la grande taille de mes clients, et deux colonnes techniques dédiées au réfrigérateur combiné et aux fours », indique Aude Boquet.
Les matériaux ont été choisis avec attention : un duo d’épicéa antique brossé et de mélaminé noir anthracite faisant écho à l’encadrement métallique noir de la cheminée. Le plan de travail et la crédence, en céramique Mont Blanc, apportent lumière et profondeur, soulignés par un rétroéclairage LED qui amplifie la clarté de l’espace. Ces teintes, inspirées de la minéralité montagneuse et de la neige, créent une continuité naturellement apaisante.
Au-delà du pilotage du second œuvre en partenariat avec le maître d’œuvre du promoteur, Aude a également été missionnée par les propriétaires pour poursuivre le travail par une sélection d’ameublement et de décoration, contribuant à donner tout son charme à ce chalet.
Façades cuisine : mélaminé gris et sapin Antik brossé dito parement bois ; Plans de travail et crédences : céramique, réf. : Mont blanc ; Électroménager : Siemens
Dans cette cuisine, chaque détail a été pensé sur mesure. Le cellier initial du promoteur a été déplacé pour optimiser les surfaces de travail et de rangements. La zone de cuisson est astucieusement dissimulée derrière le bar en retour et beaucoup de rangements sont installés en hauteur, tandis que le dessous du plan de travail est équipé de généreux coulissants. « Nous avons travaillé sur la fonctionnalité avec un plan de travail surélevé à 98 centimètres [NDLR : contre 90 centimètres en général], adapté à la grande taille de mes clients, et deux colonnes techniques dédiées au réfrigérateur combiné et aux fours », indique Aude Boquet.
Les matériaux ont été choisis avec attention : un duo d’épicéa antique brossé et de mélaminé noir anthracite faisant écho à l’encadrement métallique noir de la cheminée. Le plan de travail et la crédence, en céramique Mont Blanc, apportent lumière et profondeur, soulignés par un rétroéclairage LED qui amplifie la clarté de l’espace. Ces teintes, inspirées de la minéralité montagneuse et de la neige, créent une continuité naturellement apaisante.
Au-delà du pilotage du second œuvre en partenariat avec le maître d’œuvre du promoteur, Aude a également été missionnée par les propriétaires pour poursuivre le travail par une sélection d’ameublement et de décoration, contribuant à donner tout son charme à ce chalet.
Façades cuisine : mélaminé gris et sapin Antik brossé dito parement bois ; Plans de travail et crédences : céramique, réf. : Mont blanc ; Électroménager : Siemens
Après. Passé la cuisine, le séjour se dévoile, avec sa double hauteur et son plafond cathédrale : le bijou de cet appartement de promoteur ! Aude a sublimé cet espace en un cocon feutré, parfait pour se ressourcer après une trépidante journée de ski.
« Mes clients souhaitaient une ambiance élégante sans clinquant. Ils avaient une vraie appétence pour la déco, les matériaux sobres et vrais, et le bien-être chez soi comme l’ont souvent les gens du Nord. Ils ne voulaient pas d’un style urbain, ni tomber dans le style marmottes et cœurs rouges, mais un décor authentique avec les codes d’un chalet contemporain », explique-t-elle.
Au salon, les couleurs évoquent également la minéralité de la montagne, jouant sur une palette de gris, blanc et bleu. Le canapé gris, sélectionné chez le fournisseur belge PH Collection, complète cette ambiance.
Le plan électrique a fait l’objet d’une attention toute particulière et les luminaires ont été choisis en collaboration avec les propriétaires lors d’une visite du salon Maison&Objet à Paris Nord Villepinte. La grande suspension provenant de chez 10heures10 est une pièce centrale. Contemporain et graphique, son ruban LED attire le regard vers la hauteur impressionnante de 5 mètres du plafond cathédrale. « C’est une suspension “dimmable qui permet de régler l’intensité lumineuse et d’apporter une belle ambiance nocturne », ajoute l’architecte d’intérieur. Les autres luminaires sont majoritairement issus de marques belges comme Wewer&Ducré, notamment les appliques up & down installées dans les chambres.
Rideaux, tapis, banquettes : L’Atelier des Frères ; Luminaires : Wever&Ducré et 10Heure10 ; Canapés, fauteuil, table à manger : PH Collection
« Mes clients souhaitaient une ambiance élégante sans clinquant. Ils avaient une vraie appétence pour la déco, les matériaux sobres et vrais, et le bien-être chez soi comme l’ont souvent les gens du Nord. Ils ne voulaient pas d’un style urbain, ni tomber dans le style marmottes et cœurs rouges, mais un décor authentique avec les codes d’un chalet contemporain », explique-t-elle.
Au salon, les couleurs évoquent également la minéralité de la montagne, jouant sur une palette de gris, blanc et bleu. Le canapé gris, sélectionné chez le fournisseur belge PH Collection, complète cette ambiance.
Le plan électrique a fait l’objet d’une attention toute particulière et les luminaires ont été choisis en collaboration avec les propriétaires lors d’une visite du salon Maison&Objet à Paris Nord Villepinte. La grande suspension provenant de chez 10heures10 est une pièce centrale. Contemporain et graphique, son ruban LED attire le regard vers la hauteur impressionnante de 5 mètres du plafond cathédrale. « C’est une suspension “dimmable qui permet de régler l’intensité lumineuse et d’apporter une belle ambiance nocturne », ajoute l’architecte d’intérieur. Les autres luminaires sont majoritairement issus de marques belges comme Wewer&Ducré, notamment les appliques up & down installées dans les chambres.
Rideaux, tapis, banquettes : L’Atelier des Frères ; Luminaires : Wever&Ducré et 10Heure10 ; Canapés, fauteuil, table à manger : PH Collection
Après. Prévue par le promoteur comme un élément central de ce séjour, la cheminée a été subtilement encadrée par deux banquettes sur mesure : l’une permet de stocker le bois et offre des assises supplémentaires, l’autre sert de meuble TV et de rangement pour la box et les équipements de connectivité. La télévision, installée telle un tableau, parfait l’ensemble. « J’adore les banquettes ! Ce sont des meubles passion que j’intègre dans chacune de mes réalisations. Elles sont esthétiques, fonctionnelles et optimisent l’espace – des meubles ultimes, » confie l’architecte d’intérieur.
Parée d’épicéa brossé, la cheminée ressort bien sur le mur bleu-gris. « Nous avons utilisé les mêmes couleurs que l’extérieur pour valoriser la vue sans la dénaturer », réaffirme Aude Boquet. Les banquettes ont été habillées de coussins sur mesure par l’Atelier des Frères, tapissiers réputés localement. « Ils ont fabriqué les rideaux et les assises, et mes clients ont été très satisfaits du résultat », partage-t-elle.
Parement bois : épicéa Antik brossé ; Cheminée : M-Design
Parée d’épicéa brossé, la cheminée ressort bien sur le mur bleu-gris. « Nous avons utilisé les mêmes couleurs que l’extérieur pour valoriser la vue sans la dénaturer », réaffirme Aude Boquet. Les banquettes ont été habillées de coussins sur mesure par l’Atelier des Frères, tapissiers réputés localement. « Ils ont fabriqué les rideaux et les assises, et mes clients ont été très satisfaits du résultat », partage-t-elle.
Parement bois : épicéa Antik brossé ; Cheminée : M-Design
Vous êtes en quête d'un artisan pour votre projet en aménagement intérieur ?
Nous vous aidons à trouver les meilleurs pros
Nous vous aidons à trouver les meilleurs pros
Le coin repas à l’atmosphère chaleureuse a été aménagé dans le prolongement du séjour dans un jeu de symétrie.
Une grande banquette sur mesure faisant face à celles de la cheminée est un élément stratégique « C’est un atout gain de place important », explique la professionnelle. « On peut s’y installer à plusieurs sans encombrer la pièce et, à la suite du repas, on peut repousser la table à manger pour gagner de l’espace côté séjour. »
La banquette (de même que celles de la cheminée) permet une bonne modularité pour ces propriétaires qui souhaitaient un espace convivial pour recevoir leurs voisins d’appartement et assurent également un volume de rangement non négligeables dans leurs flancs.
Chaises salle à manger : Vitra
Une grande banquette sur mesure faisant face à celles de la cheminée est un élément stratégique « C’est un atout gain de place important », explique la professionnelle. « On peut s’y installer à plusieurs sans encombrer la pièce et, à la suite du repas, on peut repousser la table à manger pour gagner de l’espace côté séjour. »
La banquette (de même que celles de la cheminée) permet une bonne modularité pour ces propriétaires qui souhaitaient un espace convivial pour recevoir leurs voisins d’appartement et assurent également un volume de rangement non négligeables dans leurs flancs.
Chaises salle à manger : Vitra
Cette chambre du rez-de-chaussée est dédiée à l’un des enfants des propriétaires. Baignée de lumière grâce à sa fenêtre et son Velux, elle a été traitée dans des tons clairs, avec une literie douillette et un linge de lit soigneusement sélectionnés. L’encadrement en tête de lit a été choisi par l’habitant des lieux.
Plus d’idées pour décorer une chambre dans le style chalet sur Houzz
Plus d’idées pour décorer une chambre dans le style chalet sur Houzz
Toujours au rez-de-chaussée, la chambre aux lits superposés a été conçue avec une double intention : offrir un espace d’accueil pour les amis de leurs enfants et optimiser le potentiel locatif de l’appartement.
De dimensions modestes, la chambre a été pensée au centimètre. Les lits superposés permettent de maximiser l’espace au sol, tandis que l’échelle, fabriquée sur mesure en métal, reprend le style de la cheminée.
De dimensions modestes, la chambre a été pensée au centimètre. Les lits superposés permettent de maximiser l’espace au sol, tandis que l’échelle, fabriquée sur mesure en métal, reprend le style de la cheminée.
« La structure existante du mur nous a permis de créer un faux fond avec des niches encastrées », explique Aude. Ces niches servent à la fois de tables de chevet et de bibliothèque, et intègrent même des prises électriques. Des tiroirs de rangement sous les lits permettent de ranger les vêtements, et une tringle est fixée en partie haute pour servir de penderie.
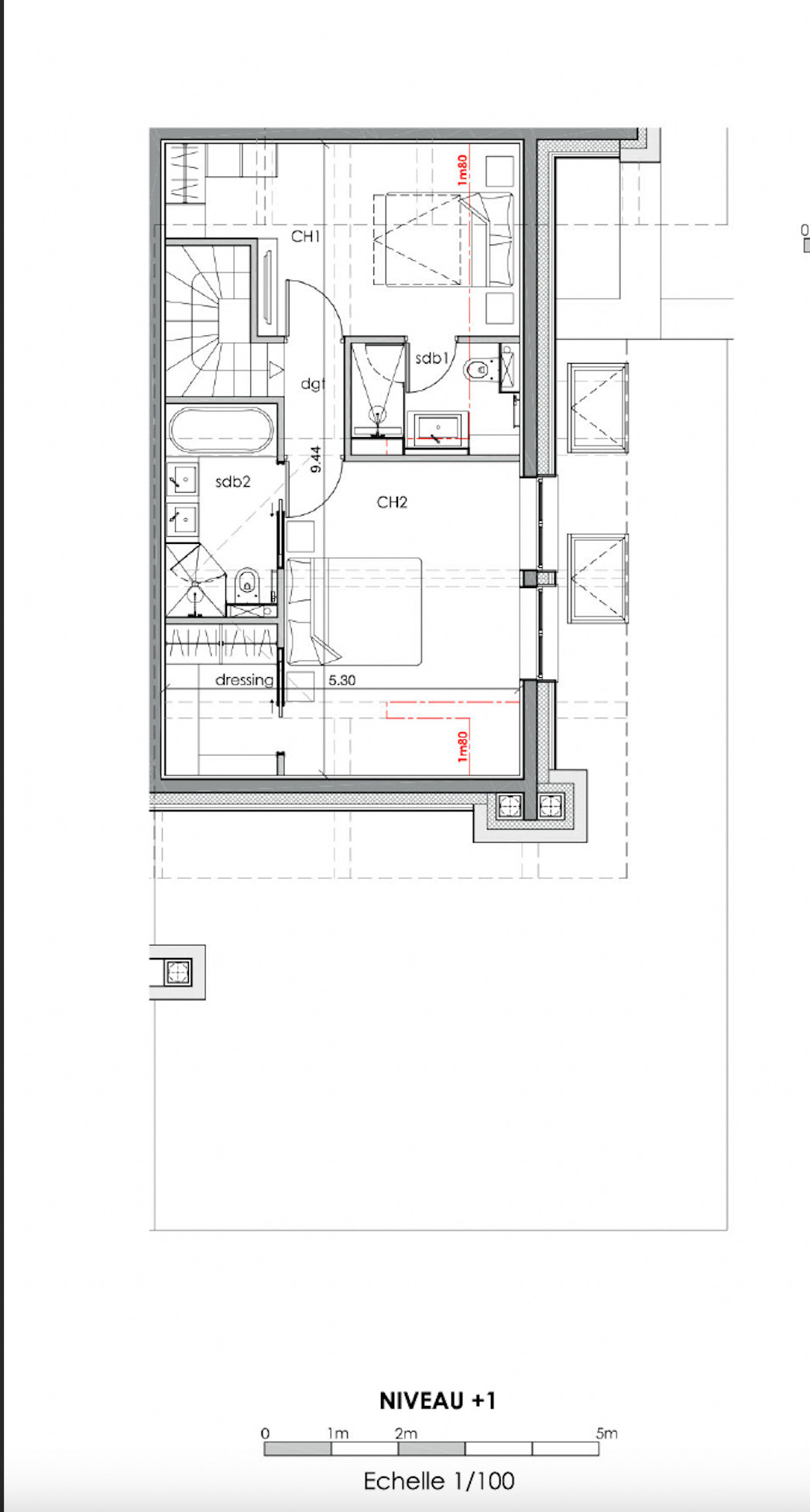
Niveau +1 avant travaux (plan promoteur)
À l’étage, la réorganisation spatiale était déjà actée sur plan quand la professionnelle est intervenue. Avec le déplacement de l’escalier et la suppression de l’une des salles de bains du rez-de-chaussée initialement prévue par le promoteur, un espace a pu être libéré à l’étage pour créer un sauna.
À l’étage, la réorganisation spatiale était déjà actée sur plan quand la professionnelle est intervenue. Avec le déplacement de l’escalier et la suppression de l’une des salles de bains du rez-de-chaussée initialement prévue par le promoteur, un espace a pu être libéré à l’étage pour créer un sauna.
Réalisé sur mesure par une entreprise spécialisée mandatée par le promoteur, le sauna est paré d’épicéa à l’intérieur. Un rétroéclairage, disposé à l’arrière des tasseaux, permet de profiter d’une ambiance intimiste. « Ce sauna est un élément de confort vraiment agréable après une bonne journée de ski », confirme l’architecte d’intérieur. Au-delà du bien-être, il représente un atout significatif pour la valorisation locative du bien.
Après. Dotée de deux grandes fenêtres donnant sur la montagne et d’un superbe plafond cathédrale, la chambre parentale jouissait déjà d’éléments de confort et de charme. Elle a été mise en valeur, simplement en harmonie avec l’étage inférieur. Une grande tête de lit a été fabriquée sur mesure dans un tissu gris matelassé par l’Atelier des Frères, de même que les rideaux assortis.
La salle de bains parentale poursuit la charte graphique élégante de l’appartement. Des façades bois dialoguent avec une robinetterie noire, rappelant les touches métalliques aperçues dans les autres espaces. Les plans blancs maximisent la luminosité.
Façades : sapin Antik brossé ; plan de travail : quartz Silestone ; vasques : Geberit ; robinetterie : Cristina & Ondyna
Façades : sapin Antik brossé ; plan de travail : quartz Silestone ; vasques : Geberit ; robinetterie : Cristina & Ondyna
La chambre du second enfant a été parée d’une peinture bleu-gris en tête de lit, éclairée par des appliques up and down en métal noir. La tête de lit fabriquée sur mesure en épicéa brossé sert de chevet tandis que, de part et d’autre du lit, ont été installés de grands placards sur mesure.
Dans la salle de bains de cette suite, Aude a sélectionné cette déclinaison de carrelage Porcelanosa proposée par le promoteur pour ses couleurs minérales. « Nous avons opté pour une douche à l’italienne avec une continuité du carrelage au sol plutôt que pour un receveur », explique-t-elle.
« Mes clients ont été vraiment ravis du résultat ! », s’enthousiasme Aude Boquet, estimant que son travail de conception pour ce beau duplex en Vefa illustre parfaitement l’un des aspects de son métier : l’accompagnement à distance. « Dans une construction neuve, le nombre de détails à considérer peuvent vite devenir vertigineux, des poignées de porte aux parements, des plinthes à la sélection de tout l’éclairage. Mon rôle est d’épauler les clients dans ces choix cruciaux, » rappelle-t-elle.
N’ayant assuré pour ce duplex que la conception et non la maîtrise d’œuvre complète, elle n’est pas en capacité de partager avec nous le budget exact de ce projet, estimant toutefois que pour ce type de prestation haut de gamme en Vefa, l’enveloppe dépasse les 200 000 euros TTC outre l’achat initial du bien.
Toutefois, la plupart des missions d’Aude vont généralement plus loin, englobant la coordination complète du chantier, avec un suivi rigoureux des délais et du budget. Une double casquette qui lui permet d’orchestrer aussi bien les envies des propriétaires que la gestion des différents corps de métier pour transformer des espaces bruts ou défraîchis en lieux de vie sur mesure.
ET VOUS ?
Que pensez-vous de cette rénovation de chalet ? Viendrez-vous y passer vos vacances ?
Vous êtes en quête d’un architecte d’intérieur ? Houzz partage son annuaire exclusif pour que vous mettiez toutes les chances de votre côté. Savez-vous pourquoi les architectes d’intérieur qui utilisent Houzz Pro ont de meilleures chances de vous faire atteindre vos objectifs ? Ils utilisent notre logiciel tout-en-un et vous pourrez en profiter grâce à eux. Grâce aux outils de visualisation inclus dans l’outil, vous pourrez imaginer votre projet clairement et rapidement. Le Portail Client fluidifie quant à lui vos communications avec le professionnel tout au long du projet, quand la signature des devis en ligne simplifie vos démarches.
N’ayant assuré pour ce duplex que la conception et non la maîtrise d’œuvre complète, elle n’est pas en capacité de partager avec nous le budget exact de ce projet, estimant toutefois que pour ce type de prestation haut de gamme en Vefa, l’enveloppe dépasse les 200 000 euros TTC outre l’achat initial du bien.
Toutefois, la plupart des missions d’Aude vont généralement plus loin, englobant la coordination complète du chantier, avec un suivi rigoureux des délais et du budget. Une double casquette qui lui permet d’orchestrer aussi bien les envies des propriétaires que la gestion des différents corps de métier pour transformer des espaces bruts ou défraîchis en lieux de vie sur mesure.
ET VOUS ?
Que pensez-vous de cette rénovation de chalet ? Viendrez-vous y passer vos vacances ?
Vous êtes en quête d’un architecte d’intérieur ? Houzz partage son annuaire exclusif pour que vous mettiez toutes les chances de votre côté. Savez-vous pourquoi les architectes d’intérieur qui utilisent Houzz Pro ont de meilleures chances de vous faire atteindre vos objectifs ? Ils utilisent notre logiciel tout-en-un et vous pourrez en profiter grâce à eux. Grâce aux outils de visualisation inclus dans l’outil, vous pourrez imaginer votre projet clairement et rapidement. Le Portail Client fluidifie quant à lui vos communications avec le professionnel tout au long du projet, quand la signature des devis en ligne simplifie vos démarches.






























Qui vit ici ? C’est le pied-à-terre d’un couple
Emplacement : à Saint-Martin-de-Belleville en Savoie (73)
Superficie : 128 m² sur deux niveaux
Dates : étude et travaux de mai 2021 à avril 2023
Architecte d’intérieur : Aude Boquet / Au-delà des murs - Agence Interieurs (Sallanches)
Budget : à partir de 2 000 euros TTC/m²
Photos : Charlotte Bron