Visites Privées
Dossiers populaires
Avant/Après : Un loft dans un commerce insalubre à la Goutte d'Or
Un avant/après bluffant qui retrace la transformation d'un triplex à Paris 18e pour une famille au cœur bien accroché
Cette famille éprise de culture, d’art, de cinéma et de littérature, vivait déjà dans le 18e arrondissement de Paris. Avec un fils lycéen et deux fillettes en primaire, ils étaient en quête d’un bien atypique, comportant idéalement un studio séparé pour l’aîné. Ils ont trouvé leur bonheur avec ce triplex de 140 m², ancienne boutique d’une artère centrale de la Goutte d’Or, précédemment transformée en « habitation ». Pas de cuisine, ni de salle de bains dignes de ce nom, le bien était à la limite de l’insalubrité mais les nouveaux propriétaires n’en sont pas à leur première rénovation et ont les bons réflexes. Bien entourés par les architectes Flore Raimbault et Noa Peer de Oui Architecture, ils vont mener à bien cette transformation bluffante, en dépit d’un état des lieux catastrophique et d’un budget plutôt serré.
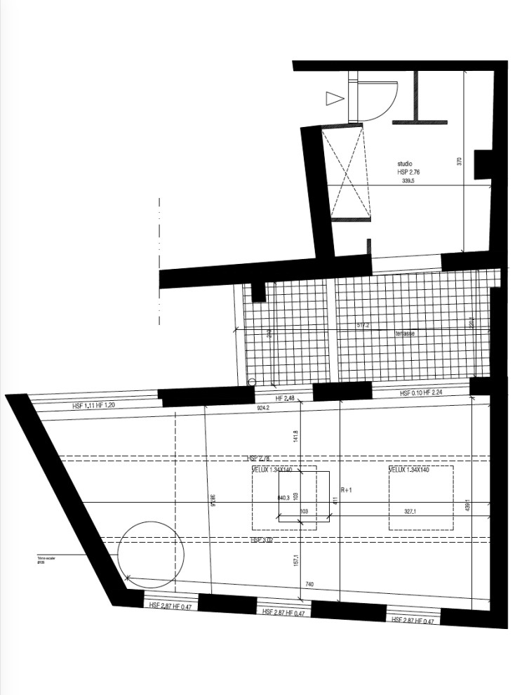
Plan R+1 avant travaux
« Jusqu’à la fin nous nous sommes demandées si nous allions arriver à transformer ce lieu en un endroit chaleureux pour une famille », affirme d’emblée l’architecte Noa Peer. Malgré l’expérience de ce duo qui s’est fait remarquer par les propriétaires pour ses précédentes restructurations d’ampleur, les doutes étaient légitimes, eu égard à l’état des lieux du patrimoine de départ.
Il s’agissait d’un triplex de 140 m², morcelé entre le rez-de-rue (ancienne boutique et arrière-boutique), le R+1 coupé en deux par une courette, qui se donnait des airs de loft, et un sous-sol façon cave voûtée. Les lieux étaient labyrinthiques, avec pas moins de trois entrées différentes. À cette configuration spéciale s’ajoutait un état proche de l’insalubrité. Pas d’isolation ni de chauffage, carreaux cassés, porte d’entrée ne fermant pas, sanitaires succincts, et ni cuisine, ni eau, ni électricité dans la partie principale.
« Jusqu’à la fin nous nous sommes demandées si nous allions arriver à transformer ce lieu en un endroit chaleureux pour une famille », affirme d’emblée l’architecte Noa Peer. Malgré l’expérience de ce duo qui s’est fait remarquer par les propriétaires pour ses précédentes restructurations d’ampleur, les doutes étaient légitimes, eu égard à l’état des lieux du patrimoine de départ.
Il s’agissait d’un triplex de 140 m², morcelé entre le rez-de-rue (ancienne boutique et arrière-boutique), le R+1 coupé en deux par une courette, qui se donnait des airs de loft, et un sous-sol façon cave voûtée. Les lieux étaient labyrinthiques, avec pas moins de trois entrées différentes. À cette configuration spéciale s’ajoutait un état proche de l’insalubrité. Pas d’isolation ni de chauffage, carreaux cassés, porte d’entrée ne fermant pas, sanitaires succincts, et ni cuisine, ni eau, ni électricité dans la partie principale.
Plan R+1 après travaux
« Pour proposer un plan, nous avons balayé toutes les solutions possibles et il y en avait beaucoup. La solution finale est venue d’un échange nourri avec les propriétaires et de leurs choix. Ils ont souhaité installer le séjour en haut, dans la partie loft et leur suite parentale tout en bas, dans la cave voûtée et nous avons tout mis en œuvre pour concrétiser leur programme », explique Noa.
Trouvez un architecte près de chez vous sur Houzz
« Pour proposer un plan, nous avons balayé toutes les solutions possibles et il y en avait beaucoup. La solution finale est venue d’un échange nourri avec les propriétaires et de leurs choix. Ils ont souhaité installer le séjour en haut, dans la partie loft et leur suite parentale tout en bas, dans la cave voûtée et nous avons tout mis en œuvre pour concrétiser leur programme », explique Noa.
Trouvez un architecte près de chez vous sur Houzz
Avant. Nous allons visiter l’espace de haut en bas. Au R+1, au fond d’une courette sombre et étroite, on entrait par une pièce séparée que la famille a souhaité transformer en studio pour leur fils aîné. De là, en traversant une courette intérieure, on rejoignait le reste de l’appartement en triplex. Du temps des anciens propriétaires, la pièce séparée, dite « le studio », contenait uniquement la « cuisine » et les wc/douche. C’était la seule partie de l’habitation équipée d’un point d’eau et de l’électricité. Nous n’avons pas de photos de ce studio après sa rénovation.
On accédait au triplex à partir de ce studio (photo). Il s’agissait d’une ancienne boutique et arrière-boutique, transformées en étrange entrepôt de meubles, où vivaient les anciens propriétaires. Depuis le studio, il fallait traverser ces portes atelier qui ne fermaient pas et une courette aux quatre vents pavée de briques de verre pour circuler entre sanitaires et lieu de vie.
On accédait au triplex à partir de ce studio (photo). Il s’agissait d’une ancienne boutique et arrière-boutique, transformées en étrange entrepôt de meubles, où vivaient les anciens propriétaires. Depuis le studio, il fallait traverser ces portes atelier qui ne fermaient pas et une courette aux quatre vents pavée de briques de verre pour circuler entre sanitaires et lieu de vie.
Après. Un travail d’isolation des murs et rampants à base de laine minérale a été orchestré par les professionnelles qui ont aussi fait doubler un par un les carreaux des verrières. « Nous les avons également reprises pour qu’elles puissent fermer à clé », assure Flore.
Pour ces propriétaires qui aiment les objets anciens et la littérature, le salon aux accents bohème s’est formé autour d’un canapé Bolia en velours bleu et de pièces qu’ils ont chinées. Sur un côté, une grande bibliothèque accueille tous leurs volumes. Un rouge profond de chez Farrow & Ball (Terre d’Égypte n°247) a été retenu pour réchauffer les murs.
Le piano a été placé sous la mezzanine, rendue fonctionnelle pour accueillir des amis de passage ou servir de perchoir aux filles. « Nous avons également installé un projecteur derrière la verrière », indique Noa.
Pour ces propriétaires qui aiment les objets anciens et la littérature, le salon aux accents bohème s’est formé autour d’un canapé Bolia en velours bleu et de pièces qu’ils ont chinées. Sur un côté, une grande bibliothèque accueille tous leurs volumes. Un rouge profond de chez Farrow & Ball (Terre d’Égypte n°247) a été retenu pour réchauffer les murs.
Le piano a été placé sous la mezzanine, rendue fonctionnelle pour accueillir des amis de passage ou servir de perchoir aux filles. « Nous avons également installé un projecteur derrière la verrière », indique Noa.
Après. Il a donc fallu viabiliser les lieux, en câblant les trois niveaux, en faisant passer les réseaux d’eau et les évacuations nécessaires avec force discussion avec la copropriété, tâches dont se sont occupées les architectes. « À l’extérieur, nous avons également fait ajouter un garde-corps pour protéger le passage sur la terrasse », affirment-elles. Dans ce coin de la pièce de vie a été installé le bureau des propriétaires.
Après. Ce sofa, qui aurait sans doute pu servir d’inspiration au drolatique conte éponyme de Crébillon, provient de ce qui a été laissé et contribue à donner le cachet vintage recherché. Le radiateur en fonte est purement décoratif, récupéré lui aussi dans ce trésor de guerre. « Nous aurions pu mettre un chauffage au sol mais nous avons installé partout des radiateurs électriques pour une question de budget », partage Noa Peer.
Derrière le canapé, le mur blanc sert à projeter les films.
Comment choisir et installer un vidéoprojecteur ?
Derrière le canapé, le mur blanc sert à projeter les films.
Comment choisir et installer un vidéoprojecteur ?
L’escalier en colimaçon se trouvait à l’origine sous la mezzanine. « La trémie était minuscule, incompatible avec une circulation familiale, aussi avons-nous rebouché ce passage et créé une trémie pour un escalier droit en béton », explique l’architecte.
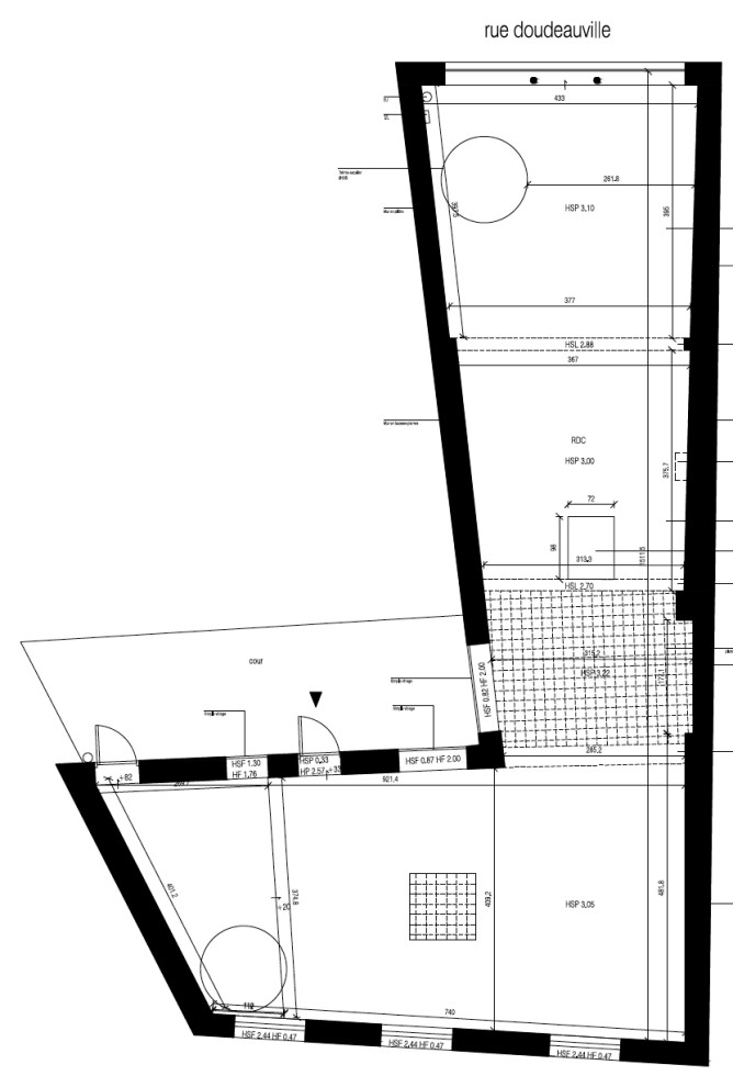
Plan du rez-de-chaussée avant travaux
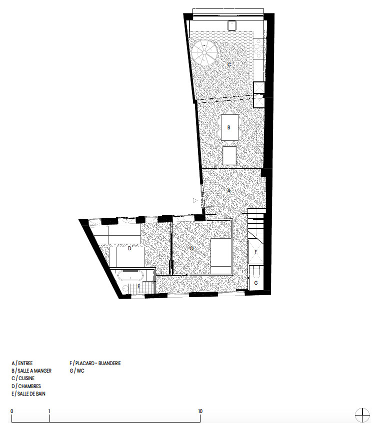
Nous descendons à présent par ce nouvel escalier au rez-de-chaussée, au niveau des anciennes boutique et arrière-boutique. L’escalier qui a été rebouché sous la mezzanine est symbolisé par le rond tout en bas du plan. À cet emplacement se trouve aujourd’hui la salle de bains des filles. Un autre escalier en colimaçon dans la partie boutique sur rue permet toujours de descendre à la cave.
On entrait à l’origine par la pièce du fond sur cour (voir petite flèche noire). La vitrine de la boutique sur rue disposait d’une autre entrée qui ne servait jamais.
Nous descendons à présent par ce nouvel escalier au rez-de-chaussée, au niveau des anciennes boutique et arrière-boutique. L’escalier qui a été rebouché sous la mezzanine est symbolisé par le rond tout en bas du plan. À cet emplacement se trouve aujourd’hui la salle de bains des filles. Un autre escalier en colimaçon dans la partie boutique sur rue permet toujours de descendre à la cave.
On entrait à l’origine par la pièce du fond sur cour (voir petite flèche noire). La vitrine de la boutique sur rue disposait d’une autre entrée qui ne servait jamais.
Avant. Depuis la pièce au fond du niveau, les pièces du rez-de-rue se succèdent en enfilade, tournent le long d’une cour intérieure puis filent tout droit jusqu’à l’ancienne vitrine que nous distinguons au fond de ce cliché. Nous nous trouvons ici au niveau central, dans la partie resserrée, sous la verrière qui permet de circuler entre le studio du fils aîné et le nouveau séjour au niveau supérieur. Le point de vue est inversé par rapport à la photo suivante.
Après. C’est sous cette verrière qu’a été créée la nouvelle l’entrée. Elle se trouve ici sur la droite, face à cette bibliothèque et au pupitre des filles. « Comme ce niveau est assez peu lumineux, nous voulions la placer sous la verrière pour créer une impression de lumière dès l’entrée », commente Flore.
De l’autre côté du nouvel escalier en béton vernis, une boîte en contreplaqué de bouleau cloisonne les chambres des fillettes. Il est nécessaire de contourner la boîte pour accéder aux portes des chambres. « Nous avons choisi du Finaply, un panneau de placage croisé avec film de protection, afin de contrôler son aspect fini. La structure a été intégralement doublée en laine de bois pour créer une isolation acoustique efficace », indique Flore.
Afin de rendre cette structure bois moins massive et récupérer de la luminosité provenant de la verrière de toit, des fenêtres en bandeau, elles-mêmes acoustiques, ont été installées en partie haute.
Afin de rendre cette structure bois moins massive et récupérer de la luminosité provenant de la verrière de toit, des fenêtres en bandeau, elles-mêmes acoustiques, ont été installées en partie haute.
Après. Nous voici derrière la structure en bois, dans la circulation qui permet de regagner les chambres et la salle de bains des filles. « Les éléments structurels en contreplaqué de bouleau ont été assemblés grâce à des clous, rythmés comme des coutures », fait remarquer Noa.
La salle de bains a été conçue avec une baignoire et un meuble vasque en maçonnerie. Un béton ciré grège (Parchemin de chez Marius Aurenti) a été appliqué sur toutes les surfaces jusqu’à deux mètres de haut pour protéger les murs. Afin de rentrer dans les clous du budget, des économies ont été faites sur le sol. « On a récupéré des carreaux de ciment qui restaient chez nos clients, provenant des travaux d’une précédente salle de bains », nous ont indiqué les pros.
La salle de bains a été conçue avec une baignoire et un meuble vasque en maçonnerie. Un béton ciré grège (Parchemin de chez Marius Aurenti) a été appliqué sur toutes les surfaces jusqu’à deux mètres de haut pour protéger les murs. Afin de rentrer dans les clous du budget, des économies ont été faites sur le sol. « On a récupéré des carreaux de ciment qui restaient chez nos clients, provenant des travaux d’une précédente salle de bains », nous ont indiqué les pros.
Nous sommes ici à l’intérieur de la boîte en contreplaqué de bouleau. « Les deux chambres sont petites mais peuvent être décloisonnées complètement l’une sur l’autre afin que les filles disposent d’un espace plus grand pour jouer ensemble », explique Noa Peer. La paroi centrale toute hauteur coulisse sur le côté et disparaît dans un galandage qui s’aligne sur les portes d’entrée.
Pour rattraper le dessin du mur en biais de la salle de bains, le meuble vasque et le meuble miroir ont été réalisés sur mesure avec une légère forme en triangle. « Il n’y avait aucun mur droit dans cet endroit et nous avons eu un gros travail d’assainissement des murs. Il a fallu doubler certaines parties pour isoler et laisser d’autres apparentes afin de laisser respirer les murs et ne pas avoir de problèmes d’humidité », se remémorent les pros.
Après. Comme les autres pièces, la salle à manger a été meublée avec éclectisme, au fil des meubles chinés par les propriétaires. Ils possédaient déjà cette enfilade scandinave en teck mid-century et la table assortie.
Ne manquons pas de nous arrêter sur le lustre, une grosse boule en verre moulé suspendu par une chaîne en métal. « Vous les reconnaissez, il s’agit d’anciens réflecteurs de réverbères parisiens. Il y en avait plusieurs dans le bric-à-brac que l’on a retrouvé sur place. Ils avaient probablement été laissés parce qu’ils pesaient très lourd. Notre entreprise générale a réussi à les transformer en suspensions pour la pièce de vie », affirme fièrement Noa Peer qui trouve le résultat très réussi.
Ne manquons pas de nous arrêter sur le lustre, une grosse boule en verre moulé suspendu par une chaîne en métal. « Vous les reconnaissez, il s’agit d’anciens réflecteurs de réverbères parisiens. Il y en avait plusieurs dans le bric-à-brac que l’on a retrouvé sur place. Ils avaient probablement été laissés parce qu’ils pesaient très lourd. Notre entreprise générale a réussi à les transformer en suspensions pour la pièce de vie », affirme fièrement Noa Peer qui trouve le résultat très réussi.
Après. La cuisine a remplacé la boutique fantôme, positionnée sur rue pour une raison bien précise. « La rue est très bruyante et il fallait donc loger une pièce dans laquelle on ne recherche pas le calme. Nous avons tout de même intimisé la façade avec du film opacifiant », explique Noa.
Les propriétaires qui adorent confectionner de bons petits plats ont souhaité une grande pièce taillée pour cuisiner, dans laquelle ils puissent loger un piano de cuisson Falcon de 120 cm de large, muni de quatre fours et 6 feux gaz.
Plus de photos de grandes cuisines sur Houzz
Les propriétaires qui adorent confectionner de bons petits plats ont souhaité une grande pièce taillée pour cuisiner, dans laquelle ils puissent loger un piano de cuisson Falcon de 120 cm de large, muni de quatre fours et 6 feux gaz.
Plus de photos de grandes cuisines sur Houzz
Le mur de pierres a été soigneusement remis en état grâce à la réfection de l’enduit puis le passage d’un fixateur. « Cela évite que le salpêtre ne ressorte », explique Flore. Le sol a été réalisé en partie avec les tomettes anciennes retrouvées sur place. Elles ont été joliment calepinées le long du linéaire tandis que le reste du sol est un simple ragréage verni. Le mobilier de cuisine provient de chez Ikea, sur lequel ont été adaptées des portes de chez Superfront.
Pour donner à cette cuisine un air campagne, les propriétaires ont choisi un granit chez le marbrier, pour parer la crédence et le plan de travail. Au-dessus de la crédence, une étagère a été réalisée avec une planche de coffrage récupérée par l’entreprise générale.
Après. Les propriétaires ont décidé de privilégier l’espace de vie en haut et d’aménager la cave voûtée en suite parentale. « Ce n’était pas notre choix de départ mais les parents ont estimé qu’ils passaient très peu de temps dans leur chambre et cette disposition était vraiment leur choix assumé », explique Noa.
Après. Dans le fond de cette première cave a été cloisonnée la salle de bains. « Nous avons posé un faux plafond afin d’installer une VMC double flux dans cette partie de l’appartement pour éviter les problèmes de ventilation », explique Flore. Le sol de la salle de bains parentale a été réalisé avec un reste de tomettes retrouvées dans les lieux, triées et nettoyées.
Après. Bien que cette rénovation ait représenté un pari un peu fou, le bilan est très positif. « Ce lieu atypique avait besoin de solutions atypiques et nous estimons que nous avons relevé le défi car nous sommes revenues plusieurs fois dans les lieux depuis la fin des travaux et avons trouvé que le loft était vraiment chaleureux et que la famille avait plaisir à habiter l’espace », témoigne en effet l’architecte Noa Peer.
ET VOUS ?
Que pensez-vous de cette rénovation ?
ET VOUS ?
Que pensez-vous de cette rénovation ?







































Qui habite ici : Le père travaille dans le cinéma, la mère est enseignante. Ils ont un garçon lycéen et deux petites filles.
Superficie : 140 m²
Emplacement : rue Doudeauville, dans le quartier de la Goutte d’Or (Paris 18e arrondissement)
Durée des travaux : 5 mois (de septembre 2019 à janvier 2020)
Architectes : Flore Raimbault et Noa Peer de l’agence OUI : Office for Urban Innovation
Budget : 150 000 euros (dont 85 000 euros de travaux gros œuvre)
Photo : Raphaël Dautigny