Visites Privées
Dossiers populaires
Avant/Après : Un pied-à-terre lumineux et réconfortant
Découvrez cet appartement parisien de 43 m², avec ses aménagements clairs et reposants
C’est par une amie que la propriétaire de ce logement parisien entend parler de Maison Gabinel, l’agence de Marlène Teixier-Schwartz. Elle a un projet assez particulier à lui confier : l’aménagement d’un logement qui n’est pas, au sens traditionnel, habité, mais sera utilisé comme pied-à-terre occasionnel lorsque sa famille viendra en visite à Paris, et au quotidien par ses enfants. La propriétaire est en effet mère de quatre enfants, tous scolarisés différemment, certains encore jeunes pour effectuer seuls le trajet jusqu’au domicile. Après l’école, ils peuvent se retrouver dans ce lieu, afin d’attendre que leur mère vienne les chercher. « C’est comme une annexe de la maison, très occupée dans la journée », explique Marlène, qui s’est vu confier la mission de faire de ce lieu de vie, de travail et de détente un endroit serein et agréable. Découvrons ici cet aménagement délicat et original.
Avant. Il y avait quelques prérequis à remplir pour parfaire l’atmosphère et l’aménagement de ce pied-à-terre : « La cliente voulait des choses assez jolies, un lieu agréable pour passer du temps, adaptable pour accueillir la famille, confortable, doté d’une cuisine agréable pour les enfants qui viennent déjeuner tous les midis. Il leur fallait un espace de travail et un piano pour leurs leçons après l’école. L’ensemble devait être facile à louer, pour pouvoir être exploité en Airbnb si besoin », détaille Marlène Teixier-Schwartz.
Trouvez un architecte d’intérieur près de chez vous sur Houzz
Trouvez un architecte d’intérieur près de chez vous sur Houzz
Après. L’appartement dans son ensemble a été aménagé et décoré, mais aussi décloisonné et fluidifié, comme on le voit notamment dans le quart supérieur gauche. Par ailleurs, l’appartement était une passoire thermique et les travaux auront certainement permis une amélioration du diagnostic, avec notamment un gros travail d’isolation des murs de façades. « Nous avons entièrement refait le chauffage, la clim’, tout réisolé, changé toutes les fenêtres. Nous avons refait toute l’électricité – le tableau électrique n’était pas du tout aux normes –, et nous avons repositionné les prises en fonction des besoins. Nous avons refait toute la plomberie également », se souvient Marlène.
Après. Voici, en fond, la nouvelle cuisine, la porte à gauche donnant désormais sur la salle d’eau. La grande colonne près de l’évier abrite le réfrigérateur. « La cuisine est grande et très équipée, avec évier, lave-vaisselle, four, lave-linge. Cela était important, car les enfants viennent déjeuner là tous les midis », remarque Marlène, qui ajoute : « elle devait offrir une circulation facile et un bel accès à la salle de bains ».
Plus d’idées pour aménager une cuisine sur Houzz
Plus d’idées pour aménager une cuisine sur Houzz
Après. Nous redécouvrons la cuisine, avec un fragment de la salle à manger au premier plan. L’espace apparaît nettement plus éclairci et dégagé, grâce entre autres à la dépose de cloison, validée par un bureau d’études. « C’était assez long, mais nécessaire pour travailler en toute sécurité », affirme Marlène. « Et cette cuisine qui est en couloir, ouverte sur la pièce de vie, ne devait pas être oppressante ». La différenciation d’éclairage démarque les espaces : des spots blancs et discrets pour la cuisine, une suspension plus originale pour la salle à manger.
Suspension : Cara Colombini ; spots : Studio Zangra
Suspension : Cara Colombini ; spots : Studio Zangra
Prenons un peu de recul visuel. La banquette qui marque l’emplacement de la salle à manger est conçue en maçonnerie. Les aménagements maçonnés ont été privilégiés par la professionnelle en de nombreux points de l’appartement. Ainsi, explique Marlène en évoquant la salle à manger, « il n’y a quasiment pas de meubles, cela permet une certaine durabilité, avec l’impression que l’appartement a été construit ainsi ».
Voici, vue dans son détail, la crédence rayée et texturée qui donne son identité à la cuisine et se prolonge jusqu’à l’entrée de la salle à manger. « Ce choix provient d’une photo d’inspiration vue avec la cliente », explique Marlène. Cette crédence se lie à différents fils rouges esthétiques que l’on retrouvera au cours de cette rénovation : les mélanges de couleurs claires avec ces rayures jaune et blanc, et des textures relief privilégiant des lignes verticales ondulées.
Crédence : carrelage céramique en relief Calo Onda
Crédence : carrelage céramique en relief Calo Onda
La salle à manger comporte cinq places pour s’asseoir autour de la table ronde… mais seulement deux chaises. En effet, la banquette dos au mur est creusée en rond et non droite, s’adaptant ainsi parfaitement à la table ronde et à son pied cylindrique. Cela optimise la place et permet d’y accueillir jusqu’à trois personnes. Nous remarquons de subtiles correspondances avec la crédence évoquée précédemment, comme l’applique jaune au mur, ou le contour ondulé atypique du miroir mural. « La cliente aime beaucoup les couleurs très douces », précise Marlène.
Après. Nous reculons vers la pièce de vie. La cuisine, toujours présente dans le décor, s’efface au fur et à mesure. Si le linéaire bas a été étiré le plus possible, le linéaire haut s’arrête avant le séjour, ce qui allège les hauteurs et libère la salle à manger. La crédence rayée reste cependant visible et accordée à d’autres éléments du décor, comme le coussin au motif en arche présent ici.
« Nous avons privilégié des éléments assez organiques avec la banquette, la suspension, les chaises », partage Marlène. Le parquet, ancien, a été reponcé, revitrifié.
« Nous avons privilégié des éléments assez organiques avec la banquette, la suspension, les chaises », partage Marlène. Le parquet, ancien, a été reponcé, revitrifié.
Vous êtes en quête d'un artisan pour votre projet de rénovation ?
Nous vous aidons à trouver les meilleurs pros
Nous vous aidons à trouver les meilleurs pros
En cours de travaux. Nous découvrons ici la structure maçonnée, pensée comme un immense meuble mural conçu sur mesure – avec, à gauche, une vaste cavité vouée à accueillir le piano et, à droite, un large rectangle destiné au téléviseur.
Cette structure d’une géométrie assez sophistiquée, avec une répartition autour de la colonne centrale, et des niches de taille et de forme très différentes, rectilignes ou en arche, a été dessinée suivant la vision très réfléchie de Marlène. « Mélanger des formes en arche à l’ensemble des niches permet de casser le côté massif. J’aime bien la symétrie. Les quatre niches en arche font toutes la même taille, avec un rythme assez régulier. Je n’aime pas quand c’est trop aléatoire, que ça ne raconte rien, qu’il n’y a pas de fil conducteur ».
Cette structure d’une géométrie assez sophistiquée, avec une répartition autour de la colonne centrale, et des niches de taille et de forme très différentes, rectilignes ou en arche, a été dessinée suivant la vision très réfléchie de Marlène. « Mélanger des formes en arche à l’ensemble des niches permet de casser le côté massif. J’aime bien la symétrie. Les quatre niches en arche font toutes la même taille, avec un rythme assez régulier. Je n’aime pas quand c’est trop aléatoire, que ça ne raconte rien, qu’il n’y a pas de fil conducteur ».
Après. Il y a désormais des niches pour toutes les tailles et tous les usages. Ainsi, celles sous la télé sont idéales pour des objets plats, comme la télécommande.
Dans l’ensemble du logement, Marlène a travaillé les textiles et choisi des pièces artisanales, douces. La suspension du salon est en laine. Les lampes aux abat-jour rayés, dont l’un est jaune et blanc, résonnent en écho avec la crédence culinaire, ainsi que le vase jaune de la table basse. Le décor recherché par Marlène se veut cosy et douillet : le très grand tapis, le canapé dont le velours à côtes rappelle les ondulations présentes dans la crédence ou d’autres fragments du décor… « Les matières sont chaudes, le canapé est blanc mais le velours lui donne un côté cosy. Le tapis au sol est en maille épaisse, doux au pied, orné de formes géométriques, un peu cosy/confort. L’idée était d’obtenir une “symétrie asymétrique”, pas trop carrée ».
Abat-jour en laine fait à la main : Maison Dizy ; vase : Céline Angelini
Dans l’ensemble du logement, Marlène a travaillé les textiles et choisi des pièces artisanales, douces. La suspension du salon est en laine. Les lampes aux abat-jour rayés, dont l’un est jaune et blanc, résonnent en écho avec la crédence culinaire, ainsi que le vase jaune de la table basse. Le décor recherché par Marlène se veut cosy et douillet : le très grand tapis, le canapé dont le velours à côtes rappelle les ondulations présentes dans la crédence ou d’autres fragments du décor… « Les matières sont chaudes, le canapé est blanc mais le velours lui donne un côté cosy. Le tapis au sol est en maille épaisse, doux au pied, orné de formes géométriques, un peu cosy/confort. L’idée était d’obtenir une “symétrie asymétrique”, pas trop carrée ».
Abat-jour en laine fait à la main : Maison Dizy ; vase : Céline Angelini
Les niches en arche ressortent de façon particulière dans l’ensemble maçonné, avec un fond bois naturel et léger. Elles servent aussi bien d’espaces de rangement que de zones d’expositions d’objets décoratifs et colorés, en accord avec l’ensemble.
« Les arches cassent le rythme. Elles sont comme de petites fenêtres, avec du bois dans le fond », s’amuse Marlène, « la cliente et moi aimons beaucoup ce motif, c’est un fil conducteur, on le retrouve dans la chambre, dans l’entrée, jusque sur les coussins ».
« Les arches cassent le rythme. Elles sont comme de petites fenêtres, avec du bois dans le fond », s’amuse Marlène, « la cliente et moi aimons beaucoup ce motif, c’est un fil conducteur, on le retrouve dans la chambre, dans l’entrée, jusque sur les coussins ».
Comme la banquette de salle à manger, le décor maçonné est blanc. Ce sont le bois et les objets de décoration qui vont prodiguer les touches de couleur, claires, réconfortantes et naturelles. Le piano est un bien de la cliente. Dans cet appartement très ouvert, toutes les notes de couleur sont en accord les unes avec les autres. Le jaune, le boisé, le rosé, l’orangé ont la part belle, le blanc exaltant leur douceur et leur clarté.
Après. Nous découvrons ici la chambre, dans des couleurs claires, douces et délicatement réchauffantes. Le parquet, perpendiculaire, démarque l’espace dédié à la pièce malgré l’architecture ouverte. Les formes apportent également beaucoup de rondeur et de délicatesse : aménagements en arche, suspension de forme florale aux pétales épanouis, miroir au cadre rosé en courbes irrégulières…
Voici l’entrée en forme d’arche. Pour ce pied-à-terre qui n’accueille des dormeurs qu’occasionnellement, un rideau a été préféré à une porte, toujours dans l’objectif d’exalter la luminosité et de fluidifier la circulation. « Ce n’était pas très grand. C’était donc important que ce soit très lumineux », précise Marlène.
Le mur à droite de l’entrée, vu depuis la chambre, n’est plus nu. Il accueille un décor encadré de bois visible par l’arche ouvrant la chambre : un revêtement Orac Décor, qui habille le mur en relief, en accord avec le fil conducteur texturé de l’appartement.
Le mur à droite de l’entrée, vu depuis la chambre, n’est plus nu. Il accueille un décor encadré de bois visible par l’arche ouvrant la chambre : un revêtement Orac Décor, qui habille le mur en relief, en accord avec le fil conducteur texturé de l’appartement.
On retrouve un jeu de formes douces : arche de la tête de lit, torsade de l’applique murale, emboîtements circulaires de la table de nuit. Bois, céramique et textile, les matières sont simples, naturelles et propres à créer un effet cocon.
Un papier peint très léger revêt le mur. « Il y a un jeu de lumière ombré, un décor en relief, on voulait un papier qui se fonde dans le décor tout en l’habillant un peu ton sur ton, ne pas laisser un grand mur blanc ». Sur la partie inférieure du mur, on retrouve un relief vertical ondulé qui reprend la texture de la crédence de cuisine.
Papier peint : Isidore Leroy
Un papier peint très léger revêt le mur. « Il y a un jeu de lumière ombré, un décor en relief, on voulait un papier qui se fonde dans le décor tout en l’habillant un peu ton sur ton, ne pas laisser un grand mur blanc ». Sur la partie inférieure du mur, on retrouve un relief vertical ondulé qui reprend la texture de la crédence de cuisine.
Papier peint : Isidore Leroy
Cette autre arche maçonnée sur mesure abrite le bureau, muni à sa gauche d’une petite desserte permettant de poser de menus objets. Comme dans le salon, les jeux de géométrie sont subtils et animent l’espace. D’une part, dans le global, de l’équilibre et de la symétrie, qui reposent l’oeil et donnent une grande impression d’unité ; d’autre part, dans le détail, des fantaisies, des lignes inattendues, des ruptures de continuité.
Concernant le choix de faire cette arche plutôt que des colonnes de rangements supplémentaires, Marlène remarque : « pour ce pied-à-terre, une penderie chacun suffisait, et c’était plus joli de voir cela depuis le lit plutôt qu’un dressing. On ramène ici la rondeur du miroir, des lampes, des ampoules, des formes géométriques, un peu organiques, et encore de touches de jaune. La suspension de la chambre à plusieurs pales est dans une matière textile, plutôt crème ».
Concernant le choix de faire cette arche plutôt que des colonnes de rangements supplémentaires, Marlène remarque : « pour ce pied-à-terre, une penderie chacun suffisait, et c’était plus joli de voir cela depuis le lit plutôt qu’un dressing. On ramène ici la rondeur du miroir, des lampes, des ampoules, des formes géométriques, un peu organiques, et encore de touches de jaune. La suspension de la chambre à plusieurs pales est dans une matière textile, plutôt crème ».
Entre l’arche et la fenêtre, nous découvrons les portes de placard, qui se détachent sur le blanc. « Avec le parquet en bois, on voulait ramener un peu de chaleur, par touches. Ici, c’est avec le cannage des portes, qui apporte en plus un côté un peu rétro. Les rideaux sont en lin et coton bio, un peu ajourés, avec du jacquard et, toujours, le fil conducteur du relief : ici, il y a un tramé ».
Rideaux : Gabriel Paris
Rideaux : Gabriel Paris
Les suspensions lumineuses de la zone bureau viennent de Studio Schneid. Marlène apprécie l’originalité et la variété qu’offre cette enseigne : « on y trouve beaucoup de modèles combinant plein de couleurs et de formes différentes ».
Pour compléter l’habillage de l’espace blanc, Marlène a maçonné ces étagères asymétriques. On découvre également un nouveau miroir encadré dans un arrondi irrégulier.
Après. Une salle de bains confortable, avec baignoire, était souhaitée. Voici comment la nouvelle pièce apparaît depuis l’entrée : épurée, douce, et bien plus lumineuse que l’ancienne cuisine qu’elle remplace.
En cours de travaux. Nous assistons ici au façonnage des éléments clés qui peaufineront la future salle de bains et l’harmoniseront au reste de l’appartement.
En bas, de nouvelles maçonneries murales blanches, qui, comme dans le salon et la chambre, habillent le mur sans nécessiter de meubles supplémentaires. En hauteur, le percement d’arches en verre a plusieurs effets : faire circuler la lumière dans toutes les zones, mais aussi prolonger des fils conducteurs esthétiques – la forme en arche et le choix d’un relief, la séparation s’opérant par un verre strié, de même relief que la crédence, et qui permet de flouter la vue pour préserver l’intimité.
En bas, de nouvelles maçonneries murales blanches, qui, comme dans le salon et la chambre, habillent le mur sans nécessiter de meubles supplémentaires. En hauteur, le percement d’arches en verre a plusieurs effets : faire circuler la lumière dans toutes les zones, mais aussi prolonger des fils conducteurs esthétiques – la forme en arche et le choix d’un relief, la séparation s’opérant par un verre strié, de même relief que la crédence, et qui permet de flouter la vue pour préserver l’intimité.
Après. Marlène a imaginé un carrelage effet travertin qui monte jusqu’à mi-arche : « Nous avons choisi de ne pas aller en haut, couper ainsi l’arche en deux la met en valeur, crée une ligne et donne une impression de hauteur agréable tout en apportant de la luminosité ». Le carrelage rose qui surplombe la baignoire offre un effet marbré, avec une touche de préciosité.
Voici la zone des lavabos. Les tons restent épurés et clairs : blanc, beige, vasques en terrazzo rose pâle. Les WC se trouvent dérobés au regard par le muret arrondi du meuble vasque. Quant à ces grands miroirs aux contours flous, qui créent une légère impression d’emboîtement, « ils se vendent comme un ensemble, on peut en acheter un seul ou les deux, on a adoré l’ensemble ». La présence de ces miroirs fantaisie fait écho à ceux que l’on trouve également dans le séjour et dans la chambre, avec leurs formes atypiques, et apporte des jeux de lumière supplémentaire.
Marlène peut se féliciter du résultat. « Il y a de l’harmonie, du passage, de la lumière. On a agrandi les espaces, il n’y a plus rien d’étriqué, tout est confortable ». Quant à sa cliente, « elle adore l’appartement, elle m’a dit avoir envie d’y aller aussi, pour se reposer… ».
ET VOUS ?
Que pensez-vous de cette rénovation ?
ET VOUS ?
Que pensez-vous de cette rénovation ?



































Qui vit ici ? C’est un pied-à-terre qui appartient à une mère de 4 enfants
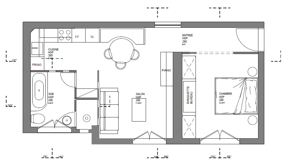
Emplacement : Paris, 17ᵉ
Surface/nombre de pièces : 43 m², 2 pièces
Durée/date du chantier : environ 2 mois et demi, livraison fin mai 2024
Architecte d’intérieur : Marlène Teixier-Schwartz de Maison Gabinel
Entreprise de rénovation : L’Art des rénovations
Budget : Environ 120 000 euros :
Photo : Laura Jacques