Projets nés sur Houzz
Avant/Après : Un pied-à-terre optimisé pour mieux changer de vie
Quand la propriétaire rompt, son pied-à-terre se mue en home sweet home moyennant des astuces déco et une optimisation
Pour limiter les allers-retours sur Paris où résident la plupart de ses clients, cette quinqua active, consultante en management, a acquis un studio dans le IXe arrondissement où elle passe une partie de la semaine. Au 7e étage sur cour d’un immeuble des années 70, la surface a été aménagée récemment et la nouvelle propriétaire ne fait guère plus que refaire le sol et poser un lit et une banquette. Mais quand sa vie de couple se complique, elle décide de quitter sa maison de province et d’emménager à plein temps dans le studio, où se pose tout à coup la question de l’optimisation spatiale et de la décoration des lieux.
La propriétaire a beau avoir géré par le passé des rénovations de maisons, repenser une petite surface pour y vivre confortablement au quotidien est une autre paire de manches… Elle sent rapidement qu’elle a besoin de se faire épauler et contacte d’abord une architecte, laquelle l’oriente vers Aude Groshaeny, architecte d’intérieur et designer d’espace, dont la sensibilité artistique, héritée de sa formation aux Beaux-Arts, conquiert immédiatement la propriétaire.
La propriétaire a beau avoir géré par le passé des rénovations de maisons, repenser une petite surface pour y vivre confortablement au quotidien est une autre paire de manches… Elle sent rapidement qu’elle a besoin de se faire épauler et contacte d’abord une architecte, laquelle l’oriente vers Aude Groshaeny, architecte d’intérieur et designer d’espace, dont la sensibilité artistique, héritée de sa formation aux Beaux-Arts, conquiert immédiatement la propriétaire.
Avant. Au septième étage d’un immeuble récent, le studio de 30 m² était en bon état général au moment de l’achat. Aménagé rationnellement, il disposait de pièces d’eau cloisonnées à l’entrée et d’une pièce de vie de 20 m² ouvrant sur une vue dégagée, prolongée par un balcon filant. Plusieurs placards de bonne facture, réalisés sur mesure, se trouvaient déjà dans le logement.
Depuis qu’elle le possédait, la propriétaire avait simplement fait poser un parquet en chêne contrecollé, à même lequel elle avait installé son matelas pour dormir. Côté salon, elle avait acquis en outre une banquette et un fauteuil. Mais quand celle-ci prend la décision d’aller vivre dans le studio au quotidien, elle se lasse vite de ces « aménagements d’étudiant ». Elle compte bien muer le pied à terre en cocon chaleureux et accueillant.
Depuis qu’elle le possédait, la propriétaire avait simplement fait poser un parquet en chêne contrecollé, à même lequel elle avait installé son matelas pour dormir. Côté salon, elle avait acquis en outre une banquette et un fauteuil. Mais quand celle-ci prend la décision d’aller vivre dans le studio au quotidien, elle se lasse vite de ces « aménagements d’étudiant ». Elle compte bien muer le pied à terre en cocon chaleureux et accueillant.
Plan avant travaux
Après. « La propriétaire est venue me trouver avec un budget de 20 000 euros afin d’optimiser en priorité la surface avec un coin chambre. Elle souhaitait également un vrai coin repas, éventuellement pour recevoir et par ailleurs, redonner de la lumière à la cuisine qui se présentait comme un couloir obscur. Enfin, sa dernière problématique était celle du rangement : elle avait une garde-robe conséquente et une collection de chaussures impressionnante ainsi que de la vaisselle de famille », explique Aude Groshaeny, l’architecte d’intérieur, en compagnie de laquelle nous avons fait la visite de l’appartement.
Banquette et fauteuil : Pomax
Banquette et fauteuil : Pomax
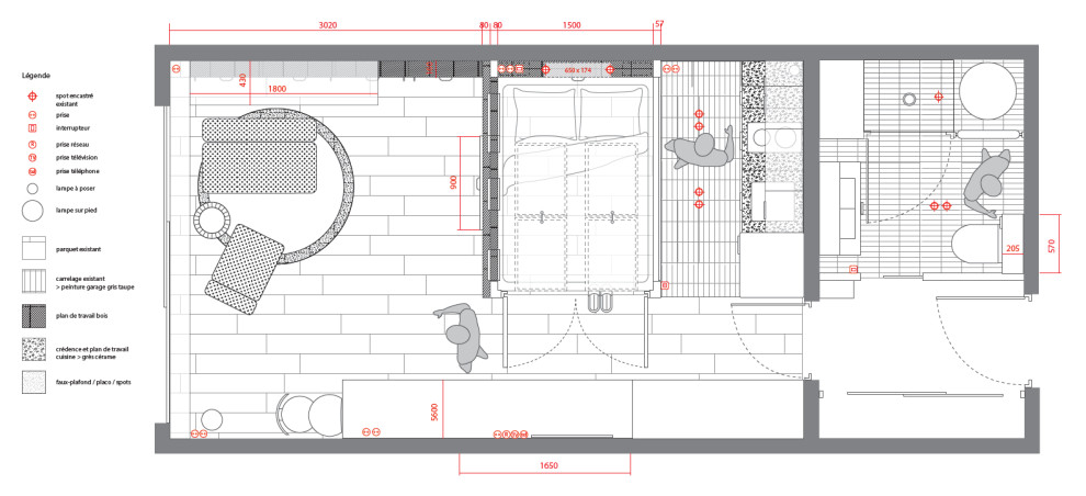
Plan après travaux
Avant. Lorsque la propriétaire usait du studio comme pied-à-terre, elle avait déjà fait l’impasse sur le contraignant sofa à transformer en lit tous les soirs et avait préféré poser son matelas parterre, le long du mur de la cuisine. Aujourd’hui, elle était en recherche de davantage de confort.
Trouvez un architecte d’intérieur sur Houzz
Trouvez un architecte d’intérieur sur Houzz
Après. « C’était une priorité pour la propriétaire de disposer d’un vrai coin chambre dans cette pièce de vie. Tout au départ, elle a évoqué un lit-armoire escamotable estimant elle-même très vite que ce n’était pas la solution. Puis elle m’a parlé de l’idée d’un claustra ajouré et a compris dans la foulée qu’elle avait envie d’un aménagement abouti avec de beaux matériaux. Nous avons fait le point sur son budget et elle a décidé d’elle-même de le revoir à la hausse pour qu’il soit en phase avec ses envies de confort, d’esthétisme et de pérennité », poursuit la professionnelle.
Plan projeté en 3D
En très bon état, la salle de bains desservie depuis l’entrée (non visible sur cette 3D) n’a pas été modifiée. La cuisine récemment équipée est également restée à sa place. L’essentiel de l’intervention d’Aude Groshaeny a consisté à créer un coin nuit fixe de 1,50 x 2 mètres dans le salon, cloisonné par un claustra graphique.
En très bon état, la salle de bains desservie depuis l’entrée (non visible sur cette 3D) n’a pas été modifiée. La cuisine récemment équipée est également restée à sa place. L’essentiel de l’intervention d’Aude Groshaeny a consisté à créer un coin nuit fixe de 1,50 x 2 mètres dans le salon, cloisonné par un claustra graphique.
Avant. À la faveur de l’idée de ce claustra ajouré, l’architecte d’intérieur y a vu un bon moyen d’éclaircir la cuisine d’origine qui se présentait comme un étroit couloir sans aucune lumière naturelle.
Après. Pour ce faire, elle a fait déposer en partie la cloison entre la cuisine et le salon afin de poursuivre le traitement ajouré du coin nuit sur tout son pourtour. Aujourd’hui, la cuisine récupère la lumière naturelle de la baie vitrée, qui traverse le coin nuit.
« La cuisine n’était pas une pièce essentielle pour la propriétaire. La plupart du temps elle n’y fait que passer pour se faire un café ou réchauffer un plat. Nous avons néanmoins placé une plaque de verre le long du claustra côté cuisine pour éviter les graisses et les odeurs », détaille la pro.
Pour gagner en sensation d’espace, Aude a également proposé de récupérer 20 cm de hauteur dans la cuisine en éliminant l’ancienne climatisation, encastrée dans un faux plafond en dalles des années 70 : « Elle faisait un boucan d’enfer ! », plaisante-t-elle.
Pour gagner en sensation d’espace, Aude a également proposé de récupérer 20 cm de hauteur dans la cuisine en éliminant l’ancienne climatisation, encastrée dans un faux plafond en dalles des années 70 : « Elle faisait un boucan d’enfer ! », plaisante-t-elle.
Si la partie dépose, peinture et réfection des plafonds et électricité a été gérée par ELM BAT « une entreprise tout corps d’état discrète et efficace avec laquelle je travaille depuis dix ans », explique Aude, elle a décidé de faire appel à la société Hopfab pour la partie menuiserie sur mesure : « Je les ai repérés sur Houzz depuis longtemps pour leurs projets inventifs et dans l’air du temps mais attendais d’avoir un projet d’ampleur à leur proposer. Je n’ai pas été déçue ! Sans eux mon dessin n’aurait pas pu exister et ils ont véritablement géré l’ouvrage central de ce projet au millimètre près. »
Trouvez un menuisier sur Houzz
Trouvez un menuisier sur Houzz
Le coin nuit, récupéré sur une partie de la pièce de vie est en effet le cœur et la perle de l’appartement.
Le soubassement de 90 cm de haut a été réalisé en Placo sur lequel est venu se placer le claustra en bois : « Il est en sapin brut côté salon et en medium peint en blanc côté cuisine. Comme je le souhaitais à fleur de la cloison de 72 mm d’épaisseur, ses montants ont été découpés dans des panneaux de sapin massifs. Pour éviter le côté trop régulier qui aurait rappelé des barreaux de prison, des niches de 11 cm de profondeur sont venues animer la composition. Elles permettent de poser des objets de déco ou placer des livres de poche », explique Aude.
À ceux qui se posent la question de savoir si un tel agencement est agréable à vivre, la propriétaire, qui s’est installée depuis quelques mois, y a bien vécu la canicule de cet été et affirme se sentir dans cette chambre-cocon « comme dans une cabine de bateau ». Les montants du claustra jouent parfaitement leur rôle, laissant traverser l’air et la lumière tout en créant une séparation qui permet de se sentir protégé.
Le soubassement de 90 cm de haut a été réalisé en Placo sur lequel est venu se placer le claustra en bois : « Il est en sapin brut côté salon et en medium peint en blanc côté cuisine. Comme je le souhaitais à fleur de la cloison de 72 mm d’épaisseur, ses montants ont été découpés dans des panneaux de sapin massifs. Pour éviter le côté trop régulier qui aurait rappelé des barreaux de prison, des niches de 11 cm de profondeur sont venues animer la composition. Elles permettent de poser des objets de déco ou placer des livres de poche », explique Aude.
À ceux qui se posent la question de savoir si un tel agencement est agréable à vivre, la propriétaire, qui s’est installée depuis quelques mois, y a bien vécu la canicule de cet été et affirme se sentir dans cette chambre-cocon « comme dans une cabine de bateau ». Les montants du claustra jouent parfaitement leur rôle, laissant traverser l’air et la lumière tout en créant une séparation qui permet de se sentir protégé.
On pénètre dans le coin nuit par deux portes coulissantes de 74 cm arrimées à un rail unique en partie haute. Les portes coulissent toutes deux à droite ou à gauche, selon le besoin : « Outre l’animation permise par le jeu des portes, cela permet de sortir d’un côté ou d’un autre de l’alcôve ce qui peut être pratique à deux », souligne l’architecte d’intérieur.
Au niveau de la tête de lit, des spots ont été intégrés dans le faux plafond tandis qu’une tablette menuisée de 16 cm de profondeur et placée à 92 cm de haut, offre des niches ouvertes et fermées pour ranger le nécessaire de nuit.
Sous le lit rehaussé de 60 cm de haut et soutenu par un sommier à lattes, deux tiroirs sur roulettes ont été prévus pour ranger le linge de lit et les couvertures supplémentaires. « Ils font 110 cm de long et ont été calculés au plus juste pour pouvoir passer sous les placards gris qui se trouvent face à la porte de l’espace nuit », dévoile l’architecte d’intérieur.
Vu du séjour, le coin nuit avec son claustra ajouré rayonne tel le bijou de l’appartement : « C’est pour cela que nous avons par ailleurs choisi des couleurs claires et neutres, du blanc et du gris pâle. Nous voulions laisser la part belle au bois et au graphisme de la menuiserie », insiste la pro.
Vu du séjour, le coin nuit avec son claustra ajouré rayonne tel le bijou de l’appartement : « C’est pour cela que nous avons par ailleurs choisi des couleurs claires et neutres, du blanc et du gris pâle. Nous voulions laisser la part belle au bois et au graphisme de la menuiserie », insiste la pro.
Une fois gérés le coin nuit et la mise en lumière de la cuisine, restaient à régler les problématiques du rangement et du coin repas : « Nous avons conservé au maximum les placards d’origine bien conçus, en particulier à l’entrée et en partie haute au salon. Nous avons prolongé la ligne du claustra en formant un L jusqu’à la baie vitrée, au moyen de placards de faible profondeur (16 cm) dans lesquels est rangée la vaisselle. Pour alléger visuellement, le menuisier a créé des tiroirs en trompe-l’œil en rainurant le médium à peindre. Nous avons optimisé le rendu avec des poignées en cuir et un pan de mur en papier peint au motif éventails et touches dorées sur lequel a craqué la propriétaire. »
Papier peint : Papermint
Papier peint : Papermint
Le coin déjeuner a représenté à lui seul un temps d’étude conséquent : « Il fallait le caser quelque part, qu’il soit joli et surtout facile à manipuler car la propriétaire ne voulait pas quelque chose de difficile à transformer. Nous avons étudié plusieurs mécanismes avant de retenir celui-ci qui permet de déployer les pieds comme les ailes du papillon. Ceux-ci viennent se stopper dans des guides sous le plateau dont jamais on ne supporte le poids le temps de l’opération de mise en place », explique Aude.
Quant à la forme ronde, elle permet de loger éventuellement un troisième convive à table et apporte de la douceur à la réalisation par ailleurs assez anguleuse.
Quant à la forme ronde, elle permet de loger éventuellement un troisième convive à table et apporte de la douceur à la réalisation par ailleurs assez anguleuse.
Pour l’anecdote, les deux femmes ont passé en revue un nombre incalculable de chaises pliantes afin de trouver le modèle logeable dans l’un des placards de faible profondeur du salon. Estimant qu’elle n’avait plus l’âge des restrictions estudiantines, la propriétaire a finalement décidé de se faire plaisir avec l’iconique TS de Roger Tallon, une réédition de cette chaise pliante datant de 1977 chez Sentou (240 euros l’unité). Elle ne le regrette pas car un petit espace gagne toujours à marquer les esprits avec une ou deux pièces d’ameublement phare.
Et Aude de conclure : « C’était un chantier idéal qui a fait appel à ce que je préfère dans mon travail : peu de gros œuvre et de rénovation pure et dure, mais de l’optimisation spatiale et de la créativité esthétique. Avec la propriétaire nous parlions le même langage et avons fait avancer les choses à quatre mains à raison de deux à trois rendez-vous par mois. Ce chantier m’a d’ailleurs mise dans de belles dispositions au point que j’ai repris le dessin comme dans mes années aux Beaux-Arts et réalisé des encres représentant des végétaux dans le ton de l’appartement. La propriétaire a d’ailleurs voulu me les acheter en mémoire de cinq mois d’une belle relation. À la livraison, elle m’a même demandé de continuer à nous voir en tant qu’amies ! »
Budget détaillé (TTC) :
ET VOUS ?
Que pensez-vous de cette transformation ?
Découvrez d’autres avant/après
Trouvez des professionnels près de chez vous sur Houzz
Plus de photos déco
Et Aude de conclure : « C’était un chantier idéal qui a fait appel à ce que je préfère dans mon travail : peu de gros œuvre et de rénovation pure et dure, mais de l’optimisation spatiale et de la créativité esthétique. Avec la propriétaire nous parlions le même langage et avons fait avancer les choses à quatre mains à raison de deux à trois rendez-vous par mois. Ce chantier m’a d’ailleurs mise dans de belles dispositions au point que j’ai repris le dessin comme dans mes années aux Beaux-Arts et réalisé des encres représentant des végétaux dans le ton de l’appartement. La propriétaire a d’ailleurs voulu me les acheter en mémoire de cinq mois d’une belle relation. À la livraison, elle m’a même demandé de continuer à nous voir en tant qu’amies ! »
Budget détaillé (TTC) :
- Menuiserie sur mesure (Hopfab) : 16 500 euros
- Travaux ( Entreprise Tous corps d’état ELM BAT) : 12 000 euros
- Décoration : Chaises Roger Tallon 480 € les deux chez Sentou + 100 € les 10 m linéaires de papier peint (en 53 cm de large) chez PaperMint
- Honoraires architecte d’intérieur : 5600 euros
ET VOUS ?
Que pensez-vous de cette transformation ?
Découvrez d’autres avant/après
Trouvez des professionnels près de chez vous sur Houzz
Plus de photos déco























Qui vit ici : une consultante en management de 55 ans
Superficie : 30 m²
Emplacement : Rue du Delta, 75009 Paris
Livraison du projet : juillet 2019
Durée des travaux : 5 mois
Architecte d’intérieur : Aude Groshaeny de Décodage Création
Entreprise tout corps d’état : ELM BAT
Menuiserie : Hopfab
Budget : 35 000 euros (budget détaillé en fin d’article)
Photos : © Thibault Pousset