Visites Privées
Dossiers populaires
Avant/Après : Un studio de 33 m2 idéalement optimisé en mini-T2
Budget serré et belles propositions spatiales et esthétiques caractérisent cette rénovation à Paris 18e
Entre Pigalle et Montmartre, à deux pas de la mythique salle de concert La Cigale, cet investisseur vient d’acquérir un studio de 33 m² qu’il compte proposer prochainement à la location. La problématique est classique : ce maître d’ouvrage souhaiterait que le studio soit enrichi d’un coin nuit pour être transformé en mini deux-pièces. Pour ce faire, il a cerné un bien transformable en ce sens et, pour y parvenir de la meilleure des manières, fait appel à Olivier Lekien, un architecte rompu à l’optimisation des coûts, des espaces et du rendu esthétique.
Avant. Déserté de longue date, ce studio au calme absolu dans une impasse privée du 18ᵉ était très défraîchi. En ce qui concerne son plan, son unique pièce de vie sur parquet était précédée d’une cuisine et d’une salle de bains desservies par le couloir d’entrée.
Bien qu’orienté nord-est, au second étage côté cour d’un immeuble en briques du 19ᵉ, sa clarté a marqué l’architecte Olivier Lekien lors de sa première visite. « C’était le bien parfait à transformer car il avait de nombreuses fenêtres permettant une flexibilité dans la réflexion. Un vrai luxe ! », se remémore-t-il.
Trouvez un architecte près de chez vous sur Houzz
Bien qu’orienté nord-est, au second étage côté cour d’un immeuble en briques du 19ᵉ, sa clarté a marqué l’architecte Olivier Lekien lors de sa première visite. « C’était le bien parfait à transformer car il avait de nombreuses fenêtres permettant une flexibilité dans la réflexion. Un vrai luxe ! », se remémore-t-il.
Trouvez un architecte près de chez vous sur Houzz
Après. L’architecte projette donc de transformer la cuisine avec fenêtre en coin nuit et de déplacer la cuisine dans la pièce de vie. Puis d’optimiser l’entrée et la salle d’eau afin de fournir davantage de confort et de rangements à la petite surface.
Enfin, pour donner toutes ses chances à cet appartement d’être loué rapidement, il s’est livré à une belle optimisation design, qu’il nous a détaillée.
Enfin, pour donner toutes ses chances à cet appartement d’être loué rapidement, il s’est livré à une belle optimisation design, qu’il nous a détaillée.
Avant. Sur ce visuel avant travaux, nous distinguons le couloir d’entrée desservant la cuisine puis la salle d’eau depuis la pièce de vie.
Après. Projetant de dédier au couchage le volume fermé de la cuisine d’origine, l’architecte a réintégré cette fonction dans la pièce de vie. Pour amoindrir l’impact visuel de la cuisine dans le séjour, il a dissocié le linéaire des colonnes et les a placées de part et d’autre de la circulation.
Avant. Une porte isolait le couloir de la pièce de vie. Cette porte a été ôtée et la cloison abattue jusqu’au plafond, ce qui engendre davantage de perspective et de fluidité dans la circulation.
Après. La dissociation de la cuisine de part et d’autre du couloir est une très bonne astuce de gain de place. « On a pu ainsi maintenir une cuisine digne d’un appartement beaucoup plus vaste avec un linéaire de 225 centimètres, deux colonnes pleine hauteur de 60 centimètres de large et un combiné réfrigérateur/congélateur, soit plus de 4 mètres linéaires de cuisine », expose en effet l’architecte.
Avant. La pièce de vie tapissée de paille japonaise servait aussi de chambre avec le lit anciennement en plein centre. Question design, il fallait tout réinventer et créer un décor qui puisse retenir l’œil d’un potentiel locataire.
Après. « Hormis la belle fenêtre et le parquet en chêne, il n’y avait aucun élément de charme ici… »
L’architecte a conservé la fenêtre en état et capitalisé sur le sol en le faisant poncer et vitrifier mat pour lui redonner de la superbe. Afin de prolonger cette touche historique, il a fait fabriquer les meubles de cuisine en MDF blanc laqué avec des chants plaqués chêne.
L’architecte avait conseillé de changer le radiateur à eau chaude collective pour un individuel électrique avec thermostat mais le chauffagiste de l’immeuble a déconseillé l’opération. Le radiateur existant a donc été coffré esthétiquement : « À gauche du linéaire de cuisine, nous avons fait faire un coffrage en MDF peint avec un maximum de percements pour conserver l’efficacité énergétique », indique Olivier Lekien.
Plus de photos de petits espaces sur Houzz
L’architecte a conservé la fenêtre en état et capitalisé sur le sol en le faisant poncer et vitrifier mat pour lui redonner de la superbe. Afin de prolonger cette touche historique, il a fait fabriquer les meubles de cuisine en MDF blanc laqué avec des chants plaqués chêne.
L’architecte avait conseillé de changer le radiateur à eau chaude collective pour un individuel électrique avec thermostat mais le chauffagiste de l’immeuble a déconseillé l’opération. Le radiateur existant a donc été coffré esthétiquement : « À gauche du linéaire de cuisine, nous avons fait faire un coffrage en MDF peint avec un maximum de percements pour conserver l’efficacité énergétique », indique Olivier Lekien.
Plus de photos de petits espaces sur Houzz
Ayant fait plusieurs essais de couleur, il a emporté l’adhésion du propriétaire avec un décor basé sur du blanc, du bois clair et des touches terracotta, une teinte qui a le chic pour rendre l’ambiance chaleureuse. « Avec les aplats terracotta, nous avons voulu mettre en avant un côté graphique. La grande réussite est d’avoir trouvé une peinture et un carreau de crédence dont les teintes matchaient parfaitement », partage Olivier Lekien.
On note un grand soin dans les détails avec une tablette bois qui part depuis le dessus du radiateur, longe les carreaux et se prolonge jusque dans la bibliothèque. « Quand on pose une baguette bois au dessus de la tranche du carrelage, on la fait déborder de 3 millimètres pour éviter les faux raccords. Dans un petit projet, c’est important de s’amuser sur les détails » estime-t-il.
Peinture : Farrow & Ball n° 50 _ Book Room ; Carrelage : Villeroy & Boch ; lampe : Flowerpot chez &Tradition
On note un grand soin dans les détails avec une tablette bois qui part depuis le dessus du radiateur, longe les carreaux et se prolonge jusque dans la bibliothèque. « Quand on pose une baguette bois au dessus de la tranche du carrelage, on la fait déborder de 3 millimètres pour éviter les faux raccords. Dans un petit projet, c’est important de s’amuser sur les détails » estime-t-il.
Peinture : Farrow & Ball n° 50 _ Book Room ; Carrelage : Villeroy & Boch ; lampe : Flowerpot chez &Tradition
En matière de plan de travail, il a préconisé un plan en Corian de 2 centimètres d’épaisseur : « C’est une matière résistante qui convient bien à de la location et qui permet d’avoir un évier intégré dans la continuité », note-t-il.
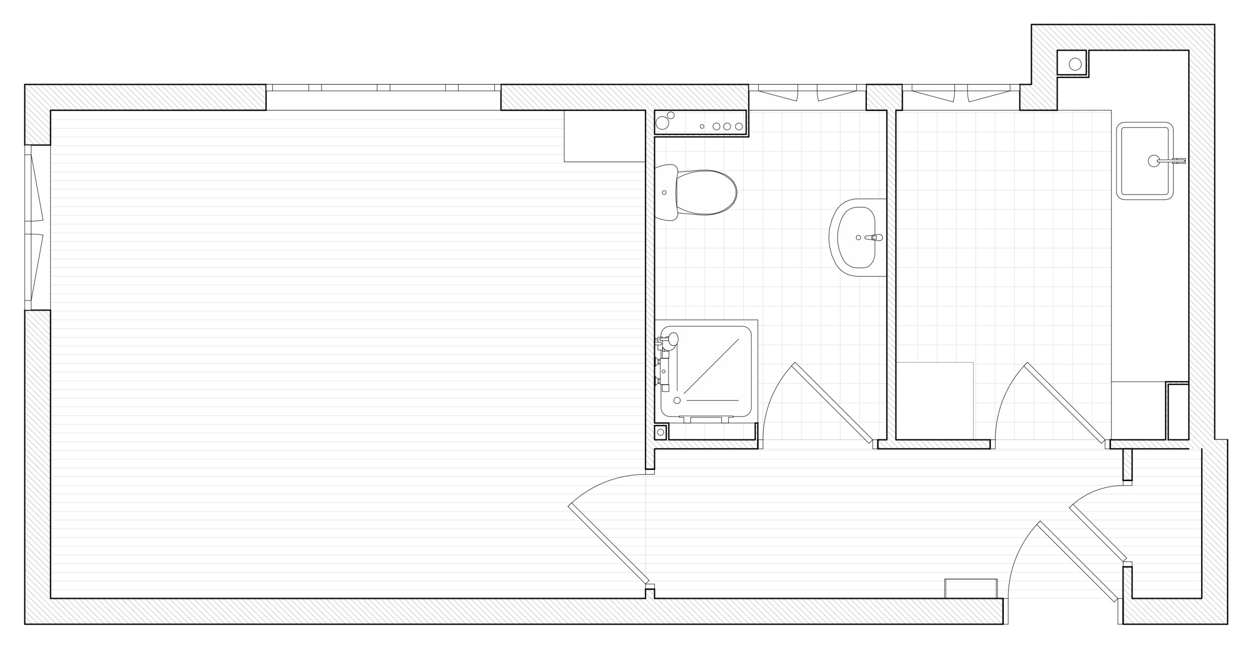
Juste derrière le linéaire de la cuisine, la salle d’eau a été préservée au centre de l’appartement, en raison de l’emplacement des évacuations. La colonne était d’ailleurs placée en plein centre de l’espace, contraignant le plan.
Mais en bon architecte qui sait muer les obstacles en atouts, Olivier Lekien a « déshabillé la colonne pour gagner de l’espace et a profité de sa rondeur pour fluidifier la circulation. »
Mais en bon architecte qui sait muer les obstacles en atouts, Olivier Lekien a « déshabillé la colonne pour gagner de l’espace et a profité de sa rondeur pour fluidifier la circulation. »
Avant. Voici la vue d’origine du studio depuis la porte d’entrée.
Après. Le couloir a été entièrement retravaillé pour fournir un accès plus fluide, enrichi en rangements. Le compteur électrique a été plaqué et une banquette créée sur mesure pour se chausser et ranger les chaussures à l’intérieur. Le grand placard d’entrée pour les vêtements a été conservé et amélioré. Face à la banquette, l’ancienne entrée de la salle d’eau a laissé place au réfrigérateur/congélateur, ce qui permet de « minimiser considérablement son impact visuel, tout en le maintenant à proximité immédiate du linéaire de cuisine ».
Déportées à la suite de la banquette d’entrée, les autres colonnes de cuisine toute hauteur, profondes de 35 centimètres, offrent un grand volume parfaitement intégré. « Elles sont dédiées au rangement de la vaisselle. Nous ne voulions pas rogner sur la capacité de stockage », partage l’architecte.
Déportées à la suite de la banquette d’entrée, les autres colonnes de cuisine toute hauteur, profondes de 35 centimètres, offrent un grand volume parfaitement intégré. « Elles sont dédiées au rangement de la vaisselle. Nous ne voulions pas rogner sur la capacité de stockage », partage l’architecte.
Avant. Voici la petite cuisine fermée avant travaux.
Après. La cuisine d’origine a été transformée en chambre. « Comme la pièce ne fait que 8 m², on parle de coin nuit et non de chambre qui requiert une surface minimale de 9 m² mais on vit néanmoins cet appartement comme un deux-pièces », explique l’architecte.
L’accès de l’ex-cuisine a été modifié avec deux portes coulissantes à galandage en regard afin d’ouvrir la chambre en grand sur le couloir et de lui donner plus de perspective, à défaut de volume. L’ouverture de la salle de bains a également été modifiée : celle-ci donne désormais sur la chambre, pour créer une suite confortable comme dans un hôtel. « Afin de délimiter la suite du reste de l’appartement, le sol de la chambre jusqu’à la salle de bains a été unifié par application d’un béton ciré de chez Mercadier, avec la teinte Cocomilk, la plus claire », indique le professionnel.
L’accès de l’ex-cuisine a été modifié avec deux portes coulissantes à galandage en regard afin d’ouvrir la chambre en grand sur le couloir et de lui donner plus de perspective, à défaut de volume. L’ouverture de la salle de bains a également été modifiée : celle-ci donne désormais sur la chambre, pour créer une suite confortable comme dans un hôtel. « Afin de délimiter la suite du reste de l’appartement, le sol de la chambre jusqu’à la salle de bains a été unifié par application d’un béton ciré de chez Mercadier, avec la teinte Cocomilk, la plus claire », indique le professionnel.
Dans la chambre, des rangements ont été créés sur mesure : une colonne dressing à l’entrée, deux placards bas sous la fenêtre et une bibliothèque dans un recoin existant qui forme désormais la tête de lit.
Le code couleur a été prolongé en harmonie avec des meubles blancs au liseré de chêne et des touches terracotta.
Dans la salle de bains, la douche d’origine a été déplacée afin de céder la place au combiné réfrigérateur. « Nous avons réussi à passer l’évacuation sous le frigo », se félicite l’architecte. Nous retrouvons dans la douche le graphisme de la crédence grâce aux carreaux 10x10 et des touches bijoux délicates insufflées par des éléments arrondis et dorés.
Pour conclure, Olivier Lekien partage son intérêt pour les petits projets tout en mettant en garde les maîtres d’ouvrage. « Ce sont des projets chronophages et peu rémunérateurs pour les professionnels mais, paradoxalement, les plus inventifs. Dans ces projets, le processus de création est continu car, postdémolition, ils nécessitent de réadapter incessamment le dessin de départ jusqu’à la fin du projet. D’où l’addition finale, qui peut être relativement élevée pour un particulier. » À moins de 1400 euros le mètre carré pour la rénovation intégrale de cette petite surface, Olivier Lekien signe néanmoins un projet au rendu et au budget idéalement maîtrisés.
ET VOUS ?
Que pensez-vous de cette rénovation ?
Pour conclure, Olivier Lekien partage son intérêt pour les petits projets tout en mettant en garde les maîtres d’ouvrage. « Ce sont des projets chronophages et peu rémunérateurs pour les professionnels mais, paradoxalement, les plus inventifs. Dans ces projets, le processus de création est continu car, postdémolition, ils nécessitent de réadapter incessamment le dessin de départ jusqu’à la fin du projet. D’où l’addition finale, qui peut être relativement élevée pour un particulier. » À moins de 1400 euros le mètre carré pour la rénovation intégrale de cette petite surface, Olivier Lekien signe néanmoins un projet au rendu et au budget idéalement maîtrisés.
ET VOUS ?
Que pensez-vous de cette rénovation ?
























Qui vit ici : un locataire
Emplacement : au deuxième étage sur cour d’un immeuble ancien (Paris XVIIIᵉ)
Superficie : 33 m²
Date et durée des travaux : 4 mois, livraison mars 2022
Architecte : Olivier Lekien
Entreprise tout corps d’état : Studio 26 (équipe : Camille Piraud)
Lot Menuiserie : Société MFA à paris (Mauricio)
Budget : 45 000 euros
Photos : Rodrigo Apolaya