Avant/Après : Un triplex métamorphosé au cœur de Montmartre
Ce 120 m² sur trois niveaux a été rénové en 3 mois pour 100 000 euros grâce aux choix judicieux de Maïa Descombes
À Montmartre, rue Chappe, une famille de quadragénaires, avec deux enfants, réside depuis cinq ans dans un triplex de 120 m² occupant les étages inférieurs d’un immeuble à pans de bois de 1875. L’arrivée imminente d’un troisième enfant rend impérative une réorganisation de son logement. Pour ce faire, ils ont sollicité La Compagnie de la Maison, une entreprise générale de leurs connaissances. Celle-ci les a mis en relation avec Maïa Descombes, architecte d’intérieur, fondatrice de Poësis Studio, car son expertise et ses arbitrages sont indispensables pour repenser sur mesure l’aménagement et la décoration dans le respect d’un budget de 100 000 euros et un délai de trois mois. Lors de la visite des lieux, Maïa nous a fait part des priorités qui l’ont animée pour faire de ce projet un vrai succès.
Plan R+0 avant travaux
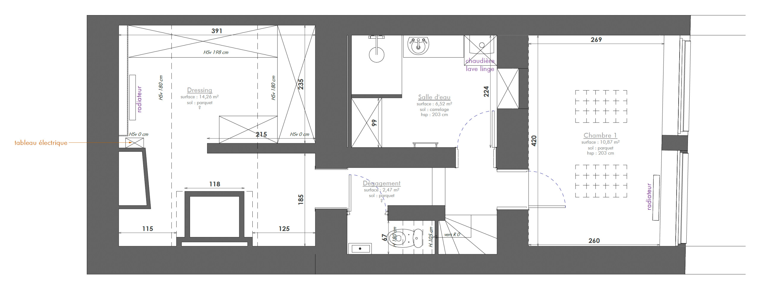
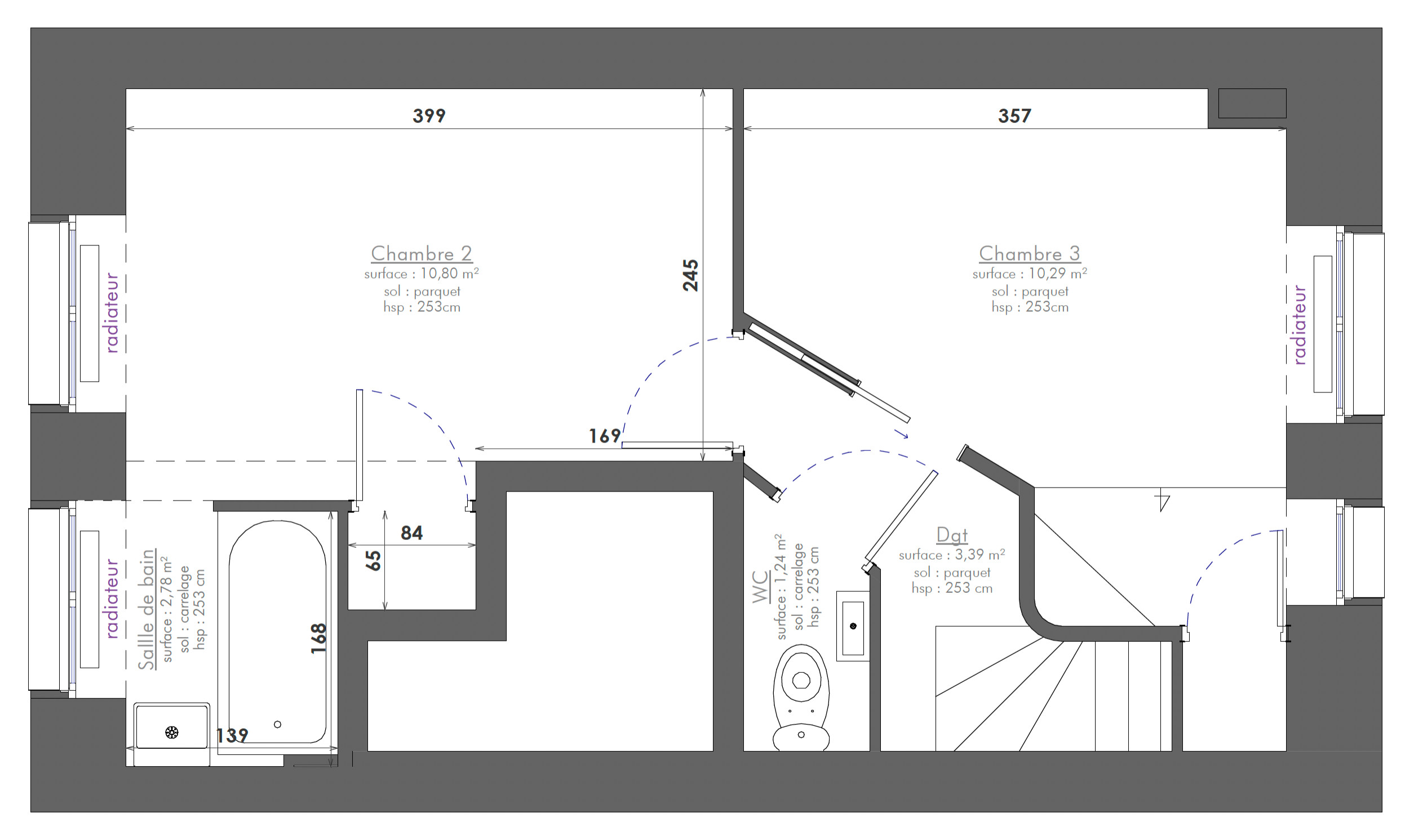
À deux pas du Sacré-Coeur, dans une des rues de la butte Montmartre connue pour ses escaliers, l’appartement de 120 m² est réparti en triplex : le rez-de-chaussée (50 m²), prolongé par une terrasse extérieure, comprend les pièces de vie, le sous-sol (40 m²) cache la suite parentale et le premier étage (30 m²) dessert deux chambres d’enfant avec leur salle de bains.
Le rez-de-chaussée se déploie en une enfilade d’environ 13 mètres de long, atteignant une largeur maximale de 4,20 mètres. La partie initiale, plus étroite, fait office d’entrée spacieuse, s’ouvrant directement sur un bureau situé face à l’escalier menant à l’étage. Au-delà d’un mur porteur se trouve la cuisine, suivie d’un agréable séjour sous verrière donnant sur la terrasse.
Trouvez une entreprise générale pour vos travaux sur Houzz
À deux pas du Sacré-Coeur, dans une des rues de la butte Montmartre connue pour ses escaliers, l’appartement de 120 m² est réparti en triplex : le rez-de-chaussée (50 m²), prolongé par une terrasse extérieure, comprend les pièces de vie, le sous-sol (40 m²) cache la suite parentale et le premier étage (30 m²) dessert deux chambres d’enfant avec leur salle de bains.
Le rez-de-chaussée se déploie en une enfilade d’environ 13 mètres de long, atteignant une largeur maximale de 4,20 mètres. La partie initiale, plus étroite, fait office d’entrée spacieuse, s’ouvrant directement sur un bureau situé face à l’escalier menant à l’étage. Au-delà d’un mur porteur se trouve la cuisine, suivie d’un agréable séjour sous verrière donnant sur la terrasse.
Trouvez une entreprise générale pour vos travaux sur Houzz
Plan : Projet R+ 0
Les priorités de cette rénovation sont claires. D’abord, réorganiser l’entrée, un espace vaste mais relégué au rôle de débarras, pour lui redonner une fonction digne de ce nom. Ensuite, créer une salle à manger, un luxe absent de cette maison. Au sous-sol, les parents rêvent d’une suite parentale plus attrayante, avec une salle de bains entièrement repensée. Enfin, à l’étage, il s’agit de relever un défi d’organisation : créer une chambre partagée pour les deux aînés, afin de libérer une pièce pour le nouveau-né.
Au-delà de ces impératifs fonctionnels, il y avait aussi une volonté de métamorphoser l’atmosphère de cet intérieur. Comment apporter de la lumière dans un espace tout en longueur, aux plafonds bas ? Comment insuffler un esprit déco, une âme à ce lieu ? « Le couple, passionné de voyages, rêvait d’un décor coloré qui évoque leur dernier séjour à Marrakech, dont ils avaient rapporté quelques souvenirs, en prévision de cette transformation », partage l’architecte d’intérieur Maïa Descombes.
Trouvez un architecte d’intérieur près de chez vous sur Houzz
Les priorités de cette rénovation sont claires. D’abord, réorganiser l’entrée, un espace vaste mais relégué au rôle de débarras, pour lui redonner une fonction digne de ce nom. Ensuite, créer une salle à manger, un luxe absent de cette maison. Au sous-sol, les parents rêvent d’une suite parentale plus attrayante, avec une salle de bains entièrement repensée. Enfin, à l’étage, il s’agit de relever un défi d’organisation : créer une chambre partagée pour les deux aînés, afin de libérer une pièce pour le nouveau-né.
Au-delà de ces impératifs fonctionnels, il y avait aussi une volonté de métamorphoser l’atmosphère de cet intérieur. Comment apporter de la lumière dans un espace tout en longueur, aux plafonds bas ? Comment insuffler un esprit déco, une âme à ce lieu ? « Le couple, passionné de voyages, rêvait d’un décor coloré qui évoque leur dernier séjour à Marrakech, dont ils avaient rapporté quelques souvenirs, en prévision de cette transformation », partage l’architecte d’intérieur Maïa Descombes.
Trouvez un architecte d’intérieur près de chez vous sur Houzz
Après. Transformée en un sas d’accueil confortable, l’entrée arbore désormais une ambiance chaleureuse avec ses murs terracotta. « On a voulu faire comme une petite boîte colorée, de façon à ramener de la lumière et une ambiance méditerranéenne pleine de gaieté depuis l’entrée », explique l’architecte d’intérieur.
Parquet contrecollé : Chêne Rustic Huilé, Décoplus
Parquet contrecollé : Chêne Rustic Huilé, Décoplus
Après. Un dressing et une banquette de rangement ont été intégrés pour apporter de la fonctionnalité à cette entrée. La séparation avec la cuisine se fait par des tasseaux ajourés qui structurent l’espace tout en préservant la perspective et la circulation lumineuse.
Peinture : Farrow & Ball, Picture Gallery Red n° 42
Peinture : Farrow & Ball, Picture Gallery Red n° 42
« Nous avons créé un dressing, une banquette de déchausse, des rangements bas et une niche pour poser les clés ou le courrier, le tout séparé par des claustras », détaille Maïa.
Pour réussir ce meuble d’entrée, des éléments standard (caissons Ikea) ont été combinés à des portes réalisées sur mesure en médium, peintes dans la même couleur que le reste de l’entrée. Des poignées en chêne massif de chez La Quincaillerie Saint-Germain apportent une touche de raffinement.
10 erreurs à éviter quand on aménage une entrée
Pour réussir ce meuble d’entrée, des éléments standard (caissons Ikea) ont été combinés à des portes réalisées sur mesure en médium, peintes dans la même couleur que le reste de l’entrée. Des poignées en chêne massif de chez La Quincaillerie Saint-Germain apportent une touche de raffinement.
10 erreurs à éviter quand on aménage une entrée
Après. Déplacée et complètement repensée, la cuisine s’intègre désormais en continuité du sas d’entrée dans l’ancien couloir de circulation. « Les évacuations se trouvaient non loin, à l’endroit où figure un triangle sur le plan, ce qui a facilité ce déplacement », explique Maïa.
L’un des points forts de cette nouvelle cuisine est sa capacité à offrir une perspective élargie jusqu’à l’extérieur. « En nous délestant de l’ancien plan bar de cuisine, nous avons pu retrouver une vue jusqu’à la terrasse », poursuit-elle.
L’un des points forts de cette nouvelle cuisine est sa capacité à offrir une perspective élargie jusqu’à l’extérieur. « En nous délestant de l’ancien plan bar de cuisine, nous avons pu retrouver une vue jusqu’à la terrasse », poursuit-elle.
Visible de l’entrée et placée dans la circulation, la cuisine a été travaillée à dessein dans un esprit minimaliste. « Nous avons laissé la couleur à l’entrée et traité la cuisine uniquement en deux matières : le bois et le zellige », décrit l’architecte d’intérieur. Même le groupe d’aspiration au-dessus de la plaque de cuisson a été coffré de la manière la plus invisible possible. Quant au lave-vaisselle, il se cache derrière la porte lisse juste après le claustra.
Face à ce linéaire technique, un autre linéaire de faible profondeur assure encore une belle quantité de rangements.
Aménagement : La cuisine dans la couloir d’entrée, bonne idée ?
Face à ce linéaire technique, un autre linéaire de faible profondeur assure encore une belle quantité de rangements.
Aménagement : La cuisine dans la couloir d’entrée, bonne idée ?
Des caissons Ikea ont été habillés de façades en chêne Arabica de chez Bocklip qui apportent beaucoup de chaleur. Le plan de travail et la crédence en zelliges de chez Mosaic Factory ajoutent une touche artisanale sophistiquée et des jeux de brillance qui ramènent de la lumière au centre de l’espace. Maïa apprécie leur pose avec les lignes qui se suivent depuis le plan jusqu’à la crédence et les découpes à 45° des angles. « La Compagnie de la Maison est une entreprise que je connais depuis longtemps et qui travaille très bien », glisse-t-elle. L’évier et la robinetterie, sélectionnés en noir chez Cuisissimo, disparaissent quasi totalement.
Zelliges : Faïence murale et plan zellige 10×10 cm, Mosaic Factory
Zelliges : Faïence murale et plan zellige 10×10 cm, Mosaic Factory
Avant. La cuisine se trouvait de l’autre côté du porteur à l’orée de la verrière et du séjour. La salle à manger était simplement inexistante dans l’agencement d’origine, la famille ne disposait d’aucun espace dédié aux repas autre que le plan bar. Ce fut d’ailleurs un motif majeur pour faire appel à des professionnels de la rénovation.
Après. Installée sur l’ancienne mezzanine où se trouvait la cuisine, la salle à manger offre désormais un espace convivial et fonctionnel. Sur la gauche, la famille a chiné une grande vitrine de type meuble de métier pour ranger sa belle vaisselle. « À l’origine, on a fait des études pour une banquette qui se prolonge en bibliothèque avec bureau intégré mais ça ne passait pas au niveau budget », explique Maïa Descombes. Malgré la contrainte budgétaire, l’espace a été bien optimisé, grâce à une grande table à manger.
Après. Cette localisation stratégique sur l’estrade permet à la salle à manger de bénéficier à la fois de la proximité avec la cuisine et d’une connexion visuelle avec le salon et la terrasse, ce qui forme un espace de vie assez idéal pour cette famille nombreuse.
« Grâce à la suppression du plan bar, on jouit désormais d’un meilleur apport de lumière dans le cœur de l’espace de vie et on peut voir la terrasse depuis la cuisine », précise l’architecte d’intérieur.
Plus d’idées pour aménager une salle à manger sur Houzz
« Grâce à la suppression du plan bar, on jouit désormais d’un meilleur apport de lumière dans le cœur de l’espace de vie et on peut voir la terrasse depuis la cuisine », précise l’architecte d’intérieur.
Plus d’idées pour aménager une salle à manger sur Houzz
Après. Réaménagé avec un canapé vert en harmonie avec la nature environnante, le salon a révélé tout son potentiel. « C’est l’espace le plus séduisant, baigné de lumière grâce à la verrière. On profite d’une vue directe sur la nature, avec un regard qui glisse de la terrasse jusqu’au cabanon abritant le salon de jardin et le barbecue », souligne l’architecte d’intérieur.
Après. L’architecte d’intérieur a choisi les éclairages, tandis que les propriétaires ont déniché du mobilier en bois brut, assorti au parquet d’origine. « Au départ, nous envisagions de remplacer tout le parquet du niveau pour plus d’harmonie. Mais, pour des raisons de budget, seul celui de la salle à manger a été changé afin de combler l’espace laissé par l’ancien carrelage de la cuisine. » partage Maïa.
Plan Projet R — 1
Les propriétaires apprécient cet espace à part, à l’écart du rythme familial, où ils peuvent se ressourcer. « On s’y sent véritablement au calme, c’est tellement appréciable à Paris ! », renchérit Maïa. Ils souhaitaient en faire un véritable cocon chaleureux, inspiré du style méditerranéen qu’ils affectionnent. À ce niveau, tout n’a pas été entièrement rénové. Le dressing a été conservé tel quel, servant de base logistique pendant les travaux de la chambre et de la salle de bains.
Les propriétaires apprécient cet espace à part, à l’écart du rythme familial, où ils peuvent se ressourcer. « On s’y sent véritablement au calme, c’est tellement appréciable à Paris ! », renchérit Maïa. Ils souhaitaient en faire un véritable cocon chaleureux, inspiré du style méditerranéen qu’ils affectionnent. À ce niveau, tout n’a pas été entièrement rénové. Le dressing a été conservé tel quel, servant de base logistique pendant les travaux de la chambre et de la salle de bains.
Après. « La chambre se trouve directement sous l’ancienne cuisine », explique Maïa. « Elle bénéficie de la lumière naturelle diffusée par les pavés de verre et d’une ouverture discrète dans l’estrade, qui apporte un éclairage supplémentaire. »
Sa transformation repose sur un travail minutieux des matériaux et de la lumière. « Nous l’avons réinterprétée dans un esprit méditerranéen, en misant sur des murs blancs pour maximiser la luminosité et en apportant de la couleur à travers le linge de lit et des luminaires en fibres naturelles », explique la professionnelle.
Vous êtes en quête d'un artisan pour votre projet en rénovation complète ?
Nous vous aidons à trouver les meilleurs pros
Nous vous aidons à trouver les meilleurs pros
Après. La salle de bains parentale s’est transformée en un véritable cocon, fidèle au style tant désiré par les propriétaires : « L’idée était de créer une bulle chaleureuse, inspirée des spas et hammams », rappelle l’architecte d’intérieur. Les murs et sols en béton ciré clair (Marius Aurenti) apportent une texture élégante et métamorphosent l’espace, tandis que le mobilier en placage noyer vernis – comprenant un meuble vasque et une banquette filante – réchauffe l’atmosphère avec sa teinte profonde. La double douche et les vasques, rapportées du Maroc par les propriétaires, renforcent cette ambiance méditerranéenne et offrent un confort optimal.
« Il y a une salle de bains avec baignoire au premier étage, mais cette double douche avec les pommeaux encastrés au plafond permet aussi de laver rapidement les enfants ensemble », explique Maïa.
Revêtement sol et mur : résine minérale Unikofloor chez DMR concept ; Mitigeur de douche encastré noir mat : Châtelet III chez Masalledebain.com ; Miroir : Raven, NV Gallery ; Applique : Avello Verre, NV Gallery
Revêtement sol et mur : résine minérale Unikofloor chez DMR concept ; Mitigeur de douche encastré noir mat : Châtelet III chez Masalledebain.com ; Miroir : Raven, NV Gallery ; Applique : Avello Verre, NV Gallery
Après. La conception de l’aménagement de cette chambre a représenté un véritable défi technique en raison de la hauteur limitée sous plafond. Maïa explique : « Nous avons dû tout calculer au millimètre près pour que l’aménagement fonctionne. Sous un plafond de 2,50 mètres, nous avons installé une mezzanine perchée à 1,40 mètre de hauteur, intégrant deux lits séparés, avec des espaces bureaux aménagés en dessous. Les échelles en chêne se prolongent en garde-corps ». Entièrement réalisée sur mesure par La Compagnie de la Maison, la menuiserie en médium a été peinte dans la teinte Lune de chez Ressource.
Tout le monde vous le dira, réaliser aujourd’hui une rénovation complète à Paris pour moins de 1 500 €/m² (hors travaux d’isolation et fenêtre) est une gageure. La rénovation de ce triplex de 120 m² avec 100 000 € semblait donc compromise. L’architecte d’intérieur Maïa Descombes a toutefois su cibler les points clés de chaque niveau, leur insufflant une cohérence « méditerranéenne et colorée » qui donne l’impression d’avoir métamorphosé l’ensemble de l’habitation. Des matériaux durables et des interventions sur les zones à fort impact lui ont permis de relever le défi sans dépasser le budget ni le planning. La collaboration fluide avec La Compagnie de la Maison – entreprise avec laquelle Maïa partage ses bureaux – a sans nul doute contribué à la gestion efficace de ce projet vraiment bien maîtrisé.
ET VOUS ?
Que pensez-vous de cette rénovation ?
Vous êtes en quête d’un décorateur d’intérieur ? Houzz partage son annuaire exclusif pour que vous mettiez toutes les chances de votre côté. Savez-vous pourquoi les décorateurs d’intérieur qui utilisent Houzz Pro ont de meilleures chances de vous faire atteindre vos objectifs ? Ils utilisent notre logiciel tout-en-un et vous pourrez en profiter grâce à eux. Grâce aux outils de visualisation inclus dans l’outil, vous pourrez imaginer votre projet clairement et rapidement. Le Portail Client fluidifie quant à lui vos communications avec le professionnel tout au long du projet, quand la signature des devis en ligne simplifie vos démarches.
ET VOUS ?
Que pensez-vous de cette rénovation ?
Vous êtes en quête d’un décorateur d’intérieur ? Houzz partage son annuaire exclusif pour que vous mettiez toutes les chances de votre côté. Savez-vous pourquoi les décorateurs d’intérieur qui utilisent Houzz Pro ont de meilleures chances de vous faire atteindre vos objectifs ? Ils utilisent notre logiciel tout-en-un et vous pourrez en profiter grâce à eux. Grâce aux outils de visualisation inclus dans l’outil, vous pourrez imaginer votre projet clairement et rapidement. Le Portail Client fluidifie quant à lui vos communications avec le professionnel tout au long du projet, quand la signature des devis en ligne simplifie vos démarches.




































Qui vit ici ? Un couple de quadragénaires avec 3 enfants
Emplacement : Montmartre, rue Chappe, Paris
Superficie : 120 m²
Durée des travaux : 3 mois, livraison en janvier 2023
Architecte d’intérieur : Maïa Descombes de Poësis Studio
Entreprise de travaux : La Compagnie de la Maison
Budget : 100 000 euros TTC hors honoraires
Photos : Sophie Lloyd
Stylisme : Céline Hassen