Visites Privées
Intérieurs colorés
Avant/Après : Un vent de modernité souffle sur ce pavillon 1970
À Poissy, un pavillon années 1970 de 150 m² vit une transformation époustouflante pour des amateurs d'art contemporain
Après de nombreuses années passées en Belgique, ces jeunes retraités ont décidé de se rapprocher de leurs enfants et petits-enfants résidant à Saint-Germain-en-Laye. Leur choix s’est porté sur un pavillon, non pas pour le charme de la bâtisse des années 1970, mais pour son emplacement idéal à Poissy, offrant une vue imprenable sur la forêt sans vis-à-vis. Passionnés de design et d’art contemporain, ils ont l’intention de repenser entièrement cet espace. Pour concrétiser ce projet, ils font appel aux services de l’architecte d’intérieur Mari Fe Boyero Sanchez, qui a déjà accompagné leurs enfants dans la rénovation de leur logement.
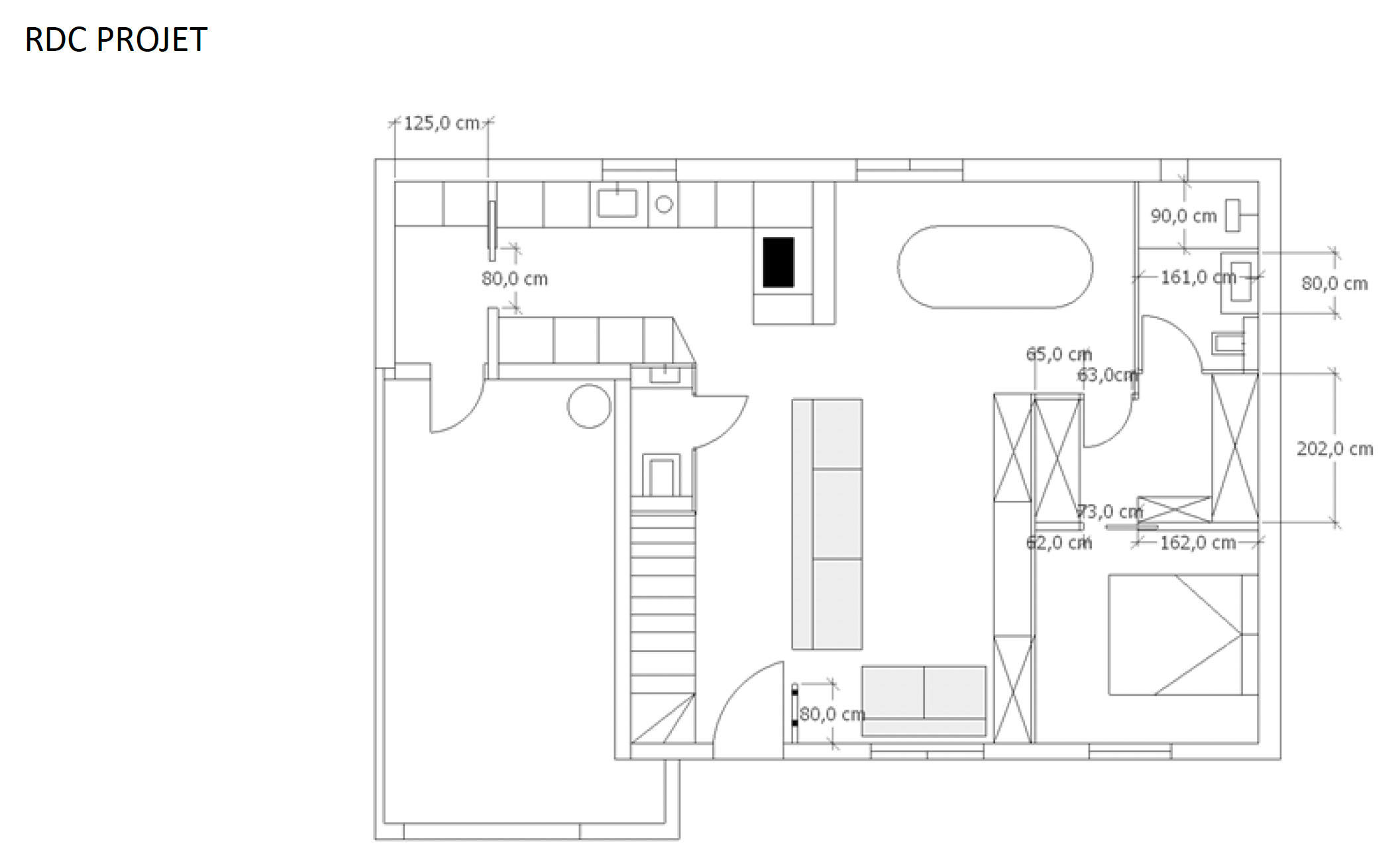
Avant. La maison de 150 m² avait été construite dans les années 1970 sur deux étages. Bien que son plan soit intéressant et facile à vivre – avec son grand séjour/salle à manger et une chambre et une salle de bains au rez-de-chaussée –, il était perfectible. La cuisine fermée ou la chambre s’ouvrant directement sur la pièce de vie n’étaient en effet plus dans les standards actuels.
Trouvez un architecte d’intérieur près de chez vous sur Houzz
Trouvez un architecte d’intérieur près de chez vous sur Houzz
Après. Ce qui chagrinait le plus les propriétaires, c’était la décoration en place. La maison avait été entretenue, pour ne pas dire léchée, par les anciens occupants, mais son style cottage des années 1980 détonnait du tout au tout avec les goûts des actuels maîtres d’ouvrage. « Mes clients ont habité longtemps à l’étranger. Ce sont des amateurs d’art contemporain, fans d’un style moderne et épuré », dévoile l’architecte d’intérieur.
Avant. Voici le séjour avant travaux. Les propriétaires vendeurs étaient très fiers du style « à l’anglaise » qu’ils avaient imprimé aux lieux. Mais ce n’était pas vraiment la tasse de thé des nouveaux occupants.
Après. « C’est pas compliqué, nous avons tout refait du sol au plafond dans cette maison » indique Mari Fe Sanchez, l’architecte d’intérieur. À commencer par la cheminée d’époque que les maîtres d’ouvrage détestaient et qui a été reconstruite de manière contemporaine avec l’intégration d’un insert.
Le salon a été entièrement réaménagé en utilisant le mobilier du couple comme point de départ. Il a donné le ton du style général, entre ambiance contemporaine et scandinave. « Le canapé était trop imposant car leur précédente maison était plus spacieuse que celle-ci, mais comme il s’agit d’un canapé modulaire, composé à partir de différents éléments, il a pu être réorganisé de manière différente », explique la professionnelle.
Les propriétaires n’ont pas du tout été effrayés par l’ampleur des travaux, ayant déjà géré plusieurs fois ce type de rénovation dans leur vie. « Néanmoins, ils ont été intraitables sur les délais, car ils gardaient plusieurs mauvais souvenirs de travaux qui s’étaient éternisés » se remémore l’architecte d’intérieur. Cette dernière a donc cadencé les équipes de sorte à finir tous les travaux dans un délai très juste de quatre mois, menuiseries sur mesure comprises.
Plus d’idées pour utiliser le bleu au salon sur Houzz
Plus d’idées pour utiliser le bleu au salon sur Houzz
Avant. La cuisine fermée d’origine, dans sa livrée « campagne rustique », datait elle aussi des années 1980.
Après. L’architecte d’intérieur a proposé d’ouvrir la cuisine pour créer une grande pièce à vivre. Dessiné sur mesure par l’architecte d’intérieur, le nouveau mobilier a été réalisé en médium laqué par une usine au Portugal. « Ce sont mes partenaires depuis longtemps. Je fais fabriquer toute la menuiserie là-bas et c’est de très belle qualité, très durable », explique-t-elle.
Les propriétaires ont choisi la couleur Stiffkey blue de Farrow&Ball pour parer les façades de la cuisine parmi le large nuancier que leur a présenté la professionnelle. Sur la gauche de la cuisine, la porte visible est celle des toilettes qui n’ont pu être déplacées. Elle a toutefois été repimpée avec un arrondi et cette même teinte d’un bleu profond.
Les propriétaires ont choisi la couleur Stiffkey blue de Farrow&Ball pour parer les façades de la cuisine parmi le large nuancier que leur a présenté la professionnelle. Sur la gauche de la cuisine, la porte visible est celle des toilettes qui n’ont pu être déplacées. Elle a toutefois été repimpée avec un arrondi et cette même teinte d’un bleu profond.
L’ancien sol en carrelage recouvert de tapis a été changé par un parquet stratifié imitation chêne. « L’avantage est que l’on a pu en mettre une continuité dans les pièces d’eau. Nous avons fait ce choix en raison des deux gros chiens de mes clients. Nous avons même fait pour eux une trappe sur mesure dans la porte-fenêtre sur jardin », explique l’architecte d’intérieur.
Le plan de travail est en quartz Silestone, une matière qui imite le marbre autant par son apparence que sa résistance, sans la fragilité. Au fond, l’arrière-cuisine existante a été entièrement réaménagée et transformée en buanderie.
Quant à la statue Snoopy que nous avons aperçue au séjour et à ce panda dans la cuisine, ce sont des oeuvres de collection dont disposaient déjà les propriétaires.
Quant à la statue Snoopy que nous avons aperçue au séjour et à ce panda dans la cuisine, ce sont des oeuvres de collection dont disposaient déjà les propriétaires.
L’architecte d’intérieur a soigneusement étudié les besoins du couple avant de dessiner le mobilier adapté à la buanderie, lui aussi fabriqué au Portugal : « Mes clients voulaient notamment des machines surélevées et une tringle pour accrocher les vêtements qui sortent du sèche-linge, en attente d’être repassés ». Dans cette pièce figurait auparavant le ballon d’eau chaude. Celui-ci a été remplacé par un ballon extraplat, déplacé dans la garage.
17 aménagements de buanderies à retenir
17 aménagements de buanderies à retenir
Avant. La salle à manger était elle aussi dans le style cottage rustique.
Après. Les seuls meubles rachetés par les propriétaires sont cette la table et les chaises de salle à manger. Ils ont opté pour des meubles en bois de qualité, au style scandinave épuré.
Ne quittons pas la pièce sans évoquer les grands tableaux accrochés au mur. Les clients avaient eu l’occasion de partager avec la professionnelle leur passion pour l’art dès les prémisses du projet, d’autant que Mari Fe est elle-même artiste plasticienne à ses heures. Celle-ci n’avait pas encore pu découvrir leur collection d’art contemporain mais lorsqu’elle est revenue pour réaliser le shooting avec le photographe, elle a eu une belle surprise. « Ils formaient un ensemble parfait et apportaient une touche de fraîcheur qui s’harmonisait idéalement à la cuisine bleue. J’ai compris pourquoi ils avaient tant insisté pour avoir une cuisine dans ce bleu prononcé. C’était vraiment leur couleur préférée ! », se remémore-t-elle.
Ne quittons pas la pièce sans évoquer les grands tableaux accrochés au mur. Les clients avaient eu l’occasion de partager avec la professionnelle leur passion pour l’art dès les prémisses du projet, d’autant que Mari Fe est elle-même artiste plasticienne à ses heures. Celle-ci n’avait pas encore pu découvrir leur collection d’art contemporain mais lorsqu’elle est revenue pour réaliser le shooting avec le photographe, elle a eu une belle surprise. « Ils formaient un ensemble parfait et apportaient une touche de fraîcheur qui s’harmonisait idéalement à la cuisine bleue. J’ai compris pourquoi ils avaient tant insisté pour avoir une cuisine dans ce bleu prononcé. C’était vraiment leur couleur préférée ! », se remémore-t-elle.
Avant. Cette chambre du rez-de-chaussée fut un très bon argument de vente car elle permettait aux retraités d’utiliser la maison comme un plain-pied. Pour l’optimiser, ils ont souhaité rassembler la chambre et la salle de bains contiguë afin de créer une suite parentale tout confort.
Après. L’architecte d’intérieur a repensé l’entrée de la chambre afin qu’elle ne tombe plus en plein salon comme précédemment. Elle a également revu la distribution de la suite parentale en créant au centre un dressing bien accessoirisé. « On entre désormais dans la chambre ou dans la salle d’eau par cette pièce, ce qui est visuellement préférable et crée un très bon tampon acoustique », partage-t-elle.
Avant. la salle de bains était dans le style d’une charmante bonbonnière vintage, en cohérence avec le reste de la maison.
Après. Dans cette pièce, ces propriétaires ont privilégié la fonctionnalité aux ornements. Une grande douche a remplacé la baignoire, complétée par un meuble vasque sobre et un miroir rétroéclairé. Les murs sont habillés d’un carrelage imitation béton ciré toute hauteur, pour faciliter le nettoyage et l’hygiène.
Avant de monter visiter l’étage, nous repassons devant cette adorable niche sous l’escalier, en prolongement de l’entrée. « Nous avons isolé le sas d’entrée par une petite verrière et avons transformé le dessous de l’escalier sous-exploité comme un meuble d’entrée complet. Il est conçu sur mesure avec une banquette et ses rangements à chaussures et une colonne pour les manteaux », détaille Mari Fe.
Vous êtes en quête d'un artisan pour votre projet en rénovation complète ?
Nous vous aidons à trouver les meilleurs pros
Nous vous aidons à trouver les meilleurs pros
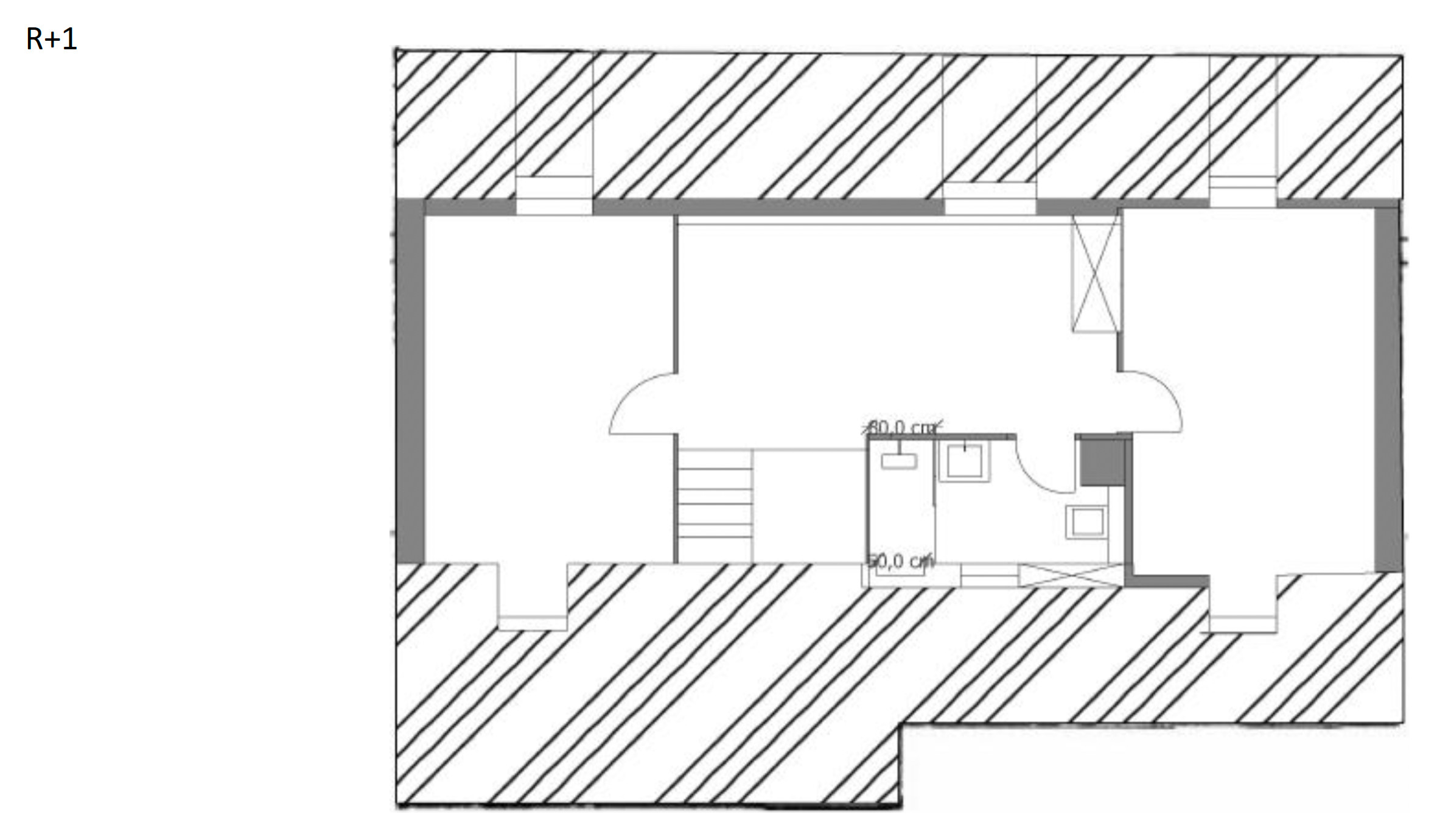
En montant, nous découvrons ce filet dédié aux petits-enfants. « Comme l’étage n’était pas immense, j’ai pensé élargir la trémie et intégrer ce filet de catamaran arrimé à des pitons. Cela permet aux enfants de se reposer ou s’amuser dans cette zone, tout en restant connectés à l’étage en dessous. Et le filet laisse bien traverser la lumière entre les étages », poursuit-elle.
Le garde-corps d’origine a été supprimé car lui aussi était trop daté. L’architecte d’intérieur a préféré le redessiner de manière contemporaine avec ces tasseaux toute hauteur qui impriment un joli rythme graphique. « Mon menuisier m’a un peu maudite à l’installation car ce n’est pas facile d’adapter chaque tasseau un par un en raison du biais », explique-t-elle, toutefois ravie du résultat.
Avant. L’étage d’origine ne donnait pas une impression agréable car il était entièrement cloisonné. On débouchait sur un couloir étroit, desservant sur chaque côté une chambre et au centre, une autre tout en longueur. Il y avait également une salle de bains à l’étage.
Après. Les propriétaires souhaitaient garder deux chambres, aussi l’espace central a-t-il été entièrement reconfiguré.
Avant. Cette chambre tout en longueur a aujourd’hui disparu.
Après. Exit le couloir et la chambre boyau. Désormais, l’espace central respire, encadré par deux chambres et une salle de bains. La partie centrale de l’étage, ouverte sur l’escalier, a été pensée comme un espace de coworking par ces grands-parents modernes. « Ils ont tout deux gardé des activités sur ordinateur et ont aussi pensé à leurs enfants ou petits-enfants », explique l’architecte d’intérieur. Une console d’arcade trahit aussi l’utilisation de l’espace comme salle de jeux et, derrière les bureaux, le filet sert aussi de coin pour chiller ou lire.
Avant. la salle de bains de l’étage avant travaux
Après. Les deux chambres existantes ont été simplement repeintes, mais la salle de bains a été intégralement refaite. « L’étage nous a donné pas mal de travail car nous avons voulu récupérer de la hauteur sous plafond et retrouver le charme des poutres », précise l’architecte d’intérieur. Il a donc fallu démolir amplement la structure sous rampants configurée en croisillon et refaire une partie de l’isolation. Mais ce lourd travail a engendré une bonne surprise au niveau de la salle de bains d’origine. « Derrière l’ancienne vasque, nous avons retrouvé pas mal d’espace et nous avons pu faire une grande douche ainsi que cette niche rétroéclairée », apprécie Mari Fe.
Moyennant un budget, en conséquence, de 200 000 euros, les propriétaires peuvent désormais profiter d’une rénovation complète qui correspond parfaitement à leurs goûts et qui durera de nombreuses années. Mari Fe partage : « Ils m’ont fait des compliments sur mes capacités à me projeter et et cela me touche car, comme la plupart des propriétaires, ils avaient du mal à exprimer leurs souhaits au départ. La plupart du temps, je dois initier beaucoup de propositions et les guider pour qu’ils puissent révéler pleinement leur personnalité ». Une mission parfaitement accomplie ici, d’autant plus remarquable lorsque l’on observe le changement radical de style.
Budget détaillé
ET VOUS ?
Que pensez-vous de cette rénovation ?
Moyennant un budget, en conséquence, de 200 000 euros, les propriétaires peuvent désormais profiter d’une rénovation complète qui correspond parfaitement à leurs goûts et qui durera de nombreuses années. Mari Fe partage : « Ils m’ont fait des compliments sur mes capacités à me projeter et et cela me touche car, comme la plupart des propriétaires, ils avaient du mal à exprimer leurs souhaits au départ. La plupart du temps, je dois initier beaucoup de propositions et les guider pour qu’ils puissent révéler pleinement leur personnalité ». Une mission parfaitement accomplie ici, d’autant plus remarquable lorsque l’on observe le changement radical de style.
Budget détaillé
- Cheminée avec insert : 6 500 € TTC
- Électricité : 26 000 € TTC
- Chaque salle de bains : 11 000 € TTC
- Filet : 3 000 € TTC
- Fenêtres : 18 000 € TTC
- Cuisine : MDF laqué avec plan de travail Silestone marbré gris, 17 400 € TTC sans électroménager
- Meuble entrée MDF laqué : 3 444 € TTC
- Garde-corps escalier : 4 920 € TTC
- Buanderie mélaminé : 4 080 € TTC
ET VOUS ?
Que pensez-vous de cette rénovation ?
































Qui vit ici : Un couple de retraités
Emplacement : Dans un pavillon années 1970 à Poissy
Superficie : 150 m²
Date et durée des travaux : livraison juillet 2023. Les travaux ont duré 4 mois
Architecte d’intérieur et artiste plasticienne : Mari Fe Boyero Sanchez (agence Proxima Design)
Budget (honoraires compris) : 200 000 euros (budget détaillé en fin d’article)
Photos : BMD Photo