Avant/Après : Une chambre en plus dans 60 m2 à Paris
Paris 17e : transformation très maîtrisée d'un deux-pièces en charmant trois-pièces haussmannien pour un jeune couple
À Paris, ce jeune couple, en fin d’études, souhaite s’installer. Le père du jeune homme, marchand de biens en province, décide de prendre les choses en mains en validant le logement à acquérir et en organisant sa rénovation. Par son réseau personnel, il est mis en relation avec l’architecte d’intérieur parisienne Ophélie Prinet au moment de la signature de la promesse de vente. Le match parfait va donner lieu à une rénovation exemplaire.
Avant. Direction le quartier des Ternes à Paris, à deux pas du marché Poncelet. Au fond d’une jolie impasse, au 1er étage d’un immeuble haussmannien en pierre de taille (1850), se niche un grand deux-pièces qui appartenait à un monsieur seul. Le 60 m² au plan en étoile comportait un séjour plein ouest, donnant sans vis-à-vis sur l’impasse, une grande cuisine, une chambre, une vaste salle de bains et des toilettes avec lave-mains. Dans les années 1990, un architecte avait totalement repensé cet appartement en gommant ses particularités haussmanniennes au profit de doublages cintrés en médium plaqué bois, de plafonds avec spots intégrés et de marbre dans la salle de bains. En somme, le summum du design de l’époque.
Après. De sa première visite avec l’agent immobilier, Ophélie Prinet se souvient du décor daté, du manque de lumière important et de la mauvaise organisation de l’espace. « C’était sombre et triste et il y avait beaucoup d’espace perdu », résume-t-elle.
Le père du propriétaire avait pour objectif d’adapter l’appartement au couple, nécessitant notamment une chambre et un bureau. Il souhaitait par ailleurs créer un aménagement rentable, permettant une revente efficace, notamment par la remise au normes thermiques du bien. Enfin, son épouse et lui souhaitaient pouvoir bénéficier d’un pied-à-terre pour passer du temps à Paris avec leur fils, d’où l’idée d’une pièce modulable bureau/chambre d’amis.
Trouvez un architecte d’intérieur près de chez vous sur Houzz
Le père du propriétaire avait pour objectif d’adapter l’appartement au couple, nécessitant notamment une chambre et un bureau. Il souhaitait par ailleurs créer un aménagement rentable, permettant une revente efficace, notamment par la remise au normes thermiques du bien. Enfin, son épouse et lui souhaitaient pouvoir bénéficier d’un pied-à-terre pour passer du temps à Paris avec leur fils, d’où l’idée d’une pièce modulable bureau/chambre d’amis.
Trouvez un architecte d’intérieur près de chez vous sur Houzz
Avant. Voici l’entrée en étoile desservant toutes les pièces. Elle se présentait comme un sas d’accueil, relevant presque des codes d’un bureau, avec cette plaque de verre ronde lumineuse au centre du faux plafond et des angles recouverts de médium cintré plaqué bois. On distingue sur la gauche la porte de la salle de bains d’origine et au fond l’ancienne chambre du propriétaire.
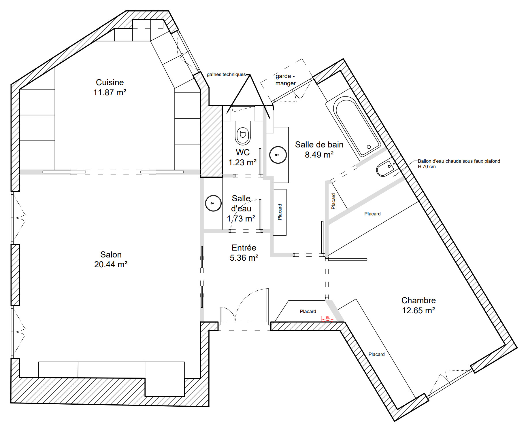
Après. Pour pouvoir optimiser l’espace, Ophélie n’a pas hésité en début de conception à faire passer un bureau étude structure. « Sous les doublages, on ne voyait pas ce qui était porteur », justifie-t-elle. Un bon réflexe qui a permis de récupérer 3,5 m², faisant passer la superficie utile de 59,5 à 63 m² Carrez. Car une fois identifié le seul porteur du logement (entre la cuisine et les WC), l’intérieur a été curé entièrement afin de repartir d’une page blanche, gage d’un bien de qualité pour des années.
Afin d’améliorer thermiquement la qualité de l’enveloppe, toutes les fenêtres ont été remplacées par des doubles vitrages, tandis que les murs périphériques et les plafonds ont été gorgés d’isolant. En outre, les réseaux d’eau et d’électricité ont été refaits à neuf et de nouveaux radiateurs (électriques programmables avec fluide caloporteur) ont été installés. « Mes clients ont voulu par ailleurs que je pose une climatisation, car ils résident au Cap-Ferret où ils en ont l’habitude et ils craignaient que leur fils ne subisse la canicule à Paris, mais nous n’avons pas eu l’aval de la copropriété », partage l’architecte d’intérieur.
Afin d’améliorer thermiquement la qualité de l’enveloppe, toutes les fenêtres ont été remplacées par des doubles vitrages, tandis que les murs périphériques et les plafonds ont été gorgés d’isolant. En outre, les réseaux d’eau et d’électricité ont été refaits à neuf et de nouveaux radiateurs (électriques programmables avec fluide caloporteur) ont été installés. « Mes clients ont voulu par ailleurs que je pose une climatisation, car ils résident au Cap-Ferret où ils en ont l’habitude et ils craignaient que leur fils ne subisse la canicule à Paris, mais nous n’avons pas eu l’aval de la copropriété », partage l’architecte d’intérieur.
Guidée par les demandes des futurs occupants, la professionnelle a proposé plusieurs plans et un décor visant à restaurer le charme haussmannien disparu. « Nous avons tout de suite parlé de parquet point de Hongrie, de moulures et de vitraux pour retrouver l’apparat d’origine, tout en restant simples car nous n’étions pas un haussmannien de grande superficie et il ne s’agissait pas non plus de surcharger », explique-t-elle.
Comme à son habitude, l’architecte d’intérieur a travaillé selon trois fils rouges qui lui tiennent particulièrement à cœur : « la recherche de lumière, d’élégance et de fonctionnalité », des valeurs qui ont fortement résonné chez les propriétaires et ont permis au chantier de se dérouler idéalement. La confiance s’étant vite installée, les propriétaires se sont même laissé tenter par une palette de teintes autour du vert, du rose et terracotta proposée par Ophélie, « de belles teintes naturelles tendance du nuancier Farrow&Ball », précise-t-elle.
L’entrée, optimisée avec un vestiaire, un placard à chaussures et une banquette coffre a été habillée d’une couleur sombre – Green smoke de Farrow&Ball – en all over, murs et plafonds, afin de créer un effet « feutré et enveloppant », dès l’entrée.
Plus d’idées pour aménager une entrée sur Houzz
Comme à son habitude, l’architecte d’intérieur a travaillé selon trois fils rouges qui lui tiennent particulièrement à cœur : « la recherche de lumière, d’élégance et de fonctionnalité », des valeurs qui ont fortement résonné chez les propriétaires et ont permis au chantier de se dérouler idéalement. La confiance s’étant vite installée, les propriétaires se sont même laissé tenter par une palette de teintes autour du vert, du rose et terracotta proposée par Ophélie, « de belles teintes naturelles tendance du nuancier Farrow&Ball », précise-t-elle.
L’entrée, optimisée avec un vestiaire, un placard à chaussures et une banquette coffre a été habillée d’une couleur sombre – Green smoke de Farrow&Ball – en all over, murs et plafonds, afin de créer un effet « feutré et enveloppant », dès l’entrée.
Plus d’idées pour aménager une entrée sur Houzz
Après. Ce traitement foncé de l’entrée permet d’attirer le visiteur vers la lumière de la pièce de vie, ce qui est toujours propice à créer un petit effet « waouh ». « J’aime jouer sur la lumière, c’est quelque chose de très important pour moi. J’apprécie particulièrement cet effet clair obscur et le je fais souvent », indique la professionnelle.
Avant. Prolongeant le style daté aperçu dans l’entrée d’origine, le salon de 20 m² était habillé de moquette au sol. Les plafonds descendus à 2,50 mètres étaient parés de spots. Des placages bois avaient remplacé les anciennes cimaises sur le bas des murs. Au fond, s’ouvrait la grande cuisine de près de 12 m² au moyen de deux portes en verre à galandage.
Après. Le séjour a été traité dans des teintes douces, claires et chaleureuses pour profiter de la belle luminosité de la pièce orientée à l’ouest sans vis-à-vis. « Nous avons utilisé un blanc Pointing de chez Farrow&Ball avec des nuances de chaux et des touches de rose », explique l’architecte d’intérieur.
Plusieurs interventions ont permis de restaurer par ailleurs l’élégance haussmannienne comme le curage des plafonds pour retrouver 2,75 centimètres de hauteur, la pose de nouvelles moulures Orac Decor en périphérie et l’installation de parquet en point de Hongrie collé sur la chape de béton existante. « Les rideaux The Socialite Family sont la touche finale car le pouvoir d’un textile est inouï pour donner de la chaleur à une pièce », souligne la professionnelle.
Plusieurs interventions ont permis de restaurer par ailleurs l’élégance haussmannienne comme le curage des plafonds pour retrouver 2,75 centimètres de hauteur, la pose de nouvelles moulures Orac Decor en périphérie et l’installation de parquet en point de Hongrie collé sur la chape de béton existante. « Les rideaux The Socialite Family sont la touche finale car le pouvoir d’un textile est inouï pour donner de la chaleur à une pièce », souligne la professionnelle.
Ophélie Prinet a également peaufiné l’éclairage nocturne avec une sélection de luminaires pensés comme des objets décoratifs. Des suspensions délicates en forme de boules de verre, des plafonniers tubulaires installés au-dessus de la table à manger et cette élégante lampe à poser en rotin. Multiplier les sources lumineuses et alterner éclairage directionnel et ambiant permet de composer, le soir venu, une ambiance lumineuse harmonieuse.
Vous êtes en quête d'un artisan pour votre projet en rénovation complète ?
Nous vous aidons à trouver les meilleurs pros
Nous vous aidons à trouver les meilleurs pros
Après. Bien que l’architecte d’intérieur ait d’abord proposé une cuisine ouverte avec un îlot sur l’emplacement des anciennes toilettes, les propriétaires ont préféré conserver une cuisine semi-fermée en fond de pièce. « Le couple cuisine beaucoup et ils sont de vrais fans d’épices », explique Ophélie.
Toutefois, l’architecte d’intérieur a déporté la cloison afin de réduire la cuisine de 3,5 m² et l’a métamorphosée en une élégante verrière dont le dessin reprend l’arrondi en anse de panier des fenêtres. Derrière la paroi de verre, la cuisine d’un vert assorti à celui de l’entrée appelle l’oeil depuis la pièce de vie claire, lui conférant de la profondeur.
Afin de profiter de la lumière, la table à manger pour quatre personnes s’appuie sur la verrière côté pièce de vie, dans une implantation gain de place avec banquette. Fabriquée en en médium peint, cette banquette ne fait pas coffre afin de sembler la plus légère possible et laisser filer le parquet en dessous. Au-dessus, un coussin a été fabriqué par une tapissière et recouvert de tissu Casamance.
Toutefois, l’architecte d’intérieur a déporté la cloison afin de réduire la cuisine de 3,5 m² et l’a métamorphosée en une élégante verrière dont le dessin reprend l’arrondi en anse de panier des fenêtres. Derrière la paroi de verre, la cuisine d’un vert assorti à celui de l’entrée appelle l’oeil depuis la pièce de vie claire, lui conférant de la profondeur.
Afin de profiter de la lumière, la table à manger pour quatre personnes s’appuie sur la verrière côté pièce de vie, dans une implantation gain de place avec banquette. Fabriquée en en médium peint, cette banquette ne fait pas coffre afin de sembler la plus légère possible et laisser filer le parquet en dessous. Au-dessus, un coussin a été fabriqué par une tapissière et recouvert de tissu Casamance.
La cuisine a été réalisée sur la base de caissons et façades de chez Ikea. « Les façades Bodarp sont très raccord avec la teinte Green Smoke de Farrow&Ball de l’entrée », apprécie la professionnelle. Les rangements sont très nombreux dans cette cuisine taillée pour cuisiner et les équipements ne sont pas en reste : micro-ondes et four, plaque induction quatre feux et hotte, combiné réfrigérateur et lave-vaisselle.
Pour « upgrader le rendu visuel de la cuisine Ikea », le plan de travail a été fabriqué sur mesure en quartz par EasyPlan. Un évier sous plan apporte un rendu plus noble qu’une pose en applique et le caisson d’aspiration a été bien intégré dans le mobilier haut.
Après. Comme cette fenêtre était dépourvue de vue, ne servant qu’à la ventilation, Ophélie a imaginé sa transformation en vitrail, un apparat typique des beaux appartements parisiens de la fin du XIXᵉ siècle. Après avoir déniché un motif d’époque rappelant le dessin de la faïence de la salle de bains, elle a fait réaliser un vitrail dans la palette chromatique du projet. Celui-ci a été posé en survitrage au-dessus de la fenêtre récemment remplacée. « Une installation technique qui évite toute formation de buée entre les deux parois. Une fois posé, le vitrail s’intègre parfaitement à la fenêtre », explique-t-elle.
Pour cette réalisation, elle a collaboré avec « Studio Vitrail », « une référence du domaine ayant notamment conçu les boutiques Diptyque à Paris et New York ».
Pour cette réalisation, elle a collaboré avec « Studio Vitrail », « une référence du domaine ayant notamment conçu les boutiques Diptyque à Paris et New York ».
Sous la verrière figurent de nombreux tiroirs pour les ustensiles ou les livres de cuisine. À droite de l’évier, la colonne supplémentaire est « technique », renfermant le ballon d’eau chaude de 80 litres ainsi que le lave-linge.
Après. Depuis la cuisine, la vue embrasse toute la pièce de vie à travers la verrière. « La télévision a finalement dicté l’implantation de cette pièce, un scénario assez classique en réalité », partage Ophélie. En effet, le propriétaire, grand amateur de télévision et passionné de jeux vidéo, souhaitait un écran de belle dimension dans son séjour. « Dans ces conditions, les possibilités d’agencement étaient limitées, d’autant que la famille souhaitait également intégrer une bibliothèque sur mesure », explique l’architecte d’intérieur.
Elle estime avoir eu de la chance de découvrir derrière les doublages un renfoncement sur la gauche de la pièce. Renfoncement qui lui a donné des idées de particularisation pour cette pièce. « J’ai tout de suite vu un placage bois pour le mettre en valeur et une étagère toute largeur qui souligne l’écran. Je fonctionne souvent comme ça, par visions », explique-t-elle.
Les propriétaires ont suivi Ophélie sur son idée et un beau placage chêne à la veinure organique est venu apporter de la chaleur et de la profondeur à ce fond de scène. L’écran a été accroché sur le mur comme un tableau sans fil grâce à l’intégration des branchement dans le mur.
En partie basse, des caissons fermés, travaillés en arrondi, renferment le matériel high-tech du jeune homme, box, consoles…. Ophélie a même pensé à l’emplacement de la barre de son.
En partie basse, des caissons fermés, travaillés en arrondi, renferment le matériel high-tech du jeune homme, box, consoles…. Ophélie a même pensé à l’emplacement de la barre de son.
Après. La chambre du couple a été décorée dans une ambiance en rose, bois clair, fibres naturelles et blanc cassé. Cette palette très douce, propice au repos, contraste bien par ailleurs avec le vert déjà aperçu et reprend les teintes de la pièce de vie.
Au plafond, (comme dans l’entrée) figure une suspension à pales, une demande des clients pour remplacer la climatisation. « C’était plus technique qu’on ne le pense. Il était très important ici que les pales n’accrochent pas les portes ouvertes du placard Je conseille la marque portugaise Faro dont les modèles de suspension-ventilateur sont design et de toutes les tailles », conseille Ophélie.
Au plafond, (comme dans l’entrée) figure une suspension à pales, une demande des clients pour remplacer la climatisation. « C’était plus technique qu’on ne le pense. Il était très important ici que les pales n’accrochent pas les portes ouvertes du placard Je conseille la marque portugaise Faro dont les modèles de suspension-ventilateur sont design et de toutes les tailles », conseille Ophélie.
Le lit de 160 centimètres de large s’appuie sur une tête de lit menuisée en médium peint, intégrant des rangements fermés, des lampes et des prises.
Peinture mur : Templeton Pink, Farrow&Ball ; Peinture tête de lit : Stirabout, Farrow&Ball ; Peinture plafond : Pointing, Farrow&Ball
Peinture mur : Templeton Pink, Farrow&Ball ; Peinture tête de lit : Stirabout, Farrow&Ball ; Peinture plafond : Pointing, Farrow&Ball
Pour retrouver davantage de fluidité dans la chambre, des placards ont été agencés sur un seul des côtés et le pied de lit a été libéré. Il s’agit de caissons Pax d’Ikea avec des portes en médium peint.
Madame souhaitait une coiffeuse. Elle a été réalisée sur mesure en chêne selon les dessins d’Ophélie et suspendue pour occuper le moins d’espace possible. « Le coin coupé sert à ne pas se cogner en tournant autour du lit et reprend le dessin d’arrondi que nous avons travaillé un peu partout », souligne la professionnelle.
Après. Cette grande salle de bains a été logiquement transformée en chambre d’amis/bureau. Comme elle n’avait pas de vue - la fenêtre donnant une nouvelle fois sur une courette d’aération - l’architecte d’intérieur lui a donné davantage de charme avec un autre vitrail. « Nous avons inversé les couleurs par rapport à la cuisine en créant les principaux motifs en rose, en cohérence avec la teinte de la chambre », fait remarquer Ophélie.
Cette pièce devant servir de chambre d’amis pour les parents du propriétaire, elle dispose d’un confortable lit de 160×200 centimètres ainsi que d’un store occultant de chez Heytens. L’autre chambre pour sa part possédait un volet.
Cette pièce devant servir de chambre d’amis pour les parents du propriétaire, elle dispose d’un confortable lit de 160×200 centimètres ainsi que d’un store occultant de chez Heytens. L’autre chambre pour sa part possédait un volet.
Une implantation gain de place a été privilégiée avec une colonne de rangement de chaque côté du lit. Afin de ne pas manquer d’espace en pied de lit, une simple tablette pour déposer un livre ou son téléphone souligne la tête de lit. Des liseuses ont été installées de part et d’autre, en applique sur le mur.
Sous la fenêtre, le bureau a été parfaitement intégré avec des étagères latérales bien cachées. « Mon client a fini ses études. Désormais avocat, il avait besoin de beaucoup de place pour ses dossiers, car il travaille souvent à domicile », souffle la pro.
Sous la fenêtre, le bureau a été parfaitement intégré avec des étagères latérales bien cachées. « Mon client a fini ses études. Désormais avocat, il avait besoin de beaucoup de place pour ses dossiers, car il travaille souvent à domicile », souffle la pro.
Après. Ophélie a grignoté un morceau de la pièce de vie afin de récupérer assez de place au centre de l’appartement pour installer la salle de bains et laisser les toilettes fermées à leur place. « Nous nous sommes installés à cheval sur le porteur », indique-t-elle. Bien que sa superficie ait été réduite au maximum, cette salle d’eau offre un meuble double vasque sur un plan en stratifié compact plaqué Fenix ainsi qu’une douche à l’italienne. Le miroir taillé sur mesure réintroduit le motif anse de panier de la fenêtre.
Dans la douche à l’italienne tout comme sur le plan vasque, la robinetterie a été intégrée pour un rendu minimaliste et haut de gamme. Ophélie a même pensé à créer une niche pour poser les produits.
La salle de bains a été réalisée dans une ambiance neutre et durable, d’un blanc cassé contrastant avec les petits coins qui ont été travaillés comme une boîte noire très chic. On note la présence d’une douchette dans les toilettes, une demande des propriétaires, qui est de plus en plus fréquente aujourd’hui.
La salle de bains a été réalisée dans une ambiance neutre et durable, d’un blanc cassé contrastant avec les petits coins qui ont été travaillés comme une boîte noire très chic. On note la présence d’une douchette dans les toilettes, une demande des propriétaires, qui est de plus en plus fréquente aujourd’hui.
La relation de confiance et la fluidité ont été les maîtres mots de ce chantier. Après une impulsion initiale donnée par le père, le fils a pris le relais avec une implication totale, assistant à chaque réunion de chantier. Cette présence hebdomadaire a été un réel atout pour Ophélie. « Être tous sur place permet de résoudre immédiatement les questions, d’arbitrer rapidement et de gagner en compréhension mutuelle », assure-t-elle.
Planche d’ambiance
Au moment de conclure, Ophélie rappelle que sa mission d’architecte d’intérieur est de valoriser le patrimoine de ses clients, quels que soient leurs goûts. Mais cet appartement revêt pour elle une dimension personnelle. « Je tiens beaucoup à ce projet car il me reflète. Il révèle ma façon de travailler et mes goûts pour la lumière, les choses simples, naturelles et élégantes et la fluidité de l’espace », partage-t-elle.
Le père du propriétaire a quant à lui laissé sur le profil Houzz de la professionnelle un avis évocateur de sa satisfaction : « Habitué des réhabilitations , je ne peux que recommander les compétences architecturales et techniques d’Ophelie Prinet. Une vision globale réfléchie et aboutie du projet, de la conception à la décoration et à l’agencement, une gestion parfaite du chantier avec une production de documents précise tant pour le maître d’ouvrage que les entreprises. » Bref, un sans-faute !
Au moment de conclure, Ophélie rappelle que sa mission d’architecte d’intérieur est de valoriser le patrimoine de ses clients, quels que soient leurs goûts. Mais cet appartement revêt pour elle une dimension personnelle. « Je tiens beaucoup à ce projet car il me reflète. Il révèle ma façon de travailler et mes goûts pour la lumière, les choses simples, naturelles et élégantes et la fluidité de l’espace », partage-t-elle.
Le père du propriétaire a quant à lui laissé sur le profil Houzz de la professionnelle un avis évocateur de sa satisfaction : « Habitué des réhabilitations , je ne peux que recommander les compétences architecturales et techniques d’Ophelie Prinet. Une vision globale réfléchie et aboutie du projet, de la conception à la décoration et à l’agencement, une gestion parfaite du chantier avec une production de documents précise tant pour le maître d’ouvrage que les entreprises. » Bref, un sans-faute !








































Qui vit ici ? Un jeune couple
Emplacement : Villa Niel, Paris 75017
Superficie : 60 m²
Date des travaux : 4,5 mois de travaux de fin novembre 2022 à mi-avril 2023
Architecte d’intérieur : Ophélie Prinet
Budget : 145 300 euros HT (honoraires inclus). Budget détaillé en fin d’article
Photos : Julien Pépy