Avant/Après : Une grange normande métamorphosée en gîte familial
Bienvenue à Clos Lagadoue ! Miriam Gassmann transforme une grange oubliée en un gîte minimaliste et chaleureux pour 14
Au printemps 2023, après avoir cherché longtemps un lieu où créer une maison de famille accueillante, l’architecte d’intérieur Miriam Gassmann, son mari et son fils découvrent une grange en Normandie, au sud de Granville, dans un bourg préservé. Cette grande bâtisse rurale en L représente un terrain de jeux fabuleux pour la professionnelle. Malgré son état brut – sol en terre battue, façades semi-enterrées et humidité qui en découle – Miriam a un coup de cœur pour ses volumes généreux et son potentiel. En 18 mois, elle va transformer cette ancienne étable en un gîte familial moderne et convivial, prêt à accueillir tour à tour sa famille ou des vacanciers, jusqu’à 14 personnes. Elle nous a fait faire la visite des lieux en décryptant les choix essentiels qui ont été les siens.
Coup d’œil
Qui vit ici ? C’est la résidence secondaire de Miriam Gassmann, son mari, leur adolescent et destinée à la location comme gîte
Emplacement : Champeaux, en Normandie
Superficie : 200 m²
Durée des travaux : De novembre 2023 à avril 2025
Architecte d’intérieur : Miriam Gassmann
Budget : Environ 1 900 €/m² TTC pour 200 m², soit 350 000 à 400 000 € (rénovation, aménagement, mobilier) dont 30 000 euros pour la toiture, 30 000 euros pour le terrassement, 100 000 euros pour la maçonnerie
Photos : Miriam Gassmann
Coup d’œil
Qui vit ici ? C’est la résidence secondaire de Miriam Gassmann, son mari, leur adolescent et destinée à la location comme gîte
Emplacement : Champeaux, en Normandie
Superficie : 200 m²
Durée des travaux : De novembre 2023 à avril 2025
Architecte d’intérieur : Miriam Gassmann
Budget : Environ 1 900 €/m² TTC pour 200 m², soit 350 000 à 400 000 € (rénovation, aménagement, mobilier) dont 30 000 euros pour la toiture, 30 000 euros pour le terrassement, 100 000 euros pour la maçonnerie
Photos : Miriam Gassmann
Plan de la bâtisse avant travaux
Lors de sa première visite, elle découvre la maison de pays composée de plusieurs volumes pour un potentiel de 350 m² habitables à aménager.
Parallèle à la rue, la partie principale (sur la gauche du plan), orientée plein ouest, composée de deux corps de bâtiments accolés, culmine à 10 mètres pour l’un et 6,8 mètres pour l’autre, offrant un potentiel de 100 m² au sol, extensible à 200 m² en comptant un étage. Orientée sud, la partie en L, probablement ajoutée plus tard, propose 170 m² supplémentaires sur un seul niveau.
Lors de sa première visite, elle découvre la maison de pays composée de plusieurs volumes pour un potentiel de 350 m² habitables à aménager.
Parallèle à la rue, la partie principale (sur la gauche du plan), orientée plein ouest, composée de deux corps de bâtiments accolés, culmine à 10 mètres pour l’un et 6,8 mètres pour l’autre, offrant un potentiel de 100 m² au sol, extensible à 200 m² en comptant un étage. Orientée sud, la partie en L, probablement ajoutée plus tard, propose 170 m² supplémentaires sur un seul niveau.
Avant. Pour l’heure, l’état de la bâtisse est celui d’une grange d’antan qui n’a pas servi depuis longtemps : des bottes de paille pendent dans l’étable, des plantes poussent dans les murs humides, et les façades est et sud, semi-enterrées à la lisière d’un champ, laissent filtrer l’eau. « C’était brut, en partie avec un sol en terre battue. Mais ces murs en pierre, et à l’intérieur ces volumes et ces poutres comme des arbres, c’était un magnifique terrain de jeu », s’enthousiasme Myriam.
La possibilité d’acquérir un hectare de terrain adjacent pour créer un verger ou faire des installations de land art comme elle en a envie depuis longtemps scelle sa décision.
La possibilité d’acquérir un hectare de terrain adjacent pour créer un verger ou faire des installations de land art comme elle en a envie depuis longtemps scelle sa décision.
Après. De novembre 2023 à avril 2025, la transformation s’est concentrée sur le corps de bâtiment principal, se révélant un chantier complexe. « C’était presque comme de la construction neuve. Il n’y avait pas même de portes et fenêtres adaptées à l’habitation », explique l’architecte d’intérieur, qui s’est confrontée tour à tour à de nombreux défis.
Située en zone naturelle protégée, la maison a nécessité six mois de démarches administratives. « Le premier permis de construire a été refusé car ils exigeaient des places de stationnement. J’ai dû recommencer », explique-t-elle.
Puis les façades est et sud, semi-enterrées, ont dû être dégagées pour laisser la pierre respirer…moyennant quelques moments forts en émotion. « Nous avons pleinement compris l’étymologie du village qui signifie “champ et eau”. Des ruisseaux d’eau ont traversé la propriété depuis le champ de derrière jusqu’à la rue, c’était épique », raconte-t-elle. Coût de l’opération de terrassement : 30 000 €.
L’aspect thermique et l’humidité étaient d’autres préoccupations majeures. Les zones enterrées ont été isolées avec du liège. La partie droite de la toiture, changée il y a plus de 40 ans, a été refaite et consolidée également pour 30 000 €. Celle-ci a été isolée en laine de bois et pare-vapeur sous les rampants tandis que la partie haute de la bâtisse a été isolée sur le nouveau plancher des combles perdus. « Dans les combles, il est plus facile d’aller vérifier que la toiture tient le coup », justifie Miriam.
Située en zone naturelle protégée, la maison a nécessité six mois de démarches administratives. « Le premier permis de construire a été refusé car ils exigeaient des places de stationnement. J’ai dû recommencer », explique-t-elle.
Puis les façades est et sud, semi-enterrées, ont dû être dégagées pour laisser la pierre respirer…moyennant quelques moments forts en émotion. « Nous avons pleinement compris l’étymologie du village qui signifie “champ et eau”. Des ruisseaux d’eau ont traversé la propriété depuis le champ de derrière jusqu’à la rue, c’était épique », raconte-t-elle. Coût de l’opération de terrassement : 30 000 €.
L’aspect thermique et l’humidité étaient d’autres préoccupations majeures. Les zones enterrées ont été isolées avec du liège. La partie droite de la toiture, changée il y a plus de 40 ans, a été refaite et consolidée également pour 30 000 €. Celle-ci a été isolée en laine de bois et pare-vapeur sous les rampants tandis que la partie haute de la bâtisse a été isolée sur le nouveau plancher des combles perdus. « Dans les combles, il est plus facile d’aller vérifier que la toiture tient le coup », justifie Miriam.
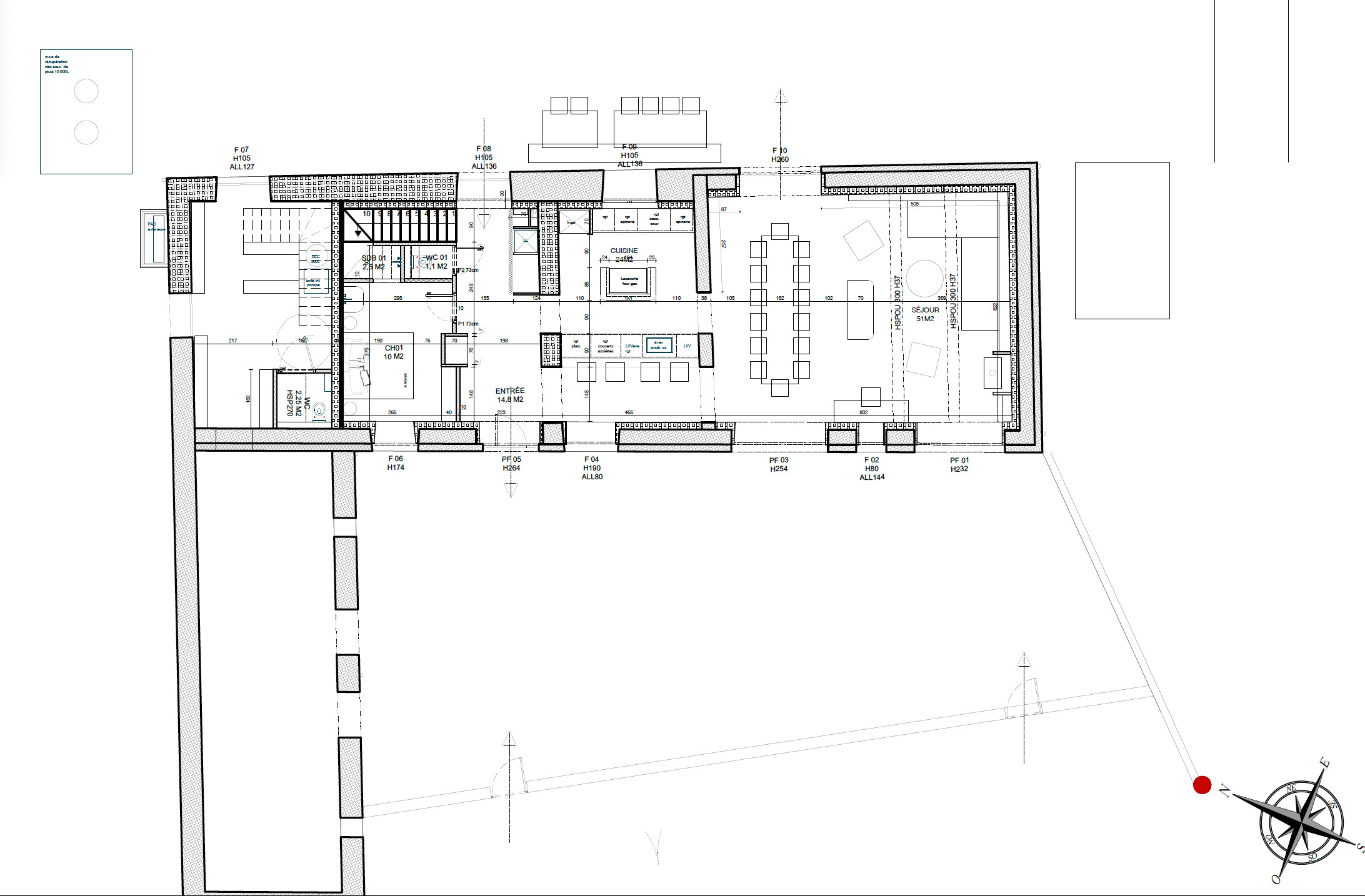
Partie droite de la bâtisse après travaux (RDC)
À la suite de ces travaux préparatoires de l’enveloppe, la partie principale de la bâtisse a été ouverte au maximum de manière transversale et également vers l’extérieur. Les murs de refend entre les différentes parties de la bâtisse ont été percés et les linteaux solidifiés par des IPN. Puis de nombreuses fenêtres et portes-fenêtres ont amélioré les rares ouvertures existantes, notamment sur le côté nord, percé initialement de modestes lucarnes, et le côté sud, aveugle.
Une fois la longère largement décloisonnée et éclairée, Miriam a choisi de créer l’étage en structure béton (planchers et escalier) plutôt qu’en bois. « Avec une partie à 10 mètres de haut, j’ai préféré couler des dalles pour solidifier le tout, surtout qu’il y avait quelques fissures. En prime, le béton garantit le confort phonique dans une maison destinée à recevoir beaucoup de monde, et ce, avec plus de rapidité de pose et un coût équivalent à un plancher bois auquel il aurait fallu adjoindre une isolation en sous-face », explique-t-elle.
À la suite de ces travaux préparatoires de l’enveloppe, la partie principale de la bâtisse a été ouverte au maximum de manière transversale et également vers l’extérieur. Les murs de refend entre les différentes parties de la bâtisse ont été percés et les linteaux solidifiés par des IPN. Puis de nombreuses fenêtres et portes-fenêtres ont amélioré les rares ouvertures existantes, notamment sur le côté nord, percé initialement de modestes lucarnes, et le côté sud, aveugle.
Une fois la longère largement décloisonnée et éclairée, Miriam a choisi de créer l’étage en structure béton (planchers et escalier) plutôt qu’en bois. « Avec une partie à 10 mètres de haut, j’ai préféré couler des dalles pour solidifier le tout, surtout qu’il y avait quelques fissures. En prime, le béton garantit le confort phonique dans une maison destinée à recevoir beaucoup de monde, et ce, avec plus de rapidité de pose et un coût équivalent à un plancher bois auquel il aurait fallu adjoindre une isolation en sous-face », explique-t-elle.
Avant. L’entrée a été positionnée sur la droite de l’ancienne étable.
Après. L’architecte d’intérieur Miriam Gassmann désirait un espace épuré, presque « monacal », pour que la maison de famille soit un lieu de repos et de sérénité.
La résine, avec sa finition lisse et uniforme apposée sur les sols, les murs ou encore les plans de travail de la cuisine traduit cette vision qui donne une impression de calme et agrandit les perspectives. « Le choix d’un monomatériau a été aussi économique qu’esthétique. La résine, qui a été fournie posée par Propose Paris, permet de mettre pleinement en valeur les éléments bruts du bâtiment, comme les poutres apparentes ou les murs de pierre, sans les concurrencer par des matériaux trop ornementaux », estime-t-elle.
La résine, avec sa finition lisse et uniforme apposée sur les sols, les murs ou encore les plans de travail de la cuisine traduit cette vision qui donne une impression de calme et agrandit les perspectives. « Le choix d’un monomatériau a été aussi économique qu’esthétique. La résine, qui a été fournie posée par Propose Paris, permet de mettre pleinement en valeur les éléments bruts du bâtiment, comme les poutres apparentes ou les murs de pierre, sans les concurrencer par des matériaux trop ornementaux », estime-t-elle.
L’entrée aménagée avec un banc, un portemanteau et un dressing ouvert en font un espace avant tout pratique. La résine au sol et aux murs crée une ambiance épurée. « C’est simple et fonctionnel, on pose ses affaires et on entre dans la maison », décrit Miriam.
Placée à la suite de l’entrée et adjacentes aux terrasses avant et arrière pour un accès facilité, la cuisine est conçue dans un esprit de convivialité.
Deux plans de travail de chaque côté de la pièce encadrent un piano de cuisson Lacanche posé en îlot au centre tandis qu’un plan bar trace la circulation jusqu’au séjour.
Deux éviers, deux frigos (dont un pour les boissons), un lave-vaisselle et un lave-verre permettent à plusieurs personnes de travailler simultanément.
« J’adore cuisiner, mais je déteste être seule en cuisine. Ici, on peut être quatre ou cinq à préparer, laver, ou cuisiner ensemble », partage Miriam.
Avant. La grange centrale, avec ses 10 mètres de haut, était vide, dominée par quatre poutres massives, dont une fragilisée.
Après. Depuis la cuisine, l’accès est aisé jusqu’à la salle à manger la plus minimaliste possible pour laisser la part belle au bâtiment et aux conversations animées des convives.
En sous-face du plancher béton, la professionnelle a choisi de laisser apparents les hourdis en bois. Ce choix, tout comme celui de laisser visible le béton sur les encadrements de porte, reflète son parti pris de « laisser parler le bâtiment », comme elle le souligne : « Nous voulions absolument assumer le bâtiment et le gros œuvre, ne pas tout enfermer dans du placo qui aurait enlevé tout le charme des lieux. »
Les hourdis en bois, peints au pistolet, forment un « plafond à la française moderne » grâce aux caissons qu’ils dessinent, apportant une touche contemporaine tout en respectant l’histoire de la grange. Miriam est particulièrement contente de cette prise de risque esthétique. « L’acoustique est excellente dans la pièce. Mon fils est pianiste et me le dit à chaque fois », apprécie-t-elle.
Avant. La partie la plus basse de la grange était ornée de deux portes en arcade.
Après. Inondant l’espace de lumière, les anciennes portes en arcade de la grange ont été transformées en portes-fenêtres donnant sur la terrasse côté ouest, tandis que de l’autre côté, à l’est, une nouvelle porte-fenêtre dessert une autre terrasse longeant le champ acquis par Miriam. La salle à manger, centrée autour d’une table de ferme chinée sur Le Bon Coin et de chaises des années 1960 trouvées à Niort dans une brocante, accueille jusqu’à 14 personnes avec deux tabourets d’appoint. Non loin, un baby-foot anime les soirées familiales.
Miriam a préservé un maximum de hauteur dans le séjour mettant en valeur trois des quatre poutres existantes d’une portée de 6,15 mètres. « Quand je suis sur le canapé, je me dis que j’ai des arbres entiers au-dessus de moi, c’est émouvant », confie-t-elle.
La pièce a été meublée dans un joyeux mix and match reflétant les goûts de sa propriétaire. Accompagnent le canapé contemporain, choisi pour son confort enveloppant, un tabouret brutaliste signé par le designer Jean-Guillaume Mathiaut ou encore un bar en bois vintage chiné dans la région.
Avant. Cette partie du bâtiment de 10 mètres de haut hébergeait une étable, sombre et particulièrement humide. S’y situent aujourd’hui l’entrée, la suite et l’escalier vers l’étage.
Après. Conçue comme un cocon indépendant, cette suite de plain-pied s’ouvre sur une porte-fenêtre neuve offrant une vue plein ouest et sur la partie en L de la bâtisse.
Entièrement parée de résine, la douche placée sous l’escalier en béton s’ouvre par une arche. Le lavabo dans la chambre et un WC mitoyen en font un espace autonome, comme une chambre d’hôtel. « C’est la suite parentale, parfaitement indépendante », explique Miriam.
La vue bucolique et la palette minimaliste (résine, bois brut, literie et rideaux en lin) créent une ambiance reposante.
À propos de la fenêtre nouvellement percée, Miriam explique avoir opté partout pour des fenêtres en PVC double vitrage, fabriquées par la société bretonne Armen. « Jamais de ma vie je n’aurais pensé mettre un jour du PVC, mais cette société locale a un produit très qualitatif, plus isolant que l’aluminium et avec un effet poudré qui rappelle vraiment un matériau noble, pour un coût bien moindre », confie Miriam.
À propos de la fenêtre nouvellement percée, Miriam explique avoir opté partout pour des fenêtres en PVC double vitrage, fabriquées par la société bretonne Armen. « Jamais de ma vie je n’aurais pensé mettre un jour du PVC, mais cette société locale a un produit très qualitatif, plus isolant que l’aluminium et avec un effet poudré qui rappelle vraiment un matériau noble, pour un coût bien moindre », confie Miriam.
Partie droite de la bâtisse après travaux (R+1)
L’étage était inexistant. Aujourd’hui, il s’étend sur toute la longère. Le corps de bâtiment de 10 mètres de haut a reçu un second plancher béton au-dessus afin de créer des combles perdus. L’autre corps de bâtiment accolé, de 6,80 mètres de haut, offre des pièces avec plafond cathédrale.
L’étage était inexistant. Aujourd’hui, il s’étend sur toute la longère. Le corps de bâtiment de 10 mètres de haut a reçu un second plancher béton au-dessus afin de créer des combles perdus. L’autre corps de bâtiment accolé, de 6,80 mètres de haut, offre des pièces avec plafond cathédrale.
Avant. À l’origine, un fenil se trouvait dans la partie supérieure du bâtiment de 10 mètres de haut. Les anciennes poutres ont été déposées et préservées.
Après. À l’étage, le plan n’est pas compliqué. L’escalier débouche sur le côté gauche de la bâtisse et un couloir de 90 centimètres de large file jusqu’au fond du volume (le pignon sud) distribuant un dortoir et sa salle de douche, trois chambres supplémentaires, deux salles de bains et une pièce de vie avec cuisine et séjour.
Au milieu du couloir, une marche marque la transition vers une partie légèrement plus haute, située au-dessus du salon-salle à manger du rez-de-chaussée. « Nous avons souhaité maximiser la hauteur de la pièce de vie en dessous, d’où la marche », explique l’architecte d’intérieur.
Toutes les portes à cet étage ont été fabriquées avec du bois ancien et montées en portes coulissantes au moyen de rails robustes, comme dans les granges d’antan. « Comme il y avait beaucoup de pièces distribuées par ce couloir, je ne voulais aucune porte battante et j’ai souhaité retrouver l’esprit grange d’antan », indique-t-elle.
Toutes les portes à cet étage ont été fabriquées avec du bois ancien et montées en portes coulissantes au moyen de rails robustes, comme dans les granges d’antan. « Comme il y avait beaucoup de pièces distribuées par ce couloir, je ne voulais aucune porte battante et j’ai souhaité retrouver l’esprit grange d’antan », indique-t-elle.
La première pièce sur la droite est le dortoir avec deux lits superposés doubles et deux lits simples accolés.
En face, une salle de douche compacte en résine assure le confort. « Le dortoir, c’est pour les ados, avec leur salle de douche juste en face, c’est hyper pratique », note Miriam.
Voici la douche de la salle d’eau du dortoir, récupérant habilement une lucarne existante.
Faisant suite au dortoir, cette chambre double, éclairée par une fenêtre côté ouest, dispose d’un beau mur de pierres apparentes. Elle a été aménagée avec un bureau chiné et un dressing ouvert.
En face de cette chambre se situe sa salle de bains privative avec une baignoire. Le mur de pierre, ancien mur de refend de la bâtisse, crée une unité décorative tandis que la résine adoucit le décor.
Après. Côté ouest, cette chambre double intime, avec un lit sous un Velux, permet de regarder les étoiles. « Nous l’avons conçue comme une cabane, parfaite pour se sentir ailleurs », confie Miriam.
En face se situe une petite chambre cabane conçue dans le même esprit « cocon sous pente ». Sa taille réduite a permis de créer à côté des toilettes indépendantes.
La salle de bains attribuée aux deux chambres avec Velux dispose d’une très grande douche à l’italienne.
Après. Donnant plein sud sur un pignon ouvert par une nouvelle fenêtre en plein cintre, cette grande pièce sous pente combine salon, cuisine et salle à manger.
« C’est la cuisine-salon des ados. Pendant qu’on cuisine en bas, ils font leur vie en haut, mangent des glaces ou peuvent se faire des encas », explique Miriam.
Une mezzanine au-dessus du couloir, bientôt accessible par une échelle, deviendra un coin lecture, construit avec les restes des portes en bois.
En visitant la terrasse est, qui longe la prairie fleurie rachetée par Miriam pour favoriser la biodiversité et accueillir des œuvres de land art, l’architecte partage le nom du gîte : « Nous l’avons appelé Clos La Gadoue, un clin d’œil à Champeaux, à ses champs boueux, et à la baie du Mont-Saint-Michel, où l’on patauge dans la vase pour pêcher des coques », explique-t-elle avec un sourire. Fan de Jane Birkin, elle ajoute en riant : « Quand Jane chante “Il fait un temps abominable” avec son accent merveilleux, elle rendrait même la pluie poétique ! »
La partie en L, actuellement utilisée comme atelier, devrait devenir un musée. « Mon frère et moi aimerions exposer de jeunes photographes contemporains en hommage à notre père tireur et photographe Pierre Gassmann», partage-t-elle.
Pour finir, la professionnelle évoque le budget rénovation de 350 000 à 400 000 € pour 200 m². D’importance certes, mais en réalité très maîtrisé grâce au choix du monomatériau résine en intérieur, à quatre consultations d’artisans par corps de métier et à de nombreux travaux réalisés par la famille, aidée par un couple d’amis ayant réalisé l’autorénovation de leur propre grange. « On n’aurait pas pu faire moins cher », affirme-t-elle.Depuis quelques mois, ce site incarne un lieu de partage où la famille savoure chaque moment avec délices. « On y a déjà passé des week-ends splendides entre famille et amis, c’est reposant, un vrai refuge à deux pas de la Baie », partage Miriam Gassmann.
ET VOUS ?
Que pensez-vous de cette rénovation ?
Vous êtes en quête d’un professionnel pour vos travaux ? Houzz partage son annuaire exclusif pour que vous mettiez toutes les chances de votre côté. Savez-vous pourquoi les professionnels qui utilisent Houzz Pro ont de meilleures chances de vous faire atteindre vos objectifs ? Ils utilisent notre logiciel tout-en-un et vous pourrez en profiter grâce à eux. Grâce aux outils de visualisation inclus dans l’outil, vous pourrez imaginer votre projet clairement et rapidement. Le Portail Client fluidifie quant à lui vos communications avec le professionnel tout au long du projet, quand la signature des devis en ligne simplifie vos démarches.
Pour finir, la professionnelle évoque le budget rénovation de 350 000 à 400 000 € pour 200 m². D’importance certes, mais en réalité très maîtrisé grâce au choix du monomatériau résine en intérieur, à quatre consultations d’artisans par corps de métier et à de nombreux travaux réalisés par la famille, aidée par un couple d’amis ayant réalisé l’autorénovation de leur propre grange. « On n’aurait pas pu faire moins cher », affirme-t-elle.Depuis quelques mois, ce site incarne un lieu de partage où la famille savoure chaque moment avec délices. « On y a déjà passé des week-ends splendides entre famille et amis, c’est reposant, un vrai refuge à deux pas de la Baie », partage Miriam Gassmann.
ET VOUS ?
Que pensez-vous de cette rénovation ?
Vous êtes en quête d’un professionnel pour vos travaux ? Houzz partage son annuaire exclusif pour que vous mettiez toutes les chances de votre côté. Savez-vous pourquoi les professionnels qui utilisent Houzz Pro ont de meilleures chances de vous faire atteindre vos objectifs ? Ils utilisent notre logiciel tout-en-un et vous pourrez en profiter grâce à eux. Grâce aux outils de visualisation inclus dans l’outil, vous pourrez imaginer votre projet clairement et rapidement. Le Portail Client fluidifie quant à lui vos communications avec le professionnel tout au long du projet, quand la signature des devis en ligne simplifie vos démarches.















































C’est ici que Miriam Gassmann a découvert une bâtisse rurale délaissée, un bâtiment en L composé d’une grange, d’une étable et d’une porcherie, posé sur un sol en terre battue et recouvert d’ardoises. « On a cherché deux ans un endroit pour faire notre maison de famille et recevoir tous les copains des quatre coins. Cette maison était parfaite, tant pour le potentiel de superficie d’aménagement que pour son intérieur presque vide qui nous économisait la phase de démolition », partage-t-elle.
Trouvez un architecte d’intérieur près de chez vous sur Houzz