Visites Privées
Extensions
Dossiers populaires
Avant/Après : Une meulière étendue et surélevée près de Paris
Une maison gagne 39 m² grâce à l'intervention d'une architecte
Ce couple dans la quarantaine avec deux filles de 9 et 13 ans a posé ses valises il y a plusieurs années dans une maison des années 1920 à Saint-Maur, aux portes de Paris. Avec les enfants grandissant, la maison de 100 m², avec sous-sol total et combles perdus, commence à se faire étroite. L’étage, en particulier, pose problème. Ils décident de prendre contact avec une architecte afin de les aider à réfléchir : engager toutes leurs économies pour pousser les murs ou déménager ? Ils rencontrent Tina Merkes, une architecte de bon conseil qui va les accompagner pendant deux ans afin de transformer leur home sweet home de la meilleure des manières.
Avant. Voici la façade de la maison 1920 avant travaux, donnant sur la rue. La partie de droite était probablement une extension des années 1960.
Il n’est pas nécessaire qu’un projet de travaux soit déjà bien engagé pour s’adresser à un architecte. Quand ces particuliers ont pris contact avec Tina Merkes, la réflexion était complètement ouverte. « Les travaux étaient une possibilité mais il y en avait d’autres, comme celle de changer de maison ou encore de travail », témoigne celle qui les a accompagnés pas à pas vers la solution qui s’est révélée la plus pertinente, soit la surélévation et l’extension de leur meulière.
Trouvez un architecte près de chez vous sur Houzz
Il n’est pas nécessaire qu’un projet de travaux soit déjà bien engagé pour s’adresser à un architecte. Quand ces particuliers ont pris contact avec Tina Merkes, la réflexion était complètement ouverte. « Les travaux étaient une possibilité mais il y en avait d’autres, comme celle de changer de maison ou encore de travail », témoigne celle qui les a accompagnés pas à pas vers la solution qui s’est révélée la plus pertinente, soit la surélévation et l’extension de leur meulière.
Trouvez un architecte près de chez vous sur Houzz
Après. La maison a été surélevée et agrandie de deux petites extensions. Elle a également été ravalée dans un style anglo-normand.
Expérimentée, l’architecte Tina Merkes a commencé par recueillir les souhaits de transformation de la famille. La principale demande concernait l’étage, un plateau de 50 m² comprenant quatre chambres – une pour chaque membre de la famille, plus un bureau – dont la distribution posait problème et où le manque de place se faisait sentir. « Les parents et la fille cadette disposaient de chambres trop exiguës et chaque parent avait besoin d’un espace de travail personnel, monsieur étant chanteur lyrique et madame enseignante », explique Tina.
S’ajoutaient d’autres complications comme le balcon défectueux de la chambre parentale ou encore l’étroitesse de la cuisine au rez-de-chaussée, inadaptée à une famille qui cuisine beaucoup et quotidiennement.
Expérimentée, l’architecte Tina Merkes a commencé par recueillir les souhaits de transformation de la famille. La principale demande concernait l’étage, un plateau de 50 m² comprenant quatre chambres – une pour chaque membre de la famille, plus un bureau – dont la distribution posait problème et où le manque de place se faisait sentir. « Les parents et la fille cadette disposaient de chambres trop exiguës et chaque parent avait besoin d’un espace de travail personnel, monsieur étant chanteur lyrique et madame enseignante », explique Tina.
S’ajoutaient d’autres complications comme le balcon défectueux de la chambre parentale ou encore l’étroitesse de la cuisine au rez-de-chaussée, inadaptée à une famille qui cuisine beaucoup et quotidiennement.
Avant. Pour qu’un projet voie le jour, sa faisabilité – technique, légale et financière – est un prérequis. Également essentielle, la qualité de la relation de confiance entre les propriétaires et l’architecte.
Avant même d’envisager les aspects financiers, Tina Merkes a débuté par une étude de faisabilité approfondie. « Je commence par examiner le Plan local d’urbanisme (PLU) pour connaître les possibilités de surélévation et d’extension, je vérifie les textes réglementaires définissant les contraintes spatiales, puis je procède à un préchiffrage pour évaluer la capacité financière de mes clients », détaille-t-elle.
Avant même d’envisager les aspects financiers, Tina Merkes a débuté par une étude de faisabilité approfondie. « Je commence par examiner le Plan local d’urbanisme (PLU) pour connaître les possibilités de surélévation et d’extension, je vérifie les textes réglementaires définissant les contraintes spatiales, puis je procède à un préchiffrage pour évaluer la capacité financière de mes clients », détaille-t-elle.
Après. En l’occurrence, il était possible ici de transformer les combles perdus en un étage supplémentaire en s’adonnant à une surélévation. Par ailleurs, on pouvait agrandir légèrement la construction par deux petites extensions côté rue et jardin, offrant l’opportunité d’optimiser les volumes du rez-de-chaussée et du premier étage. Une surélévation et des extensions permettant d’augmenter en tout la surface Carrez de 39 m².
Les conditions étaient également réunies du côté des propriétaires pour un investissement de 300 000 euros. « Nous avons supposé que les fonds investis généreraient une plus-value équivalente. Il est important en effet de bien étudier la rentabilité à long terme avant d’entamer un tel projet », explique Tina, qui a à cœur d’être pédagogue lorsqu’il s’agit de montants aussi importants.
À deux pas de Paris, cette demeure de caractère de 100 m² et son jardin, nichés dans un quartier recherché, conjuguaient art de vivre et praticité. Sa bonne desserte en transports et son emplacement privilégié en faisaient un investissement judicieux pour une famille, alliant qualité de vie au quotidien et valorisation patrimoniale sur le long terme.
Les conditions étaient également réunies du côté des propriétaires pour un investissement de 300 000 euros. « Nous avons supposé que les fonds investis généreraient une plus-value équivalente. Il est important en effet de bien étudier la rentabilité à long terme avant d’entamer un tel projet », explique Tina, qui a à cœur d’être pédagogue lorsqu’il s’agit de montants aussi importants.
À deux pas de Paris, cette demeure de caractère de 100 m² et son jardin, nichés dans un quartier recherché, conjuguaient art de vivre et praticité. Sa bonne desserte en transports et son emplacement privilégié en faisaient un investissement judicieux pour une famille, alliant qualité de vie au quotidien et valorisation patrimoniale sur le long terme.
Avant. Voivi la façade arrière de la maison avant travaux. L’architecte a déterminé les 39 m² de surface de plancher supplémentaires en tenant compte des possibilités de construction au sol et de surélévation, dans le respect du bâti existant et du PLU. « C’est un chiffre magique », se réjouit-elle. En effet, ce métrage est particulièrement avantageux : « Avec 39 m², nous pouvions déposer une simple demande préalable (DP) plutôt qu’un permis de construire dans cette commune ».
Cette option plus légère simplifie les démarches administratives, car l’instruction d’une DP est plus rapide que celle d’un permis de construire. Même si l’impact global du chantier n’est pas réduit, l’affichage en façade obligatoire deux mois avant et pendant la durée des travaux a tendance à moins effrayer le voisinage. « C’est un aspect important à prendre en compte », souligne Tina attentive à tous les paramètres.
Cette option plus légère simplifie les démarches administratives, car l’instruction d’une DP est plus rapide que celle d’un permis de construire. Même si l’impact global du chantier n’est pas réduit, l’affichage en façade obligatoire deux mois avant et pendant la durée des travaux a tendance à moins effrayer le voisinage. « C’est un aspect important à prendre en compte », souligne Tina attentive à tous les paramètres.
Après. Voici la façade arrière de la maison après travaux. Les propriétaires, une fois confortés dans la faisabilité de ces travaux, ont validé dans la foulée le ravalement de la façade comme prolongement du perfectionnement intérieur. « La surélévation rendait obligatoire le ravalement mais faire appel à un excellent ravaleur nous a permis de donner à cette maison une vraie personnalité, même si cette opération a eu un coût de 50 000 euros supplémentaires », explique Tina.
Des colombages peints en vert tendre tranchent désormais sur la façade coquille d’œuf et confèrent à la bâtisse un air de maison anglo-normande rappelant les villas de Deauville. « Avec les palmiers existants, ce ravalement donne à cette maison un air de villégiature. Mes clients se disent comme en vacances chez eux et maintenant les gens s’arrêtent et prennent des photos », partage Tina, satisfaite des choix réalisés.
Elle a d’ailleurs pris rendez-vous avec la conseillère patrimoine du CAUE* local afin de peaufiner les choix qui s’intègrent le mieux possible dans le quartier, comme employer des garde-corps d’époque pour orner les fenêtres de la surélévation.
*Créé dans chaque département, le Conseil d’architecture, d’urbanisme et de l’environnement (CAUE) est un organisme de service public qui conseille, forme et sensibilise aussi bien les collectivités que les particuliers pour garantir la qualité architecturale et paysagère de nos territoires.
Elle a d’ailleurs pris rendez-vous avec la conseillère patrimoine du CAUE* local afin de peaufiner les choix qui s’intègrent le mieux possible dans le quartier, comme employer des garde-corps d’époque pour orner les fenêtres de la surélévation.
*Créé dans chaque département, le Conseil d’architecture, d’urbanisme et de l’environnement (CAUE) est un organisme de service public qui conseille, forme et sensibilise aussi bien les collectivités que les particuliers pour garantir la qualité architecturale et paysagère de nos territoires.
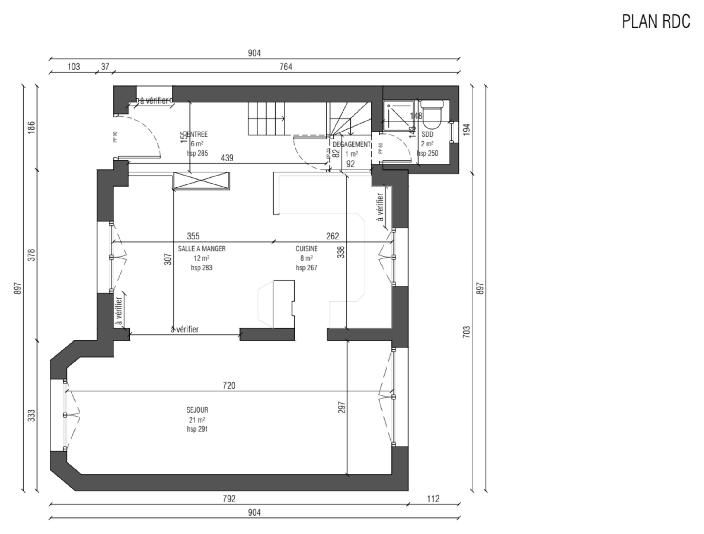
Avant. Voici le plan du rez-de-chaussée avant travaux. Rentrons à présent afin d’étudier plus en détail les modifications de l’intérieur. Le rez-de-chaussée s’ouvrait à un coin de la maison sur un couloir permettant d’entrer dans la grande pièce de vie ou de desservir l’escalier de l’étage, derrière lequel se trouvaient les toilettes.
Après. En effet, c’est le vert du carreau de ciment qui a été retenu pour parer l’escalier et inspirer les colombages vert d’eau à l’extérieur. C’est d’ailleurs le père de famille qui a peint entièrement l’escalier, tenant à faire baisser le coût de la main-d’œuvre sur ce poste et ayant envie de s’impliquer dans son chantier.
Après. Le père de famille, épris de bricolage, et notamment de menuiserie, a fabriqué la bibliothèque aux fonds colorés que l’on distingue dans le renfoncement.
Sur la gauche du cliché, on distingue le bow-window d’origine, par-dessus lequel s’avance le balcon de la chambre parentale, qui aura son importance pour la suite.
Sur la gauche du cliché, on distingue le bow-window d’origine, par-dessus lequel s’avance le balcon de la chambre parentale, qui aura son importance pour la suite.
Après. Le séjour a été allégé de la table à manger après les travaux de l’extension de la cuisine. Il est désormais plus épuré. Sur la droite, le coin bibliothèque est resté à sa place.
L’insert mural d’une belle forme octogonale n’a pas changé de place.
Plus d’idées pour aménager une pièce de vie sur Houzz
Plus d’idées pour aménager une pièce de vie sur Houzz
Après. La bibliothèque en bois avait elle aussi été réalisée par le père de famille. « Pour contraster avec le vert de la cuisine, et comme ils aiment beaucoup cette couleur jaune curry, ils ont récemment rajouté cette suspension jaune Flowerpot », note Tina.
Après. La cuisine a été étendue sur le jardin par une extension maçonnée en Biobric de 20 centimètres d’épaisseur, isolées de laine minérale. 9 m² de plus ont complètement changé le ressenti grâce à une surface vitrée beaucoup plus grande comprenant un ensemble de vitrages façon verrière, des fenêtres de toit et une porte vitrée pour sortir directement sur la terrasse. « Mes clients ont craint que l’extension ne leur fasse perdre de la lumière, mais ils m’ont fait confiance et avec les Velux, ils en ont même gagné. C’était un choix architectural important, qui a vraiment fonctionné », explique Tina.
Après avoir fait un appel d’offres, l’architecte a travaillé avec une des ses entreprises de confiance. L’essentiel des travaux (dont l’extension maçonnée de la cuisine) a été réalisé de mai à décembre 2022. La famille est restée dans les lieux tout le temps du chantier, ce qui a certes été contraignant, mais l’organisation des phases de travaux par Tina a permis d’amoindrir leurs désagréments, notamment en maintenant la cuisine fonctionnelle. « Mon équipe a même déplacé un temps la cuisine dans le séjour. Pour qu’un chantier comme celui-ci soit le plus léger possible pour une famille, c’est tout une dentelle de planning », insiste-t-elle.
Après avoir fait un appel d’offres, l’architecte a travaillé avec une des ses entreprises de confiance. L’essentiel des travaux (dont l’extension maçonnée de la cuisine) a été réalisé de mai à décembre 2022. La famille est restée dans les lieux tout le temps du chantier, ce qui a certes été contraignant, mais l’organisation des phases de travaux par Tina a permis d’amoindrir leurs désagréments, notamment en maintenant la cuisine fonctionnelle. « Mon équipe a même déplacé un temps la cuisine dans le séjour. Pour qu’un chantier comme celui-ci soit le plus léger possible pour une famille, c’est tout une dentelle de planning », insiste-t-elle.
3D faisant partie du dossier de conception de l’architecte Tina Merkes
De nombreux plans de cuisine ont été étudiés par l’architecte pour ces clients qui voulaient parvenir à la configuration idéale. Les simulations 3D ont été un atout majeur pour les aider au choix. « On a beaucoup parlé d’ergonomie, de belle vue quand on fait la vaisselle ou quand on
on cuisine, de place centrale pour les bocaux et les épices… Je crois que l’on a exploré tous les plans, en L, en U, en I, ou encore en parallèle. On a également étudié une baie vitrée toute hauteur », explique-t-elle. Finalement, le plan retenu a satisfait tout le monde.
De nombreux plans de cuisine ont été étudiés par l’architecte pour ces clients qui voulaient parvenir à la configuration idéale. Les simulations 3D ont été un atout majeur pour les aider au choix. « On a beaucoup parlé d’ergonomie, de belle vue quand on fait la vaisselle ou quand on
on cuisine, de place centrale pour les bocaux et les épices… Je crois que l’on a exploré tous les plans, en L, en U, en I, ou encore en parallèle. On a également étudié une baie vitrée toute hauteur », explique-t-elle. Finalement, le plan retenu a satisfait tout le monde.
Le sol de la cuisine a également posé question, car les propriétaires souhaitaient conserver les carreaux de ciment existants. Il a été possible de retrouver la même référence et d’étendre leur superficie. Ils ont été mis en valeur façon tapis avec un contour en carrelage blanc.
Leur vert a également inspiré la teinte vert d’eau des façades de cuisine. Pour obtenir cette teinte, l’architecte a fait appel à un cuisiniste qui propose un large catalogue.
Leur vert a également inspiré la teinte vert d’eau des façades de cuisine. Pour obtenir cette teinte, l’architecte a fait appel à un cuisiniste qui propose un large catalogue.
Cette coupe résume les deux extensions de la maison. Sur la gauche, le volume agrandi sur le jardin correspond à l’extension de la cuisine. Sur la droite, on distingue l’extension de la chambre parentale au-dessus du bow-window existant du salon que nous allons découvrir de l’intérieur, en montant à l’étage.
Après. Comme nous l’avons aperçu en bas, les garde-corps ont été repeints en vert. Le palier, à gauche de la photo, a été créé en réduisant la salle de bains. Sans cela, l’escalier vers le second niveau n’aurait pas été faisable.
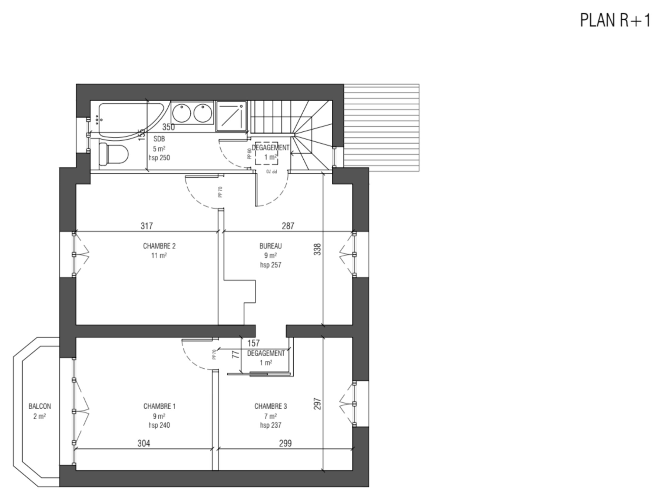
Avant. Le plan du 1er étage n’était pas classique. Depuis l’escalier occupant un coin du niveau, on accédait à un palier desservant la salle de bains, puis une petite pièce faisant office de bureau. De là, on entrait dans une première chambre sur rue, attribuée à l’aînée (chambre 2). Un dégagement menait ensuite à la toute petite chambre 3 de la cadette, qui permettait d’accéder enfin à la chambre parentale (chambre 1).
Après. Les jeunes filles ont décidé de s’installer sous les combles. En devenant l’étage privatif des parents, la circulation quelque peu alambiquée ne posait plus le même problème. « Impossible de toute façon de créer un couloir central, car le conduit de cheminée était positionné en plein centre de l’étage », souligne Tina Merkes.
La chambre parentale a été agrandie par l’annexion du balcon, la salle de bains refaite au goût des maîtres d’ouvrage, deux bureaux ont été créés pour chaque adulte et une chambre d’amis est disponible en plus.
La chambre parentale a été agrandie par l’annexion du balcon, la salle de bains refaite au goût des maîtres d’ouvrage, deux bureaux ont été créés pour chaque adulte et une chambre d’amis est disponible en plus.
Après. Le bureau est désormais une pièce traversante dévolue au rangement. Le père de famille a créé des placards pour y stocker son matériel musical. Il se sert plutôt de la chambre d’amis lorsqu’il doit s’entraîner pour sa profession. Le placard sert également à cacher une partie de l’escalier des combles.
Après. Sur la droite, cette pièce dessert la chambre d’amis. Tout au fond, elle donne désormais accès au bureau de la propriétaire.
Après. Madame travaille au calme et avec vue dans ce bureau sur jardin qui a remplacé la chambre de la fillette. La pièce dessert également la chambre parentale.
Vous êtes en quête d'un artisan pour votre projet en rénovation complète ?
Nous vous aidons à trouver les meilleurs pros
Nous vous aidons à trouver les meilleurs pros
Après. Les propriétaires ont fait le choix d’intégrer le balcon à leur chambre pour gagner en surface, mais n’ont pas souhaité réintégrer une porte-fenêtre afin d’avoir plus de possibilités pour meubler leur chambre. Ils auraient aimé en revanche ajouter des vitrages sur les côtés du bow-window, mais la réglementation l’interdisait. « Impossible de créer des ouvertures latérales donnant sur la propriété voisine », poursuit en effet l’architecte. Finalement, Tina Merkes estime que la solution retenue est la meilleure : « toutes les fenêtres de façade de cette maison avaient des allèges et cette unité rend la façade plus harmonieuse. Et au niveau luminosité, c’est quasiment comme avant ».
La petite extension de la chambre a permis d’optimiser l’aménagement avec la création d’un dressing et l’installation d’un miroir psyché. Le bureau a été déplacé, ce qui libère également l’espace et offre une nouvelle circulation fluidifiée. « Le plafond remonté confère également une meilleure volumétrie », explique Tina.
La petite extension de la chambre a permis d’optimiser l’aménagement avec la création d’un dressing et l’installation d’un miroir psyché. Le bureau a été déplacé, ce qui libère également l’espace et offre une nouvelle circulation fluidifiée. « Le plafond remonté confère également une meilleure volumétrie », explique Tina.
Après. La salle de bains a été réagencée avec une douche et des couleurs choisies par les propriétaires. Elle paraît beaucoup plus grande et son meuble vasque offre davantage de rangements alors qu’elle a été réduite d’1 m², cédé à la circulation pour permettre la création du nouvel escalier menant aux combles.
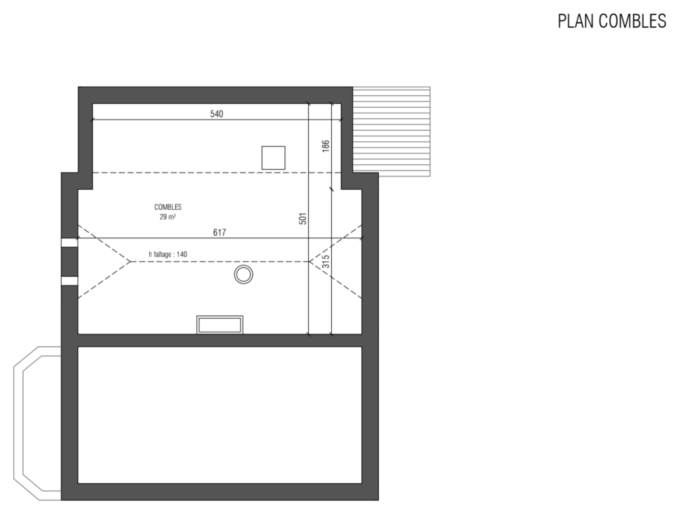
Avant. Voici le plan du 2ᵉ étage avant travaux. Si la maison comporte un sous-sol total, en revanche il n’avait pas de vrai grenier. « Lorsque je suis montée, j’ai eu beaucoup de mal à me déplacer car il n’y avait pas plus de 1,40 mètre de haut et le plancher de ce niveau formait une marche. Le sol était plus bas sur la partie de l’extension des années 1960 », explique Tina.
Après. Voici le plan du 2ᵉ étage après travaux. Ce niveau a été surélevé pour un gain de superficie Carrez de 27 m² et le sol a été égalisé. Deux chambres pour les filles et une salle de bains ont fait partie du programme. Le gain de superficie au sol donne une sensation d’espace et de la place pour les rangements.
Avant. Photo des combles perdus avant travaux. Bien que ce chantier ait été plutôt un modèle du genre, il a connu comme toujours ses aléas. Ici, en cours de chantier, l’architecte a découvert que la charpente d’origine était grignotée par les capricornes, des insectes xylophages moins nocifs que les termites mais qui peuvent causer tout de même de vrais dommages, reconnaissables par de gros trous en biais. « Ce n’était pas très grave pour la charpente car nous allions refaire le toit plus haut, mais le plancher était attaqué et nous avons dû le déposer et le remplacer partiellement », explique-t-elle.
Face à cet aléa, l’architecte a su en tirer parti, puisqu’elle a donc fait en sorte de réaligner le plancher de l’étage sur tout le niveau, afin qu’il n’y ait plus la marche d’origine qui aurait contrarié l’aménagement.
Face à cet aléa, l’architecte a su en tirer parti, puisqu’elle a donc fait en sorte de réaligner le plancher de l’étage sur tout le niveau, afin qu’il n’y ait plus la marche d’origine qui aurait contrarié l’aménagement.
Après. La surélévation a été réalisée en maçonnerie avec des briques rouges Bio’bric de 20 centimètres d’épaisseur. « Nous avons d’abord fait réaliser une étude structure par un BET pour les descentes de charges puis, en haut des murs en pierre meulière, les maçons ont réalisé un chaînage horizontal en béton armé pour ancrer la surélévation », détaille Tina, dont le rôle d’architecte est également de connaître chaque aspect technique de la construction.
Cette famille n’a pas fait le choix d’une climatisation, ce qui a parlé à Tina Merkes, architecte attachée à l’écologie et à des méthodes passives : « Je suis signataire du manifeste de la frugalité heureuse et créative en architecture », partage-t-elle, en expliquant avoir trouvé un écho parfait à ses valeurs chez cette famille.
Cette famille n’a pas fait le choix d’une climatisation, ce qui a parlé à Tina Merkes, architecte attachée à l’écologie et à des méthodes passives : « Je suis signataire du manifeste de la frugalité heureuse et créative en architecture », partage-t-elle, en expliquant avoir trouvé un écho parfait à ses valeurs chez cette famille.
En haut de l’escalier, le placard a été réalisé par le propriétaire sur les plans dessinés par Tina.
La chambre de la cadette se trouve au-dessus de l’extension de la chambre parentale.
Le toit de l’extension a engendré cette mignonne petite niche où la fillette a eu plaisir à installer son lit comme dans une cabane. « La vue sur l’avant de la maison donne sur les palmiers », partage l’architecte.
La demoiselle est passionnée de mangas et de films d’animation japonais. Le bureau a été choisi de la teinte de son tableau préféré.
La grande soeur a hérité de la chambre sur jardin. « C’est la plus jolie vue de la maison », estime l’architecte, qui a également deux anecdotes à partager avec nous à propos de cette chambre.
Détail singulier : la barre fixée à la poutre n’est pas là par hasard. L’aînée, passionnée d’escalade, en a fait son équipement d’entraînement quotidien.
Détail singulier : la barre fixée à la poutre n’est pas là par hasard. L’aînée, passionnée d’escalade, en a fait son équipement d’entraînement quotidien.
Cet autre détail amuse beaucoup Tina : « La jardinière ? C’est la jeune fille qui l’a réclamée. Conquise par les plantes qui animaient mes 3D, elle a voulu absolument les retrouver dans la réalité ».
À l’heure de clore cette visite, notons que l’accompagnement étroit et constant de l’architecte a permis à ces propriétaires de traverser ces travaux de la manière la plus indolore possible. La maison est désormais prête pour une vie de famille confortable, et ce, pour des années, ce qui a les rendus profondément heureux et reconnaissants. « Ils me contactent régulièrement pour me dire à quel point les choix que nous avons faits ensemble s’avèrent judicieux au quotidien », confie l’architecte, visiblement touchée. Ces derniers lui ont même laissé un avis évocateur de leur satisfaction sur Houzz : « Super architecte, que nous recommandons vivement ! Cela a été un vrai plaisir de travailler avec Tina. Elle était à l’écoute de nos attentes et nous a fait des propositions très justes et d’une grande finesse, dont nous apprécions la qualité tous les jours ! ».
Et Tina d’ajouter, avec passion : « Notre mission est d’accompagner les familles vers les meilleures décisions pour leur habitat. Les voir s’épanouir ainsi dans leur nouvel espace, n’est-ce pas la plus belle des récompenses ? ».
Et Tina d’ajouter, avec passion : « Notre mission est d’accompagner les familles vers les meilleures décisions pour leur habitat. Les voir s’épanouir ainsi dans leur nouvel espace, n’est-ce pas la plus belle des récompenses ? ».























































Qui habite ici ? Un couple et deux filles adolescentes
Surface : maison d’origine de 100 m² + extension et surélévation de 39 m²
Emplacement : Saint-Maur-des-Fossés (Val-de-Marne)
Durée des travaux : 9 mois
Architecte : Tina Merkes
Budget : 320 000 euros hors honoraires (Budget détaillé en fin d’article)
Photos : Wilfrid Gremillet et Tina Merkes (photos avant)