Architecture
Maisons de campagne
Projets nés sur Houzz
Avant/Après : Une vieille Pen Ty bretonne modernisée avec soin
Des choix architecturaux intelligents et sensibles transforment cette maison 19ᵉ en un refuge idéal pour une famille
À Quistinic, charmante bourgade bretonne à l’habitat préservé, une vieille maison du XIXᵉ siècle s’apprête à renaître pour un couple et leurs deux jeunes enfants. Expatriés, ils désirent se créer un pied-à-terre familial sans imposer leur présence à leurs parents qui habitent la commune. C’est pourquoi ils ont fait l’acquisition de cette bâtisse nécessitant une rénovation complète. Pour les accompagner dans ce projet, ils ont sélectionné et contacté via Houzz deux jeunes architectes vannetais, My-Linh Tôn et Stephen Le Diagon d’Anthropie architecture(s). « Ce projet représente beaucoup pour nous car nous avons travaillé un temps à Paris avant de nous réinstaller récemment en Bretagne et ce fut l’un de nos premiers projets locaux, qui plus est avec des clients adorables », explique l’architecte My-Linh Tôn qui nous a fait faire la visite.
Avant. Lorsque les architectes My-Linh Tôn et Stephen Le Diagon d’Anthropie architecture(s) ont visité les lieux pour la première fois en fin d’année 2020, ils ont découvert la charmante maison traditionnelle en pierre de 54 m² avec sa toiture à deux pans en ardoise et ses cheminées typiques, posées sur les deux pignons.
Trouvez un architecte près de chez vous sur Houzz
Trouvez un architecte près de chez vous sur Houzz
Après. Comme toutes les Pen Ty, littéralement « bout de maison », cette bâtisse traditionnelle bretonne était conçue, suivant l’expérience des anciens, sur des principes bioclimatiques. Orientée plein sud, sa façade de granit aux volets bleus contrastait avec les autres murs, dépourvus de fenêtres pour maximiser la conservation de la chaleur.
Avant. Un escalier extérieur, aujourd’hui disparu, donnait autrefois accès à l’étage aménagé en fenil, sur le pignon est.
Après. Lors de leur première visite, les architectes ont procédé à un examen minutieux de la bâtisse, My-Linh comparant d’ailleurs leur démarche d’architectes à celle d’archéologues du bâtiment ou encore d’un médecin au chevet d’un malade dont il faudrait établir le diagnostic. « Nous avons détecté des infiltrations d’eau au niveau des pignons et dû faire expertiser l’état des charpentes et des poutres du plancher haut », se souvient-t-elle notamment.
Avant. Côté nord, à l’arrière de la maison, un ancien appentis en planches et tôle ondulée, probablement utilisé comme remise à outils ou étable, servait d’espace tampon et protégeait la façade nord de la maison du vent et du froid. L’appentis cadastré a été démoli jusqu’à retrouver le pan de mur d’origine sur lequel il s’appuyait.
Pour cerner au mieux les besoins du couple, les architectes ont approfondi leur cahier des charges initial par un questionnaire détaillé sur leurs habitudes de vie. « Nous cherchons à comprendre en profondeur comment nos clients vivent leur espace », explique My-Linh. « Nous les invitons à une véritable introspection, à décrire leur routine quotidienne : aiment-ils cuisiner ? Sont-ils plutôt ordonnés ? Se couchent-ils à la même heure ? Se lèvent-ils la nuit ? Autant de questions qui nous permettent de saisir les nuances de leur mode de vie et de les retranscrire fidèlement dans notre conception architecturale ».
Pour cerner au mieux les besoins du couple, les architectes ont approfondi leur cahier des charges initial par un questionnaire détaillé sur leurs habitudes de vie. « Nous cherchons à comprendre en profondeur comment nos clients vivent leur espace », explique My-Linh. « Nous les invitons à une véritable introspection, à décrire leur routine quotidienne : aiment-ils cuisiner ? Sont-ils plutôt ordonnés ? Se couchent-ils à la même heure ? Se lèvent-ils la nuit ? Autant de questions qui nous permettent de saisir les nuances de leur mode de vie et de les retranscrire fidèlement dans notre conception architecturale ».
En cours de travaux. Côté nord, une extension à ossature bois a été construite à la place de l’appentis.
Aux observations et informations recueillies auprès des propriétaires, les architectes ont ajouté leur propre expertise, leurs intuitions et leur sensibilité par rapport à la bâtisse. « Notre objectif principal était de préserver l’essence des volumes existants », précise l’architecte.
Dans cette optique, ils ont cherché à maintenir l’approche bioclimatique de la maison tout en la modernisant par un travail sur les ouvertures et les cadrages, afin d’optimiser la luminosité. « Nous avons voulu créer des axes de transparence à travers tout le volume », poursuit-elle.
Aux observations et informations recueillies auprès des propriétaires, les architectes ont ajouté leur propre expertise, leurs intuitions et leur sensibilité par rapport à la bâtisse. « Notre objectif principal était de préserver l’essence des volumes existants », précise l’architecte.
Dans cette optique, ils ont cherché à maintenir l’approche bioclimatique de la maison tout en la modernisant par un travail sur les ouvertures et les cadrages, afin d’optimiser la luminosité. « Nous avons voulu créer des axes de transparence à travers tout le volume », poursuit-elle.
Après. Côté nord, nous découvrons la nouvelle entrée sous le préau.
Pour remplacer l’ancien appentis cadastré, tout en préservant le volume général de la maison, une extension en bois de 49 m² a été conçue. Son bardage en douglas a été teinté en noir. « De près, le noir du bois est très présent, mais de loin, c’est la couleur qui se fond le mieux dans le paysage », justifie l’architecte. « Comme l’extension est orientée nord et est, nous avons choisi cette teinte pour éviter le bois brut qui aurait pu griser sans uniformité. Nous avons donc appliqué un saturateur Rubio Monocoat couleur Noir, qui nécessite un entretien environ tous les sept ans environ », détaille-t-elle.
Pour remplacer l’ancien appentis cadastré, tout en préservant le volume général de la maison, une extension en bois de 49 m² a été conçue. Son bardage en douglas a été teinté en noir. « De près, le noir du bois est très présent, mais de loin, c’est la couleur qui se fond le mieux dans le paysage », justifie l’architecte. « Comme l’extension est orientée nord et est, nous avons choisi cette teinte pour éviter le bois brut qui aurait pu griser sans uniformité. Nous avons donc appliqué un saturateur Rubio Monocoat couleur Noir, qui nécessite un entretien environ tous les sept ans environ », détaille-t-elle.
Vous êtes en quête d'un artisan pour votre projet en rénovation complète ?
Nous vous aidons à trouver les meilleurs pros
Nous vous aidons à trouver les meilleurs pros
L’entrée d’origine, côté sud, donnait sur une cour partagée avec les autres Pen Ty du hameau, exposant ainsi les habitants aux allers et venues des voisins.
L’entrée a donc été déplacée du côté opposé, là où se trouve désormais le préau de l’extension. La terrasse ouverte à l’est et la terrasse couverte (préau) au nord permettent de profiter d’espaces ombragés et frais en été et d’une vue dégagée sur les champs.
L’entrée a donc été déplacée du côté opposé, là où se trouve désormais le préau de l’extension. La terrasse ouverte à l’est et la terrasse couverte (préau) au nord permettent de profiter d’espaces ombragés et frais en été et d’une vue dégagée sur les champs.
Le préau est polyvalent : porche, cuisine d’été, terrasse couverte pour les jours très chauds ou même espace pour stocker le bois. « Pour qu’une architecture soit pérenne, les lieux doivent pouvoir se réadapter aisément selon différents besoins », revendique My-Linh.
Dans cette maison à l’origine très sombre, l’idée était de recréer des « axes de transparence » d’où cette grande fenêtre fixe postée à l’entrée. « Nous avons souhaité réinventer les rapports à la fenêtre. L’idée était qu’à chaque fois que l’on tourne la tête, on profite d’un cadrage sur l’extérieur. La transparence des ouvertures se vit, se franchit ou s’habite d’un usage », explique l’architecte.
Avant. La maison existante faisait environ 3,5 × 15 mètres, soit moins de 55 m². À quoi se rajoutait l’étage et le préau de 50 m².
Les propriétaires ont souhaité aménager le bas avec les espaces de vie et la suite parentale et dédier l’étage à leurs enfants. Pour des questions structurelles, économiques et également phoniques, ils n’ont pas voulu garder l’étage existant sur plancher bois, préférant recréer un plancher béton plus isolant. « Cela nous a également permis de maximiser la hauteur habitable à l’étage », explique l’architecte.
Les propriétaires ont souhaité aménager le bas avec les espaces de vie et la suite parentale et dédier l’étage à leurs enfants. Pour des questions structurelles, économiques et également phoniques, ils n’ont pas voulu garder l’étage existant sur plancher bois, préférant recréer un plancher béton plus isolant. « Cela nous a également permis de maximiser la hauteur habitable à l’étage », explique l’architecte.
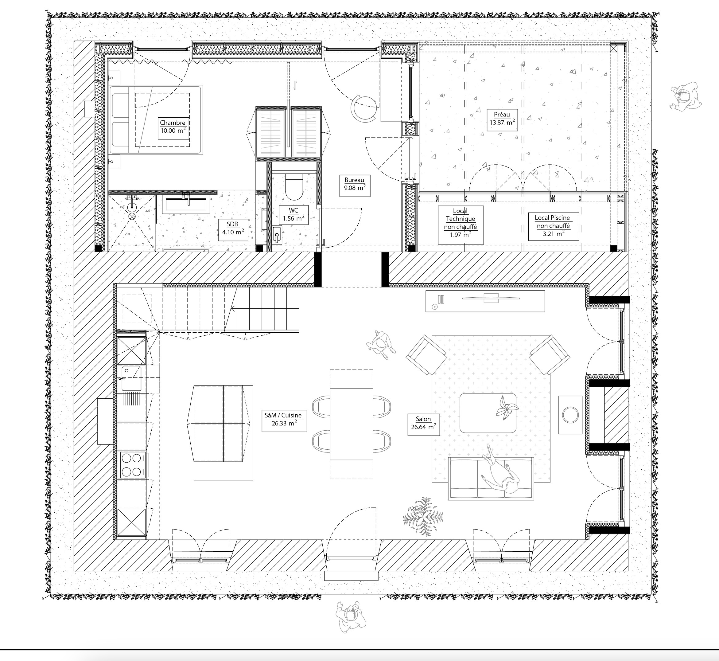
Plan du rez-de-chaussée après travaux
Une fois le temps des études achevé, les travaux furent lourds, s’étalant de juin 2021 à juillet 2022, consistant à donner vie à la « narration spatiale » imaginée par les architectes à partir du projet de vie énoncé par les clients.
L’extension bois a servi à nicher l’entrée, le bureau et la suite parentale, tandis que la maison d’antan a accueilli la grande pièce de vie et l’étage.
Une fois le temps des études achevé, les travaux furent lourds, s’étalant de juin 2021 à juillet 2022, consistant à donner vie à la « narration spatiale » imaginée par les architectes à partir du projet de vie énoncé par les clients.
L’extension bois a servi à nicher l’entrée, le bureau et la suite parentale, tandis que la maison d’antan a accueilli la grande pièce de vie et l’étage.
En cours de travaux. Cette photo de l’intérieur pendant les travaux montre l’extension en arrière-plan, la nouvelle ouverture vers la pièce de vie pratiquée dans la façade d’origine au centre, et le nouveau plafond en hourdis au premier plan.
Ce cliché est l’occasion d’évoquer la prise en compte de l’efficacité thermique de la bâtisse. Afin d’isoler la maison efficacement, les architectes préconisent l’emploi de la laine de bois, appliquée en différentes épaisseurs sur les murs de façades ou sur les rampants. « C’est un matériau naturel, sain, adaptable au bâti ancien, aussi efficace contre le froid que contre les surchauffes estivales car il a un bon coefficient de déphasage », précise l’architecte.
Quelles solutions pour isoler les murs par l’intérieur ?
Ce cliché est l’occasion d’évoquer la prise en compte de l’efficacité thermique de la bâtisse. Afin d’isoler la maison efficacement, les architectes préconisent l’emploi de la laine de bois, appliquée en différentes épaisseurs sur les murs de façades ou sur les rampants. « C’est un matériau naturel, sain, adaptable au bâti ancien, aussi efficace contre le froid que contre les surchauffes estivales car il a un bon coefficient de déphasage », précise l’architecte.
Quelles solutions pour isoler les murs par l’intérieur ?
Après. Situé à l’entrée, le bureau des propriétaires bénéficie de deux orientations, offrant ainsi un espace de travail agréable avec vue. « Un bureau confortable pour les parents comme pour les enfants faisait partie des demandes initiales », indique l’architecte.
Le bureau a été créé sur mesure en chêne clair par un menuisier local d’après le dessin des architectes. Il est idéalement placé à l’entrée de la maison et dispose d’une vue imprenable sur le préau, permettant de travailler tout en gardant un oeil sur les enfants qui s’amusent à l’extérieur.
La chambre parentale se trouve dans l’extension bois, dans le prolongement du bureau, et est cachée par une porte à galandage qui se glisse dans l’épaisseur du dressing.
Un soin particulier a également été apporté aux ouvertures dans la chambre parentale : « Orientée est sur les champs, la chambre reçoit la lumière du matin. Nous avons également ajouté un Velux au-dessus du lit pour pouvoir admirer le ciel », expliquent les architectes.
Plus d’idées pour aménager une chambre parentale sur Houzz
Plus d’idées pour aménager une chambre parentale sur Houzz
Sur le côté de la chambre se trouve sa salle de bains privée.
La chambre est chauffée par un radiateur électrique à inertie, connecté, tout comme le reste de la maison, mais l’épaisseur de l’isolation est suffisante pour ne pas à avoir à chauffer beaucoup, en particulier en Bretagne où le climat est doux.
La chambre est chauffée par un radiateur électrique à inertie, connecté, tout comme le reste de la maison, mais l’épaisseur de l’isolation est suffisante pour ne pas à avoir à chauffer beaucoup, en particulier en Bretagne où le climat est doux.
Avant. Nous découvrons la pièce de vie dans son état d’origine. Comme la bâtisse avait peu de fondations – ce qui est le cas traditionnellement des Pen Ty – elle était sujette aux remontées capillaires, ce que l’on repère dans l’angle de la pièce coloré par des traces d’humidité. Les architectes ont notamment posé des drains en périphérie de la bâtisse afin d’y remédier.
Comment savoir si une maison est humide ?
Comment savoir si une maison est humide ?
En cours de travaux. L’étage a été entièrement déposé avant d’être reconstruit légèrement plus bas en béton.
Pour offrir une vue à cette pièce fermée, les architectes ont souhaité créer des transparences au niveau du pignon est.
Après. L’ancienne cheminée a été remplacée par un poêle à granulés Aäsgard, programmable et contrôlable à distance, qui complète les radiateurs électriques domotisés, la VMC simple flux et les volets roulants électriques pour parfaire l’équation thermique de cette maison. « Une rénovation, ce n’est pas comme du neuf, on ne peut pas calculer exactement la performance des complexes mais nous tendons vers du B par nos différentes actions », partage My-Linh.
Poursuivant la démarche écologique des architectes, les propriétaires ont souhaité opter de leur côté pour un ameublement majoritairement composé de meubles d’occasion, comme le canapé.
Poursuivant la démarche écologique des architectes, les propriétaires ont souhaité opter de leur côté pour un ameublement majoritairement composé de meubles d’occasion, comme le canapé.
Avant. Voici l’autre côté de la pièce de vie avant travaux.
En cours de travaux. Au niveau des pignons, à l’extérieur, là où il y avait des infiltrations d’eau en partie haute, les pierres ont dû être révisées : « elles étaient devenues poreuses surtout à l’ouest, du côté des vents dominants. Il s’agit de traiter l’ensemble des joints des pierres à la chaux. Il a également été nécessaire de faire hydrofuger les pierres de façade sur le côté ouest », précise l’architecte.
Après. Côté sud, où l’on aperçoit l’ancienne porte d’entrée, le mur intérieur en pierre a été conservé apparent. C’était un souhait de la famille et des architectes que de pouvoir laisser visible le moellon d’origine et par là, l’histoire de la bâtisse. « Nous avons pu laisser ce mur apparent car il est orienté sud, donc moins froid et moins humide. Les joints ont été entièrement repris à la chaux. Les autres murs ont été doublés avec de la laine de bois et du placo », explique l’architecte.
À l’extérieur, la façade a été sablée et les joints refaits à la chaux, un matériau respirant. « Il était notamment important de laisser la pierre apparente en partie basse de façade pour s’assurer de l’évaporation de l’humidité en pied de mur », précise-t-elle.
À l’extérieur, la façade a été sablée et les joints refaits à la chaux, un matériau respirant. « Il était notamment important de laisser la pierre apparente en partie basse de façade pour s’assurer de l’évaporation de l’humidité en pied de mur », précise-t-elle.
Les travaux de gros-œuvre étant très importants, l’intérieur a été aménagé simplement. « Nous avons posé du grès cérame au sol car c’est une maison qui a plusieurs entrées et nous souhaitions que la maison soit facile à vivre et pérenne, dans une région où il pleut beaucoup, et en présence possible d’animaux de compagnie », partage l’architecte.
La cuisine a été aménagée avec des modules Ikea et recouverte de plans de travail en bois fabriqués sur mesure. Un îlot convivial rassemble la famille pour les repas et crée une séparation avec l’espace salon. La famille n’a finalement pas jugé bon de doubler l’îlot par une table à manger.
La cuisine a été aménagée avec des modules Ikea et recouverte de plans de travail en bois fabriqués sur mesure. Un îlot convivial rassemble la famille pour les repas et crée une séparation avec l’espace salon. La famille n’a finalement pas jugé bon de doubler l’îlot par une table à manger.
Plusieurs plans intérieurs ont été envisagés par les architectes, avec différents emplacements pour l’escalier menant à l’étage. « Nous étions contraints par la direction d’arrivée à l’étage et par l’échappée de tête au droit des rampants », rappelle l’architecte.
Si un emplacement n’était toutefois pas envisageable pour l’escalier, c’était bien au centre de la bâtisse. « Cela contrevenait complètement à notre idée de créer des perspectives et des cadrages. De plus, afin qu’un aménagement soit pérenne et puisse être adapté à d’autres usages ou habitants ultérieurement, il est intéressant de libérer le volume et repousser les fonctions techniques sur les côtés », conseille l’architecte.
Si un emplacement n’était toutefois pas envisageable pour l’escalier, c’était bien au centre de la bâtisse. « Cela contrevenait complètement à notre idée de créer des perspectives et des cadrages. De plus, afin qu’un aménagement soit pérenne et puisse être adapté à d’autres usages ou habitants ultérieurement, il est intéressant de libérer le volume et repousser les fonctions techniques sur les côtés », conseille l’architecte.
La maison offre une base neutre que les architectes encouragent à personnaliser avec de la décoration et des touches de couleur évolutives au fil du temps. « L’idée est d’assurer la pérennité de la base le plus longtemps possible », rappelle My-Linh.
Plan de l’étage après travaux
Avant. Si les pignons avaient subi des infiltrations d’eau, en revanche le plancher de l’étage avait tenu bon. À l’origine destiné à recevoir du foin, il n’était toutefois pas dimensionné pour recevoir le poids d’un étage habité. Les poutres étaient également sujettes à la présence de vrillettes au droit des encastrements dans les façades. Ce fut également l’occasion d’abaisser légèrement la hauteur du plancher fini pour gagner en surface habitable.
En cours de travaux. Le plancher en béton a été reconstruit plus bas, des Velux ont été percés et les rampants intégralement isolés avec de la laine de bois Pavatex Confort.
Après. L’escalier débouche face à la salle de bains des enfants. Comme l’espace était assez limité à l’étage (40 m²), les architectes n’ont pas voulu le cloisonner en chambres, ce qui aurait imposé la création d’un couloir de distribution et donc un espace habitable perdu. Le sol de l’étage a été habillé en sisal, une fibre naturelle résistante, moins chère qu’un plancher.
Les architectes ont préféré envisager un espace ouvert pour les deux enfants qui ont quasiment le même âge et grandissent ensemble. Deux bureaux à gauche desquels ils proposent un grand linéaire de placards sous rampants, créent une circulation et une structuration du volume.
Ces bureaux servent en effet de tête de lit : s’y appuient les lits des enfants, tournés vers les fenêtres de toit, ce qui leur permet de profiter d’une vue sur l’extérieur.
Entre les lits, une semi-cloison délimite l’espace de chacun. « Nous avons placé ce dortoir sous le signe de l’évolution et du jeu. Comme il y a un garçon et une fille, ils souhaiteront peut-être davantage d’intimité quand ils grandiront. Il sera alors très simple de prolonger la cloison entre les lits », explique My-Linh.
Stephen et My-Linh ont passé plus de deux ans au chevet de cette vieille Pen Ty en l’adaptant avec patience et conscience aux humains qui vont y vivre. « C’est pour cela que nous avons donné à notre studio d’architecture le nom d’Anthropie, pour souligner cette dimension humaine que nous souhaitons donner à notre travail », analyse My-Linh.
Les maîtres d’ouvrage ont laissé pour leur part un avis dithyrambique sur le profil Houzz des professionnels, soulignant leur entière satisfaction, et le « dévouement inébranlable » de leurs architectes, y compris face à de nombreux aléas tel que le contexte économique ou encore l’inflation des matériaux. « Nous ne pourrions plus sortir une rénovation intégrale à ce prix. Il faut désormais tabler sur un minimum de 2 500 euros par mètre carré car ces dernières années nous avons fait face à des augmentations de prix indécentes », indiquent en outre les architectes.
Stephen et My-Linh ont passé plus de deux ans au chevet de cette vieille Pen Ty en l’adaptant avec patience et conscience aux humains qui vont y vivre. « C’est pour cela que nous avons donné à notre studio d’architecture le nom d’Anthropie, pour souligner cette dimension humaine que nous souhaitons donner à notre travail », analyse My-Linh.
Les maîtres d’ouvrage ont laissé pour leur part un avis dithyrambique sur le profil Houzz des professionnels, soulignant leur entière satisfaction, et le « dévouement inébranlable » de leurs architectes, y compris face à de nombreux aléas tel que le contexte économique ou encore l’inflation des matériaux. « Nous ne pourrions plus sortir une rénovation intégrale à ce prix. Il faut désormais tabler sur un minimum de 2 500 euros par mètre carré car ces dernières années nous avons fait face à des augmentations de prix indécentes », indiquent en outre les architectes.
Cette maquette, réalisée par l’agence Anthropie architecture(s) durant la phase de conception du projet, illustre parfaitement la volonté des architectes de préserver les volumes existants de la Pen Ty et de donner une lecture claire entre l’existant et le neuf.
ET VOUS ?
Que préférez vous dans la rénovation de cette maison de campagne bretonne ?
ET VOUS ?
Que préférez vous dans la rénovation de cette maison de campagne bretonne ?










































Qui vit ici ? C’est la résidence de vacances d’un couple et leurs deux jeunes enfants
Emplacement : Quistinic en Bretagne
Superficie : 144 m² (maison d’origine 54 m² + extension 50 m² + étage 40 m²)
Date : Le projet d’études a commencé en fin d’année 2020. Le chantier a démarré en juin 2021 et s’est achevé en juillet 2022.
Architectes : My-Linh Tôn et Stephen Le Diagon d’Anthropie architecture(s).
Budget : 200 000 € TTC hors honoraires
Photos : My-Linh Tôn
Le patrimoine Pen Ty est ancré dans la Bretagne et encore très présent à Quistinic, petite commune située au nord de Hennebont. Non loin, on peut d’ailleurs visiter le village typique de Poul Fétan et découvrir ces maisons paysannes du XIXᵉ, à l’origine recouvertes de chaume. Celle-ci faisait partie d’un petit hameau de Pen Ty qui avait été racheté par un Anglais pour être transformées en gîtes. Il a fini par revendre les maisons une à une et cette famille a acheté la dernière, accompagnée de la piscine du gîte.