Salles de bains
Salle de bains de la Semaine : Une pièce sublimée par la pierre
Rehaussé par des surfaces d'un blanc pur et brillant, l'onyx vert de cette salle de bains produit un effet incroyable
Pour Cyrus Ghanai, 2011 fut une année importante : il a entièrement remodelé le restaurant et le bar de la fameuse tour de télévision de Stuttgart. Lorsque l’on découvre les nombreux projets que cet architecte d’intérieur a réalisés, il est évident qu’il peut travailler sur des projets exceptionnels comme celui de la tour mais aussi sur des projets de plus petite envergure. À Ludwigsbourg, la salle de bains de cet appartement des années 50 en est la preuve ! Inspiré par le pays d’origine de ses parents, Cyrus Ghanai a recouvert certains murs de panneaux d’onyx vert poli importés d’Iran. Cette pierre noble, colorée et originale s’intègre parfaitement à la pièce et lui donne un aspect étonnamment minimaliste.
Coup d’œil
Qui l’utilise : un couple âgé
Surface : 27 m²
Emplacement : Ludwigsbourg, Bade-Wurtemberg, Allemagne
Coup d’œil
Qui l’utilise : un couple âgé
Surface : 27 m²
Emplacement : Ludwigsbourg, Bade-Wurtemberg, Allemagne
Lors de l’élaboration d’une salle de bains, après le choix des matériaux, on se concentre sur les besoins des personnes qui vont l’utiliser.
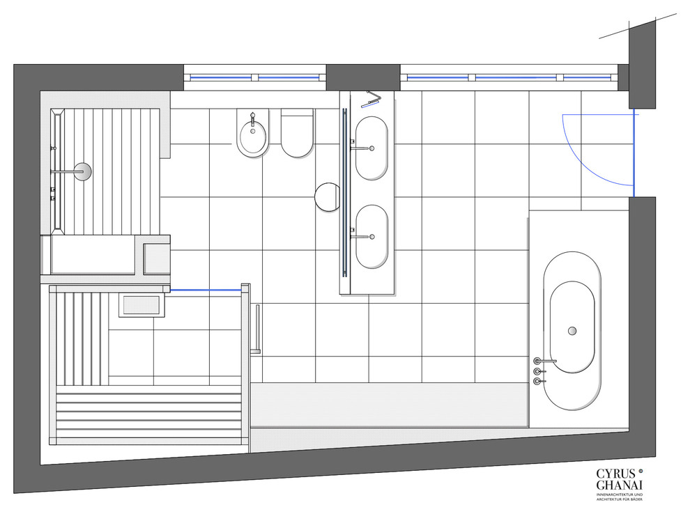
« Quand j’imagine une salle de bains, j’essaie de me mettre à la place des habitants et me demande où je me sècherais les cheveux, où je me raserais, etc. », explique l’architecte d’intérieur. « Pour moi, les toilettes ne doivent pas se trouver à côté des vasques. En revanche, les lavabos et la baignoire doivent se trouver dans un même espace. On doit séparer le pur de l’impur », précise Cyrus Ghanai.
La double vasque se trouve du côté de l’entrée. Les toilettes, l’urinoir et le bidet ont été installés de l’autre côté de la demi-cloison. « Cette séparation a d’ailleurs répondu aux souhaits des clients », indique l’architecte. « Le couple souhaitait certes un espace clair et ouvert, mais également une certaine intimité. »
« Quand j’imagine une salle de bains, j’essaie de me mettre à la place des habitants et me demande où je me sècherais les cheveux, où je me raserais, etc. », explique l’architecte d’intérieur. « Pour moi, les toilettes ne doivent pas se trouver à côté des vasques. En revanche, les lavabos et la baignoire doivent se trouver dans un même espace. On doit séparer le pur de l’impur », précise Cyrus Ghanai.
La double vasque se trouve du côté de l’entrée. Les toilettes, l’urinoir et le bidet ont été installés de l’autre côté de la demi-cloison. « Cette séparation a d’ailleurs répondu aux souhaits des clients », indique l’architecte. « Le couple souhaitait certes un espace clair et ouvert, mais également une certaine intimité. »
Les propriétaires souhaitaient également avoir un sauna intérieur. Comme le montre la photo, il est placé à côté de la douche. « La salle de bains doit être une zone de bien-être. Avec la baignoire à remous, la douche ciel de pluie et le petit sauna, nous avons répondu clairement aux exigences du couple », explique Cyrus. La banquette, les étagères et tout l’intérieur du sauna ont été réalisés en chêne.
Cette banquette habille le mur entre les deux espaces de relaxation : le sauna et la grande baignoire. La couleur ocre du coussin, le chêne et les baguettes métalliques du plafonnier cuivrées rappellent les différentes couleurs de l’onyx poli et créent un lien entre la pierre dominante et le reste de la pièce.
Plafonnier : « Allegretto Vivace » par Atelier Oi chez Foscarini
Plafonnier : « Allegretto Vivace » par Atelier Oi chez Foscarini
C’est avec la baignoire que nous terminons la visite de cette salle de bains : c’est la vue que l’on a lorsque l’on se trouve au niveau des lavabos. À gauche, on trouve l’entrée de la salle de bains menant vers un petit dressing.
Ce qui marque le plus dans cette salle de bains, ce sont les trois matériaux dominants : l’onyx vert, le chêne et les grandes dalles en verre cristallisé (Aspolith). « Ces dernières années, on a vu le marché du carrelage et de la pierre se transformer, mais les grandes dalles trop fines et les structures de support posent problème », précise Cyrus.
« Qu’est-ce que le futur nous réserve ? Beaucoup de surfaces unies sans joints ! »
Trouvez l’inspiration pour votre salle de bains grâce à d’autres idées déco
Découvrez d’autres salles de bains remarquables
Ce qui marque le plus dans cette salle de bains, ce sont les trois matériaux dominants : l’onyx vert, le chêne et les grandes dalles en verre cristallisé (Aspolith). « Ces dernières années, on a vu le marché du carrelage et de la pierre se transformer, mais les grandes dalles trop fines et les structures de support posent problème », précise Cyrus.
« Qu’est-ce que le futur nous réserve ? Beaucoup de surfaces unies sans joints ! »
Trouvez l’inspiration pour votre salle de bains grâce à d’autres idées déco
Découvrez d’autres salles de bains remarquables












Cyrus Ghanai explique : « Mon but était de laisser l’onyx faire son effet. » C’est pourquoi toutes les autres surfaces sont d’un blanc si pur : murs peints en blanc, faïence et dalles blanches, habillages en Aspolith, un verre cristallisé à haute température très brillant.
« Je ne voulais pas utiliser un autre matériau dominant pour créer un contraste avec la pierre naturelle », indique Cyrus Ghanai. « Mon souhait était de voir l’onyx resplendir dans toute sa somptuosité. »
Double vasque : « Série RC 40 » chez Burgbad ; Robinetterie : Tara Logic chez Dornbracht