Architecture durable
Architecture
Développement durable
Maisons de campagne
Visites Privées
Dossiers populaires
Visite Privée : En Belgique, la petite tiny house dans la prairie
En quête d'une vie économique et écologique, Quentin 24 ans, a lâché son 50 m² pour une tiny house de 20 m². Témoignage
En Belgique, près de Namur, Quentin Thiry, 24 ans, travaille en tant qu’indépendant. Pour exercer son activité professionnelle dans l’entretien et la création de parcs et jardins, il a dû investir dans une camionnette. Parallèlement, il loue un appartement de 50 m². Pris dans la spirale de journées de travail à rallonge pour faire face à ses charges, il se met à chercher une meilleure solution de vie, à la fois économique et écologique. « Je m’étais déjà intéressé depuis quelques années au mode de vie en tiny house car il collait à mes aspirations. Dans ma profession, on est particulièrement amené à réfléchir sur l’environnement, le réchauffement climatique, l’impact humain. Quand en avril dernier, j’en ai trouvé une à vendre sur un site d’annonces, en 15 jours j’ai sauté le pas et changé de vie ! », témoigne le jeune homme qui nous a fait faire la visite de sa micromaison bois dans la prairie. Parallèlement, Frédéric Robert, le constructeur de cette tiny house baptisée Colibri nous en dit plus sur sa passion pour la nature et son engagement dans la construction écologique, afin de satisfaire tous ceux qui, comme lui, rêvent de sauver le monde.
De son côté, Quentin Thiry, autoentrepreneur belge de 24 ans, s’interrogeait depuis quelque temps sur la vie en tiny house, ces petites cabanes en bois d’environ 10 à 30 m², indissociable de leur châssis sur roues, lequel les rend mobiles. Ce mode de vie minimaliste, apparu aux USA dans les années 60, et amplifié dans les années 2000 par le « Tiny house movement », lui plaisait car il permet de limiter ses charges, tout en vivant au plus proche de la nature. Ce petit-fils d’agriculteurs, élevé à la campagne et qui a mis la nature au centre de son activité professionnelle, se sentait en cohésion avec ce mode de vie plus slow.
Quentin a d’abord tenté d’engager son projet avec un constructeur local, envisageant une tiny de plain-pied de 8 x 3 m, soit un « grand » modèle. Le montant du devis – 42 000 euros, hors finitions intérieures – l’a cependant freiné. Frustré par cette expérience, il découvre peu de temps après, en avril 2020, l’annonce d’une tiny house en vente en France, via le site Le Bon Coin. « Il s’agissait d’une maison témoin destinée à des foires que le fabricant cédait en raison du Covid car les manifestations étaient annulées », nous explique le jeune homme.
La visite de la tiny en France avant l’achat est une étape déterminante pour conforter Quentin dans ses choix. Il a un véritable coup de cœur pour cette maisonnette très claire avec ses neuf fenêtres (dont une grande baie vitrée) et bien agencée. Et cette fois le budget – 36 800 euros, finitions intérieures comprises – est à sa portée.
Trouvez un constructeur de maisons sur Houzz
La visite de la tiny en France avant l’achat est une étape déterminante pour conforter Quentin dans ses choix. Il a un véritable coup de cœur pour cette maisonnette très claire avec ses neuf fenêtres (dont une grande baie vitrée) et bien agencée. Et cette fois le budget – 36 800 euros, finitions intérieures comprises – est à sa portée.
Trouvez un constructeur de maisons sur Houzz
La qualité de sa construction attire particulièrement le jeune homme qui, de part sa formation en paysagisme, connaît bien les problématiques des structures bois exposées aux intempéries.
« Elle m’a plu tout de suite car sa structure est en pin KVH. Ce procédé allemand de séchage du bois qui lui permet de résister aux champignons dans la durée. Et son bardage est en mélèze, un bois européen classe 3-4 garanti 20 ans. Déjà saturé, ce mélèze est garanti sans entretien une dizaine d’années. Ce n’est pas le cas du pin, une essence qui résiste mal à l’humidité et qu’il faut huiler tous les ans… », explique-t-il.
Pour assurer cette belle qualité de bois, la société Quadrapol a fait le choix d’implanter son usine de production près de Cracovie. Au pied des Carpates, cette région du Sud de la Pologne est en effet réputée pour la qualité de ses essences qui poussent plus lentement qu’ailleurs. Ce qui impose ensuite un trajet vers la France aux tiny houses… « Cela engendre environ 160 à 180 kg en effet d’émissions carbone par trajet. À chaque aller-retour d’un camion, nous replantons donc deux arbres pour que notre bilan soit neutre », explique Frédéric Robert.
« Elle m’a plu tout de suite car sa structure est en pin KVH. Ce procédé allemand de séchage du bois qui lui permet de résister aux champignons dans la durée. Et son bardage est en mélèze, un bois européen classe 3-4 garanti 20 ans. Déjà saturé, ce mélèze est garanti sans entretien une dizaine d’années. Ce n’est pas le cas du pin, une essence qui résiste mal à l’humidité et qu’il faut huiler tous les ans… », explique-t-il.
Pour assurer cette belle qualité de bois, la société Quadrapol a fait le choix d’implanter son usine de production près de Cracovie. Au pied des Carpates, cette région du Sud de la Pologne est en effet réputée pour la qualité de ses essences qui poussent plus lentement qu’ailleurs. Ce qui impose ensuite un trajet vers la France aux tiny houses… « Cela engendre environ 160 à 180 kg en effet d’émissions carbone par trajet. À chaque aller-retour d’un camion, nous replantons donc deux arbres pour que notre bilan soit neutre », explique Frédéric Robert.
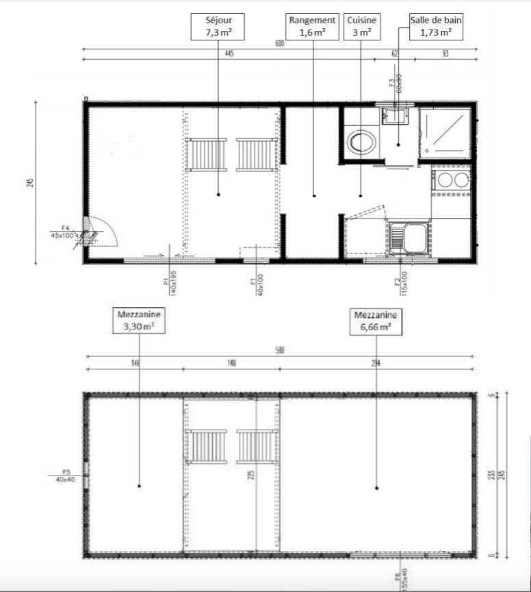
Quentin est également sensible à d’autres aspects. Les dimensions de la tiny house (6 m de long x 2,45 de large x 4 m de hauteur) et son poids de 3,3 tonnes lui permettent d’être tractée par un gros véhicule avec un permis BE. Soit, une extension du permis classique, qui permet de tirer une remorque de plus de 750 kg. « Les tiny houses qui dépassent 3,5 tonnes sont bien plus difficiles à déplacer, car elles relèvent du convoi agricole ou exceptionnel », note-t-il.
Outre le prix, Quentin a également été retenu par la qualité de la construction calquée sur celle des bâtiments passifs, très loin de celle des mobil-homes. « L’isolation est en laine de bois avec pare-pluie et pare-vapeur respirants, et non en polyuréthane qui est un dérivé du plastique. Les fenêtres sont en double vitrage et montants alu à rupture de pont thermique. Il y a une ventilation mécanique ce qui est très important dans un petit espace. Et le bardage pin de l’intérieur est à la fois esthétique et bon isolant. En dépit d’une semaine de gel ce dernier hiver, je n’ai pas eu du tout froid », partage-t-il.
Outre le prix, Quentin a également été retenu par la qualité de la construction calquée sur celle des bâtiments passifs, très loin de celle des mobil-homes. « L’isolation est en laine de bois avec pare-pluie et pare-vapeur respirants, et non en polyuréthane qui est un dérivé du plastique. Les fenêtres sont en double vitrage et montants alu à rupture de pont thermique. Il y a une ventilation mécanique ce qui est très important dans un petit espace. Et le bardage pin de l’intérieur est à la fois esthétique et bon isolant. En dépit d’une semaine de gel ce dernier hiver, je n’ai pas eu du tout froid », partage-t-il.
Quinze jours après sa visite, la tiny house de Quentin arrive près de Namur. Une aubaine car il faut patienter généralement autour de trois mois pour que Quadrapol produise à la demande.
Quentin a préalablement fait un gros tri dans ses affaires car passer de 50 à 23,5 m² impose de garder uniquement l’essentiel. La bonne nouvelle « chaque chose a trouvé sa place et, au final, il ne me manque rien, même si j’ai dû apprendre à m’habituer les premiers mois », confie le jeune homme.
En revanche, le volet administratif n’a pas été aussi facile qu’escompté… « On m’avait dit que les démarches pour s’installer sur un terrain communal étaient très simples mais j’ai fait six demandes de stationnement à des communes des environs, toutes refusées… », déplore le jeune homme.
Après s’être installé un temps sur le terrain d’un de ses amis, Quentin a dû regagner un champ appartenant à la ferme de son cousin, sur lequel paissent ses vaches. Là encore rien d’évident... « Je n’ai pas encore le permis BE et, en prime, les services administratifs m’ont refusé le changement d’immatriculation, au motif que j’aurais dû faire avant l’achat le dédouanement du plateau d’origine polonaise par Quadrapol… », se désole le jeune homme. « Aujourd’hui, je suis donc toujours en quête de légalité », résume-t-il.
Quentin a préalablement fait un gros tri dans ses affaires car passer de 50 à 23,5 m² impose de garder uniquement l’essentiel. La bonne nouvelle « chaque chose a trouvé sa place et, au final, il ne me manque rien, même si j’ai dû apprendre à m’habituer les premiers mois », confie le jeune homme.
En revanche, le volet administratif n’a pas été aussi facile qu’escompté… « On m’avait dit que les démarches pour s’installer sur un terrain communal étaient très simples mais j’ai fait six demandes de stationnement à des communes des environs, toutes refusées… », déplore le jeune homme.
Après s’être installé un temps sur le terrain d’un de ses amis, Quentin a dû regagner un champ appartenant à la ferme de son cousin, sur lequel paissent ses vaches. Là encore rien d’évident... « Je n’ai pas encore le permis BE et, en prime, les services administratifs m’ont refusé le changement d’immatriculation, au motif que j’aurais dû faire avant l’achat le dédouanement du plateau d’origine polonaise par Quadrapol… », se désole le jeune homme. « Aujourd’hui, je suis donc toujours en quête de légalité », résume-t-il.
Pour Frédéric Robert, le développement du marché du nanohabitat va inévitablement faire bouger les lignes et obliger les gouvernements à légiférer : « La loi ALUR en février 2014 a ouvert la porte à l’implantation de constructions démontables. Ces habitats verts règlent le problème de l’empreinte carbone et même de l’autonomie en eau et en énergie pour certains. Il existe déjà nombre de communes qui accueillent les tiny houses à bras ouverts et elles seront de plus en plus nombreuses », assure-t-il.
En dépit des tracas administratifs, une fois bien au chaud dans sa tiny, Quentin n’y a vu que des avantages. Il a notamment trouvé l’agencement efficace, avec ses deux parties salon et cuisine et ses deux mezzanines perchées à deux mètres de haut.
« Mon plus grand dilemme a été de savoir si je placerai un salon ou une salle à manger à l’entrée. Comme j’aime beaucoup recevoir, j’avais d’abord pensé à installer une table et des chaises mais, quand on a si peu de mètres carrés, il faut privilégier l’essentiel au quotidien, soit le salon. Depuis, je me suis essayé aux apéros dînatoires, mais malheureusement avec l’épidémie je n’ai pas pu en faire beaucoup… », partage-t-il.
En dépit des tracas administratifs, une fois bien au chaud dans sa tiny, Quentin n’y a vu que des avantages. Il a notamment trouvé l’agencement efficace, avec ses deux parties salon et cuisine et ses deux mezzanines perchées à deux mètres de haut.
« Mon plus grand dilemme a été de savoir si je placerai un salon ou une salle à manger à l’entrée. Comme j’aime beaucoup recevoir, j’avais d’abord pensé à installer une table et des chaises mais, quand on a si peu de mètres carrés, il faut privilégier l’essentiel au quotidien, soit le salon. Depuis, je me suis essayé aux apéros dînatoires, mais malheureusement avec l’épidémie je n’ai pas pu en faire beaucoup… », partage-t-il.
Au-dessus de la partie cuisine se trouve plus grande mezzanine qui abrite la chambre de Quentin. « En partie la plus basse elle fait 1,20 m de haut et culmine à environ 1,50 m. On ne peut pas s’y tenir debout mais on peut s’y asseoir confortablement. J’ai même eu la place de glisser un sommier sous le lit car je ne voulais pas rogner sur le confort », détaille-t-il.
Quentin apprécie aussi la façon dont l’éclairage a été pensé. « Il y a un circuit dédié à chaque zone avec spots ou appliques. J’ai au moins cinq interrupteurs et je ne suis pas obligé d’éclairer toute la tiny si je suis dans ma chambre. »
Quentin apprécie aussi la façon dont l’éclairage a été pensé. « Il y a un circuit dédié à chaque zone avec spots ou appliques. J’ai au moins cinq interrupteurs et je ne suis pas obligé d’éclairer toute la tiny si je suis dans ma chambre. »
L’autre mezzanine peut servir de seconde chambre mais Quentin, pour sa part, l’utilise comme lieu de stockage : « Dans une tiny, dès que l’on a un peu de bazar, cela se voit. Cette mezzanine est précieuse car elle me permet de ranger des affaires dont je ne me sers pas tous les jours », poursuit-il.
La cuisine a beaucoup plu au jeune homme, en particulier le plan de travail en chêne lamellé collé massif qu’il a trouvé qualitatif. « Elle est aussi grande que celle de mon ancien appartement. Elle est très bien équipée, avec un emplacement pour les poubelles prévu sous l’évier. Il ne me manquait qu’un four et j’ai donc rajouté un micro-ondes combiné », affirme-t-il.
Le plan de travail se prolonge en coin déjeuner dont il se sert également comme bureau : « J’y pose mon ordinateur portable et passe beaucoup de temps à cet endroit car en tant qu’indépendant je dois faire ma comptabilité. Je suis également en train de monter une boutique en ligne d’articles de jardin », explique-t-il.
Pour ce qui est de la connexion internet, le jeune homme a trouvé une bonne solution : « J’ai pris chez Orange une Flybox, un boîtier qui transforme la 4G en réseau wifi. J’ai 200 gigas pour 20 euros et de quoi regarder Netflix », plaisante-t-il.
Pour ce qui est de la connexion internet, le jeune homme a trouvé une bonne solution : « J’ai pris chez Orange une Flybox, un boîtier qui transforme la 4G en réseau wifi. J’ai 200 gigas pour 20 euros et de quoi regarder Netflix », plaisante-t-il.
On passe du salon à la cuisine en traversant un sas équipé de la salle de bains. Toilettes sèches, cabine de douche de 70 x 70 cm et vasque tiennent dans un mouchoir de poche mais le jeune homme trouve le tout fonctionnel et confortable. « Pour les toilettes on met des copeaux dans le fond puis on recouvre bien de copeaux ce qui neutralise toute odeur. Tous les trois ou quatre jours, je vide le seau sur le tas de fumier des vaches », explique-t-il. Son seul souci : le réseau d’eau en cas de températures négatives. « Je me suis repiqué sur l’alimentation de l’abreuvoir des vaches qui n’est pas isolée et lors de la semaine de gel, je n’ai plus eu d’eau. Ce n’est pas grave, je suis allé squatter la salle de bains chez des amis et pour laver mon linge je squatte aussi », dit-il amusé.
Face à la salle de bains, un espace dressing renferme également le ballon d’eau chaude. En ce qui concerne le raccordement au réseau électrique, Quentin s’est branché sur la ferme de son cousin.
Cette tiny house était entièrement équipée d’appareils électriques (plaque induction, radiateur, ballon), mais il est possible de commander un modèle équipé en bouteilles de gaz ou de se chauffer avec un poêle à bois. « Nous essayons d’impliquer les habitants sur leur consommation et de leur faire acheter chaque année un arbre à replanter chez notre partenaire Atmosylva pour compenser leur utilisation d’énergies fossiles », explique Frédéric Robert.
Cette tiny house était entièrement équipée d’appareils électriques (plaque induction, radiateur, ballon), mais il est possible de commander un modèle équipé en bouteilles de gaz ou de se chauffer avec un poêle à bois. « Nous essayons d’impliquer les habitants sur leur consommation et de leur faire acheter chaque année un arbre à replanter chez notre partenaire Atmosylva pour compenser leur utilisation d’énergies fossiles », explique Frédéric Robert.
Le projet auquel se consacre désormais le chef d’entreprise est d’ailleurs de propulser ses micromaisons vers l’autonomie : « Pour 10 000 euros nous offrons le kit autonomie complet. Il comprend des panneaux solaires sur le toit. Un onduleur, dans un coffre à l’intérieur de la tiny, distribue le courant aux batteries. Nous avons également équipé le toit d’un circuit de récupération d’eau de pluie avec un réservoir de stockage interne de 300 litres muni d’un filtre pour la rendre potable et un réservoir extérieur de 3000 litres placé sous la maison. Un filtre permet aussi de traiter les eaux grises et de les rendre pures afin de pouvoir les évacuer sur le terrain. »
Prochaines évolutions ? « Faire homologuer nos tiny houses comme une caravane ou un véhicule, car pour l’instant elles sont considérées comme une remorque », affirme-t-il.
Prochaines évolutions ? « Faire homologuer nos tiny houses comme une caravane ou un véhicule, car pour l’instant elles sont considérées comme une remorque », affirme-t-il.
Chez Quentin, deux nouveaux résidents se sont invités depuis quelques semaines. Deux chats qu’il a sauvés dans une ferme. « Ils se sont vraiment bien habitués à l’espace, Ils savent grimper aux barreaux et adorent lézarder sur la mezzanine quand ils ne sont pas en chasse sur le terrain », affirme le jeune homme.
Les prochains projets de Quentin ? « Je veux continuer à m’impliquer dans la démarche qui est la mienne, faire grandir mon projet vers l’autonomie en possédant mon propre terrain pour cultiver mes légumes et avoir des poules. »
ET VOUS ?
Que pensez-vous de cette tiny house ? Partagez vos commentaires ci-dessous.
Lire aussi :
Visite Privée : La belle vie dans une tiny house de 10 m² en Australie
Architecture : Odyssée, la tiny house de Sabrina et Alexandre
Visite Privée : Confort et liberté dans une tiny house mobile de 9 m²
Visite Privée : Une tiny house mobile à géométrie variable
Visite Privée : Une tiny house parfaitement optimisée
Visite Privée : Une tiny house truffée d’astuces gain de place
Trouvez des professionnels près de chez vous sur Houzz
Plus de photos déco
Découvrez d’autres Avant/Après
Les prochains projets de Quentin ? « Je veux continuer à m’impliquer dans la démarche qui est la mienne, faire grandir mon projet vers l’autonomie en possédant mon propre terrain pour cultiver mes légumes et avoir des poules. »
ET VOUS ?
Que pensez-vous de cette tiny house ? Partagez vos commentaires ci-dessous.
Lire aussi :
Visite Privée : La belle vie dans une tiny house de 10 m² en Australie
Architecture : Odyssée, la tiny house de Sabrina et Alexandre
Visite Privée : Confort et liberté dans une tiny house mobile de 9 m²
Visite Privée : Une tiny house mobile à géométrie variable
Visite Privée : Une tiny house parfaitement optimisée
Visite Privée : Une tiny house truffée d’astuces gain de place
Trouvez des professionnels près de chez vous sur Houzz
Plus de photos déco
Découvrez d’autres Avant/Après

























Qui vit ici : Quentin Thiry, 24 ans
Emplacement : En Belgique, dans un champ près de Namur
Superficie : 23,5 m²
Date d’emménagement : Avril 2020
Constructeur : Quadrapol
Budget : 36 800 euros de travaux
Photos : Quadrapol
« Quand j’ai reçu ma tiny house en avril dernier, j’ai partagé une publication sur Facebook et jamais je n’avais eu autant d’engagement, de “j’aime”, “j’adore”, de commentaires… Il y a cinq ans, lorsque l’on évoquait ce mode de vie, on l’attribuait souvent à des marginaux. Aujourd’hui, ce sujet rassemble beaucoup sur les réseaux. Les mentalités ont changé », témoigne Quentin.
Pour Frédéric Robert, fondateur de la société Quadrapol, spécialisée dans la construction de « nanohabitats en bois », l’année 2020 a bel et bien marqué un changement qui s’est ressenti dans son carnet de commandes. « La pandémie a joué le rôle d’un accélérateur de prise de conscience. Les gens sont en quête d’essentiel et nombreux ont envie de se tourner vers un habitat plus durable et économique. En 2020, nous avons livré soixante tiny houses, deux fois plus que d’habitude. Nous sentons que le marché s’installe », partage-t-il.
La vie en tiny house (expression anglaise qui signifie « micromaison »), Frédéric Robert y croit dur comme fer. « J’ai grandi dans la nature, je sais ce que je lui dois. Je suis aussi un homme de passion et de combat et le mien a été de m’engager concrètement pour créer des logements neutres en carbone, à l’heure où le secteur de la construction représente 20 à 30 % des émissions de gaz à effet de serre en France. Sans faire d’alarmisme, la planète est dans l’urgence. Au dernier sommet mondial sur le climat, même la Chine, plus grand pollueur du monde, s’est engagé à réduire de 65 % ses émissions de carbone d’ici 2030, c’est dire comme nous sommes acculés ! Il est essentiel que chacun agisse concrètement, à son niveau », partage-t-il.